The Project Gutenberg eBook of Palace and Mosque at Ukhaidir: A Study in Early Mohammadan Architecture

This ebook is for the use of anyone anywhere in the United States and most other parts of the world at no cost and with almost no restrictions whatsoever. You may copy it, give it away or re-use it under the terms of the Project Gutenberg License included with this ebook or online at www.gutenberg.org. If you are not located in the United States, you will have to check the laws of the country where you are located before using this eBook.

Title: Palace and Mosque at Ukhaidir: A Study in Early Mohammadan Architecture

Author: Gertrude Lowthian Bell

Release date: April 5, 2016 [eBook #51664]
Most recently updated: October 23, 2024

Language: English

Credits: Produced by Chuck Greif and the Online Distributed
Proofreading Team at http://www.pgdp.net (This file was
produced from images available at The Internet Archive)

*** START OF THE PROJECT GUTENBERG EBOOK PALACE AND MOSQUE AT UKHAIDIR: A STUDY IN EARLY MOHAMMADAN ARCHITECTURE ***

Contents.
Subject Index
Index of Names
List of Illustrations
(In certain versions of this etext [in certain browsers] clicking on the image, will bring up a larger version.)

(etext transcriber's note)

PALACE AND MOSQUE {i}
AT UKHAIḌIR

[Image of the bookcover not available.]

{ii}

OXFORD UNIVERSITY PRESS
LONDON   EDINBURGH   GLASGOW   NEW YORK
TORONTO   MELBOURNE   BOMBAY
HUMPHREY MILFORD M.A.
PUBLISHER TO THE UNIVERSITY

PALACE AND MOSQUE
{iii} AT
UKHAIḌIR

A STUDY IN

EARLY MOHAMMADAN ARCHITECTURE

BY
GERTRUDE LOWTHIAN BELL


O X F O R D
AT THE CLARENDON PRESS
1914

{iv} 

{v} 

TO MY FRIEND

DR. WALTHER ANDRAE

IN GRATEFUL RECOLLECTION OF HAPPY AND PROFITABLE

DAYS SPENT IN THE FIRST CAPITAL OF ASSYRIA

WHICH HAS BEEN REVEALED BY HIS

LABOUR AND RECREATED BY

HIS LEARNING

{vi}

{vii}

PREFACE

I have attempted in this book to bring together the materials, so far as they are known, which bear upon the earliest phases of Mohammadan architecture, to consider the circumstances under which it arose and the roots from which it sprang. No development of civilization, or of the arts which serve and adorn civilization, has burst full-fledged from the forehead of the god; and architecture, which is the first and most permanent of the arts, reflects with singular fidelity the history of its creators. Not only does their culture stand revealed in the crumbling walls which sheltered them and in the monuments raised for perpetual remembrance over their bones, but the links which bound them to that which had gone before are therein confessed, as well as their own contribution to the achievements of their predecessors, to mechanical skilfulness, to utility, and to beauty. It is the nature and the extent of this contribution which is of vital importance to the student, and it is this which lends to architecture its keenest significance. What, then, was the contribution of the first builders of Islâm?

It must be confessed that the question admits of no very striking rejoinder. The Mohammadan invaders were essentially nomadic; their dwelling was the black tent, their grave the desert sands. The inhabitants of the rare oases of western and central Arabia were content, as they are to-day, with a rude architecture of sun-dried brick and palm-trunks, unadorned by any intricate device of the imagination, and unsuited to any but the simplest needs. Even the great national shrine at Mekkah, the sacred house of the Ka’bah, was innocent of subsidiary constructions. It is true that on the northern trade-route the rock-cut tombs of Madâin Ṣâliḥ and of Petra bear witness to a higher order of artistic impulse, but it was an impulse which borrowed its power from without, from Hellenized Egypt and from Hellenized Syria. If there were an indigenous Arabian architecture worthy of the name, it can only have existed in the southern limits of the peninsula, where as yet exploration has been too imperfect to afford data for argument, nor is there evidence to show that in the seventh century of our era it can have played a part in the development of the northern tribes. Upon the northern frontiers the influence of the Byzantine and of the Sasanian empires would seem to have been predominant, and when the invaders established themselves in provinces which had been ruled from Constantinople or from Ctesiphon, they employed Greek and Persian artificers to fulfil their newly developed requirements and to satisfy their newly developed taste for architectural magnificence. The palaces of the conquerors were planned, constructed, and adorned by those whom they had conquered; their learning and their civilization were borrowed from them; even the ritual of their faith was shaped{viii} by contact with older forms of worship. No more significant example of the debt which Islâm owes to alien races can be cited than that which is afforded by the history of the mosque. Out of the mud-built courtyard of the Arab house, the open space for domestic and tribal assembly, Greek and Persian builders created an architectural type which governed the whole Mohammadan world. And the only contribution of the masters for whom they worked was the demand for just such large and open spaces, easily accessible, oriented in a certain manner, and partially shaded from the rays of the sun.

It is therefore scarcely possible to say that a specifically Mohammadan art existed during the first century after the Flight, though its germs were latent in the welding together of Hellenized with un-Hellenized, or barely Hellenized, regions under a single hand. The architecture of the first century gives evidence of the formative character of this process of compression; before the third century had ended it may be said to have been completed. If the monuments of the first century are still a faithful reflection of earlier and foreign creations, they hold the promise of further and more definitely characterized growth. But in an age and in lands where change was slow-footed, older conceptions continued to hold the field long after the political conditions under which they had arisen had vanished or had been baptized with other names. As we now know, the Mesopotamian palace builders of the ninth century of our era were guided by schemes which their Sasanian forerunners had inherited from remoter times; while the mosque builders had advanced little beyond the plan laid down in the camp-cities of the conquest. But the interchange of workmen between East and West was continuous, the intercourse unbroken; and from that intercourse, coupled with the needs of the age and the prejudices of the Faith, the arts of Islâm were born.

In the present study my eyes have been turned chiefly, and necessarily, backwards. I have not been so much concerned with the offspring as with the parentage of the buildings which I have passed under review. Of these buildings the most important is the great palace of Ukhaiḍir on the eastern side of the Syrian desert. I have given, also, the first plans and photographs of three small ruins in its vicinity, Qṣair, Mudjḍah, and ‘Aṭshân. If they do not belong to the same period as the palace, they cannot be far removed from it in date. The problems presented by Ukhaiḍir led me back to Sasanian architecture, and I publish here new plans and photographs of two vast constructions at Qaṣr-i-Shîrîn. I have, further, taken this occasion to publish the plans of two mosques, the one at Diyârbekr, the other at Mayâfârqîn, both of which belong to a later period. The first of these has been known to us only through a sketch made by Texier, which I found to be inaccurate in many significant points, as it is also incomplete. The second has not previously been studied.

The palace of Ukhaiḍir was practically unknown until the winter of 1908-9, although it had been seen by European travellers as early as the seventeenth{ix} century. Della Valle passed by it in June 1625 on his way from Baṣrah to Aleppo, and described it as ‘a great ancient fabric, perfectly square, with thirteen pilasters or round columns on each side without, and other compartments of arches; within which were many chambers, with a court of no great bigness and uncovered. The Arabians call this fabric Casr Chaider. I could not conjecture whether it had been a palace or temple or castle; but I incline to believe it a palace rather than anything else.’[1] Pedro Teixeira’s account is doubtful. He says:[2] ‘At eleven in the morning we came to a dry channel which in winter they say has much water, and I thought it likely by the nature of its situation and capaciousness. Over it, on a rising ground, is still an ancient square fort, with twelve bastions, three on each side, made of burnt brick and lime, strong and well built. Without it, at about sixty paces distance, is a small Alcoran, or Tower, ten cubits high, tho’ it appears to have been higher, of the same structure, all decay’d with age; yet it appears to be a royal fabrick by its goodness and the place it stands in, where it could not be raised without mighty cost and much labour, and difficulty. It was done by an Arabian king, grandfather to Xeque Mahamed Eben Raxet, whom I said before I was carried to see, to secure the caravans going that way before the Turks possess’d themselves of Bagdat and Bazora. The Arabs call it Alcayzar or Kayzar, which signifies a palace or Cesar’s House, for so they call all that belong to kings and princes. This they reckon the half-way from Bazora to Mexat Aly, whither we were going. We found some small wells in this channel, the water of them clear and fresh, but of an intolerable ill scent, yet necessity prevail’d.’ The only item in this description which connects Teixeira’s palace with Ukhaiḍir is the name. Teixeira reached Meshhed ‘Ali (Nedjef) six days after he had passed by Alcayzar and he gives the situation of the palace as half-way between Baṣrah and Nedjef, whereas Ukhaiḍir lies to the north-west of Nedjef. There is no ‘Alcoran’, i.e. minaret, at Ukhaiḍir, neither could the building be described, even by the least careful observer, as a square fort with three bastions on each side. I am therefore inclined to suppose that there is another ruin called Ukhaiḍir further to the south. We need not linger over the derivation which he assigns to the name.

Scarcely more correct as to architectural features is Tavernier’s allusion to Ukhaiḍir. There can, however, be no doubt that it is to Ukhaiḍir that he refers, by reason of the geographical position of his ‘grand Palais’. Coming from Aleppo, he turned off at ‘Ânah into the desert and after some twenty days of journeying he observes:[3] ‘Cinq jours aprés que nous eûmes quitté ces deux familles Arabes, nous découvrîmes un grand Palais tout de brique cuite au feu; et il y a de l’apparence que le pays a esté autrefois semé, et que les fourneaux où on a cuit cette brique ont esté chauffez avec du chaume:{x} car à quinze ou vingt lieües à la ronde il n’y a pas une brossaille ni un brin de bois. Chaque brique est d’un demi-pied en quarré et épaisse de six pouces. Il y a dans ce Palais trois grandes cours, et dans chacune de beaux bastimens avec deux rangs d’arcades qui sont l’un sur l’autre. Quoy que ce grand Palais soit encore entier, il est toutefois inhabité, et les Arabes fort ignorans de l’antiquité ne me sceurent apprendre pour qui il a esté basti, ny d’autres singularitez dont je m’informay, et dont j’aurois bien voulu qu’ils m’eussent instruit. Devant la porte de ce Palais il y a un étang accompagné d’un canal qui est à sec. Le fond du canal est de brique, de mesme que la voûte qui est à fleur de terre, et les Arabes croyent que c’a esté un conduit par lequel on faisoit passer l’eau de l’Euphrate. Pour moy je ne sçaurois qu’en juger, et ne puis comprendre comme on pouvoit faire venir de l’eau de si loin, l’Euphrate estant éloigné de ce lieü-là de plus de vingt lieües. De ce Palais nous tirâmes au nord est et après une marche de quatre jours nous arrivâmes à un méchant bourg, autrefois nommé Cufa et à present Meched-Ali.’[4]

The least inaccurate description of Ukhaiḍir is furnished by an anonymous Englishman, quoted by Niebuhr.[5] ‘Ich habe’, says he, ‘in dem Tagebuch eines Engländers, der von Haleb nach Basra gereiset war, gefunden, dass er 44 Stunden nach Osten von Hêt eine ganz verlassene Stadt in der Wüste angetroffen habe, wovon die Mauer 50 Fuss hoch und 40 Fuss dick war. Jede der vier Seiten hatte 700 Fuss, und in der Mauer waren Thürme. In dieser Stadt, oder grossem Castell, findet man noch ein kleines Castell. Von eben dieser verlassenen Stadt hörte ich nachher, dass sie von den Arabern el Khader genannt werde und um 10 bis 12 Stunden von Meshed Ali entfernt sei. Sie ist ohne Zweifel gleichfalls wegen Mangel an Wasser verlassen worden: und da man hier gar keine Städte oder Dörfer in der Nähe findet, so ist dies wohl die Ursache, dass man davon nicht alle brauchbare Steine weggebracht hat, wie von Kufa und Basra, wo fast nichts mehr übrig ist.’ In the same volume (p. 236) Niebuhr gives the route from Baṣrah to Aleppo through the desert and mentions therein Ukhaiḍir under the name of el Chäder, remarking that it is the castle to which the Englishman referred. This Englishman I conjecture to have been Mr. Carmichael, whose route is shown in a map published by Ives,[6] and there called ‘the common route of the caravans from Aleppo to Bassora over the great desert of Arabia, as described in a journal kept by Mr. Carmichael in the year 1751’. Ukhaiḍir appears upon it as ‘Alkader, the ruins of a most magnificent building’.

Major John Taylor saw it in June 1790 and dismissed it with short shrift.[7] He too was following the desert road from Aleppo to Baṣrah. On leaving Shethâthâ he says: ‘The camels being loaded at half past 6 this morning, we set forward over a barren flat desert. We crossed the bed of a river and at{xi} 11 a.m. we passed to our left the ruins of a small square fort, distant about half a mile, which the Arabs call Ula Kayder.’

Ritter[8] gives a summary of all these notices by early travellers, including that of Teixeira, which he accepts unquestioned, in spite of the fact that Teixeira’s palace lies, according to his own account, at least seven days’ journey to the south of the site of Ukhaiḍir.

M. Massignon was, however, the first to make any record of Ukhaiḍir. His preliminary notes, together with a plan and some photographs, were published in the Bulletin de l’Académie des Inscriptions et Belles-Lettres of March 1909, and in the Gazette des Beaux-Arts of April 1909. The next visitor to the palace was myself. I left Aleppo in February 1909 and reached Ukhaiḍir on March 25, travelling by the east bank of the Euphrates and across the desert from Hît via Kubaisah and Shethâthâ. I had no knowledge of M. Massignon’s journey, neither did the Arabs, who were at that time inhabiting the place, give me any information concerning him. I did not hear of his discovery until I reached Constantinople in the following July. M. Massignon followed up his observations with the first volume of his Mission en Mésopotamie (published in 1910), which was concerned chiefly with Ukhaiḍir. I, in the meantime, had published a paper on the vaulting system of the palace in the Journal of Hellenic Studies for 1910 (p. 69), and I gave a more detailed account of the building in the following year (Amurath to Amurath, p. 140). I returned to the site in March 1911, in order to correct my plans and to take measurements for elevations and sections. Going thence to Babylon, I found that some of the members of the Deutsche Orient-Gesellschaft who were engaged upon the excavations there had been to Ukhaiḍir during the two years of my absence and were preparing a book upon it. They were so kind as to show me their drawings while I was at Babylon, and I had the advantage of discussing with them my conjectures and difficulties, and the satisfaction of finding that we were in agreement on all important points. Their book appeared in 1912 (Dr. Reuther, Ocheïdir, published by the Deutsche Orient-Gesellschaft), and is referred to frequently in this volume. For their generosity in allowing me to use some of their architectural drawings, I tender my grateful thanks, together with my respectful admiration for their masterly production.

I feel, indeed, that I must apologize for venturing to offer a second version of the features of a building which has been excellently described and portrayed already. But my excuse must be that my work, which was almost completed when the German volume came out, covers not only the ground traversed by my learned friends in Babylon, but also ground which they had neither leisure nor opportunity to explore; and, further, that I believe the time has come for a comparative study of the data collected by myself and others, such as is contained in this book.{xii}

I must also thank M. Dieulafoy, M. de Morgan, Professor Strzygowski, Professor Sarre, Dr. Herzfeld, Professor Brünnow, Professor Haverfield, M. Velazquez Bosco, the Director of the Imperial Museums in Berlin, the Council of the K. Akademie of Vienna, the Deutsche Orient-Gesellschaft, and Messrs. Holman, Macmillan, Gebhardt and Bruckmann, for permitting me to reproduce plans, drawings, and photographs prepared or published by them. I have in every case acknowledged my indebtedness in the text of this book. Dr. Moritz and Professor Littmann have been so kind as to give me their views on the graffito in the palace, and their suggestions as to its deciphering. Finally I should like to thank the Clarendon Press for the care which has been expended upon the publication of my work, and Sir Charles Lyall for the help which he has given me in revising the proofs.

With this I must take leave of a field of study which formed for four years my principal occupation, as well as my chief delight. A subject so enchanting and so suggestive as the palace of Ukhaiḍir is not likely to present itself more than once in a lifetime, and as I bring this page to a close I call to mind the amazement with which I first gazed upon its formidable walls; the romance of my first sojourn within its precincts; the pleasure, undiminished by familiarity, of my return; and the regret with which I sent back across the sun-drenched plain a last greeting to its distant presence. The unknown prince at whose bidding its solitary magnificence rose out of the desert, the unknown lords who dwelt in its courts, cannot at the time of its full splendour have gloried and rejoiced in their handiwork and their inheritance more than I who have known it only in decay; and, in the spirit, I part from it now with as much unwillingness as that which I experienced when I withdrew, further and further, from its actual protection.

GERTRUDE LOWTHIAN BELL.

{xiii}

CONTENTS

CHAPTER  PAGE
I.UKHAIḌIR1
II.QṢAIR, MUDJḌAH, AND ‘AṬSHÂN38
III.QAṢR-I-SHÎRÎN44
IV.GENESIS OF THE EARLY MOHAMMADAN PALACE55
V.THE FAÇADE122
VI.THE MOSQUE145
VII.THE DATE OF UKHAIḌIR161
SUBJECT INDEX169
INDEX OF NAMES173

{xiv}

{xv}

LIST OF ILLUSTRATIONS

FIGURES IN THE TEXT
FIG.  PAGE
1.Ukhaiḍir, north wall of palace, showing original scheme11
2.Ukhaiḍir, arch construction12
3.Ukhaiḍir, arch construction15
4.Ukhaiḍir, south side of court B31
5.Zindjirli61
6.Pasargadae62
7.Persepolis, Apadana of Xerxes63
8.Persepolis, palace of Darius64
9.Parthian palace at Niffer66
10.Hatra palace67
11.Relief from Quyundjik77
12.Modern Ṭarmah houses83
13.Balkuwârâ85
14.Scheme of Pompeiian house87
15.Priene, house 3388
16.Priene, house 2488
17.Palace at Pergamon89
18.Small palace at Hatra91
19.Ctesiphon95
20.Karkh95
21.Roman fort at Housesteads99
22.Odhruḥ100
23.Ledjdjûn101
24.Da’djaniyyeh102
25.Bshair104
26.Qasṭal105
27.Lagash{xvi}107
28.Ṭûbah113
29.Kharâneh114
30.Petra, the storied tomb129
31.Hatra, façade of palace reconstructed138
32.Mosque at Raqqah154
33.Mosque of Abû Dulaf155
34.Assyrian fortress157
35.Ukhaiḍir, graffito in room 44163
MAPS
1. Syria and Mesopotamia at end
2. Ukhaiḍir, map of site
PLATES (at end)
1. Ukhaiḍir, ground-plan.
2. Ukhaiḍir, ground-plan of interior buildings.
3. Fig. 1. Ukhaiḍir, first floor of palace. Fig. 2. Ukhaiḍir, second floor of palace.
4. Fig. 1. Ukhaiḍir, Section a-b. Fig. 2. Ukhaiḍir, Section c-d.
5. Fig. 1. Ukhaiḍir, Section e-f. Fig. 2. Ukhaiḍir, Section g-h. Fig. 3. Ukhaiḍir, The Ḥammâm. Fig. 4. Qṣair.
6. Fig. 1. Ukhaiḍir from north-east. Fig. 2. Ukhaiḍir, central court, from south.
7. Fig. 1. Ukhaiḍir, south-east angle of palace yard. Fig. 2. Ukhaiḍir, north-east corner.
8. Fig. 1. Ukhaiḍir, south-west corner. Fig. 2. Ukhaiḍir, detail of tower chamber. Fig. 3. Ukhaiḍir, decoration on north wall.
9. Fig. 1. Ukhaiḍir, south gate, interior. Fig. 2. Ukhaiḍir, south gate, exterior.
10. Fig. 1. Ukhaiḍir, chemin de ronde of east wall, looking north. Fig. 2. Ukhaiḍir, north façade, showing loopholes of chemin de ronde.
11. Fig. 1. Ukhaiḍir, north façade. Fig. 2. Ukhaiḍir, north gate.
12. Fig. 1. Ukhaiḍir, room 1, looking north. Fig. 2. Ukhaiḍir, room 88, south-west end of vault.
13. Fig. 1. Ukhaiḍir, room 4, north-east portion of dome. Fig. 2. Ukhaiḍir, room 4, south-west portion of dome.
14. Fig. 1. Ukhaiḍir, great hall, looking south. Fig. 2. Ukhaiḍir, vault of great hall, looking south.
15. Fig. 1. Ukhaiḍir, great hall, west side. Fig. 2. Ukhaiḍir, great hall, door of south-west stair.
16. Fig. 1. Ukhaiḍir, great hall, looking north. Fig. 2. Ukhaiḍir, vault of south-west stair out of great hall.
17. Fig. 1. Ukhaiḍir, corridor 5, looking west. Fig. 2. Ukhaiḍir, north end of corridor 20.
18. Fig. 1. Ukhaiḍir, south wall of mosque. Fig. 2. Ukhaiḍir, miḥrâb.
19. Fig. 1. Ukhaiḍir, east side of mosque. Fig. 2. Ukhaiḍir, east side of mosque, north end.{xvii}
20. Fig. 1. Ukhaiḍir, south-east angle of mosque. Fig. 2. Ukhaiḍir, south-west angle of mosque.
21. Fig. 1. Ukhaiḍir, door of mosque. Fig. 2. Ukhaiḍir, north end of gallery 108.
22. Fig. 1. Ukhaiḍir, north-east angle of court A. Fig. 2. Ukhaiḍir, corridors 28 and 102 from corridor 100.
23. Fig. 1. Ukhaiḍir, court H, north side, and north wall of mosque. Fig. 2. Ukhaiḍir, second story, rooms 119, 120, and 121, from east.
24. Fig. 1. Ukhaiḍir, second story, rooms to south and east of court. Fig. 2. Ukhaiḍir, second story, showing doors of 132, 137, and 117.
25. Fig. 1. Ukhaiḍir, gallery 134. Fig. 2. Ukhaiḍir, squinch in north-west angle of gallery 134.
26. Fig. 1. Ukhaiḍir, north-west angle of central court. Fig. 2. Ukhaiḍir, east door and south-east end of central court.
27. Ukhaiḍir, central court, east side of north façade.
28. Fig. 1. Ukhaiḍir, south-east angle of central court. Fig. 2. Ukhaiḍir, fluted semi-dome, south-east angle of central court.
29. Fig. 1. Ukhaiḍir, room 29 and south side of central court. Fig. 2. Ukhaiḍir, south side of central court, showing door of room 31. Fig. 3. Ukhaiḍir, south side of central court, door into room 42.
30. Fig. 1. Ukhaiḍir, vault of room 31. Fig. 2. Ukhaiḍir, room 31, showing decoration in top of vault.
31. Fig. 1. Ukhaiḍir, south wall, east end, of room 32. Fig. 2. Ukhaiḍir, room 40 from room 30. Fig. 3. Ukhaiḍir, south-west angle of passage 36.
32. Fig. 1. Ukhaiḍir, room 33, north-west column. Fig. 2. Ukhaiḍir, groin in north-east angle of corridor 28.
33. Fig. 1. Ukhaiḍir, court B, north-west angle. Fig. 2. Ukhaiḍir, court B, eastern half of north façade. Fig. 3. Ukhaiḍir, court C, north-west angle. Fig. 4. Ukhaiḍir, court C, eastern half of north façade.
34. Fig. 1. Ukhaiḍir, south door of room 44. Fig. 2. Ukhaiḍir, south doors of room 45.
35. Fig. 1. Ukhaiḍir, south side of court B. Fig. 2. Ukhaiḍir, south-west angle of court H. Fig. 3. Ukhaiḍir, west end of No. 78.
36. Fig. 1. Ukhaiḍir, door between rooms 44 and 45 from room 44. Fig. 2. Ukhaiḍir, court C, south door of room 55.
37. Fig. 1. Ukhaiḍir, door from court C into palace yard. Fig. 2. Ukhaiḍir, south-west corner of court E. Fig. 3. Ukhaiḍir, south side of court H.
38. Fig. 1. Ukhaiḍir, from south-east corner of chemin de ronde. Fig. 2. Ukhaiḍir, from east gate.
39. Fig. 1. Ukhaiḍir, south-west angle of court G. Fig. 2. Ukhaiḍir, east annex, north-east end. Fig. 3. Ukhaiḍir, east annex, from north.
40. Fig. 1. Ukhaiḍir, remains of stair. Fig. 2. Ukhaiḍir, room 140.
41. Fig. 1. Ukhaiḍir, room 141, north-west corner of groin. Fig. 2. Ukhaiḍir, east annex, from south.
42. Fig. 1. Ukhaiḍir, east annex from south, showing door of room 141. Fig. 2. Ukhaiḍir, north annex, showing roof. Fig. 3. Ukhaiḍir, north annex, detail of roof.
43. Fig. 1. Ukhaiḍir, north annex, from north gate. Fig. 2. Ukhaiḍir, from north.
44. Fig. 1. Ukhaiḍir, north annex, from west. Fig. 2. Ukhaiḍir, from north-west.
45. Fig. 1. Qṣair, interior, showing apse. Fig. 2. Qṣair, detail of apse. Fig. 3. Qṣair, exterior from south.{xviii}
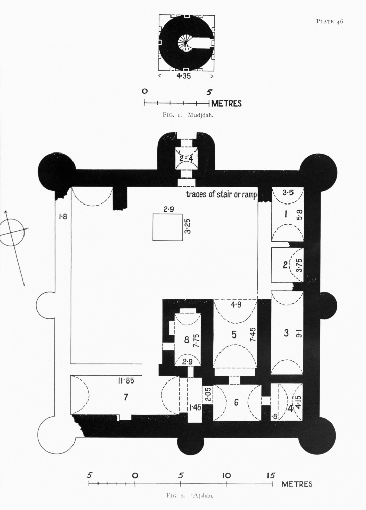
46. Fig. 1. Mudjḍah. Fig. 2. ‘Aṭshân.
47. Fig. 1. Mudjḍah. Fig. 2. Mudjḍah. Fig. 3. Mudjḍah, detail of lower niches.
48. Fig. 1. Ṭâûq, minaret. Fig. 2. ‘Aṭshân, from north-east.
49. Fig. 1. ‘Aṭshân, north gate, exterior. Fig. 2. ‘Aṭshân, north gate, interior.
50. Fig. 1. ‘Aṭshân, rooms 2, 3, and 5, from north. Fig. 2. ‘Aṭshân, rooms 5 and 8, from north.
51. Fig. 1. Palace of Khusrau, corridor 103, east side. Fig. 2. ‘Aṭshân, west door of room 6, from west.
52. Fig. 1. ‘Aṭshân, room 8, from west. Fig. 2. Palace of Khusrau, vault of room 71.
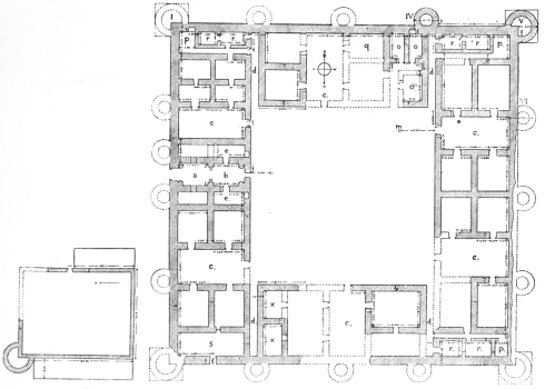
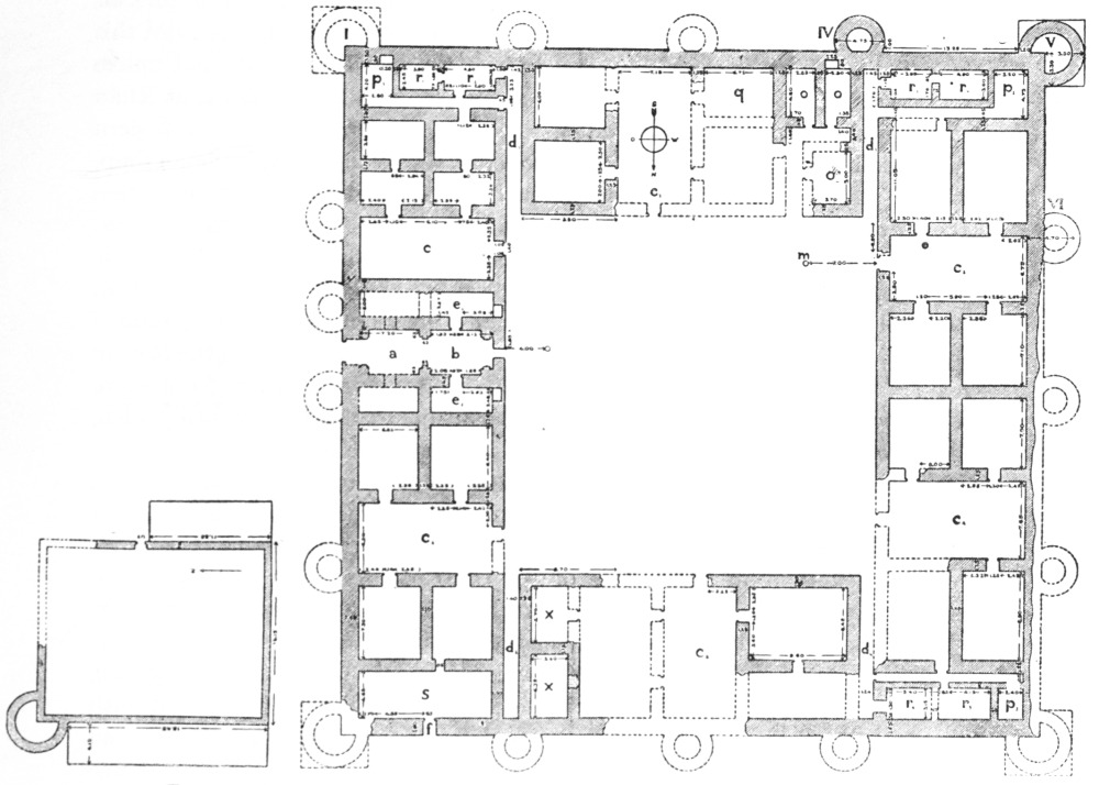
53. Qaṣr-i-Shîrîn, palace of Khusrau, upper level.
54. Qaṣr-i-Shîrîn, palace of Khusrau, lower level.
55. Fig. 1. Palace of Khusrau, east end of hall 3. Fig. 2. Palace of Khusrau, west end of hall 3.
56. Fig. 1. Palace of Khusrau, vaulted ramp in corridor 12. Fig. 2. Palace of Khusrau, court M, south antechamber, showing door leading into corridor 42.
57. Fig. 1. Palace of Khusrau, south-west corner of court M, showing corridor 42. Fig. 2. Palace of Khusrau, east side of courts O and Q.
58. Fig. 1. Palace of Khusrau, west side of courts Q and S. Fig. 2. Palace of Khusrau, south-west corner of court S.
59. Fig. 1. Palace of Khusrau, vault of room 73. Fig. 2. Palace of Khusrau, corridor 43, looking west.
60. Fig. 1. Palace of Khusrau, court V, looking west. Fig. 2. Palace of Khusrau, gateway between courts U and V, west arch.
61. Palace of Khusrau, gateway between courts U and V, south-east angle of room 82.
62. Palace of Khusrau, court W, with rooms 97 and 98.
63. Fig. 1. Palace of Khusrau, eastern double ramp. Fig. 2. Palace of Khusrau, north buildings.
64. Qaṣr-i-Shîrîn, Chehâr Qapû.
65. Fig. 1. Chehâr Qapû, interior of east gate. Fig. 2. Chehâr Qapû, niche in room 8. Fig. 3. Chehâr Qapû, squinch in room 6.
66. Fig. 1. Chehâr Qapû, niche in room 6. Fig. 2. Chehâr Qapû, squinch in room 14.
67. Chehâr Qapû, court D and hall 54, from east.
68. Fig. 1. Chehâr Qapû, vault of room 31. Fig. 2. Chehâr Qapû, squinch in room 39.
69. Fig. 1. Chehâr Qapû, hall 54, south-east corner. Fig. 2. Chehâr Qapû, hall 54, squinch in south-west corner.
70. Fig. 1. Chehâr Qapû, hall 54, exterior of south door. Fig. 2. Chehâr Qapû, hall 54, interior of south door.
71. Chehâr Qapû, hall 54, from south.
72. Chehâr Qapû, hall 54, from west.
73. Fig. 1. Qaṣr-i-Shîrîn, Qal’a-i-Khusrau. Fig. 2. Firûzâbâd.
74. Fig. 1. Sarvistân, small domed chamber. Fig. 2. Hatra, oversailing vault in main palace.
75. Fig. 1. Kerkûk, Mâr Ṭahmâsgerd. Fig. 2. Hatra, vaulted passage in so-called temple.
76. Sarvistân.{xix}
77. Sargon’s Palace at Khorsâbâd.
78. Fig. 1. Gate at Khorsâbâd. Fig. 2. Ḍumair.
79. Fig. 1. Kharâneh. Fig. 2. Kharâneh, gateway.
80. Fig. 1. Kharâneh, interior of court. Fig. 2. Kharâneh, interior of audience hall.
81. Mshattâ.
82. Fig. 1. Petra, Corinthian tomb. Fig. 2. Petra, al-Dair.
83. Ctesiphon.
84. Fig. 1. Doorway of mosque, Ḥasan Kaif. Fig. 2. Gateway of mosque, Ḥarrân. Fig. 3. Mayâfârqîn, north façade of mosque.
85. Ukhaiḍir, reconstructed north façade of central court.
86. Fig. 1. Parthian decoration, Assur. Fig. 2. Sasanian silver dish (Hermitage, St. Petersburg, No. 2969).
87. Details of decoration from Medînat al-Zahrâ.
88. Fig. 1. Djebel Sindjâr, khân. Fig. 2. Ḥasan Kaif, mosque.
89. Fig. 1. Cairo, mosque of Ibn Ṭulûn. Fig. 2. Mosque of Abû Dulaf.
90. Diyârbekr, Ulu Djâmi’.
91. Fig. 1. Cairo, mosque of Ibn Ṭulûn. Fig. 2. Sâmarrâ, mosque.
92. Mosque of Ṣalaḥ al-Dîn, Mayâfârqîn.
93. Fig. 1. Diyârbekr, mosque, fragment of old wall. Fig. 2. Mayâfârqîn, mosque.

{1}

CHAPTER I

UKHAIḌIR

The fortified palace of Ukhaiḍir stands in the desert about three hours’ journey to the south-east of the oasis of Shethâthâ and some seven hours’ south-west of Kerbelâ. Its exact site has been fixed by Sir William Willcocks’s survey and it is upon his map that mine is based (Map 1). Ukhaiḍir is not far from the south-west end of the low ground which Sir William Willcocks has called the Ḥabbâniyyeh depression. The southern part of this depression covers an area of 146 square kilometres at a level of 46 metres above the Persian Gulf;[9] at its lower end it still contains a lake of brackish water, the lake of Abû Dibs, the water-level of which is 19 metres above the Persian Gulf. The northern part is occupied by the Ḥabbâniyyeh Lake. That the whole area was once filled with escape water from the Euphrates is shown by the fact that it is covered at a level of 25 metres above the Persian Gulf by a thick belt of Euphrates shells; at this level it extends over an area of 1,200 square kilometres. The oases of Raḥḥâliyyeh and Shethâthâ are situated upon the edge of this ancient reservoir. Between Shethâthâ and Ukhaiḍir a shallow valley, the Wâdi al-Ubaiḍ, makes its way up from the south-west to the lake of Abû Dibs. I have been told that after heavy winter rain a stream has been known to flow down the ghadîr, the water-course, which winds through the sand and stones of the valley bed. Whether this be true or no, a well of good sweet water exists in the Wâdi al-Ubaiḍ, fed, in all probability, by a spring, like the famous water of Muḥaiwir in the Wâdi Ḥaurân, or the wells of ‘Asîleh in the Wâdi Burdân. At no other point in the immediate vicinity of Ukhaiḍir is fresh water to be obtained; whether you dig within the palace walls, or without, the water, if water there be, is brackish and unfit to drink. To the north of the Wâdi al-Ubaiḍ the ground opposite Ukhaiḍir, sloping gradually down to the Ḥabbâniyyeh depression, is intersected by gulleys, narrow and steep, cutting through hillocks of gypsum, and among these hillocks is the small ruin which the Arabs call Qṣair. Here, I take it, the gypsum was obtained for the mortar which binds the masonry of the palace, and its good qualities are attested by the excellent preservation of wall and vault until this day. I have not visited the quarries, but the Arabs told me that the stone had been brought from a distance of about an hour to the south of Ukhaiḍir, where there are traces of working ‘taḥt al-arḍ’, below the ground—not in a hill-side. Near the quarries there is said to be a well of good but not{2} abundant water; Shakhârîz is the name of the well. It is built of stone. Behind it, some three hours’ journey from Ukhaiḍir, there is a low line of hills, the Djebel Ḍaba’. From the castle walls the long levels of the desert spread out invitingly to the hills, and I would gladly have gone thither, but I had not time to spare during either of my visits. Ukhaiḍir does not reckon security among its many charms. The plentiful sweet water of the well in the Wâdi al-Ubaiḍ makes it a trysting-place for raiding parties, and after four or five days’ sojourn it is best to be gone, lest the news that a foreigner is lodged within the palace walls should run too temptingly among the tribes. In 1911, the date of my last visit, I came to Ukhaiḍir from Shethâthâ, having ridden straight across the desert from Ramâdi, skirting the Ḥabbâniyyeh Lake and the east side of the Ḥabbâniyyeh depression. When I left I did not follow the usual way, by Abû Dibs to Kerbelâ, but rode almost due east, to the foot of a cliff of sand and rock, which is the western limit of a flat desert plateau that stretches eastward to the Hindiyyeh. An abrupt rise of this nature is called in colloquial Arabic a ṭâr.[10] From Ukhaiḍir the ground dropped gradually. After two hours’ riding (about six miles) we reached the khabrâ of Wizikh. A khabrâ is a hollow bottom where rain water lies and stagnates till it evaporates. The khabrâ of Wizikh, which was dry and sandy, appeared to stretch along the foot of the ṭâr, northward to Abû Dibs, and also southwards. My Arab guide, a sheikh of the Zaqârît, which is a sub-tribe of the Shammar, informed me that there were wells of brackish water in the khabrâ further to the south, the Biyâr Slâm. The khabrâ was about a fifth of a mile wide. At the further side we rode up the sandy gulleys of the ṭâr and in ten minutes reached a well, the Bir Sbai’i, the water of which was brackish but drinkable. From here to the Hindiyyeh there is no water of any kind. Another ten minutes brought us to the summit of the ṭâr, whence we could see Ukhaiḍir on the one hand and the tower of Mudjḍah on the other. The bearings here were as follows: Ukhaiḍir (south-east angle of the castle) 300°, Mudjḍah 97°, central point of the Djebel Ḍaba’ 244°. Mudjḍah is a solitary tower without any provision for the storage of water, or any ruins round it. I think it can have served no other purpose than that of a landmark on the line of the caravan track, which must have passed this way from the great city of Kûfah to the oasis of Shethâthâ, or ‘Ain al-Tamr, to give it its earlier name. From the top of the ṭâr to the modern Kerbelâ-Nedjef road the desert is absolutely flat and featureless, and we ourselves came near to losing our way across it. The existence of a former caravan track across this waste is assured by the ruined khân of ‘Aṭshân, half-way between Mudjḍah and the modern Khân Ḥamâd.

Such are the characteristics of the country round Ukhaiḍir. The ṭâr,{3} standing over the low ground of the khabrâ, bounds the view to the east; to the north-east, across the Wâdi al-Ubaiḍ, the gypsum hillocks lead down to the Ḥabbâniyyeh depression; to the north-west a few shallow desert wâdis cross the path to Shethâthâ; to south and west stretches the immense expanse of the Syrian desert, broken only by the small group of the Djebel Ḍaba’. It is, however, by no means certain that in the seventh and eighth centuries, that is to say, at the period during which it is probable that the palace was built, the local conditions were the same as they are at present. It is indeed likely that the Ḥabbâniyyeh depression contained at that time more water than it does now, that the lake of Abû Dibs stretched across a considerable part of it, and that its margin approached nearer to Ukhaiḍir. The scrub and reed round the edge of the lake would have given cover for water fowl, for boar and other wild animals, and the lords of Ukhaiḍir, when they went out to the chase, would have had an ample supply of game. Moreover the oasis of Shethâthâ was certainly a more important place then than it is at present, for all its 160,000 palm-trees.[11] There can be no doubt that it occupies the site of ‘Ain al-Tamr, famous in the days of the Persian kings[12]—that same oasis which Khâlid ibn al-Walîd took and sacked in the year A.H. 12. It is my belief that the Mohammadan invasion did not diminish its importance, and in proof I would adduce the evidence afforded by the khân of ‘Aṭshân and the landmark tower of Mudjḍah, showing that from Kûfah to ‘Ain al-Tamr there must have been a direct caravan road across the desert. Muqaddasi, writing in the year A.D. 985, describes ‘Ain al-Tamr as a little castle;[13] Yâqût, who mentions the name Shefâthâ as part of ‘Ain al-Tamr, praises its dry dates above those of other towns,[14] and to this day they maintain that honourable pre-eminence. Ukhaiḍir, then, with the marshy haunts of game a mile or two from its gates, and a much-frequented oasis three hours to the north, presented in the eighth century advantages which it no longer enjoys now that the waters have retreated to the confines of the modern Abû Dibs, and the traffic of Shethâthâ has shrunk to an occasional small caravan of merchant and citizen passing along the Kerbelâ track, or the visit of a ragged crew of Beduin date-buyers. Yet it is difficult to conjure up any picture but that of isolation when, after a weary struggle through sand or marsh, according to the season, the gaunt walls and towers{4} of the palace rear themselves out of the solitudes of the desert—in all that barren waste sole vestige of mortal energy, of the fleeting splendour of mankind. (Plate 6, Fig. 1).

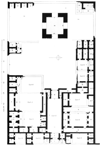
The palace consists of a quadrangular area bounded by a wall which measures 163·60 metres from east to west, and 175·80 metres from north to south (Map 2). It is almost exactly oriented. The wall is provided with round towers, projecting 2·70 metres from its face, and with a gate in the centre of each side. At the north-west angle, at a distance of 13·25 metres from the palace wall, a building consisting of fifteen vaulted rooms runs out due north. It has a length of 81·20 metres and a width of 11·45 metres. To the west of the six southerly chambers lies a rectangular court, 35·20 metres from north to south and 25·80 metres from east to west, with round towers like those of the main palace, projecting 2·75 metres. North-east of the palace there is a small irregularly-shaped building, known to the Arabs as the Ḥammâm, the bath. Its greatest length is 12·90 metres and its greatest width, including the rectangular buttresses, 8·65 metres. With the exception of the Ḥammâm, these edifices have been enclosed by a second stone wall, but this wall cannot have been a considerable structure, for at the only point where its width can be determined, north of the palace, it is but 1 metre thick. Its present aspect is that of a low mound of sand, and in places even this mound is by no means clearly to be traced. Owing to the very fragmentary character of the northern line of the outer wall, it is not possible to fix the position of the north gate, though there can be little doubt that a gate existed opposite the north gate of the palace, at a distance of about seventy paces from it. South of the Ḥammâm the wall is easier to make out. It runs parallel to the east wall of the palace, and is broken by a gateway opposite the eastern palace gate. At intervals large heaps of stones seem to indicate the presence of towers. Two hundred and thirty paces to the south of the palace, this outer towered wall turns to the west and runs parallel to the south wall of the palace. Traces of a gate can be seen opposite the south gate of the palace. From the south-west angle of the palace wall a second low sandy mound runs down to join the outer wall, and immediately to the west of this division wall there had been another gate in the outer wall, which then ran on westward for two hundred paces. The west wall is not exactly parallel to the palace; it was broken by a gate opposite the west gate of the palace. The north-west angle of the outer wall is very nearly obliterated. It turns off eastward almost at right angles and joins an inner dividing wall which comes up from a point about twenty paces west of the north-west tower of the palace, and seems to have been connected with that tower by a cross-wall. At the point of junction between this dividing wall and the outer wall, a mound runs out north-west for a great distance into the desert. I did not follow it, but from the top of the palace its course can be traced for more than a mile. The northern outer wall then turns slightly to{5} the south of east and passes close to the south-east corner of the detached northern building, beyond which point it is almost obliterated. Between the Ḥammâm and the north-east angle of the outer wall there are some low sandy mounds wherein the Arabs say that they have dug and found brackish water.

When I first visited Ukhaiḍir in March 1909 it was occupied by Arabs from Djôf in Nedjd who were anxious to establish themselves there permanently. To this end they wished to receive official recognition from the Government, and they proposed to earn a livelihood by supplying Baghdâd with camels bought from the tribes of the Syrian and Arabian deserts. When I returned in 1911 they were gone, and Sheikh Ṣukhail, of the Zaqârît, who was camped under the walls, could give me no account of their departure, except that it had taken place some months previously. Possibly they found Ukhaiḍir an unsatisfactory centre for commercial enterprise, and there can be no question but that their project would have been ill looked upon by the Beduin, who regard the sweet waters of the Wâdi al-Ubaiḍ as their peculiar property. Whatever may have driven them forth, the Djôfîyîn had left no memorial of their residence save heaps of filth and refuse in the halls and courts of the palace, new stonework round the well in the Wâdi al-Ubaiḍ, a meagre plantation of half-withered palm-shoots close by it, and evidences of an equally unsuccessful attempt to establish a few palm-trees within the palace walls near the west gate, where there is a small deep well of brackish water. And we, finding Ukhaiḍir untenanted, took possession of it and pitched our tents in the central court.

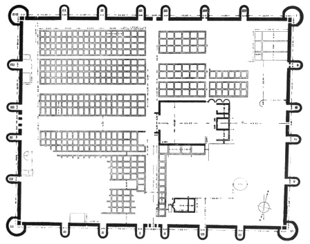
The towered wall of the palace encloses a yard and a quadrangular block of building which covers an area measuring 111·40 metres from north to south and 68·50 metres from east to west (Plate 1). On three sides of this block, rounded towers project 1·75 metres from the face of the wall, while the north side is connected with the main wall. The northern part of the building is three stories high, the upper story being on a level with the chemin de ronde which runs round the main wall. The rest of the building, 73·95 metres from north to south, is one story high. The palace yard runs round three sides of the building. To the west and south it is unoccupied by any structure; north of the west gate lies a well of brackish water, and it was there that the Djôfîyîn had planted their palm-shoots. This well I believe to be modern; it bears no mark of antiquity. To the east, north of the east gate, the yard is blocked by an edifice, a single story high, the chambers of which are numbered on the plan 140-152. It is a later addition, as will be seen, to the original scheme of the palace.

The main wall consists of a core of masonry 2·60 metres thick, rising about 10 metres above the present level of the ground (section e-f, Plate 5, Fig. 1). It is difficult to get absolutely accurate measurements of height as the surface-level varies slightly according to the depth of ruin strewn over it. Blind arcades on the interior and on the exterior carry the chemin de ronde. On the interior, pilasters 1 metre deep are united by arches very slightly pointed (Plate 7,{6} Fig. 1). The pilasters are without capital or impost, the arches springing directly from them. The arches rise to a height of 8·50 metres, and their span averages on the east wall a little under 3·85 metres, while the width of the pilasters averages 1·55 metres. The arches are composed of two rings of stone voussoirs, the inner ring laid vertically; i.e. with the broadside showing, the outer ring laid horizontally, with the narrow end showing. Dr. Reuther notices that in some instances the horizontal outer ring is lacking. The walls and pilasters, like all the walls of Ukhaiḍir, are built of thin irregular slabs of stone, very roughly coursed, with a binding course laid through them at intervals. In or above the binding courses are holes for wooden beams. There are four such holes in each pilaster and one in the spandrel between the arches. In the back wall of each arcade there are three holes up the centre, and two level with the springing of the arch. Similar holes for beams occur in all the walls of Ukhaiḍir. At a height of 1·50 metres above the level of the arches, the wall is set back ·40 metre and broken by windows, 11·80 metres above the ground, and 1·80 metres above the floor of the chemin de ronde. As the authors of Ocheïdir have observed, these windows cannot have served any purpose of defence, since they are so high above the floor. There was thus no means of attacking from the wall a foe who had penetrated into the palace yard. Between each pair of windows, shallow pilasters, corresponding to the pilasters below, are carried up to the top of the wall. There are holes for beams between the window arches on wall and pilaster, and also directly above, along the top of the wall. On the exterior there is again a blind arcade 1 metre deep, consisting of two round arches between each tower (Plate 7, Fig. 2). The towers have a projection of 2·75 metres beyond the face of the arcade. The exterior arches bear no relation to the arches of the interior arcade. Two arches, with an average span of 3·85 metres, separated by a pilaster 1·60 metres wide, stand between each of the piers, 4·10 metres wide, against which the three-quarter round towers are placed. There are five of these towers between gateway and angle tower. They have a diameter of 3·30 metres, whereas the angle towers have a diameter of 5·10 metres. The holes for beams appear as on the inner side of the wall, but they do not correspond with the interior holes. As in the interior arcade, the outer arches are slightly pointed and spring directly from the pilasters. The top of the exterior arches is ·30 metre above the level of the floor of the chemin de ronde. The chemin de ronde does not occupy the whole width of the core of the wall (Plate 3, Fig. 2). The passage is 1·90 metres wide. On the inner side, the wall is 1 metre thick and broken by the above-mentioned windows looking into the yard; on the outer side there is a series of recesses covered by ovoid arches. Each recess, 1·45 metres wide and ·40 metre deep, contains either a loophole window or a door. The loopholes, of which there are four between each tower, open on to the exterior of the palace and command a wide view of the desert. They are ·65 metre wide on the inside and narrow outwards to ·20 metre. On the inside they are covered by a lintel with{7} an arched niche above it, on the outside they have a triangular head with a single upright stone placed within it, supporting the side stones of the triangle, and a small inverted triangular aperture above (Plate 8, Fig. 3 and Plate 10, Fig. 2). Each window recess is machicolated, there being an interval of ·20 metre between the outer edge of the floor of the recess (which corresponds with the outer face of the core of the wall) and the inner side of the arches of the exterior arcade. Through this gap an enemy standing at the foot of the wall could be attacked. Every fifth recess contains a door, ·75 metre wide, which gave access to a small round chamber hollowed out of the thickness of the tower. In the whole circuit of the wall not one of these tower chambers is intact, but enough remains to determine their construction (Plate 8, Fig. 2). Each chamber was covered by an ovoid dome, in the masonry of which there are traces of flat ribs. There was a loophole in the walls on either side, from which the defenders could cover the curtain wall between tower and tower, and it is reasonable to suppose that there must have been a third loophole fronting the desert. The loopholes were constructed in the manner already described. It seems probable that the towers exceeded the curtain walls in height; many of the towers show fragments of masonry higher than the present summit of the walls. The angle towers rose a story above the chemin de ronde and contained a second round chamber above the chamber on the level of the chemin de ronde. Traces of this second chamber remain in the north-east and in the south-west towers (Plate 8, Fig. 1). A stair was placed in each of the four angles of the castle yard (Plate 7, Fig. 1). The stairs, which were vaulted in a manner which will be described later (below p. 16), wound twice round the newel post before they reached the gallery of the chemin de ronde, and thereafter rose one story higher in order to reach the summit of the wall, and the upper chamber of the angle towers. It is probable that the summit of the wall was given a crenellated parapet in order to protect those who walked along it. Nor was it only from the angles of the yard that the chemin de ronde could be approached. It was accessible from the top story of the palace and also by means of stairs which were situated on either side of the east, south and west gates. None of these gates are well preserved and in no case have the stairs escaped ruin, but the mark of the stair can be seen clearly on the inner face of the wall (Plate 9, Fig. 1). The three gateways are all alike (section g-h, Plate 5, Fig. 2). They are flanked on the exterior by segments of towers (Plate 9, Fig. 2). The outer archway, which contained the door, has in every case been blocked up by the Beduin; it is therefore impossible to tell its exact depth, though its width, 2·10 metres, can be determined. I omitted to note the portcullis of which the authors of Ocheïdir found traces outside the door.[15] An inner arched niche, 1·45 metres long by 2·50 metres wide, is visible from the interior, together with a portion of the{8} chamber into which it led. This chamber was 6·30 metres long by 3·10 metres wide, and was covered by a pointed barrel vault oversailing the face of the walls. Over the doorway on the inside, there is an arched niche which communicated with the arch of the outer gate by a rectangular funnel. It is impossible to imagine what can have been the purpose of this funnel, which connected the bottom of the niche with the top of the arch, unless it were meant to receive the bolt of the door, but I do not think that even this explanation will hold. The authors of Ocheïdir observed a similar communication between every niche placed over a doorway and the arch below it. The construction is made clear in their admirable drawing (Ocheïdir, Fig. 19). They offer no conclusion as to its purpose, but since it occurs in archways which show no sign of having contained a door, the idea that it was meant to provide space for a bolt cannot be maintained. The inner wall of the gate-house, which has in every case fallen, projected into the palace yard 3·50 metres from the face of the inner pilasters of the enclosing wall. Besides the vaulted passage or chamber in the centre, it comprised the above-mentioned staircases. I detected traces of a door between the gate-room and the staircase on either side. The stair wound once round the rectangular newel post and reached a chamber on the first floor, above the gate-room. The doors of communication between the stair and this chamber are not preserved. The chamber is unusually low, 3·30 metres from the floor to the top of the vault. It is provided with a large window, 2·50 metres high, in the outer wall, opening on to the desert. The stair turned once more round the newel post and led into the chemin de ronde, with which the upper chamber of the gate-house communicated by doorways. The vaulting construction of the south gateway, which is the best preserved (Plate 9, Fig. 1), shows that the vault of the upper story must have cut across the vaults of the passage, from which it was separated by transverse arches. A big window in the outer wall opens down to the floor of the chamber and the learned authors of Ocheïdir place here, no doubt correctly, a hourd projecting from the wall over the doorway below. There are small rectangular domed chambers in the towers on either side of the gate, the domes being set over the angles of the square on horizontal brackets. The gate-house was probably carried up, like the angle towers, a story higher, and the stairs must have communicated with the upper story, to judge by the evidence afforded by the south gate-house. On the north façade, and there only, the summit of the wall was given a decoration consisting of a row of arched niches carried by small engaged columns (Plate 8, Fig. 3). The authors of Ocheïdir describe these arches as horse-shoed; they seemed to me to be merely slightly stilted and adorned with a double fillet. Below the niches runs a band of lozenges. Between each niche is set a larger engaged column, and these columns appear to have been carried up higher than the arches and in all probability bore an architrave, thus forming a rectangular frame to each niche, but the exact nature of the decoration here is uncertain, since the wall{9} has broken away. The chemin de ronde was covered by a pointed stone vault, most of which has fallen in (Plate 10, Fig. 1). Like all the vaults of Ukhaiḍir it oversails the face of the wall. The lower part is built of horizontal courses, while in the upper part the stone slabs are laid in vertical rings so as to dispense with centering, and this is the construction in all the vaults of the palace. At the springing of the vault a wooden beam crossed the passage from wall to wall. The holes for these beams are visible, and in some places a splintered fragment of wood projects from the masonry. At the angles of the passage the vaults from either side come together in a simple diagonal section, i.e. there was no intersection of the vaults.

The principal entrance of the palace is the north gate (Plate 11, Fig. 1). Before the door there is an artificial platform thirty-two paces from north to south by eighty-seven paces from east to west. The door is placed in a rectangular tower, 15·70 metres wide, which projects 5·10 metres from the face of the wall, 2·40 metres from the face of the towers. Between the west side of the gate-tower and the first of the western round towers is stretched a vault 2·50 metres in depth (Plate 11, Fig. 2). Upon this vault rests a small platform, immediately below the loopholes of the chemin de ronde, at the level of the second story. On the east side of the gate-tower there are traces of a similar vault, but this must have fallen at a period when the palace was still inhabited, since the place which it occupied upon the wall has been carefully plastered over. The pointed arch over the north door is a later reconstruction. The door leads into a narrow room, No. 1, 5·95 metres by 3 metres, from which there is access to rooms 2 and 3. These rooms are irregular in shape, unlighted, and built over vaults which are now filled with débris. The authors of Ocheïdir suggest that they may have gone down to the water-level. I doubt it. The water-level in the palace yard is considerably deeper than these vaults are likely to have been, and the water there is too brackish to drink. It is more likely that these subterranean chambers were dungeons. The vault over room 1 is not continuous. It is composed of a series of seven transverse arches, ·65 metre wide, separated by spaces ·20 metre wide (Plate 12, Fig. 1). These apertures enabled the occupants of room 88, on the first floor, to pour boiling liquids on any foe who had passed through the door. Room 1 is bounded to the south by an arched doorway, oversailing the wall, as is the case with all wide arched openings at Ukhaiḍir, beyond which lies the smaller chamber No. 4, 4·15 metres long by 3·10 wide. A transverse arch cuts off 1·05 metres of this space, leaving a square of 3·10 metres to be covered by a fluted dome (Plate 13, Fig. 1).[16] The remaining three sides of the chamber are broken by pointed archways which give access to{10} the great hall (No. 7), and to the passages Nos. 5 and 6. The fluted circle of the dome is set upon a fillet which has a projection of about 1 centimetre from the face of the wall below (Plate 13, Fig. 2). The circle is accommodated to the square by a course of stones forming at each corner a flat triangular bracket, rounded upon the inner side. The upper part of the dome is much ruined. The curve must have been ovoid and it is probable that an aperture was left at the summit, since the dome, if closed, would have projected considerably above the floor level of room 88. The hole in the upper floor, like the slits in the roof of room 1, would have served for purposes of attack when the enemy had forced an entrance.

The authors of Ocheïdir have pointed out that the original scheme of the castle did not include the present north door, nor yet the massive enclosing wall with its towers and gates. As it was first planned, the north door stood well within the existing entrance, between two segments of towers. A part of these towers is visible in rooms 2 and 3. But when the walls had been raised about 2·80 metres from the ground, the plan was altered and the outer wall and north door added to it. The north palace wall, with its round towers and gateway, was then incorporated in the larger outer wall. A glance at Dr. Reuther’s plan will show how this was effected (Fig. 1). Although the alteration took place while building was in progress and does not denote a later period of construction, it is yet of importance, as I shall have occasion to show later.

On the first floor the gate-tower is occupied by three vaulted chambers, 88, 89, and 90. The central room, 88, is 4·50 metres wide and therefore wider by 1·50 metres than the passage room, 1, below it. Consequently the slits between the transverse arches of 1 do not take up the whole width of 88, but leave a passage along the wall on either side. The chamber is low, measuring only 3·55 metres to the top of the vault. The vault oversails the wall; the lower part is composed of stones laid horizontally, the upper part of stones laid in vertical rings, with an inclination backwards against the north wall. At the southern end a space between the vertical rings and the south wall is filled in with horizontal courses (Plate 12, Fig. 2). The arches of the side doors break into the vault. In the north wall there is a large window, the upper part of which has fallen away, though some of the lower part remains. It is slightly recessed on the exterior (Plate 11, Fig. 2), and Dr. Reuther gives the explanation of this recess. It contained the groove of the portcullis, which has been obliterated below owing to the rebuilding of the north door at a later period. In the south wall of room 88 there are three arched windows opening into the great hall. The central window is the largest; in all three the arch is surmounted by a shallow arched niche. The narrow vaulted rooms 89 and 90 are approached by round-arched doorways and lighted only by very small windows high up in the north wall. In room 89 there is a staircase leading up to the second floor. Rooms 89 and 90 open into long corridors corresponding in width with the corridors 5 and 6.{11}

Fig. 1. North wall of palace, showing original scheme. (From Ocheïdir, by kind permission of Dr. Reuther.)

{12}

Fig. 2. Arch construction. (From Ocheïdir, by kind permission of Dr. Reuther.)

The great hall, to the south of room 4, is the largest chamber in the palace. It is 15·50 metres long by 7 metres wide, but its width is increased on either side by arched recesses 1·40 metres deep and from 2·20 metres to 2·30 metres wide (Plate 14, Fig. 1). These recesses, five on either side, are separated from one another by squat engaged columns set against piers which are ·80 metre deep. The columns carry rectangular impost-capitals from which spring the shallow slightly pointed semi-domes, or calottes, which cover the recesses. The capitals are very roughly constructed of small stones. There are traces of a shallow abacus, while a cavetto moulded in plaster seems to have been interposed between capital and shaft. At the corners a triangular stone adjusted the circle of the column to the square of the abacus, and the whole was no doubt covered with plaster. The abacus projection runs back along the walls of the niche and above it the calotte springs from another small projection (Plate 15, Figs. 1 and 2). The calottes are bracketed over the angles, the construction being the same as that described in the dome of room 4. All the niches of Ukhaiḍir are treated in like fashion. The method employed in constructing the archivolts is admirably described by Dr. Reuther.[17] The face of the arch is formed by a permanent centering composed of gypsum and reeds. The vaulting takes place, not above the centering but between the two centering arches, the vault being built in vertical rings (Fig. 2). When the arches are of wide span an outer ring of horizontal voussoirs is added to the inner arch. This system is common in Mesopotamia to the present day, and is found frequently at Ukhaiḍir. In the great hall there are holes for wooden beams below the abacus of the capitals and in the spandrels of the arches. The northern recess on the east side is open and gives access to a ramp which leads to the first floor. The second, third, and{13} fifth recesses contain low doors covered by a segmental arch. On the west side similar doors are set in the first, third, fourth, and fifth recesses, the last named giving access to a stair (Plate 15, Fig. 2). The calotte archivolts at their highest point are 3·50 metres above the present level of the floor. The wall is carried up for another 1·25 metres, where there is a double outset from its face. Above this outset the stone vault runs up perpendicularly for about ·80 metre and the remainder of the vault is of brick (Plate 14, Fig. 2). For a height of about 1·50 metres the brick tiles are laid horizontally, but when the curve of the vault increases the bricks are set upright in vertical rings. The vault thus formed is built without centering; it has a slightly pointed, ovoid shape and is much stilted. The north wall remains intact and its scheme of decoration is instructive (Plate 16, Fig. 1). The arched door, 3·50 metres high, is set back within a niche 1 metre deep. About ·90 metre above the arch of the door stands a very shallow calotte covering the niche. The face of the calotte is recessed, which enhances its decorative value by giving it a double outline. As Dr. Reuther has observed,[18] the calotte is not ‘the segment of a pointed dome, but its curve in horizontal section springs sharply back from the face of the archivolt and flattens rapidly behind. Thereby the effect of the shadow is strongly felt at the edge, and the calotte seems to be deeper and more markedly vaulted than it is in reality’. At the base of the calotte there is a small niche which has been broken through owing to the partial ruin of the dome behind it.[19] In the wall on either side of the calotte there is a shallow arched niche. The arch is carried on pairs of engaged columns and is enclosed in a rectangular label. Above the calotte are the three windows of the first floor room, 88, covered by segmental arches. The windows are framed by engaged columns which carry stilted round-arched calottes. The south wall of the great hall is partly ruined. The doorway seems to have been of the same proportions as the door in the north wall, but it was not set back within a niche. The small decorative niches reappear on either side, and there were probably three windows opening into room 101 in the upper story, indeed on the west side the window jamb can still be seen. Even with these windows the great hall must have been most insufficiently lighted, since neither its doors nor its windows open directly on to the exterior of the building. To the south lay the small rectangular chamber, No. 27, which was probably, as Dr. Reuther suggests, covered by a dome similar to the dome of No. 4. It opens to east and west into the vaulted corridor 28, and on the south into the central court.

Holes for wooden beams can be seen on the north wall of the great hall, two on either side of the portal niche, one on either side of the shallow decorative niches, and one on either side of the group of windows. On the south wall they have been somewhat differently disposed, one on either side of the door{14} at the level of the arch, one almost immediately above, higher than the top of the arch, and three higher up still, following the curve of the vault (Plate 14, Fig. 2).

The masses of masonry on either side of the vault are lightened by the tubes which are characteristic of the vaulting system of Ukhaiḍir (section a-b, Plate 4, Fig. 1). One of these tubes pierces the wall on either side, partly above the calottes of the recesses. On the east side the opening of this tube can be seen high up in the wall of the corridor 28; on the west side the tube is not visible owing to the interposition of a stair behind the corridor, but there can be no doubt that it exists. Again towards the top of the vault there is another pair of tubes. The western of these two can be seen through a breach in the wall of the stair which leads from room 89 to the second floor; I infer its eastern counterpart. The vault of the great hall is buttressed by the vaults of the chambers of the ground floor and of the first floor which lie at right angles to it.

The wings of the three-storied block, of which the great hall forms the centre, are bounded to the north by the two vaulted corridors 5 and 6 (Plate 17, Fig. 1), the western corridor, 5, being 34 metres long, and the eastern, 6, 34·90 metres long. The vaults are constructed in the usual fashion, oversailing the wall and built of thin slabs of stone, laid vertically in concentric, slightly pointed rings. The corridors lead into the palace yard. The door of the west corridor is much ruined. The door of the east corridor is set in a niche surmounted by a shallow calotte, of which the archivolt is slightly pointed. Below the calotte, between it and the arch of the door, is a second small arched niche, connected by the usual funnel with the top of the door arch. The calotte is outlined by a singular decoration composed of a crenellated motive.[20] The crenellated motive is common in the ornament of Ukhaiḍir and elsewhere, but I am not acquainted with any other example of its application to the archivolt.

To the south of the east corridor runs a vaulted ramp, a sloping passage from the great hall to the first floor. To the south of the ramp lie two groups of three vaulted chambers. In the inner group, Nos. 12, 13, and 14, the rooms are 7 metres long with an average width of 3·50 metres. They are separated from each other by walls 1 metre thick, and communicate with each other by doors covered by ovoid arches set back from the jambs. Each room possesses a door into the great hall, but since the position of these doors is determined by that of the recesses in the hall, which do not correspond with the rooms behind them, the doors are never in the centre of the rooms, and in one case, No. 13, the side wall is narrowed to allow space for the door. The wall which separates the rooms from the recesses of the great hall is 1·50 metres thick. A door at the east end of each room leads into the corresponding room of the{15} second group. In this group the rooms 15, 16, and 17, while they have the same width as those of the first group, are considerably shorter, measuring only 4·80 metres. They communicate with each other and with the vaulted passage, 20. Room 17 has further a door in the north wall, which leads into the small vaulted room, No. 18, and this in turn is connected with a still smaller room, No. 19. Nos. 18 and 19 lie under the ramp, and No. 19 is in consequence extremely low. None of the chambers above described are provided with windows; what light they possess filters in through the doors. Nos. 12, 13, and 14 are therefore exceedingly dark, and must have been darker still when the south wall of the great hall was intact. Nos. 18 and 19 are totally unillumined, and for this reason, and on account of the inconvenience of their low vaults, it may be presumed that they were not used for dwelling purposes.

Fig. 3. Arch construction. (From Ocheïdir, by kind permission of Dr. Reuther.)

The arches of the doorways in these rooms, and in all other small doorways in the palace, are constructed in a manner different from that which has been detailed above. Again I borrow the description from Dr. Reuther. A wooden centering has been placed upon the jambs; over this centering was laid a band of gypsum mortar and small stones, irregularly bedded, which, when it hardened, formed an inner arch of concrete (Fig. 3). When the span was narrow no other arch was considered necessary. When it was wider an outer arch of voussoirs laid horizontally encompassed the inner concrete arch. Not infrequently, besides the wooden centering, a permanent centering of mortar and reed was placed on either face of the concrete arch. When the wooden centering was removed the concrete arch remained, set back from the jambs, whereas in all the wide archways, such as those of room 4, the arch follows the principle of the vault and oversails the wall.

The passage, No. 20, which is 12·25 metres long by 2·80 metres wide, communicates by a door at its northern end with the small unlighted room, No. 21. The construction here is of interest (Plate 17, Fig. 2). The passage is finished by a shallow pointed calotte, standing out from the face of the wall and spanning the angles in the usual fashion with a horizontal masonry bracket. Below it,{16} but not in the centre of the passage, is the small doorway, which is covered by a masonry lintel. The passage opens on to court A through an arcade of two pointed arches. The arches spring from engaged columns and from a squat masonry column placed between them. The rough capital and engaged capitals, from which the stucco has disappeared, are constructed in the same way as the engaged capitals in the great hall. On the opposite side of the court there was once a similar arcade of two arches which has now fallen; indeed, the arcade of No. 20 is the only free-standing arcade which remains intact in the whole palace, with the exception of those in rooms 33 and 40. Court A, 10·70 metres by 6·25 metres, communicates with corridor 6 by a vaulted passage, 1·90 metres wide and 4·25 metres high, leading to an arched doorway 1·60 metres wide and 2·55 metres high. East of this passage lies a vaulted room, No. 26, the door of which stands in the ruined cloister, No. 25. Room 26 is lighted by two small windows in the south wall, opening on to the court, and by a window-slit in the east wall, opening on to the palace yard. To the south of court A lie three chambers, Nos. 22, 23, and 24, which have a width varying from 4·05 metres to 3·85 metres and a length of 5 metres. They communicate with each other and with the court, added to which No. 22 possesses a third door leading into No. 20, and No. 24 a third door leading into No. 25. For the door leading from No. 24 into court A space has been provided by removing a section of the dividing wall between Nos. 23 and 24.

The arrangement of the west wing of the three-storied block is dissimilar from that of the east wing. Three chambers, 8, 9, and 10, lie to the west of the great hall. They have an average width of 3·70 metres, but in length they are only 5·75 metres. They are lighted by small windows high up in the west wall. They communicate with one another by doors covered with ovoid arches set back from the jambs, and with the great hall by small doors in the recesses. The vaults are pointed and oversail the walls. South of No. 10, a stair leads up from the southernmost doorway in the great hall to the first floor. The vault over this stair, of which I give a photograph (Plate 16, Fig. 2), will serve to illustrate the construction of all vaults at Ukhaiḍir over an inclined plane. They are built in horizontal sections, which form inverted steps; an unbroken rising vault is not to be found in the palace. To the east of this group of rooms with its stair is the cloistered court which I suggested, after my first visit, might be a mosque.[21] The suggestion has been borne out by the discovery of an arched niche in the south wall, which I believe to be the miḥrâb.[22]

{17} The mosque (since I may now give it this title without hesitation) is approached by two doorways from the west corridor, 5. These doorways lead into an open rectangular court, the ṣaḥn, 10·30 metres from north to south by 16 metres from east to west. To east, south, and west of the court ran porticoes, or riwâqs, to use their Arabic name, which have now fallen (Plate 18, Fig. 1). The engaged columns on the north side and the south-east angle pier are, however, standing, and they determine the width of the riwâqs. The southern riwâq was the widest (4·05 metres), and this is the portion of the mosque which is known as the ḥaram. The east and west riwâqs are alike 3 metres wide. The arcades, which separate the riwâqs from the ṣaḥn, occupy a space 1 metre thick. On the west side the arcade is entirely ruined, but on the east side part of the arches at either end are still to be seen (Plate 19, Figs. 1 and 2). From these fragments it is apparent that there must have been three arches on the east and west sides, while approximately similar proportions would allow five arches on the south side. (The span of the south arches must have been about ·30 metre less than the span of the east and west arches.) The north end of the east and west vaults rested against the north wall, the south end against a transverse arch, in order to avoid intersection with the vault of the ḥaram. The east vault, which is best preserved, is a slightly pointed ovoid and oversails the east wall. Below the spring of the vault can be seen the windows of rooms 8 and 9; the window of room 10 opens into the ḥaram. Immediately above the springing of the vault there are three holes for cross beams, the decay of which has entailed the ruin of the vault. The fallen masses of masonry columns and vault form heaps of débris on all three sides of the court. At the eastern end of the ḥaram there is a low door, almost blocked by ruin heaps, which gives access to a narrow blind passage situated under the stair. The vault of the ḥaram has received an elaborate decoration in stucco. It was divided into sections by nine transverse arches, 1 metre wide. They cannot have had any correspondence with the columns and arches of the arcade, nor was this necessary, for they sprang from above the line of the vault and therefore from above the summit of the arches of the arcade. The transverse arches were decorated with lozenges (wards as they would be called in modern Arabic) having a zigzag outline (Plate 18, Fig. 1). In the centre of each lozenge there was a round hole, or rosette, recessed back in concentric circles. Between the transverse arches{18} the vault was worked in parallel bars of stucco, the one oversailing the other. The bars begin at a distance of about ·80 metre above the spring of the vault. It is evident that this vault must have been constructed over a light centering, and Dr. Reuther is of opinion that the singular ridged decoration was suggested by the impression left by the centering boards upon the plaster.[23] The top of the vault was probably treated as in room 31, where a decoration similar to that of the ḥaram is more fully preserved. Holes for cross-beams break the fourth and fifth stucco ridge between each transverse arch. Between the terminal transverse arches and the wall at either end of the ḥaram there is a space 1·60 metres long. It is divided into two quarter-domes by a transverse arch which springs from the back wall, at right angles to the transverse arches of the vault. This arch is decorated in exactly the same manner as the others and must have joined the first transverse arch at either end, at the summit of the vault. The quarter-domes are covered with stucco ornament. At the east end (Plate 20, Fig. 1) a fluted squinch occupies the two angles; on either side of it are two shallow calottes. Three concentrically recessed rosettes are set above each of the calottes, and there is a like motive in the apex of the calotte. Above the squinch and calottes there is a band of four isolated crenellations, the same motive which appears on the archivolt over the doors of corridors 5 and 6. Above the crenellations are vestiges of a decorated band, and above the band the apex of the quarter-dome is fluted. At the west end there is a slight variation in the proportions and in the motives of the lower register of the quarter-domes (Plate 20, Fig. 2). The squinch, instead of being fluted, is decorated with three concentric bands, sunk one within the other. At its base lies one of the usual concentric rosettes. The same rosette is placed on either side of each calotte and within the calotte, the rosette above the calotte being omitted. The crenellated motive of the east end is repeated at the west end, but the band between the crenellations and the flutes of the quarter-domes is omitted.

The miḥrâb niche is not placed exactly in the centre of the south wall, but a few centimetres to the east (Plate 18, Fig. 2). If there was any stucco ornament upon it, it was all carried away by the fall of the vault. The semi-dome which covers it is set over the rectangular niche on horizontal brackets of masonry, like all other semi-domes and calottes in the palace. The archivolt is constructed of a double ring of voussoirs, the inner ring laid vertically, the outer horizontally. There is no reason to doubt that the miḥrâb is contemporary with the wall. The plaster which remains upon the interior of the semi-dome shows no sign of decoration. Below the semi-dome the face of the walls of the niche is much injured by the heavy masses of fallen masonry.

The angle pier which took the corner arches of the ḥaram and the east arcade{19} shows, on the sides facing the arcades, returns in the shape of engaged columns. A third return is rectangular and corresponds with a return on the east wall, the two carrying the transverse arch which terminates the eastern vault. In the fragment of this vault which is standing the principles of construction can be discerned unusually well (Plate 19). The vault is built of thin slabs of stone, laid in rings, with a marked inclination against the northern head wall. At the southern end these rings fan out so as to meet the transverse arch.

One more detail remains to be noticed. The two doors from the west corridor, 5, stand in recesses 1 metre deep. The recesses are covered by a calotte, and round the archivolt is placed a stucco decoration consisting of seven cusps (Plate 21, Fig. 1).

The first floor of the north gate tower has already been described. The east door of room 90 communicates with the vaulted and unlighted room, 93. A thin dividing wall separates room 93 from room 94 (there is a small aperture like a window in this wall). Beyond another thin dividing wall lies room 95, with a window at its eastern end looking into the palace yard. These three rooms, 93, 94, and 95, occupy the space above the east corridor, 6. Room 107 is on a lower level; it is approached from 93 by a doorway with steps and is wholly unlighted. The group of rooms Nos. 103, 104, and 105 are on the same level as 107. They are 14·75 metres long and correspond in width with the rooms below them. At their western end they are provided with a masonry divan, 1·20 metres wide and raised ·55 metre above the level of the floor. The meaning of this divan is apparent in the section (section a-b, Plate 4, Fig. 1); it was needed in order to lift the floor of the three rooms above the vaulted tube which lies parallel to the vault of the great hall. The height of these rooms from the floor to the top of the vault is 4·20 metres. They communicate with each other and with the vaulted passage 108, and room 103 possesses further a door in the south wall leading into room 102. The latter returns to the level of rooms 93, 94, and 95, and consequently steps are placed in the doorway of 103.

At the north end of the passage 108 there is a door sunk below the level of the floor and covered by an arch oversailing the jambs (Plate 21, Fig. 2). It communicates with the ramp which comes up from the great hall. East of this door there are the remains of an engaged column, and it is obvious that the passage must have been flanked here by an open arcade (Plate 3, Fig. 1). Steps in the doorway at its southern end lead up to room 106, which is on the same level as 102. South of court A lie three rooms, 109, 110, and 111. They are not as deep as the rooms below them on the ground floor (4·40 metres as against 5 metres) since space has to be provided for a narrow ledge above court A. On to this ledge the north doors of the three rooms open. On the north side of court A the ramp, after passing the doorway of 108, is continued upwards (its windows can be seen in the wall of the court (Plate 22, Fig. 1)). A wide{20} doorway opens on to a stair, which will be described later, coming up from the palace yard. The ramp is then carried on along the east side of court A, and finally opens on to the roof of 111 and of the narrow passage to the east side of it. The last portion of the ramp is ruined, but traces of the vault which supported its floor can be seen in the east wall of court A, together with the spring of the vault with which it was roofed. Between the ramp and the vault of 25 there appears to have been a vaulted passage, very low at its northern end, and lighted by a rectangular window which overlooks the palace yard. It opened at the southern end, through a narrow vaulted way, on to the roof of No. 47.

The outer stair from the yard is a later addition (Plate 40, Fig. 1). The round tower at the northern end of the wall has been cut away to receive it, and it was supported further by four rectangular piers, two on either side of the tower, which were built up against the wall. These piers were not bonded into the wall, and the northernmost has entirely fallen away, but it can still be traced on the face of the masonry. The communication with the first floor was effected, as has been mentioned, by means of a door at the north-east angle of the ramp.

Room 106 occupies the vaulted space at the west end of 47 and has a door to the south opening on to the roof of 45. To the west a door leads into corridor 102, which lies above the eastern wing of corridor 28 (Plate 22, Fig. 2). It has a door to the south opening on to the roof, and is lighted by narrow windows in the south wall. West of 102 was the small room, 101, now ruined, and beyond it rooms 100 and 99 above the west wing of corridor 28. The height of these rooms on the first floor is only 3·55 metres to the top of the vault. No. 100 communicates by a door and steps with the stair leading up from the south-west corner of the great hall, and so with the first floor chambers of the west wing. These can be approached also from the west door of room 89, which opens into the passage room No. 92. In the south wall of 92 there is first a door and steps which lead down to No. 96, secondly a door giving access to the roof of the east riwâq of the mosque, and further west a narrow window which overlooks the ṣaḥn. There are two similar windows in the south wall of 91 and a door on to the roof of the west riwâq of the mosque. (The windows and the door of the west riwâq can be seen in Plate 23, Fig. 1.) At the western end of 91 a window opens on to the palace yard. Rooms 96, 97, and 98 lie above 8, 9, and 10. They are lighted by narrow windows in the west wall, which can be seen in Plate 19, Fig. 1. They communicate with each other by doors covered by ovoid arches set back from the jambs and breaking into the curve of the vault, and each has access through an arched opening in the east wall to a small room ·85 metre wide, lying at a higher level. The northernmost of these three small rooms lies under the stair leading from No. 89 to the second floor, and its vault slopes down at the northern end in order to leave space for the stair. No. 98 opens by a door on to the staircase from the great hall. At the west end{21} of the staircase there is a door leading out on to the roof of the ḥaram, and above it is placed a window. Both door and window can be seen in Plate 19, Fig. 1. Opposite to this door and window there is a large opening in the west wall of the great hall, doubtless in order to secure a little additional light in that dark edifice.

The stair and the ramp from the great hall were therefore the sole means of approaching the first floor until the outer stair from the yard was added. The second floor could be approached in a circuitous manner by the upper part of the ramp and over the roof of rooms 111, 110, and 109, or more directly by the stair leading out of room 89. But this stair could only be reached either by the ramp and through rooms 105, 107, 93, 90, 88, and 89, or by the stair out of the great hall and through rooms 98, 97, 96, 92, and 89. The second floor could also be reached from the yard, by the stairs in the north-east and north-west angles and thence along the chemin de ronde.

The rooms on the second floor do not correspond regularly with those of the floors below (Plate 3, Fig. 2). The second floor of the gate-tower is much ruined. It is possible that, as the authors of Ocheïdir suggest, it was originally divided into three chambers lying north and south. Parts of the south wall remain, and there is clear evidence of a door jamb near its eastern end. On the east side the doorways leading into 117 and into the chemin de ronde are standing, together with the south jamb of a doorway which undoubtedly gave access to the roof of the vault between the gate-tower and the first round tower. The door into the corresponding balcony on the west side is gone, the door of the western wing of the chemin de ronde is much ruined, but the door into No. 116 is still perfect. Neither of these walls, to east and to west, shows any trace of a vault; the vault, if vault there were, covering the gate-tower chambers must therefore have sprung much higher than the vaults of the adjoining chambers.[24]

To the west of 116 is a small room, 115, with a door into the chemin de ronde and a door into the open court, 114. A window in the south wall of this court overlooks the ṣaḥn of the mosque (Plate 23, Fig. 1). Still further west is a vaulted room, 113, presumably with a window looking out into the yard, but the west wall is much ruined. On the opposite side of the gate-tower, No. 117 opens into a small rectangular area, 118, where there is no sign of a roof; to the east of it lies an open space embracing the roofs of Nos. 94 and 95 together with a part{22} of 93. Here, too, there is no trace of a vault in the north wall, nor of any party walls. The series of rooms on either side of the gate-tower, occupying the area over the corridors on the ground floor and of the corresponding rooms on the first floor, are designated by Dr. Reuther casemates because they were connected with the chemin de ronde and probably played some part in the defence of the palace. In all of them the vaults, which oversail the walls in the usual fashion, are slightly flattened at the top.

A door in the south wall of No. 117 leads into an open court, 16·95 metres from east to west by 12·60 metres from north to south. It does not lie in the centre of the three-storied block, but extends considerably to the east of the central axis. The stair from the first floor reaches the second floor at the north-west angle of this court. The door into 119 opens awkwardly over the stair. On the east, south, and west sides of the court stand groups of three chambers, the central chamber opening into the court by a wide archway springing from engaged columns, the side chambers by doors covered by ovoid arches set back from the jambs (Plate 23, Fig. 2); and here we have an architectural group which dominates all the courts upon the ground floor of the palace that are yet to be described. The central chamber with its wide archway is the lîwân or reception-room,[25] the side chambers are, in one form or another, its invariable or almost invariable complement. I shall henceforward speak of the whole as a lîwân group. As Dr. Reuther has pointed out, the occupants of an oriental room seat themselves upon cushions or dîwâns against the wall, the dîwân, cushion or carpet, which is placed against the back wall, being the place of honour. In order not to break up the company, the side doors of every room are situated as far as possible from the back wall, and it will be noticed that this rule holds good in every living-room of the palace. At Ukhaiḍir (though this is not always the case) in every lîwân group the rooms communicate with each other. It is common in oriental houses to build lîwâns facing different points of the compass so as to secure a comfortable shade at different hours of the day, and warmth or coolness at different seasons of the year. The lîwân group, if such it were, over the gate-tower would have served the purpose of a winter reception-room, for it faced south; the group facing north would be used in summer.

In the lîwân group on the west side of the court the rooms are 5·95 metres long with an average width of 4 metres. The vaults here are all standing, and the rooms are considerably higher than those on the first floor, measuring 5·25 metres to the top of the vault. (It is difficult to get exact measurements for the height of the rooms on the ground floor owing to irregularities in the level of the ground, but I think that a height of 5 metres to the top of the vault is not far wrong.) Between the parallel barrel vaults are masonry tubes, which are{23} visible upon the façade in the form of small openings like windows between the arches of the central and of the side rooms. To the south of No. 121 there is a small open court, 123, which is approached by a narrow passage from the main court. A door from it leads into No. 122, which is completely ruined. On the north side of the court, 123, there was a stair which gave access to the flat roof of Nos. 121, 120, and 119. On the north side of 119 a fragment of wall rises above the level of the roof; it was probably connected with the high vault of the gate-house chambers. In the lîwân group on the south side of the court, the rooms, 124, 125, and 126, are 7 metres long, but their exact width is difficult to determine since the party walls have fallen (Plate 24, Fig. 1). It must, however, have averaged about 4 metres like the width of the rooms on the west side. On the east side of the court a vaulted passage runs parallel to 137; the door into the court is standing and its arch oversails the jambs, whereas the arches of all the other doors are set back (Plate 24). Above the door there is a narrow window. A lîwân group follows to the south of the passage (Plate 24, Figs. 1 and 2). The rooms are 7·45 metres long; their width varies, as far as I could ascertain in their ruined condition. According to my estimates No. 132 is 2·85 metres wide, No. 131 is 3·95 metres wide, and No. 130 is 4 metres wide. Still further south there is a small open court, No. 127, corresponding to No. 123. A door in the south wall opens on to a narrow parapet or balcony which crowns the façade of the first floor. To the east lies an irregular chamber, 128, which is totally ruined.

The passage, 137, leads into a gallery, No. 134, which was finished on the east side by an open arcade (Plate 25, Fig. 1). Traces of an engaged column remain at the north end of the arcade, and the vault was constructed with transverse arches in the same manner as the vaults round the ṣaḥn of the mosque. There was, however, no stucco decoration in this upper gallery. At the angles stood quarter-domes over unadorned squinch arches (Plate 25, Fig. 2). The gallery opens at its south-eastern end on to the roof of No. 109. To the south of the gallery there are two narrow chambers, one with a door into the gallery, the other with a door on to the roof of 109. They are almost completely ruined. Dr. Reuther places in them a stair leading by a double flight on to the roof.

The main part of the palace, one story high, lies to the south of the three-storied block. Except for a group of rooms in the east side of the yard, which is a later addition, it is symmetrically arranged round a central court. It falls into three divisions: two courts, B and C, with their living-rooms on the east side; two exactly similar courts, G and H, on the west side; a central court with a group of chambers to the south of it, and further south a small court, E, with rooms on three sides of it, and a subsidiary court, D, further east. The long vaulted corridor, 28, which runs from east to west between the great hall and the central court, turns at right angles and runs from north to south between the central court with its chambers and the side wings. It is then carried round{24} to the south of the chambers dependent on the central court, and runs from east to west between them and court E with its chambers.

The central court is 32·70 metres from north to south and 27 metres from east to west. It is surrounded to east, north, and west by a blind arcade which forms part, on the north side, of the façade of the three-storied block (Plate 6, Fig. 2). The arcade is 1 metre deep. Engaged half-columns set against rectangular piers carry shallow calottes, the archivolt of which is slightly horse-shoed (Plate 26, Fig. 1). The intercolumniation varies from 2·35 to 2·55 metres. All the details were of stucco, which has now broken away. The columns, piers, and walls are of stone masonry; the capitals, calottes, and archivolts, together with the wall above them, are of brick. The capitals, which are much damaged, are cubes formed of three courses of bricks; the calottes are of brick laid in horizontal courses and carried over the angles of the niches by horizontal brackets; the horse-shoed archivolts are composed of an inner ring of brick tiles laid horizontally, and an outer ring laid vertically. Of the outer ring only fragments remain. In one case (the calotte immediately to the south of the east door) the tiles are laid in rings, and the curve of the archivolt is not horse-shoed (Plate 26, Fig. 2). The corresponding calotte on the west side has fallen. In the centre of each calotte, and impinging upon the stonework below, there is an oblong window which lights corridor 28. On the north side of the court only two of the niches and calottes remain intact to the east of the central door, and only one to the west of the central door. In the centre the whole face of the wall has fallen, carrying with it parts of the corridors on the first floor and part of the south wall of the great hall. The small chamber, 27, which was probably covered with a dome, is entirely ruined, together with room 101 above it. It is therefore impossible to determine the exact form of the doorway which led from 27 into the central court, but there is no reason to suppose that it differed materially from the door on the east side of the court. The nature of the horizontal decorations which govern the façade preclude all idea of a large central door. The blind arcade of the first floor is not so high as the arcade below it (Plates 27 and 85). Instead of the half-columns and piers of the ground floor, the archivolts of the first floor spring from a cluster of four small engaged columns which must have been finished in stucco. Nothing remains of the capitals. In the spandrels are placed oblong windows lighting the upper corridors, 100 and 102. On the face of the pointed arches of the arcade it is still possible to trace a scolloped ornament in plaster, like that which exists over the doors of the mosque. Within the large arches there is a system of small blind arched niches flanked by slender engaged colonnettes of which little trace remains. There are five of these niches within each of the large niches, two below and three above, the central niche in the group of three being the largest. There is a slight error here in Dr. Reuther’s reconstruction, an error to which he himself called my attention. He has placed only one small{25} niche in the upper register instead of three. The side niches can be seen in Plate 27. He suggests that in the middle of the façade one or more of these small niches must have contained windows in order to give additional light to room 101, since it was from room 101 that most of the light in the great hall was derived. Beyond the arcading on either side of the façade the wall was finished by a solid pier, the surface of which was broken by three projecting horizontal bars. The cornices are not preserved, but, as I shall show later, they cannot have been very important. The decoration of the façade ends on the level of the second floor and forms a narrow balcony a little over 1 metre wide which runs along the face of the building. The wall of the second floor is recessed a few centimetres to give additional width to this balcony. On to it open the doors of Nos. 123 and 127. These doors are not placed symmetrically with respect to the façade; the west door is nearer the centre than is the east door. The plain wall is carried up to the top of the door arches; above that level there is a band of shallow arched niches which appear to have been divided from one another by engaged columns, probably carrying an architrave, like the niches on the summit of the outer north wall of the palace.

To return to the central court. On the east side there is a doorway in the third intercolumniation from the south end (Plate 26, Fig. 2). It leads into corridor 28. The arch of this door is set back from the jambs, but the upper part is ruined. The corresponding door on the west side has disappeared, together with most of the south-west end of the wall. On the east side the arcading is not carried into the angle of the court. The southernmost archivolt ends against a quarter-column, beyond which space is provided for the entrance of a stair which leads down to a vaulted chamber below the level of the ground (Plate 28, Fig. 1). Above this entrance there is a fluted semi-dome finished by a fillet (Plate 28, Fig. 2). The semi-dome is set horizontally over the angles of the niche in the accustomed manner. The actual entrance to the stair is covered not by an arch but by a masonry lintel (compare the door between 20 and 21).

The south side of the court is also arcaded, but not in the same fashion. The arcades are much shallower (·40 metre deep) and they are differently grouped. In the centre of the south wall there was a wide archway (4·20 metres wide) leading into room 29. This arch rose above the level of the arcade on either side of it and the chambers behind it were higher than the adjoining chambers (Plate 29, Fig. 1). On either side of the entrance there is an unusually large engaged column; beyond these columns there is a flat pier and an engaged quarter-column, followed by a niche ·80 metre wide covered by a shallow calotte (Plate 29, Fig. 2). Three more recesses, measuring in width 1·95 metres, 2·10 metres, and 2·50 metres, and separated from each other by engaged columns of about ·70 metre diameter, occupy the remainder of the façade. In no case is the capital preserved, but it is noticeable that all the columns swell outwards{26} towards the top. The archivolts are ovoid, not horse-shoed. The first niche on either side of the small niches contains a door leading on the west side into No. 31 and on the east side into No. 42. The third big niche on the east side contains another and a smaller door which gives access to a stair leading to the roof (Plate 28, Fig. 1). The doors of Nos. 31 and 42 offer good examples of arch construction (Plate 29, Fig. 3). The arch is set back from the jambs and formed of an inner ring of concrete and an outer ring of stone voussoirs laid horizontally. The calottes covering the niches are of brick, but unlike the calottes on the other three sides of the court, the bricks are set horizontally and vertically and used in half and quarter lengths so as to form intricate designs which Dr. Reuther compares very aptly to the Hazârbâf motives so common in oriental woodwork (Plate 29, Fig. 2).

South of the central court lies a group of rooms of a ceremonial character. In the centre of this group is the lîwân No. 29, 6 x 10·70 metres. It was covered by a barrel vault of brick, which has now fallen in. The vault oversailed the wall and its point of springing is 4·30 metres above the level of the ground, instead of the 3·40 metres above ground-level at which the vaults spring in the adjoining chambers to east and west. It is therefore clear that the vault of 29 must considerably have overtopped the other vaults, and as I shall show later, it is usual to find the ceremonial lîwân higher and more important than the remaining chambers of the group. I have followed Dr. Reuther in giving it a rectangular frame upon the façade of the court (section e-f, Plate 5, Fig. 1). Two large doors, 1·50 metres wide and 3·64 high to the top of the arch, open on either side of the lîwân, on the east into rooms 41 and 42, and on the west into rooms 31 and 32, which lie at right angles to the lîwân. At the south end a similar door leads into No. 30, a chamber 6 metres square, which has been covered by a barrel vault of brick running north and south, and doubtless the same height as the vault of the lîwân. Doors of the same character, with ovoid arches set back from the jambs, are placed in the middle of the east, south, and west walls of No. 30. The fact that the high vaults of Nos. 29 and 30 were not sufficiently buttressed by the lower vaults on either side accounts for their fall.

Rooms 31 and 32 are distinguished by a plaster decoration more elaborate than any which is to be found elsewhere in the palace, with the sole exception of the mosque. The vault of No. 31 resembles the vault of the ḥaram, and like the ḥaram vault it must have been built over a centering. It is divided into two compartments by three transverse arches, one spanning the centre of the chamber, the other two placed respectively against the east and west walls (Plate 30, Fig. 1). These transverse arches, which are ·95 metre wide, spring from a double outset at a height of 2·80 metres from the ground. The vault between the arches springs at a point ·25 metre higher. It is composed, like the ḥaram vault, of narrow oversailing ridges worked in stucco. Along the top of the vault are placed between each pair of transverse arches four square stucco motives,{27} some of which remain intact. They differ slightly from each other, but all are variants of the same theme (Plate 30, Fig. 2). The first from the east end consists of four squares within one another, like a Chinese box, each sunk behind the other. In the centre there is a circular rosette, doubly recessed. In the second a single recessed square contains a saucer-shaped motive, the surface of the saucer being covered with rings of small plaster excrescences. In the third the usual recessed square is filled with a triply sunk diamond, with a recessed rosette in the centre. In the fourth the recessed square frame is filled with a recessed diamond, within the diamond is a recessed square, within the square a second recessed diamond, in the centre of which is a rosette. In the western compartment two of the motives consist of squares sunk within one another, a third of a doubly sunk square containing a triply sunk rosette, while the fourth is obliterated. Finally high up in the east and west walls under the vault is placed a small niche whereof the arch springs from engaged colonnettes.

No. 31 is connected with No. 32 by a door opposite to the door in the central court. The construction of the roof in No. 32 is different from any other example of roofing in the palace. It is divided into three compartments by four heavy transverse arches which spring at a height of 2·85 metres from the floor, level and are set forward twice from the face of the wall (Plate 31, Fig. 1). Between the arches small barrel vaults are stretched across the chamber from north to south. In the eastern compartment the north and south head walls are carried up to the height of the vault. Immediately below the spring of the vault there is a sunk band in the head walls decorated with three recessed circles or rosettes. In the central and western compartment the vault terminates against a semi-dome, set over the angles in one case horizontally, in the other (the western compartment) by means of small recessed squinches (compare the west end of the ḥaram). Below the semi-domes there are a couple of narrow fillets, and below the sunk band of the eastern compartment a single wide fillet. Below these, at the same level in all the compartments, the head wall is decorated with pairs of arched niches, the arches being supported by engaged colonnettes. The colonnettes have no bases; a narrow impost serves them as capital. The face of the arches is decorated in two of the compartments by fillets and in the third (the western) by a zigzag motive. Within each niche there is a spear-shaped ornament sunk in the wall. In the spandrel between the arches there lies a recessed rosette. At a height of ·35 metre above the springing point of the transverse arches the head wall is set very slightly forward, in imitation of the outset of an oversailing vault. The arches of the doors rise higher than the level of this outset, which is lifted in a rectangular label over them. The barrel vaults between the transverse arches are variously treated. The eastern vault is divided into sections by three short transverse arches, each of which is decorated by a square sunk motive. The central vault has the same number of short transverse arches, but these are undecorated. The western{28} vault is provided with a transverse arch against the semi-dome at either end, while the remainder of its length is decorated with stucco ridges. A pair of niches, smaller than those upon the side walls, is placed in the east and in the west wall under the transverse arches, but the spear-shaped ornament and the recessed rosette of the side niches is omitted.

Rooms 31 and 32 are 10·05 metres from east to west and 4·90 metres from north to south. Room 41, lying opposite to room 32, has an equal length and the same system of doors, but no decoration. Room 42, which corresponds with room 31, is only 7·25 metres from east to west, since space had to be allowed for the two stairs leading out of the central court, one to the roof and one to the underground chamber. In the south-east corner of No. 42 there is a small door giving access to a narrow passage behind the block of masonry which contains the upper stair. It turns at right angles into a short passage lying above the lower stair. The vaulted underground chamber corresponds in length and width with No. 42 (section e-f, Plate 5, Fig. 1). It is lighted by three small windows which are splayed upwards to the ground-level—one of these can be seen in Fig. 3 of Plate 29. The room was filled with débris, so that I cannot be certain of its height. In the west wall there is an arched niche or ṭâqchah. In the intense heat of southern Mesopotamia it is customary to provide all houses with underground chambers, wherein the inhabitants spend the greater part of their day in summer. They are known as serdâbs. To the authors of Ocheïdir I am indebted for an interesting observation with regard to the vault of No. 41.[26] It was built in sections over a movable centering which has left its mark upon the concrete of which the vault was formed.

Rooms 32 and 41 communicated by doors in the south wall with the columned chambers 33 and 40 (Plate 31, Fig. 2), which are exactly alike in every respect, except that No. 40 is connected by a door with the room to the south, No. 39, whereas there is no south door in No. 32. Both 33 and 40 have doors, covered with ovoid arches set back from the jambs, leading into the corridor 28, and both are divided into three aisles by two arcades of three arches carried on two masonry columns. The aisles run north and south. The innermost aisle in either case forms part of the vaulted corridor, 36, which runs round three sides of No. 30. This aisle is only 2·50 metres wide, as compared with the 2·85 metres of the other two aisles. All the aisles are roofed with barrel vaults. Though the columns are of stone masonry, the capitals, together with the arches and walls they carry, and the segmental vaults, are of brick. The columns are separated from one another from north to south by a distance of 2·50 metres, but the distance between each column and the wall behind it is only ·90 metre; hence the wide central arches rise almost to the spring of the vault, whereas the side arches are from their narrow span necessarily much lower (Plate 32,{29} Fig. 1). The curve of all the arches is a pointed ovoid, and the narrow arches are considerably stilted. These last are built of concentric rings of small brick tiles, the inner band laid vertically, the outer horizontally. The large arches are composed of two concentric rings of voussoirs, both laid vertically, the inner ring being of large tiles used in their full size, the outer ring of half of the same tiles. The capitals are better preserved than any in the palace, and from one of the capitals of No. 33 in particular, an excellent idea of the form of the impost-capital commonly used at Ukhaiḍir can be obtained. (It is the capital seen in Plate 32, Fig. 1.) The cube of the capital is adapted to the circle of the column by placing an angle of brick under each corner. The capital is composed of a shallow ovolo in moulded plaster surmounted by an abacus which consists of a single course of bricks and carries an impost formed of three courses of brick. Within the arches the impost slightly oversails the abacus.

On the south side of corridor 36 the vault has fallen, together with the columns between the engaged piers which must have supported the arcade (Plate 31, Fig. 3). The spring of the arches can be seen against the piers. From the fragments that exist, the barrel vaults do not seem to have intersected one another but to have met diagonally at the angles. At the east and west ends of No. 36 a door opens into rooms 39 and 34. No. 34 communicates with a parallel chamber, No. 35, which opens independently upon the narrow open court, F, between 36 and the corridor 28. The eastern side of this court was much ruined. In the south-east corner was a stair which led up to the roof. To the north, and partly under the stair, lies a small room, 38, communicating with another narrow room, 37, which was not entirely vaulted over. That it was intended to contain a fire is clear from the fact that the vault is pierced by two terra-cotta pipes, the one 29 centimetres in diameter, the other 12 centimetres, which must have served as chimneys. Similar pipes occur elsewhere and will be mentioned later.

The long corridor, 28, which lies to east and west of the central court and its group of chambers, turns at right angles and encloses the whole central block. The corridor is covered by a semicircular stone vault, oversailing the walls; at four points, however, it is left unroofed in order to admit light and air. These openings are flanked by transverse arches, springing a few centimetres lower than the spring of the vault. The angles of the corridor are roofed with groined vaults, and groined vaults occur in two places, towards the middle of each of the long sides of the corridor. Moreover, a small extension of the east arm of the corridor, No. 61, is also roofed with a groin. This last is the example given by Dr. Reuther on Plate 13 of Ocheïdir; it is the only groin in the palace which is built of brick. Where the groins do not rest on the head wall, they are laid against transverse arches, springing from a point lower than the springing of the vault. The lower parts of the groin are built of stones laid horizontally and forming a bracket from which spring the intersecting vaults (Plate 32,{30} Fig. 2). The vaults are also built of thin slabs of stone, cut in the shape of bricks, and laid with a slight inclination backwards against the head wall or the transverse arch. This construction demanded little or no centering. In the north-east angle of the corridor there is a small door in the east wall which gave access to a stair or passage running under the wall. It was so much blocked by ruins that I could not penetrate into it.

From the corridor a door opens into each of the five courts, B and C on the east side, forming the eastern wing of the palace, H and G on the west side, forming the western wing, and E to the south. The courts have no direct communication with each other. The chambers on the north and south sides of these courts are all arranged in lîwân groups, but there are differences in detail between courts B and H on the one hand, and courts C and G on the other, while the position and size of court E has led to further modifications. Court B (Plate 33, Figs. 1 and 2) measures 15·20 metres from north to south, and 17·60 metres from east to west, but on the west side ·40 metre is occupied by a shallow blind arcade, and on the east side 3 metres was taken up by an arcaded passage which is now ruined. The blind arcade is composed of five arches carried by engaged piers which have an average width of ·70 metre. The arches are round and spring directly from the piers without the interposition of impost or capital. In the central of the five intercolumniations is placed the door from the corridor. To the north and to the south of the court lies a lîwân group of three vaulted chambers. The lîwân opens on to the court through an archway 2·60 metres wide flanked by engaged columns and piers (Plate 34, Fig. 1). The side chambers communicate by means of arched doorways with small antechambers, which in turn open into the court through arched doorways 2·05 metres wide, flanked by engaged columns (Plate 34, Fig. 2. The mass of brickwork which partly blocks the doorway is a later addition). The antechambers are roofed with barrel vaults running east and west, which are separated from the outer end of the lîwân vault by transverse arches; thus the vault of the lîwân is enabled to run through to the wall of the court (Plate 35, Fig. 1). Structurally, the antechambers are therefore distinct from the outer end of the lîwân; practically the antechambers and the outer end of the lîwân form a kind of narthex, the outer end of the lîwân being part of the narthex and not an integral part of the reception-room. This fact is accentuated by the position of the side doors in the lîwân. The sitting space along the walls ends with these doors, and for practical purposes the lîwân is no longer than the side chambers. The capitals of the engaged columns are rectangular impost blocks of stone masonry. Between the parallel barrel vaults there is the usual system of tubes (Fig. 4). The tubes running north and south are carried over the transverse arches of the antechambers, and their openings appear on the façade of the lîwân groups. Where the façade has fallen, as, for example, on the south side of court B, the construction can be clearly traced, and it is also possible to observe that tubes ran from east to{31} west between the wall of the façade and the barrel vaults of the antechambers, as well as on the inner side of the same barrel vaults. Perhaps these tubes were connected with a tube running north and south parallel with the vault of the corridor. The vaults are ovoid and are constructed of a single course of stones laid vertically supporting a mass of stone and concrete. In all the interior doors the arches are set back from the jambs (Plate 36, Fig. 1) and constructed in the manner described on p. 15. Upon the plaster of the west wall of No. 44, south of the door leading into No. 45, there is a graffito inscription in Arabic (see below, p. 161).[27]

Fig. 4. South side of court B. (From Ocheïdir, by kind permission of Dr. Reuther.)

East of the lîwân group on the north side of court B there is a stair, and still further east a narrow passage within the outer wall. A small door in the north-east corner of the side chamber, 46, gives access to an unlighted blind passage under the stair. The stair runs up to a landing-place which is connected by a low doorway with a small chamber situated above the eastern passage. Another door leads into a gangway hollowed out of the thickness of the outer wall, and from this gangway a door leads into a tiny circular room in the outer towers. I did not determine whether the gangway in the wall runs on interruptedly from court to court. On the whole, as Dr. Reuther has observed, this would seem to be improbable since the strict isolation of the courts is in all other respects preserved. Almost exactly above the entrance to the stair (an awkward piece{32} of construction) sprang the first arch of the arcade which flanked the court from north to south. In every court this arcade has fallen, but on the south side of court H a portion of the first arch remains, together with the vault behind it (Plate 35, Fig. 2). I cleared away the ruins at the south end of this arcade and found the remains of the first column at a distance of 2·40 metres from the south wall. The arcade must therefore have been composed of four columns carrying five arches, corresponding with the blind arcade on the opposite wall. The massive stone vaulting of Ukhaiḍir was not suited to free standing arcades, and, as has been noticed in the mosque, when the wooden cross-beams perished, their collapse was inevitable.

To return to court B. The passage already mentioned, running parallel with the outer wall, leads into an oblong room, 47, 3·55 metres wide, which lies from east to west across the back of the lîwân group and the stair. This room is vaulted at either end but is left open near the centre (Plate 35, Fig. 3). The same oblong room is found behind the southern lîwân group of court B, and behind each of the lîwân groups in courts C, G, and H. In every case the vault next to the outer wall is pierced by a pair of terra-cotta pipes similar to the pipes described in No. 37. It is probable, as I shall show later (p. 82) that these rooms were intended for kitchens. On the south side of court B there is no stair; above the vault of the passage which leads into the oblong room, 51, there is a blind corridor accessible from No. 50 by a door placed in the east wall, some 2 metres from the ground. This door must have been approached by a wooden ladder or steps, but I climbed up into it over a heap of ruins. On the west side the antechamber of No. 49 is provided with a door into corridor 28. Immediately to the south of this door a wall, broken by a doorway, has been built across the corridor. This wall is a later addition; it is not bonded into the walls of the corridor, and it does not occur in the corresponding west arm.

Court C differs from court B in the absence of antechambers to the lîwân groups (Plate 33, Figs. 3 and 4). The lîwân opens into the court through a wide pointed arch carried on engaged columns; the side chambers are provided with doorways into the court, covered by ovoid arches set back from the jambs (Plate 36, Fig. 2), and the façade thus formed corresponds exactly with the façades of the court on the top floor of the three-storied block. Near the south-east corner of court C there is an arched doorway leading into the palace yard (Plate 37, Fig. 1). In the oblong chamber, 60, behind the southern lîwân group, the south wall is occupied by a blind arcade of four arches borne by piers 1·10 metres wide and 1·05 metres deep. A similar blind arcade occurs in the corresponding chamber of court G, and indeed, except for slight variations in the measurements, the only difference between courts C and G is that in the latter there is no door into the palace yard. In the same way court H re-echoes court B save that in court H there is no doorway between the southern antechamber, 82, and the corridor 28 (Plate 37, Fig. 3).{33}

The arrangement of the rooms in court E is not symmetrical. On the east side court E is curtailed by the small oblong room, 61, and an open court, D. No. 61 is a continuation of the east arm of the corridor 28. It measures 5·25 metres from north to south and 3·50 metres from east to west. The square for the brick groin with which it is roofed is obtained by laying a transverse arch to north and south. It opens by two arched doors, divided by a pier, into court D, which measures 10 metres from north to south and 9·20 metres from east to west. In the south wall there is an arched doorway into the palace yard. To the east of court E there is space for one chamber only (62) and a winding stair which leads to the roof. On the west side there are two chambers, 67 and 68, communicating with one another and with the court. To the south of 67 there is a narrow passage (Plate 37, Fig. 2) which leads into an oblong room, 69, similar in all respects to the oblong rooms behind the lîwân groups in courts B, C, G, and H.[28] Between the barrel vaults of 67 and 68 and the south arm of corridor 28 are the usual tubes. The doorways of 67 and 68 are covered with ovoid arches set back from the jambs, but the opening into the narrow southern passage follows the line of the vault and oversails the wall. Above the vault of the passage there is an inaccessible passage or tube which exists for structural reasons only. To the south of court E lies a lîwân with its side chambers, the lîwân, 64, opening into the court by a wide archway, the side chambers by small doors, as in courts C and G. Finally, the space between 65 and 69 is filled up by a fourth room, 66, which communicates with 65 and with the narrow passage. Tubes are laid between all the barrel vaults of these rooms.[29]

The whole building above described is enclosed on three sides by a wall 1·60 metres thick, set with towers 2·40 metres in diameter which project 1·80 metres from the face of the wall (Plate 38, Fig. 1).[30] Through the upper part of the wall runs the low, vaulted, and unlighted gangway which has already been mentioned (Plate 39, Fig. 1). It is no more than a tube between the wall and the vaults that adjoin the wall, but it serves to give access to the round chambers hollowed out of the towers. Access to the roof can be obtained at three points, the stair at the south-east angle of the central court, the stair at the south-east angle of court F, and the stair at the south-east angle of court E. Further, the three doors out of the first floor rooms 99, 102, and 106 open on to the roof of the single-storied block. There are traces of a narrow parapet round the edge of the roof, and the different courts seem to have been divided from one another and from the corridor 28 by low walls on the roof (Plate 38, Fig. 2).{34}

One other building stands within the palace yard, the group of rooms 140-152 to the east of the main palace. It is a later addition, though it resembles the rest of the palace too closely to admit of its having been added after the lapse of any considerable period of time. The north façade is prolonged beyond the chambers at either side, and is joined at the east end to one of the pilasters of the outer wall and at the west end to one of the towers of the inner wall, but it is not bonded in to the pilaster or to the tower. The northern end of the palace yard is thus divided off into a large court, which bears the same relation to the east annex as does the central court to the ceremonial chambers to the south of it. The stair to the first floor of the main palace was placed in this court, and it was approached from the main entrance through corridor 6. At the south-east corner the east annex does not connect with the angle of the east gate staircase, but is divided from it by an interval of ·30 metre.

The group of rooms 140-152 (the east annex) resembles in its main lines the group 29-42, south of the central court, and must have been intended for the same purposes. The north façade is decorated with blind arcades projecting ·25 metre from the face of the wall (Plate 39, Fig. 2). The ovoid arches, which contain very shallow calottes, are carried by engaged columns having a diameter of ·40 metre. A recessed polygon was placed in the spandrels. The arcade is best preserved at the west end, and it is there possible to see that a narrow cornice, consisting of a single course of stones, ran along the wall above the arches, and that above the cornice the top of the wall was adorned with small arched niches, borne on stumpy half-columns and separated from one another by larger engaged columns (compare the top of the outer north wall of the palace and the top of the north façade of the central court). At the west end of the façade, in the first intercolumniation of the blind arcade, there is a gateway 1·90 metres wide, covered by a pointed arch. A similar gateway seems to have existed in the second intercolumniation from the east end, but the façade here is much ruined. The north wall of rooms 140, 142, and 145 has fallen (Plate 39, Fig. 3). There can be no doubt that access was obtained to the lîwân, 140, by a wide archway, as in the case of the corresponding lîwân, 29, south of the central court. I saw no trace of a north door into chambers 142 and 145, though in all probability it existed. The lîwân, 140, is 5·40 metres wide by 10·50 metres long. Like the lîwân 29, it has two doors on each side and a door in the south wall. It is, however, vaulted in stone, not in brick, and the vault does not rise above the level of those on either side. The door-jambs are enriched with shallow pilasters, ·18 metre wide and ·4 metre deep, worked in stucco (Plate 40, Fig. 2). They do not carry an arch over the archivolt of the door. In the side doors the archivolt cuts into the line of the oversailing vault which is carried over them. Above the south door there is a high narrow arched window, giving additional light to room 141. On either side of the door is placed a shallow arched niche, 1 metre wide and ·5 metre deep. The arch is filled in with a calotte, the lower edge of{35} which is sunk behind the face of the wall. To the west of 140 are two vaulted chambers, 142 and 143, communicating with one another and with a similar chamber, 144, lying further to the south. The vaults of 142, 143, and 144 are set at right angles to the vaults of 140 and 141, so as to form buttresses to them. On the east side the same arrangement is observed in rooms 145, 146, and 147. These six chambers correspond to the more elaborate chambers 31, 32, 33, and 40, 41, 42 of the main palace. No. 141 (which corresponds with No. 30) is provided with four doors, one in the middle of each side. It was covered, not by a barrel vault, but by a stone groined vault, which has now fallen (Plate 41, Fig. 1). The chambers east and west of 141 (Nos. 144 and 147; compare the columned rooms of the main palace) communicate with the yard on either side and also with the vaulted passage or antechamber 148. Into this passage (Plate 41, Fig. 2; compare No. 36 of the main palace) the south door of No. 141 opens. The vault of the passage has fallen. It was no doubt carried on the south side by columns and arches like No. 36. There are no chambers to east and west of the passage, but on either side of the open space to the south of it were two chambers, 149 and 150 to the west, 151 and 152 to the east. They communicated with one another and with the yard to the north, as well as with the corridor south of 141. Their vaults ran east and west. No. 150 has fallen almost completely and No. 152 is much ruined.[31] A doorway in No. 148 gives access to a stair which leads down into an underground room lying beneath Nos. 144, 143, and 142 (section e-f, Plate 5, Fig. 1). It is lighted by three splayed windows in the north wall; under the windows there is an arched niche or tâqchah. To the west of No. 142 there is a ruined chamber which contained a stair leading to the roof. Thus the analogy with the block of rooms Nos. 29-42 is complete even to the serdâb and the stair to the roof.

The vault construction in the east annex shows a variation from that of the main palace. Instead of the long tubes running parallel with the barrel vaults, the masonry between the parallel barrel vaults of the annex is lightened by short compartments set at right angles to the vaults. Plate 39, Fig. 3, shows this construction between the vaults of 143 and 146 and the ruined vaults of 142 and 145; Plate 42, Fig. 1, the same construction between the vaults 144, 141, and 147, and the ruined vault of the passage 148. This system is an improvement upon the tubular scheme, inasmuch as it fills in the space between the vaults more completely and gives greater solidity to the roof. Moreover, it has the advantage of leaving no long inaccessible tubes to serve as a home for birds and snakes. The decorative effect of the openings of the tubes is lost, but it was not needed in the blank east and west walls of the annex, nor yet in the arcaded north wall.{36}

The fact that a similar system of small compartments is to be observed in the building outside the palace to the north (though they are here laid parallel to the barrel vaults) leads me to suspect that it must have been built at about the same period, and is therefore a later addition to the original plan. It is completely detached from the palace, but it stands in line with the west wall of the palace and parallel to the north wall (Plate 43, Figs. 1 and 2). It is separated by a distance of 13·25 metres from the face of the arcades of the north wall. It was itself constructed at two different periods. The older portion lies to the south, nearest to the palace, and consists of a large open court, J, 33·20 metres from north to south and 24·80 metres from east to west, flanked on the east side by six vaulted rooms. The southernmost of these six rooms, 153, is 9·55 metres from north to south and 7·80 metres from east to west. It is separated from court J by a wall 1 metre thick, but on the east side its wall is 1·90 metres thick and shows upon the exterior traces of an outer stair, leading to the roof, which passed over the wide arched opening in the east wall. The vault, which must have stood two stories high, like the vault of the great hall, has fallen. The remaining rooms, 154-158, have doors in the east wall and small loopholed windows in the west wall (Plate 42, Fig. 2). The rooms are divided across the centre by a transverse arch and vaulted in two compartments, the vaults running east and west. Court J had a cloister upon the west side; it has entirely disappeared, but the spring of its vault is visible on the inner side of the west wall. Probably the vault was carried on the east side by columns and arches. Four round towers project at irregular intervals from the exterior of the west wall (Plate 44, Figs. 1 and 2); they have the same diameter as the towers in the outer palace wall. The southernmost is about 3·40 metres from the southern angle of the court—an exact measurement is difficult because the angle of the wall is ruined. The next tower lies 5·65 metres to the north of the first; an interval of 7·35 metres separates it from the third tower, and the third tower is 10·70 metres from the larger tower at the north-west angle of the court. The angle tower contains a winding stair. The three smaller towers seem to be a later addition to the wall; they bear no relation to the three doors, and they block some of the windows. The windows are placed in groups of three, two groups between the south-west angle and the first door, one group between the first and second, and the second and third doors, and two groups between the third door and the angle tower. There are traces of a similar group in the north wall immediately to the east of the angle tower, and the straight face at the east end of the north wall gives reason to believe that there was a group of windows here also. The north wall is much ruined, and the ruin heaps are covered with blown sand. The arches of the windows are carried by engaged columns.[32]

{37}

To the north of room 158, and in a line with it, lie nine vaulted chambers which were added at a later date (Plate 44, Fig. 2). They are separated from No. 158 by a stair running up to the roof, with a doorway to the west. At the east end there is a small room under the top of the stair with a loophole window in the east wall. From this room, which is accessible from No. 159, a stair, now completely ruined, led down into a substructure. Nos. 159 and 160 are 4 metres broad; they are covered by barrel vaults and have a door at either end. No. 161 opens by two doors into No. 162. No. 162 is 4·80 metres broad and is divided across the centre by a transverse arch. East of the transverse arch only half the space is vaulted over. Besides the doors, there are two small windows high up in the north and south wall. In the east and west walls there is a wide archway instead of the usual doors. The five rooms 163-167 resemble in all respects Nos. 159-161. Except over No. 162, where the vault is higher than in the other chambers, the roof of rooms 154-167 is raised above small compartments lying over the barrel vaults (Plate 42, Figs. 2 and 3), and the mass of masonry between the vaults was lightened in the same manner. Slit-like windows appear high up in the east wall between the vaults (not, however, in rooms 153-162), doubtless in connexion with these compartments.

At a considerable distance to the north-east of the palace stands the small building which is known as the Ḥammâm (Plate 5, Fig. 3). Unlike the rest of the palace, it is not oriented. It consists of a long chamber running slightly to the west of north (about 24°), 10·65 metres long by 5·30 wide. It was covered by a vault which has now fallen. The door is on the east side; in the north and south walls there is a deep rectangular niche. A door in the north-east corner leads into a smaller chamber, 4·10 × 3·30 metres. In this building the thrust of the vault over the larger chamber is taken by outer buttresses, the only instance of such construction at Ukhaiḍir. On the east side there is one buttress ·60 metre deep; on the west side three, 1·25 metres deep. A stair leading to the roof ran up over the western buttress.{38}

CHAPTER II

QṢAIR, MUDJḌAH, AND ‘AṬSHÂN

QṢAIR

Among gypsum hillocks, about an hour’s ride to the north-east of Ukhaiḍir, lie the ruins of a village known to the Arabs as Qṣair.[33] There have been here a number of small houses, possibly lodgings for the gypsum workers, and I noticed several deep rectangular tanks, though whether they were intended for the storage of water, or were connected with the process of gypsum working, I do not know. Broken pottery was scattered sparsely over the ruin heaps; most of it was unglazed, but there were also fragments of blue glazed ware and a few pieces with a black glaze on the inner side. Such sherds as these are to be found on every site, mediaeval or modern, in Mesopotamia, and do not offer any conclusive evidence as to date. One large building is standing in ruins (Plate 5, Fig. 4). It lies approximately north-east by south-west and has been enclosed by a wall of sun-dried brick, set with towers. On two sides this wall was clearly visible; it lay thirty-two paces from the central edifice on the north-east and one hundred and ten paces from it on the south-west side. The ‘little castle’, from which Qṣair takes its modern name, is a long narrow building 45·15 × 8·95 metres. The walls, 1 metre thick, are constructed of stones and gypsum mortar, but the masonry is slightly different in character from that of Ukhaiḍir. The stones, instead of being broken into thin slabs, are used in thicker blocks, and the binding courses are of the same blocks, whereas at Ukhaiḍir they are almost always composed of particularly thin slabs. There are traces of plaster upon the walls, but window and niche angles are finished with large blocks cut with a certain amount of care, another feature which is not to be observed in the smaller materials of Ukhaiḍir. The north-east end of the building was divided off by a wide archway, of which only the returns in the walls remain. The chamber thus formed (6·30 metres long by 5·95 metres wide) was finished by a niche covered by a shallow ovoid calotte. The niche is rectangular in plan, 1·26 metres deep by 3·25 metres wide. The calotte was carried over the angles by shallow squinches, of which the archivolt was decorated with a zigzag ornament in plaster,[34] while at the base of the calotte there has been a similar band of plaster ornament. The construction of this niche recalls with fidelity the terminal semi-dome of a room in the{39} Umayyad castle of Kharâneh (see below, p. 114). Above the calotte there is a small rectangular window (Plate 45, Figs. 1 and 2). The back wall of the niche is exceedingly thin (·45 metre thick) and has in consequence broken away. There is a window high up in each of the side walls of the chamber, ·50 metre from the transverse arch.

The remainder of the building appears to have consisted of a single chamber 33·10 metres long. The south-west end is very much ruined. There are traces of five doors on either side, and of a door in the south-west wall. The two doors in either side wall at the north-west end of the chamber were flanked by windows—probably there were more windows, though the ruined condition of the wall makes it difficult to speak with certainty. As regards the roof, there are remains of the spring of a vault in the north-east chamber and on the south-west side of the southern return of the transverse arch. On the exterior, at the north-east end, the wall is set back above the top of the calotte, and immediately below that level the east corner is sliced off diagonally, so as to form a triangular niche which has been partly covered by thin slabs (Plate 45, Fig. 3). Above the level of the calotte the angles of the building on either side appear to have been similarly sliced off. The side windows of the north-east chamber are rounded at the top, but the openings are so small that it was not necessary to construct these arches with voussoirs, and they are merely cut out of the masonry of the wall. The archivolt of the north-east niche is composed of a single row of voussoirs laid horizontally, as is the case in some of the more roughly built arches at Ukhaiḍir (for instance the door of passage 137, Plate 24, Fig. 2). None of the doorways are preserved up to the height of lintel or arch.

I am inclined to suppose that this building was connected in some way with the working of the gypsum. It is possible that it may belong to the same period as Ukhaiḍir.

MUDJḌAH

I sighted the tower of Mudjḍah from the top of the ṭâr east of Ukhaiḍir[35] (Plate 46, Fig. 1). It stands in the level desert which stretches east to the Hindiyyeh; there are no ruins in its vicinity, nor any evidence of water storage (Plate 47, Fig. 2). The tower is built of bricks measuring ·27 × ·27 × ·7 metre. It rests upon a base of 4·35 metres square and 2·85 metres high, each side of which is adorned with three rectangular niches ·20 metre deep and ·36 metre wide. Each niche is covered by a triply recessed arch, roughly constructed of half-bricks set in rings, not as voussoirs (Plate 47, Fig. 3). Above the square niched substructure the tower is circular, and for a height of about 2 metres the wall is plain. On the east side, above the central niche of the substructure,{40} is placed a door (Plate 47, Fig. 1). The arch of the door, which is set in the second decorated zone of the tower, consists of a double row of half-bricks laid vertically and an outer belt of brick voussoirs laid horizontally. Each of the three members of the arch is recessed behind the other, the outer voussoirs being flush with the face of the wall. The door gives access to a winding stair, ·60 metre wide, which leads to the top of the tower. The second decorated zone consists of a band of rectangular flutings, forming a zigzag in plan. Two courses above these flutings there is a course of bricks laid corner-wise so as to constitute a dog-tooth motive. The wall is then carried up for another six courses in plain masonry, above which lies a second course of brick dog-tooths. The succeeding zone is adorned with eight triply recessed niches with rectangular heads. After four more courses of plain brickwork there is a third course of dog-tooths, and on the west side of the tower five courses of plain brickwork are preserved above the dog-tooths. That there was at least one other decorated zone seems certain. If my theory is correct, that the tower was intended as a landmark for caravans passing over this flat expanse from Nedjef to ‘Ain al-Tamr, it is important to observe that at its present height it is not visible from ‘Aṭshân, which is the nearest caravanserai to the east of Mudjḍah.

For purposes of comparison, I will set beside the tower of Mudjḍah a minaret, as yet unpublished, belonging to a ruined mosque at Ṭâûq, south of Kerkûk (Plate 48, Fig. 1). This minaret stood upon a low square base of which the surface of the brickwork is decayed. Upon this base was placed an octagon divided into three decorated zones; the first and third are furnished with eight small arched niches, the central zone with eight larger niches, each one being recessed behind a rectangular frame of masonry. The remainder of the minaret is round and is adorned with broad alternating bands of brickwork, zigzags and diamonds, the latter being slightly recessed. The door is placed high up above the octagon and has no apparent means of access; probably it was approached from the top of the mosque. The summit of the minaret has fallen; of the mosque nothing remains but low mounds, and I know no record of its construction. Ṭâûq is not mentioned by the earlier Arab geographers.[36] Rich saw there a small gateway, the architecture of which he compares with the Mustanṣiriyyeh at Baghdâd,[37] dated A.D. 1233, and the brickwork zigzags of the minaret are not unlike the decoration of the minaret in the Sûq al-Ghazl at Baghdâd, which may have been built about the same time as the Mustanṣiriyyeh or a little earlier.[38] This is the period to which I should assign the minaret of Ṭâûq, but the tower of Mudjḍah must belong to an earlier age. Instead of the broad ogee of the arches in the Ṭâûq niches, the arches in the lower{41} zone of niches at Mudjḍah are round, or as nearly round as their primitive construction would permit. The rectangular flutings are characteristic of a group of Persian monuments which are dated by Professor Sarre from the twelfth to the fifteenth centuries,[39] but the prototype is to be found in two minarets of an older period, the towers of Ghazni, one of which was built by Maḥmûd of Ghazni (A.D. 947-1030) and the other by his immediate successor.[40]

‘AṬSHÂN

Two hours’ ride to the south-east of Mudjḍah is the ruined caravanserai which the Arabs call ‘Aṭshân, the Thirsty—the name is well deserved, for there is no water nearer than the Hindiyyeh.[41] It is not exactly oriented, but faces approximately north (Plate 46, Fig. 2). It is built of brick tiles varying from ·31 × ·31 × ·7 metre to ·32 × ·32 × ·8 metre and sometimes as large as ·34 metre square. The walls enclose an area 29 metres square; they are 1·80 metres thick, and are strengthened at the angles by round towers, 4·10 metres in diameter, projecting 1·90 metres from the face of the walls, as well as by smaller towers 2·75 metres in diameter which are placed in the centre of the east, west, and south walls. The small towers have the same projection as the angle towers. In the centre of the north wall is the gate, which is pierced through a double tower having a projection of 3·10 metres from the face of the wall. The gate towers are preserved up to a considerably greater height than the other towers (Plate 48, Fig. 2), but the systematic levelling of the walls and towers is probably due to brick-robbers, and there is nothing to indicate their original height. Even the gate-house towers have been higher than they are at present (Plate 49, Fig. 1). The west wall has fallen, carrying with it the south-west tower and all the constructions in the interior which ran along this side. The whole edifice looks as if it had been terribly shaken by earthquake; great cracks have sprung open in the solid masonry; the north-east tower leans outward and is on the point of falling.

The north doorway is set back ·75 metre within the segments of the flanking towers.[42] The doorway is 1·35 metres wide and opens into a small chamber, 2·40 metres square, which is covered by a barrel vault. The inner doorway is set back within an arched niche (Plate 49, Fig. 2). To the west, a small opening has been pierced through the wall (it can be seen in Plate 49, Figs. 1 and 2), but it has been formed merely by removing the bricks of the wall{42} and bears no sign of having existed in the original plan. The arches over the outer doorway and over the interior niche are composed of a course and a half of tiles laid vertically and an outer ring of brick voussoirs laid horizontally. The gateway leads into an irregular courtyard which has been surrounded on three sides by chambers. Near the centre of the court there is a brick tank, 2·90 by 3·25 metres. This seems to have been the only provision which was made for water. A row of chambers 3·50 metres wide lies along the west wall. No. 1 is 5·80 metres long and has been roofed with a barrel vault running north and south. No. 2 has a length of 3·75 metres and was vaulted from east to west. No. 3 is 9·10 metres long and No. 4 is 4·15 metres long. There is no door between Nos. 3 and 4. In the latter room a space of ·80 metre is left open upon the east side and the remainder of the chamber is covered with a barrel vault lying east and west. Judging from the analogy of similar rooms at Ukhaiḍir, No. 4 was probably the kitchen. No. 3 seems to have communicated with the court by a door in the north-west corner. Parallel to it lies the vaulted lîwân, No. 5, 4·90 metres wide (Plate 50, Figs, 1 and 2). At its southern end a door, placed in a wide and shallow niche, opens into No. 6. No. 6 communicates both with No. 4 and with the long, partially ruined hall, No. 7. The doorway between 6 and 7, 2·05 metres wide (the arch has broken away), is placed within a niche 1·45 metres deep which is covered by the segment of a semi-dome (Plate 51, Fig. 2). The semi-dome is laid across the angles by means of masonry brackets which must have borne a very strong resemblance to pendentives. The horizontal courses are carried up in the centre of the semi-dome for three courses, each shorter than the one below, and round this pyramidal core the brickwork of the semi-dome is laid concentrically.[43] To the south, the door niche is carried back beyond the width of the semi-dome, forming a small vaulted recess. No. 7 seems to have been provided with a door opening on to the court, but the western end of the north wall is completely ruined. A very narrow door under the semi-dome gave access to room 8, which could also be approached from the court by an arched door in the west wall (Plate 52, Fig. 1). No. 8, 2·90 by 5·75 metres, lies parallel to No. 7, and is roofed with a barrel vault. In the west wall, north of the door, there is an arched niche, ·54 metre deep, and a similar niche is placed in the north wall. The main interest of No. 8 is the decoration on the exterior. On the west wall a simple and effective pattern is produced by laying a couple of rows of brick tiles face outwards at intervals along the top of the wall, and below these, north of the door, a rectangular tablet was formed, for purely decorative purposes, by inserting 2 or 2½ rows of faced tiles into the wall. The top of the north wall was ornamented with a row of four arched niches (Plate 50, Fig. 2). Small engaged columns, without bases, carry imposts formed of a single brick,{43} from which spring round arches decorated with three fillets in plaster. One of the niches is pierced by a narrow window. The vault construction is very similar to that of Ukhaiḍir. All the vaults oversail the walls by 4 centimetres. The lower part of the vault is composed of from five to nine courses of bricks laid horizontally, the upper of bricks laid vertically. Over the ovoid arch thus formed (it is always a course and a half thick) are carried the horizontal courses of the walls. I looked carefully for any trace of tubes between the parallel vaults, but found none; the masonry seems to be solid in every case. All the door arches, as far as can be determined in their ruined state, were round and sprang flush with the jambs.

The fortress-like character of the khân of ‘Aṭshân, the plan of its gateway, and the details of its construction and decoration incline me to assign to it a date not far removed from that of Ukhaiḍir. The tower of Mudjḍah must stand in intimate connexion with the khân, for I can conceive of no reason for the erection of an isolated tower in the midst of a waterless desert, unless it were intended to serve some purpose on the caravan track from Kûfah to ‘Ain al-Tamr, of which the khân of ‘Aṭshan was the intermediate stage.[44] I would suggest that neither khân nor tower can be dated much later than the ninth century; both are valuable and interesting examples of early Mohammadan architecture of the age, or at least of the school, to which Ukhaiḍir itself belongs.{44}

CHAPTER III

QAṢR-I-SHÎRÎN

The general disposition of the Sasanian ruins at Qaṣr-i-Shîrîn has been given by M. de Morgan, and the plan of the two principal buildings, the palace of Khusrau and the palace (if palace it were) of Chehâr Qapû, both of which I examined, appear in the same volume.[45] It is quite possible that the ruins may have suffered to a certain extent during the years which elapsed between M. de Morgan’s visit and my own, and this may account for the omission in my plans of some features which are shown by him. Nowhere did I observe stucco decorations in so good a state of preservation as that which is depicted in his Figure 208. I have, however, compared my photographs with those published by him and found no very noticeable differences. Moreover, it will be observed that such details as are absent from my plans are usually indicated hypothetically on those of the French mission, and it is therefore doubtful how much of them was actually seen and how much was conjectural. A very little excavation would determine whether these conjectures are correct. It is much to be regretted that I had not the French plans with me, as I might have been able to form some more definite opinion as to the value of the proposed restorations. As it is I must content myself with recording that which I saw above ground.

THE PALACE OF KHUSRAU

The larger edifice, which is known as the palace of Khusrau (i.e. Chosroës II, Parwêz, A.D. 590-628), is not built upon a single level. The central part is raised above the plain by means of a solid platform of earth some 3 metres high. The terribly ruined state of the buildings made it difficult to take elevation measurements which should approach to accuracy; I have therefore endeavoured to give a correct impression of the structures upon the two levels by reproducing the plan in two parts. In the one (Plate 53) the upper rooms and courts are given; the uncovered areas on the upper level are lightly tinted, the covered rooms are dotted, while the buildings on the lower level are shown only in outline. In the other (Plate 54) the upper level is left in outline and the covered and open areas of the lower level are fully indicated.

The palace is exactly oriented, the main rooms and entrance facing east. The building materials are undressed stones laid in a thick bed of gypsum mortar. The stones are used exactly in the shape in which they were furnished{45} by nature, a shape which happened to be that of large rounded pebbles. With such materials accurately coursed masonry is not to be expected. The core of the walls is no more than a mass of concrete with stones bedded at haphazard in the strong gypsum mortar. On the outer surface of the wall, particularly in important chambers, the pebbles are, however, coursed with considerable care, but the face of the walls is necessarily very rough and must always have been covered with plaster. The vaults are constructed of the same unfavourable materials. They were built over a centering on which was laid an inner skin of stones and mortar; when this had hardened it was strong enough to bear the mass of concrete which was built round and above it. Construction of this kind would have been impossible but for the excellent qualities of the mortar. I observed that the vaults both in this palace and at Chehâr Qapû had almost invariably a slight outset from the wall (Plate 52, Fig. 2), as is generally the case in Sasanian vault building, whether in brick or in stone. The vaults are round or slightly ovoid, except in the lower corridor, under the margin of the platform (Plate 54, Corridor 103). Here the vaults are very markedly pointed (Plate 51, Fig. 1), but I should attribute this form not to any conscious predilection for the pointed arch—an arch which was, so far as I am aware, unknown to Sasanian architects—but to an accident inherent in the rude construction of an unimportant part of the building. Occasionally brick was used. I saw fragments of brick among the ruins of the palace of Khusrau, and in Chehâr Qapû some brick vaults are still standing. The walls which were intended to support these massive stone roofs were seldom less than 1·30 metres thick, and sometimes considerably thicker. (In Chehâr Qapû, however, they are not infrequently reduced to a thickness of little over a metre.)

The eastern end of the platform is devoid of constructions. It is accessible by means of three double ramps which will be described in dealing with the lower level of the palace. Excluding the width of the ramps, the open platform is 149 metres long (reckoning it up to the east wall of chambers 21, 22, and 23) and 98 metres wide. The main gateway of the palace is much ruined. The hall or porch which is numbered 1 on the plan is indicated by two grass-grown mounds, 26·60 metres long by about 5·40 metres broad, leaving a space of about 9·80 metres between. Another mound lying north and south marks the eastern limit of No. 2. At either end of this latitudinal chamber there were traces of cross walls, which I have shown on the plan. Upon the eastern mound I saw through the grass circular patches of brick which may have been the remains of columns. Whether No. 1 was flanked on either side by columns, as M. de Morgan has represented it to have been, I have no means of determining, but I have little doubt that it was a covered porch of some kind leading to a latitudinal chamber, No. 2, which was some 45 metres long (between the cross-walls) by 17 metres wide, and that this chamber was a covered antechamber to the hall of audience, No. 3. The hall (3) is 27·20 metres square; the walls are ruined down to the level{46} of the side door arches, and the interior is filled with ruins to the depth of about 1 metre—judging by the present ground-level in the doorways (Plate 55, Figs. 1 and 2). At each corner of the hall, 2·90 metres from the walls on either side, there are the remains of a pier, 1·40 metres square, with two engaged columns projecting about 1 metre and producing a heart-shaped ground-plan. The pier at the south-west corner is tolerably well preserved, and there can be no doubt as to its form. The eastern wall of the hall is 4·35 metres thick and is broken by a single door 3 metres wide. At the south-east corner a small doorway leads into a short passage, probably vaulted, which gives access to the open platform. On the west side of the hall lies a lîwân (4) 5·10 × 13·15 metres. A door, 1·60 metres wide, opens into court A, but there is no direct communication between the lîwân and its subsidiary chambers. Of these last there are two on either side. To the north, room 5 opens by doors into hall 3 and court A. No. 6 has only one door, opening into a narrow passage (9) which was probably covered by a vault. On the south side No. 7 corresponds exactly with No. 5, while No. 8 opens into No. 7 and not into the corridor 10. These corridors (9 and 10) lead respectively out of the north-west and the south-west corners of hall 3; they are prolonged beyond rooms 6 and 8 and open into court A. Parallel to them run a second pair of corridors (11 and 12) which are two of the main gangways of the palace. No. 11 is 1·80 metres wide. Its eastern end is, so far as I could ascertain, a cul-de-sac, but it may possibly be provided with a door into room 13 (the walls are very much ruined here). A doorway, placed immediately west of the end of corridor 9, leads into court A, and doors on the north side communicate with courts D and E. Corridor 12 is 1·70 metres wide and leads out of hall 3; the arched doorway into the hall is preserved. The only other doorway in this corridor of which I could make certain is one communicating with court I, but in both corridors (11 and 12) the walls are so much ruined that I cannot feel sure that they do not possess more doors. Beyond courts F and J both corridors drop down to the lower level and are then continued to the western limit of court B, where they turn at right angles and unite behind court B, but on the lower level. Whether the descent was accomplished by steps or by a ramp I could not determine, but in No. 12 the vault at this point was well preserved, and I noticed that, as in the stairs and ramps of Ukhaiḍir, it was built not in an inclined plane, but in sections rising one above the other like inverted steps (Plate 56, Fig. 1). East of hall 3 and of the chambers pertaining to it, the remainder of the central area of the palace is occupied by two courts, A and B, 33·90 metres wide, divided from one another by a much ruined cross wall in which there was presumably a door. Court A is 40 metres long from the west wall of the lîwân (4) to the cross-wall; court B is 71·30 metres long from the cross wall to the end of the platform.

To north and south of the central area lie a series of courts with lîwân groups, on the west side courts C and G alone offer slight variations of scheme. In{47} court C there is a lîwân group at either end, the western group being the more important; as will be seen, this is the usual arrangement in the courts on the lower level. There are, besides, three chambers (13, 14, and 15), lying between court C and hall 3. These chambers are almost completely buried under ruin heaps overgrown with grass; I was able to see that No. 13 opened into No. 3 and into court C, but I could not determine the position of the doors in Nos. 14 and 15. Court C measures 21·60 metres from north to south and 19·20 metres from east to west. The western lîwân is 5·20 by 7·25 metres. I would here remark that in all cases the lîwâns open by their full width on to the court, whereas in the French plan the entrance arch is narrowed by short returns in the side walls. The side chambers (17 and 18) do not communicate with the lîwân (a rule which is followed throughout the palace), but have doors only into the court. A door in the west wall of the lîwân (16) leads into a latitudinally placed chamber (19) measuring 5·10 by 14·30 metres, which is separated by a wall at the south end from a small subsidiary chamber, 1·75 metres wide, with which it communicates by a narrow door. There is also a doorway between No. 19 and court D. This group of rooms (16 to 19) occurs unchanged in courts E, G, H and I, and is provided invariably with a posterior court. In one case only, court H, a shallow lîwân group is placed at the west end of the posterior court. All the latitudinal chambers (19, 28, 32, and 42) behind the lîwâns are completely ruined. I conjecture that they were vaulted, but it is possible that they were not wholly covered, like the corresponding chambers behind the lîwâns at Ukhaiḍir. On the analogy of Ukhaiḍir they must have served the purpose of kitchens. I saw no trace in court C of the columns which are placed there in the French plan. At the east end there is a shallow lîwân group (21, 22, and 23), the lîwân being 4 metres deep. To the north of this group lies a short passage leading to a door which communicates with the open platform. A corresponding passage (20), 2·30 metres wide, leads out of the north-west corner of court C, runs along the north side of courts D, E, and F, drops on to the lower level in the same manner as corridors 11 and 12, is continued as far west as they, and then turns off at right angles and joins the cross-passage which connects them. North of court C are two chambers on the upper level (106 and 24). No. 106 is a long passage room with two rectangular arched niches in the south wall, a door at the east end opening on to the platform, and a door at the west end which gives access to a ramp that descends into the exterior park, between the retaining wall to the south and the wall of a chamber on the lower level to the north. In the north wall of No. 106 there is a door leading into No. 24, a much ruined room about 7·50 metres square, and a door further west opening on to the roof of a short passage.

Courts E and F stand in the same relation to one another as courts C and D; court E is the forecourt of a lîwân group with a kitchen (25 to 28); court F is the posterior court. The western wall of court F is the retaining wall of the{48} mound on which the rooms and courts of the upper level are built. Court F, together with No. 28, are omitted in M. de Morgan’s plan, a fact which shows that there must be serious errors in his measurements.

Upon the southern side of the platform, court G is divided from the hall 3 by three chambers (33, 34, and 35) which, like the corresponding chambers north of the hall, are ruined and filled with débris. They appear to have had no communication with the hall. On the south side a door leads from court G into corridor 43, 2·60 metres wide, which corresponds with the northern corridor (20). The western end of court G is occupied by a lîwân group and kitchen (29-32), the latter opening into court H. Court H, 15 metres from east to west, differs, as has been said, from its counterpart court D, in that it is furnished with a shallow lîwân group at its western end. These rooms (36, 37 and 38) are much ruined, but it appeared to me that there was no communication with court I. Court I, 14·20 metres from east to west, and court J, 17·80 metres from east to west, with the lîwân group and kitchen between them, correspond exactly in their arrangement with courts E and F. I do not doubt that all the rooms above described were covered by barrel vaults, but there is no wall on the upper level that stands much more than a metre high, and therefore no vault is preserved.

In the central part of the palace the upper level is prolonged to the western end of court B, but in the wings it ends with courts F and J. Thus it is that the rooms and courts which flank the western end of court B are upon the lower level. They form two complete units, one on either side. The northern unit is composed of courts K and L and rooms 44 to 50. On the east side of court K lies a shallow lîwân group (48, 49, 50), the lîwân being 3·25 metres deep. On the west side the lîwân group differs somewhat from those which have been already described. A narrow antechamber, 2·40 metres deep, is interposed between the lîwân with its side chambers (44, 45, 46) and the court. A wide archway, corresponding with the arch of the lîwân, and two doors, corresponding with the doors of the side chambers, open into court K, but the width of the arch and doors of the antechamber is slightly greater than the width of the arch and doors of the lîwân and its side chambers. The door of 46 is 1·05 metres wide and stands 1·85 metres from the south wall; the corresponding door of the antechamber is 1·70 metres wide and stands 1·30 metres from the south wall. The arch of the lîwân has a width of 5·20 metres; the corresponding arch of the antechamber is 5·80 metres wide. Neither here nor in any other court where the antechamber occurs is it possible to determine the exact relation between the vault of the antechamber and the vault of the lîwân, but the fact that the lîwân arch seems to have been narrower than the antechamber arch (it is only in court K that the measurements can be taken with anything approaching to accuracy) leads me to suppose that the vault of the lîwân cannot have been carried through to the court, as at Ukhaiḍir. In that case the antechamber must have been roofed with a continuous vault laid at right angles to, and possibly higher than,{49} the vault of the lîwân. The antechamber communicates with corridor 11. Courts M and N, on the south side of court B, are the counterpart of courts K and L. The southern end of the antechamber is exceptionally well preserved, and the arched doorway leading into corridor 42 is standing (Plate 56, Fig. 2). Part of the vault of corridor 42 can be seen in Plate 57, Fig. 1.

The cross-passage connecting corridors 20, 11 and 12 affords communication with the western courts, which form three units, all exactly alike, except for slight variations in width. Each unit consists of a pair of courts and two groups of rooms. A shallow lîwân group lies at the east end of each of the forecourts, O, Q, and S (Plate 57, Fig. 2). Doors from the passage are placed in the side chambers of the lîwâns, and corresponding doors open into the courts. As far as I could ascertain the courts communicated with one another, but the division walls are ruined, often down to ground-level, and it is hard to decide between a doorway and a breach. At the west end of the courts stands a more important lîwân group with an antechamber (Plate 58, Figs. 1 and 2, and Plate 59, Fig. 1). In no case is there a door in the back of the lîwân, but communication with the posterior court is provided by means of a narrow vaulted passage (59, 67 and 75) placed to the south of the lîwân group.[46] There is no latitudinal chamber in the posterior courts, but a small additional chamber (58, 66 and 74), possibly for domestic purposes, lies on the northern side of each lîwân group. A corridor (79) leading out of court N bounds these courts to the south, and at right angles to it another corridor (80) bounds them to the west. The outer wall of No. 80 is ruined to the foundations, and I could not see whether there were doorways opening into the park. There were clear traces of doors leading into this corridor from courts P and T. Parallel to No. 79, but wholly separated from it, runs the continuation of corridor 43, which, after passing round the south side of court N, turns at right angles and opens at its western end into the park (Plate 59, Fig. 2). To the south of these corridors lies a large court, U, with remains of an arcade along its northern side. The space between the arcade and the wall of corridor 43 was probably vaulted; at its southern end it opens into the corridor. Court U is almost square (51 × 51·70 metres). To the west and south its walls are ruined, but on the west side great heaps of stones furnish indications of a gate. On the opposite side of the court there is another gateway of which a considerable part is standing. It is situated at the west end of a rectangular area, court V, arcaded on either side, which must have been intended for a private pleasure-ground or a place for games (Plate 60, Fig. 1). The latter is the more probable conjecture, since there is no direct communication between court V and the palace. The gateway was an important structure. From the western court (U) a porch 2·70 metres deep opened through an archway 3·70 metres wide into a rectangular vaulted chamber (83) 4·50 metres{50} from east to west (Plate 60, Fig. 2). To the east of 83 lay a chamber (82) almost square (5·90 × 5·80 metres) having a rectangular vaulted niche, 1·50 metres deep, to north and south and an archway to the east opening into court V. No. 82 must have been covered by a dome, which was in all probability set over the angles on squinch arches (see below, Plate 69), but no part of the dome is standing (Plate 61). On either side of the gateway there are four chambers accessible only from court V. No. 85 opens into the passage, probably vaulted, which was formed by the northern arcade; No. 89 opens on to the area outside the southern arcade. It would be natural to expect that an outer wall ran parallel to this arcade, dividing court V from the park, and I looked for traces of such a wall, but did not find them. Court V (18·50 × 102·50 metres) terminates in a group of much-ruined buildings of which I could only make out the general plan. The arcaded passage (92) ends in a small vaulted and unlighted room (93) (6·55 × 3·55 metres). To the south of 93 are two large chambers (94 and 95), No. 94 terminating at the southern end in a deep niche. Nos. 93 and 94 are separated by a narrow passage from a small rectangular court (W) having two chambers at either end. Of these chambers Nos. 99 and 100 are completely ruined, but the vaults of Nos. 97 and 98, which are built partly under the upper platform, are standing (Plate 62). To the south lies another small court (X) out of which the passage 101 leads into a small rectangular chamber (102) which in turn communicates with the arcaded corridor 103. This corridor runs round the eastern end of the platform which is carried over it on a vault. The vault, which was very roughly constructed, is noticeably pointed, especially on the east side (Plate 51, Fig. 1). Three double ramps provided access to the platform, the eastern pair being the largest and most important. The eastern ramps begin opposite the fourth detached pier at either end of the arcade of the corridor, where a mass of masonry 6·60 metres long by 4·90 wide blocks the adjoining arch. Vaults carrying the ramp are placed before the seventh and eighth arches from either end of the arcade, and in front of the central arch lies a vaulted chamber 3·75 metres wide. The length of this double ramp is 48 metres (Plate 63, Fig. 1). On the west side of the corridor there are nine vaulted chambers, 5·80 metres deep, which are tunnelled out under the platform. Their doorways correspond with the arches of the corridor. A detached chamber lies at either end of the corridor. The north and south ramps are constructed in the same fashion, but they are only 30·80 metres long. Opposite the central vault there is a chamber under the platform; on either side the platform is solid, after which there are two vaulted chambers.

On the north side of the palace there is another group of much-ruined buildings on the lower level. The arcaded corridor (103) ends at this point in a narrow vaulted chamber (104) which lies under No. 106. Like 106, No. 104 has two arched niches in the south wall. It abuts at its western end against the ramp which descends from No. 106. A narrow passage leads out into a large enclosure,{51} court Y, in which all the walls are ruined. Plate 63, Fig. 2, shows the eastern end of No. 106 with its vault partially preserved, and the walls and substructures of No. 24. In the south-west angle of court Y there was a large chamber (105), and the north-west corner was occupied by two groups of three rooms lying to north and south of the small court Z. Possibly there was a somewhat similar arrangement of rooms on either side of court Z[47].

CHEHÂR QAPÛ

Like the palace of Khusrau, Chehâr Qapû faces east. It covers a rectangular area 134 metres from east to west, and 82·60 metres from north to south (Plate 64). The building materials are the same as those used in the larger palace. The principal entrance is in the east end; I saw nothing of the great portico which M. de Morgan places on the south side, and as the outer wall at that point is entirely ruined, it is impossible to say whether there were a door there or no. The eastern gateway is much ruined (Plate 65, Fig. 1),[47] but the transverse arch between chambers 1 and 2 is standing. To north and south lie a series of courts and small chambers, occupying a width from east to west similar to that of the gateway buildings and apparently appertaining in some way to the entrance, since they do not communicate with the interior of the palace. The eastern wall both of the gateway and of the outer courts has fallen, so that the architectural scheme of the façade cannot be determined. It is certain, however, that it was not symmetrical, for the courts are not symmetrically disposed, nor is the north wing equal in length to the south wing. To the south of the central gate lie two courts, A and B, 10·10 metres from north to south, and 9·35 metres from east to west. Court A is provided with a pair of small rectangular chambers on either side; in court B there are two rooms upon the south side only. There are slight variations in size between these chambers, but they average about 4·10 metres square. They communicated with the court, but not with one another. They have all been covered by conical domes set over the angles on squinch arches. I give an example from No. 6 which will serve to illustrate the construction in every case (Plate 65, Fig. 3). Many of the rooms had a small niche in one wall (Plate 65, Fig. 2), the ṭâqchah, which is to be seen in all Persian houses; it appears again in numerous rooms in the body of the building. In No. 6 the niche is unusually large and, though it has broken through, the plaster decorations on the archivolt are preserved (Plate 66, Fig. 1). They consist of three fillets, and above the archivolt the small oversailing band of plaster which marks the springing of the dome is lifted so as to form a rectangular label. As can be seen from the photographs, most of the plaster has fallen from the walls; where it remains it is usually decorated with an insignificant striated motive consisting of narrow{52} vertical and horizontal bands of five lines each, which look like the impress of some coarse matting on the wet plaster. To the north of the central gate there are two rooms, 9 and 10, communicating with one another. Further north lies a large court, C, 14·10 metres long, with two rooms at either end. Nos. 11 and 12 differ from the usual arrangement. No. 11 measures 6·20 by 4·05 metres and has a niche in the east wall. The north wall, which contained the door into the court, has fallen. No. 12, 1·65 × 4·20 metres, opens into the court by a narrow door in the north-west corner, part of the wall having been cut away to allow space for it. Nos. 13 and 14 are domed rooms of the customary type. In No. 14 the north-west squinch is particularly well preserved, part of the plaster fillets over the archivolt being still in place (Plate 66, Fig. 2).

The central gateway opens into court D, 31·50 × 13·30 metres. At the western end of the south wall of this court there are faint traces of plaster decoration, shallow arched niches separated by engaged colonnettes. The court terminates in a second vaulted gateway (15), which is so much ruined that the details of its structure cannot be made out (Plate 67). On either side of this gate a low archway leads into the vaulted passages 16 and 17. At the eastern end of court D a door gives access to a chamber (18) 27 × 4·20 metres, which forms the east side of court E and opens into that court by two wide doorways. To north and south of court E lie chambers 19 and 20, 12·40 × 4·20 metres and 12·40 × 4·20 metres, which open into the court by three arches carried on masonry piers varying from 2·50 to 2·80 metres in length. On the west side of the court, No. 21 corresponds with No. 18, but the greater part of its walls have fallen. Court F is flanked to the south by No. 23, 11·50 × 4·20 metres, a closed chamber with a single door, and to the north by No. 22, which is only 9·10 metres long in order to allow space for a door leading into No. 24 (11·40 × 4·40 metres). The west side of court F is partly occupied by the vaulted passage (16) and partly by No. 25, a room which no doubt communicated with the court by a door. A door leads from it into No. 26, whence a pair of doorways give access to court G. No. 27 lies to the north of court G and communicates with No. 28, to the north of court H. No. 28 in turn communicates with No. 29, lying parallel with Nos. 30 and 31, two rooms that open out of the west side of court H. Back to back with Nos. 29, 30, and 31 lie Nos. 32, 33, and 34, with doorways opening west. The vaults of these six chambers are well preserved. Plate 68, Fig. 1, shows the interior of No. 31 with an arched ṭâqchah in the wall. The vault is ovoid and oversails the wall.

The courts in the south wing of the palace correspond neither in size nor in disposition with those of the north wing. Opposite to the door of No. 18 a door leads into No. 35, which is an isolated chamber with a deep niche at the south end. Court I can be approached from court D only by a circuitous route through passages 17 and 45. Upon the east side of court I lie the two{53} rooms 36 and 37, 4·40 metres wide and respectively 7·85 and 8 metres long. On the south side there is a group of rooms preceded by an antechamber, of which nothing is standing but a return at the east end of the wall or arcade. Three doors lead out of the antechamber into rooms 39, 40, and 41. In the central chamber (39) there is an arched niche at either end leaving a space 4·15 metres square which was covered by a dome set on squinches (Plate 68, Fig. 2). To east and west, the dome rested upon the arches of the doors leading into Nos. 40 and 41. Beyond 41 there is another room, 42, which was accessible from 41 only. On the north side of court I are two small rooms, 43 and 44, about 4·15 metres square and much ruined. Further west is the entrance to corridor 45. Court I is separated from court J by a wall which is ruined to its foundations. On the south side there is a single long chamber (47) with an antechamber; the north side is occupied by corridor 45, which is accessible from court J by a door in the north-west corner of the court. Corridor 45 communicates with corridor 17, a transverse arch separating the two. I call attention to the fact that the vault builders were always careful to avoid intersection; when two barrel vaults meet at right angles, the one is always divided from the other by a transverse arch. This is very noticeable in corridor 17, where the vault is standing. In the eastern arm of the corridor, opening out of court D, the east and west vault terminates against a transverse arch so as to allow the north and south vault of the western arm to run straight through to the head wall at the northern end.

The western arm of corridor 17 opens into court K. The north and west sides of this court are completely ruined and represented only by grass-grown heaps of stones. On the south side there is a true lîwân group (49, 50, 51) with an antechamber, the lîwân (49) opening into the antechamber through a wide archway, the side chambers (50 and 51) by means of doors. To the west of these chambers there is an open space with no buildings standing upon it; even the outer wall is completely ruined. It is here that the south gate is placed in the French plan. Some 19 to 20 metres west of No. 50, two chambers (52 and 53) with an antechamber are partially preserved. A mound of stones and grass runs northward, continuing the west wall of Nos. 51 and 53. East of this mound, at any rate at its northern end, there were ruin heaps indicating chambers, but I was not able to discern their exact form or extent, nor yet their relation to the hall 54. This hall is a chamber 16·15 metres square, with walls 3·90 metres thick which carried a dome set upon squinch arches (Plate 69, Fig. 1). No part of this dome is standing, but it is safe to conjecture that it was built of brick.[48] The method of constructing the squinches can be{54} seen best at the south-west angle (Plate 69, Fig. 2). An archway, 5·70 metres wide, breaks the centre of each wall. The round arches were built of brick, but on the south side only is any considerable portion of the brickwork preserved (Plate 70, Figs. 1 and 2). The bricks are laid horizontally, not vertically, i.e. with the narrow face outward. Above each archway there is a small round-headed window. On the exterior the face of the walls has perished to a considerable extent. Between the top of the archways and the bottom of the windows the wall would seem to have been recessed back slightly (Plate 71), and at this level the corners of the building appear to have been sliced off, thus reducing the mass of masonry behind the squinches. This effect may, however, be produced merely by the decay of the masonry, for the lower part of the walls also has invariably broken away at the angles. At the north-east and north-west corners I noticed some brickwork embedded in the stone masonry. No. 54 stands 9 metres from the western outer wall, of which at this point nothing but foundations remain. At the north-west angle there are ruins of four chambers (55, 56, 57, 58) placed two deep, and to the south four chambers (59, 60, 61, 62) lie parallel to one another along the wall. No. 62 breaks off abruptly with a high peak of masonry (Plate 72), possibly part of an upper story. I saw no trace of any building further to the west.{55}

CHAPTER IV

GENESIS OF THE EARLY MOHAMMADAN PALACE

The palace of Ukhaiḍir is not an isolated phenomenon. It belongs to a group of buildings which exhibit in varying proportions the characteristic features of the fortress and of the pleasure-house of princes. These buildings are scattered over the western frontiers of the Syrian desert; Ukhaiḍir is as yet the sole example of the type which has been discovered upon the eastern side. They are a logical outcome of the period of cultural transition during which they arose, the difficult and distasteful passage from nomadic to settled life; they attest the abiding call of the open wilderness, to which the poets and chroniclers of the first century after the Hidjrah are faithful witnesses. To the Arab the desert is more than a habitation; it is the guardian of traditions older and more deeply rooted than those of Islâm; of traditions which are sacred to his race; of his purest speech, and of his finest chivalry. It is for him the natural theatre of his actions, and there is no other stage on which he can play out his part. To this day I have heard the Beduin speak of themselves as the Ahl al-Ba’îr, the People of the Camel, just as they spoke of themselves in the early centuries as Ahl al-Ḍar’, People of the Udder.[49] The authority of the Prophet was powerless to stay the current of his race. ‘Periodically the Arabs succumbed to the allurement of the camel, to the need to drink of its milk. The Prophet himself was not exempt, since he prayed God to preserve him from it. For his nation, said he, he dreaded the diet of milk. When his companions expressed their astonishment at his fears, he replied: “The passion for milk will lead you to abandon the centres of reunion and to return to nomad existence.”‘[50] His immediate successors followed the example set by him, but the national inclination was not to be restrained, and the Umayyad khalifs returned to the habits of their forefathers. Their capital was Damascus, but their residence was the Syrian desert. They escaped to the bâdiyah, the spring pasturage in the rolling steppes, where the tents of the Ṣukhûr still cover the plain when the winter rains are past; they transported their courts to the ḥîrah, the palace camp.{56}

The word ‘ḥair’ denotes a camp, a castle, or a villa.[51] The original signification does not seem to have implied solid constructions, but rather the headquarters of a desert princeling and his retainers. Such an assemblage must necessarily have been mobile. The exigencies of pasturage and the uncertainties inherent in tribal predominance, where the limits of authority cannot be expressed in terms of geographic definition, were alike unfavourable to stable residence. Joshua the Stylite[52] talks of the ḥertâ of Nu’mân ibn Mundhir as having withdrawn into the inner desert before the attack of the Tha’labites—it must therefore have been a movable camp; on the western borders there is no certain evidence that the Ghassânid princes possessed either fenced cities or garrisoned fortresses.[53] But before the dawn of the Mohammadan era the ḥîrah had begun to change its character, and the nomad encampment to develop into the standing camp and even into the city. The Ghassânids must have had a fixed establishment in the Djaulân,[54] and some of the existing ruins on the eastern frontiers of the Ḥaurân may date from their time. At Khirbet al-Baiḍâ, for example, I could find no certain trace of Roman handiwork. The plan might date from the age of Diocletian, but the decorations betray a different origin.[55] Yet I cannot place them as late as the Umayyad period. Djebel Sais I have not seen.[56] The plan of the bath recalls the arrangement of the chambers at Qṣair ‘Amrah, and it may therefore be Mohammadan. At Qaṣr al-Azraq, Dussaud found a dedication to the emperors Diocletian and Maximian, but the fortress would seem to have been rebuilt in the thirteenth century A.D.[57]

Similarly upon the eastern side of the desert, the Lakhmid camp had grown into an important town, which absorbed the generic title and was known as al-Ḥîrah, the standing camp par excellence, the capital of Persian Arabia. But no sooner did the Lakhmid princes find themselves enclosed within the walls of a city than they threw out fresh ḥîrahs into the desert: palaces, the magnificence of which haunted the imagination of Beduin poets of the Days of Ignorance and gave birth to legendary tales and to moral aphorisms which were recorded with pious, if uncritical, exactitude by the historians of Islâm. We know the site of the most famous of these pleasaunces, Khawarnaq.[58] Ibn Baṭûṭah, in the fourteenth century A.D., saw the remains of its immense domes on the edge of a canal which was fed by the Hindiyyeh branch of the Euphrates. In his day it was still inhabited. The existing ruin mounds, standing upon the brink of the Sea of Nedjef, are covered with the sherds of mediaeval pottery. The{57} canal has now silted up and the Sea of Nedjef is dry. I was told at Nedjef that thirty or forty years ago the lake was full of water, and that the climate of the town, never very much to boast of, had been considerably affected for the worse by the change. Below the town, the bed of the lake is occupied by palm-gardens and cornfields, watered by a canal recently constructed. What was its condition in Sasanian times I do not know. The lake was dry in the Middle Ages,[59] but ‘Adi ibn Zaid speaks of the Nu’mânid lord of Khawarnaq as having looked from his palace walls and rejoiced at the sight of the sea.[60] It is difficult to imagine that any one could have rejoiced in the Baḥr Nedjef if it had worn its present aspect. The extent of the mounds of Khawarnaq is not large, though my impression is that part of the steep earth cliff overhanging the Baḥr Nedjef has fallen away and carried the castle walls with it. The ancient canal from the Hindiyyeh lies about a quarter of a mile to the north of the mounds. Legend has been busy in accounting for the origin of the castle. It is said to have been built by Nu’mân ibn Imra’ al-Qais, by order of the Sasanian king Yazdegerd I, who desired that his son, Bahrâm V Gûr, should be brought up in the salubrious air of the desert above Ḥîrah. This would place its foundation in the early part of the fifth century A.D.[61] The architect was a certain Sinimmâr, a Byzantine (Rûmi) according to some authorities,[62] nor need this assertion excite surprise. A century later Justinian lent workmen to Khusrau I, when the latter was engaged in building the new Antioch near Ctesiphon. Other Lakhmid ḥîrahs are mentioned besides Khawarnaq, but they are to us nothing but a name. Al-Sadîr stood in the desert ‘that lies between al-Ḥîrah and Syria’,[63] presumably not far from Khawarnaq, since the two castles are frequently mentioned together. We hear also of al-Ṣinnîn, where ‘Adi ibn Zaid was imprisoned.[64] Of greater importance was al-Anbâr on the Euphrates, which was rebuilt by Shapûr II in the early part of the fourth century.[65] None of the Lakhmid ḥîrahs in the desert, except Khawarnaq, have been identified. In 1911 I rode out across the Baḥr Nedjef from Khan Muṣallâ to see a ruin called al-Ruḥbân, which was reputed to be ancient, but found nothing except a mud-built wall erected by the Bani Ḥasan. A few palm-trees had been planted near it. My guide, a sheikh of the tribe, was much distressed when I denied to Ruḥbân the antiquity which had been claimed for it. ‘Mistress,’ he expostulated, ‘before my beard was grown, I saw it here.’ His age I should judge to have been no greater than my own, and Ruḥbân may have had the advantage of us by a {58}decade. After this disappointment I declined to visit other quṣûr of the Bani Ḥasan (qaṣr = fort, is the name which is applied to any walled village or palm-garden) though he mentioned a considerable number. Subsequently a mullah of the Nedjef mosque told me that there were ancient remains at Ḥiyyadhiyyeh, which lies somewhere between the Baḥr Nedjef and Ukhaiḍir, to the south of the line across the desert which I had followed. Ḥiyyadhiyyeh is mentioned by Niebuhr in his itinerary from Baṣrah to Aleppo by the desert road—Meshed ‘Ali, el Tukteqâne or el Heiadîe, el Hossian, el Chader (Ukhaiḍir) Ras el ‘Ain.[66] I doubt whether there is much to be found on the surface at Ḥiyyadhiyyeh, for the Bani Ḥasan have planted palm-groves there, and in so doing, they have probably destroyed most of what was old, but the mullah asserted that a Lakhmid castle had stood at that spot and another at Ruḥbeh, which he said was identical with Qâdisiyyeh.[67] I give his opinion for what it is worth, which is very little. There are, however, no doubt old ruins at Ruḥbeh, whether Lakhmid or of a later time, if it occupies the site of Qâdisiyyeh—a very possible hypothesis. It was a large village in A.D. 635, when the Mohammadan invaders defeated the Persians close to its walls. Muqaddasi knew it as a walled town on the pilgrimage road. Mustaufi (fourteenth century) describes it as mostly in ruins, while Ibn Baṭûṭah speaks of it as a large village.[68] The Sâl Nâmeh of the Vilâyet of Baghdâd mentions a ruined qaṣr at Ruḥbeh.[69] The sheikh of the Bani Ḥasan gave me the names of ‘Izziyyeh,[70] and ‘Atiyyah as quṣûr of his tribe, but he did not think that there were ruins at either place.

To our scanty information concerning the pre-Mohammadan ḥîrahs one other item is to be added. Mas’ûdi gives an account in the following terms of a palace built at Sâmarrâ by the khalif Mutawakkil (A.D. 847-861) in imitation of a Lakhmid ḥî ah: ‘Mutawakkil in his days raised a building such as no man knew, it is that which is called the ḥîri and the two wings (literally sleeves) and the porticoes (arûqah). And that was because a companion of his vigils related to him upon a certain night that one of the kings of Ḥîrah, a Nu’mânid of the Bani Naṣr, erected an edifice in his capital, which was al-Ḥîrah, after the model of an army in battle. (The word I have translated by army in battle is ḥarb = war or campaign; Dr. Herzfeld suggests that it must be taken here to mean military camp—a somewhat hypothetical emendation)[71]. For such was his infatuation for war and his love of it; so that the memory of it might never vanish from him under any condition. In this edifice the portico was the{59} audience chamber of the king, and this was the centre (literally the breast); and the two wings (sleeves) lay to right and left. In the two dwellings which formed the wings lodged those who stood nearest to him among his courtiers. In the right wing was the wardrobe, and in the left wing was kept such wine as was needed. The open court of the portico was common to the centre and to the two wings. The doors, three in number, led to the portico. To this day this building (i.e. Mutawakkil’s copy) is called the ḥîri and the two wings in allusion to al-Ḥîrah. And the people followed Mutawakkil, imitating his creation, which is famous to the present time.’[72] The word riwâq, which I have translated ‘portico’, does not necessarily imply the existence of columns, though it is used for the porticoes which surround the court of a mosque. Its primary signification is a roof in front of a tent, supported by a single pole in the middle.[73] I shall have occasion to return later to this important passage (see below, p. 86).

But if we have little knowledge of the Lakhmid ḥîrahs which were the precursors of Ukhaiḍir on the eastern frontiers of the desert, we have another and a richer source of information in the Sasanian palaces. The Lakhmid princes stood in close relations with the Sasanian empire. Among the officials of the Persian court there was an Arab secretary whose special duty it was to conduct the correspondence with ‘the land of the Arabs’. Moreover, it is related that the Arab phylarch paid a yearly visit to the court of the Chosroës.[74] To a Lakhmid the education of a Persian prince was entrusted, and Lakhmid armies placed Bahrâm V upon a contested throne. The Christians of Ḥîrah belonged to the Nestorian church, the church of Assyria; we hear of one, the poet ‘Adi ibn Zaid, who was Arab secretary and enjoyed great influence with Khusrau Parwêz. Half allies, half vassals, the Lakhmid phylarchs fought side by side with the Persians against Rome;[75] they were sufficiently independent to receive an embassy from the Byzantine emperor, and sufficiently important to warrant an attempt on his part to buy them over from the Sasanians. Finally, at the beginning of the seventh century, Khusrau Parwêz set the Lakhmid dynasty aside and established in place of Nu’mân III an Arab of the Ṭayy, who lived and held his court at ‘Ain al-Tamr near Ukhaiḍir. Possibly the huge walls of Qaṣr Sham’ûn, on the outskirts of the oasis,[76] may date from the time when ‘Ain al-Tamr was the residence of the phylarch. But he was no longer an independent ruler; a Persian adviser was appointed to assist him, and a few years later the state was converted into a province of the Sasanian empire under a Persian regent. Independent or subject, the civilization of Ḥîrah must have been modelled upon that of Ctesiphon; Persian influence must have been predominant in its arts and its architecture, and the Lakhmid ḥîrahs{60} must have reflected the glories of Sasanian palaces. It is to these palaces that we should look first for an explanation of the architectural scheme of Ukhaiḍir. One reservation must, however, be made. It is true that Ukhaiḍir cannot be regarded as primarily a fortress. The absence of any sufficient provision of water would have been a fatal weakness in time of siege. No cistern exists within the palace; no ancient well has been found, and if the conditions were the same of old as they are now (which is, however, by no means a safe assumption), any water within the palace would have been too brackish to drink, as is the case in the modern well in the palace yard. Moreover, the outer ring of walls, which encloses the northern annex, was obviously too weak for defence; it is more like the garden wall of a pleasure-ground. Nevertheless, considerable care has been lavished upon the defences of the main building. They were, and they are to this day, adequate for the spasmodic warfare of the Arab tribes. In the very act of construction the architect seems to have bethought him that such protection was necessary and to have added a strong girdle to his palace plan. On the other hand, the Sasanian palaces, so far as they are known to us, are either unfortified, or they stand within a fortified park, the walls and towers of which are not in direct structural relation with the residential buildings. At the same time Sasanian military works, where they have been examined, do not differ materially from those of Ukhaiḍir; the fortress of Qala’-i-Khusrau at Qaṣr-i-Shîrîn is an excellent case in point (Plate 73, Fig. 1). It is a rectangular enclosure, about the size of Ukhaiḍir (roughly 180 metres square), surrounded by a wall which is strengthened by rounded towers. The towers are somewhat differently disposed from those of Ukhaiḍir; they are larger and they are set twice as far apart, but the scheme is the same in both places. The interior buildings are much ruined. A row of chambers, or more probably, from the width of the ruin heaps, a row of small courts with chambers grouped round them, adjoined the inner side of the walls, leaving a central court which was partly filled by a large building, rectangular in plan. The town wall of Dastadjird was also furnished with rounded towers.[77]

Almost without exception the plan of the Sasanian palaces is a development of the lîwân type, the origin of which is to be sought in the southern Hittite sphere, northern Syria and the mountain lands north of the Mesopotamian plain. The architecture of this region is known to us best through the excavations at Zindjirli, where the evolution of the southern Hittite palace can be traced over a period of close upon a thousand years.[78] It is an evolution which is dominated{61}

Fig. 5. Zindjirli. (From Ausgrabungen in Sendschirli, by kind permission of the D. Orient-Gesellschaft.)

from the first to last by the monumental gateway. At Zindjirli the type appears in its earliest and simplest form in the gateways of the inner city wall, which Professor Koldewey places approximately in the thirteenth century before our era.[79] A doorway set back between a pair of solid towers leads into a narrow{62}

Fig. 6. Pasargadae. (From Iranische Felsreliefs, by kind permission of the authors.)

court, placed latitudinally, with a second doorway opposite to the first (Fig. 5, D). Three hundred years later this structure is adapted, in the earliest khilâni palace, to residential purposes (Fig. 5, G).[80] The solid towers remain, but the space between them has been converted into a covered portico, or lîwân, and the inner latitudinal court has become a latitudinal hall with a small chamber at either end. The further development is characterized by the multiplication of chambers and the disappearance of features proper to the fortress. In the khilâni palace erected after Asarhaddon’s destruction of the city in the first half of the seventh century (it appears in Fig. 5 to the north-west of G), the arrangement of the subsidiary chambers is conceived on freer lines, the walls are thinner, the flanking towers of the lîwân have disappeared, and in their stead are set tower chambers; in short the fortress towers have given place to a purely decorative motive, the towered façade, which was destined to have a long and honourable history in Christian architecture.[81] That the Hittite khilâni was imitated by the Assyrians during the eighth and the seventh centuries we know both from inscriptions and from excavations.[82] To it the Assyrian builders owed the introduction of the column, which was foreign to their architecture. At Pasargadae the khilâni reappears in a form which bears testimony to its Hittite parentage.[83] The façade towers, the columned lîwân, the orthostatic construction, and more significant still, the latitudinal disposition of the chambers, are all{63} to be found in the Pasargadae palaces, but the greater depth which was given to the principal room necessitated the introduction of a double line of columns to support the roof (Fig. 6). At Persepolis and at Susa the same scheme is carried out in colossal dimensions. It is found alike in the gigantic apadanas and in the palaces, in the one case adapted to the ceremonial magnificence of the Persian king of kings, in the other to the requirements of the dwelling-house. In the apadana, the lîwân was deepened and a second row of columns was added to the first; the hall of audience was magnified into a huge quadrangular chamber, the roof of which was supported by a forest of columns; solid towers of unburnt brick flanked the lîwân, and subsidiary lîwâns occupied the space behind them on either side of the audience hall (Fig. 7). In the palaces the towers were hollowed out into rooms correspondingly in depth with the lîwân, and the audience hall was flanked by side chambers. Where space permitted, as in the palace of Darius at Persepolis, additional rooms were disposed round a courtyard at the back of the edifice. So constituted, the Achaemenid palace reproduced the traits of the later khilânis at Zindjirli in a form adapted to new requirements (Fig. 8).

Fig. 7. Persepolis, Apadana of Xerxes. (From Iranische Felsreliefs, by kind permission of the authors.)

Before the khilâni palace was taken up again by Persian hands, an immense revolution had swept over western Asia. Alexander’s invasion is a turning-point{64}

Fig. 8. Persepolis, Palace of Darius.

(From L’Art antique de la Perse, by kind permission of M. Dieulafoy.)

in history. The Mesopotamian arts emerged from the period of Greek rule profoundly modified by direct intercourse with the West; for the Seleucid kingdom, with one capital on the Tigris and another on the Orontes, had bridged the gulf between Babylonia and the Mediterranean coast-lands. Greek culture,{65} Greek artistic conceptions were carried across Asia by the invaders; but the further they penetrated, the less they overmastered local tradition. Babylonia, Assyria and Persia were never Hellenized in the sense in which Syria was Hellenized. The ancient East, with 3,000 years and more of a highly elaborated civilization behind her, assimilated what was brought to her, but she used it after her own fashion. She turned the Greek kings into oriental despots, and translated Greek ideas into her own forms of expression. The architectural remains of this period are as yet scanty. Seleucia and Antioch are unexplored, and except for the Greek theatre at Babylon, the excavation of Mesopotamian sites has yielded little but fragments.[84] But if the Seleucid era is comparatively unknown, the new elements which the Greek conquest had introduced into oriental architecture stand out with an amazing vividness in Parthian buildings. Loftus, whose excavations at Warka were the first to reveal a great Parthian settlement on a Babylonian mound, was not slow to appreciate the significance of his discoveries.[85] Together with capitals which bore an obvious relationship to the Ionic, and walls enriched with Ionic half-fluted engaged columns, he found plaster ornaments and fragments of wall-surface decoration covered with continuous geometric patterns in which he recognized an art that was essentially oriental. The Chaldaean monuments at Warka were covered with mosaics set in geometric designs which are the prototypes of the Parthian coloured reliefs.[86] Hellenistic houses of the Parthian period have been unearthed in the Amrân mound at Babylon. The small Parthian palace at Niffer, with its columned hall of audience, opening through an anteroom, which is in the nature of a closed lîwân, into a square peristyle, resembles a Greek dwelling-house seen through a Babylonian medium[87] (Fig. 9). At Assur, together with a temple (if temple it were) which is almost peripteral,[88] and a stoa,[89] we have a palace on a lîwân plan, with ionicizing capitals and a façade of stucco mock-architecture{66}

Fig. 9. Parthian palace at Niffer. (By kind permission of Messrs. Holman.)

which indicates the road that led from the Hellenistic façade in two orders[90] to the stucco façades of Ctesiphon and Ukhaiḍir.[91] At Hatra a building which looks like the Parthian conception of a temple in antis stands in the court of a monumental lîwân palace,[92] but so far as can be judged without excavation the Hellenistic house is conspicuous by its absence. Not only the royal palace (Fig. 10) but also such of the smaller palaces as are known to us through the admirable publication of the Deutsche Orient-Gesellschaft, show a strongly characterized lîwân plan. To the Parthian interpretation of the venerable khilâni scheme the Moslem East has remained unswervingly true. The lîwân, as it is to be seen at Hatra, dominated the fancy of the Sasanian and of the early Mohammadan architects, and it continues to be an indispensable part of the modern house of Damascus or Baghdâd—except indeed the post-modern, which are wretched imitations of the worst European styles, but these are found more often in ultra-civilized Syria than in Mesopotamia. The huge Parthian lîwân was possibly a result of the introduction of the vault. The great hall, in which, no matter what its size, the interior space was unbroken by pier or column, was a setting for princely state which could not be enhanced by any{67}

Fig. 10. Hatra palace. (From Hatra, by kind permission of the D. Orient-Gesellschaft.)

{68}

architectural device. Portico and audience chamber were blended together, and the columns of the one served to enrich the walls which flanked the monumental archway of the other.

The vault itself was not a new feature. It was well known to Babylonian and to Assyrian builders, by whom it was used to cover spaces of narrow span.[93] Vaulted drains and tombs are of frequent occurrence, and Place found a barrel vault with a span of 4 metres in the gateways of Sargon’s palace at Khorsâbâd.[94] But though the principles of vault construction were familiar, the vault does not seem to have been developed to any notable extent before the second Babylonian empire at the earliest. Félix Thomas claims to have found the remains of monumental vaults in Sargon’s palace, but the proofs which he adduces are not convincing. There is no direct evidence for the domes which Place reconstructs over the rectangular chambers adjoining the temples, the area of the palace which was known in his days as the Harâm.[95] Layard found no trace of monumental vaults in his excavations of Assyrian palaces,[96] nor have any been discovered by the German excavators at Assur. Professor Koldewey is of opinion that the great hall at Babylon was vaulted, since, in the absence of all trace of columns, no other way of covering it is conceivable; and though direct evidence is not forthcoming, there is a strong likelihood that the proportions of the vault may have been greatly increased, and its structural value much more fully realized towards the end of the seventh or the beginning of the sixth century before Christ.[97] There are no data for its employment in Mesopotamia during the Hellenistic period, but it may safely be assumed that the absence of vaulted buildings in the eastern parts of the Seleucid kingdom is fortuitous. From the fourth century B.C. onwards western Asia shows a continuous series of cut stone vaults of small span,[98] many of which exhibit traits which point to their derivation from the sun-dried brick vaults of Assyria or from the cut stone vaults of the Saitic period in Egypt, themselves a derivation from sun-dried brick construction. In the second half of the third century, vaults with similar characteristics appear under Hellenistic influence in central Italy, where, after the middle of the second century, they underwent a development to which the Hellenistic East can offer no parallel.[99] At the end of the{69} second century, while Latin builders threw their stone vaults securely over a span of 14·50 metres, as in the Ponte di Cecco in the Via Salaria, and even of 18·50 metres, as in the Pons Mulvius,[100] the Greeks of Asia Minor did not venture upon a span wider than 7·10 metres,[101] and confined themselves as a rule to vaults under 4 metres in span. It was now the part of the East to learn from Imperial Rome. Western Asia took back its own creation from the hands of Roman builders in the vast proportions which the proficiency of the latter had given to it, and over the whole of the Roman Empire the monumental vault sprang into being. The earliest extant examples on Mesopotamian soil are the great vaults of the palace at Hatra.[102] Throughout the city, so far as our knowledge goes, the vault is systematically used, and for the first time it is constructed of dressed stone, not of brick. For it must be borne in mind that the expansion in Asia of the Roman Imperial stone and mortar vaulted architecture encountered a similar expansion of brick vaulted architecture in which both material and structure point to an ancient oriental tradition and an independent Asiatic origin.[103] If Hatra is the oldest example of the systematic use of the vault in a monumental building, the very presence there of a method so fully developed postulates a long evolution. That this evolution was oriental is suggested by the fact that the forms which the vault assumes at Hatra can be traced back, almost without exception, to Asiatic brickwork, while the systematic employment of the vault is foreshadowed in hollow substructures which date from the Hellenistic era, and even from earlier times.[104] In Babylon such substructures, several stories high, roofed with stone slabs, would seem to have been devised before Alexander’s conquest, while Strabo’s description, which probably applies to a Hellenistic reconstruction, mentions terraces in which the vaults rested on cube-shaped piers, vaults and piers being built of burnt brick with a mortar of asphalt. Moreover, Strabo notes that in Seleucia, the capital of the Hellenistic kingdom on the Tigris, all the houses were vaulted on account of the want of timber.[105] That these vaults were of brick goes without saying; stone was even{70} more difficult to obtain at Seleucia than wood. In this connexion the possibility that Nebuchadnezzar’s great hall at Babylon may have been covered with a vault should not be overlooked.

The vaults of Hatra fall into five groups.

1. A primitive vault, composed of oversailing horizontal courses of stone is found in the small chambers of tombs (Hatra, ii, Figs. 93, 111, 155). Sometimes the walls incline smoothly inwards from base to summit until the space between them is narrowed sufficiently to admit of the imposition of a covering slab (Hatra, ii, Figs. 99, 118, 120, 155. In Fig. 155 the slope begins in the fourth course above the base). The vault built of oversailing horizontal courses was an obvious expedient for the roofing of narrow spaces, and it is, as might have been expected, widely distributed.[106] There is one instance at Hatra of a dome constructed in the same manner. It covers a rectangular chamber, 1·50 × 1·70 metres, and it is the solitary known example of an attempt on the part of Parthian builders to solve the problem of a circular vault over a rectangular substructure (Hatra, ii, Fig. 93).

2. The true vault oversailing the wall occurs in numerous tomb chambers (Hatra, ii, Figs. 100, 105, 125, 130, 144, 145, 149, 152, 163), as well as in most of the smaller rooms of the inner palace (Hatra, ii, Figs. 225, 226, 237, and Plate 8) (Plate 74, Fig. 2). It is a form which originated in brick building. It is found in Assyrian brick tombs,[107] but never, so far as my knowledge goes, in any dressed stone vaults save in those of Hatra. It appears at Ctesiphon in the side vaults,[108] and in the rough stonework of Qaṣr-i-Shîrîn (Plate 52, Fig. 2, and Plate 68, Fig. 1). It is constant at Ukhaiḍir and in early Mohammadan architecture,[109] and it is used invariably in the brick vaulted constructions of Mesopotamia at the present day. It is perhaps the triumphant survival of the old brick vault of horizontal oversailing courses, represented by Mughair, and it bears, at Hatra and elsewhere, another indubitable mark of its brick origin in the horizontal or almost horizontal joints of its lower courses.[110]

3. The vault springing flush with the walls is used in tombs (Hatra, ii, Figs. 103, 118, 128, 139, 159), in the southern and in the northern lîwâns of the main palace and in the two lîwâns which were added at the northern end (Hatra, ii, Plate 8), in the western annex, the so-called temple (Hatra, ii, Plate 9), and in building B (Hatra, ii, Fig. 183). The moulded cornice, which usually divides this vault from the walls below, is absent in most of the tombs. The high stilt{71} formed by the horizontal lower courses, which is especially remarkable in the larger of these vaults, differentiates them from western Hellenistic vaulting and connects them more closely with brick forms. In one of the smaller palaces there is a striking example of the survival of brick building methods (Hatra, ii, Fig. 74). The stone vault is composed, almost to its whole height, of horizontal courses, and only the very top of the arch is filled in with radiating voussoirs. Nor is the elliptical vault, which is the form naturally assumed by oriental uncentered brickwork[111] wanting at Hatra (Hatra, ii, Figs. 108 and 162, Fig. 162 being a primitive example, where the vault is carried down to the floor of the chamber).

4. One room on the upper floor of the palace shows a fuller comprehension of the thrust and buttressing of the vault (room No. 12, Hatra, ii, Plate 10 and Fig. 226). The space to be covered is diminished by placing two arched niches on either side, a system which points the way to the breaking up of the wall into buttressing piers. This principle was carried out yet further by Sasanian builders. In the palace of Sarvistân the lower portion of the piers was detached from the body of the wall and further lightened by being divided into two small columns,[112] while angle piers terminating in a single detached column bore the dome of a chamber situated at the back of the palace (Plate 74, Fig. 1). The advance in structural knowledge thus gained was carried little further in these regions; indeed it is curious to observe that Ukhaiḍir exhibits a movement in the opposite direction. Although in rooms 33 and 40 the vaults are set upon columns which stand absolutely free, the vault of the great hall rests upon arched niches whereof the piers are connected with the wall, and the principle of the detached column is recalled only by the engaged columns which form part of the pier. The arcade on free standing columns with a vaulted corridor behind it is of frequent occurrence, but the fact that in all the palace only one, and that one the shortest, of these arcades remains standing (No. 20) shows that the skill of the builders was at fault. Again, in the church of Mâr Ṭahmâsgerd at Kerkûk the engaged columns are present, as in the great hall of Ukhaiḍir, but in the same manner they are structurally one with the piers behind them[113] (Plate 75, Fig. 1); and in the churches of northern Mesopotamia, where deep niches under the vault are a constant feature, the engaged pier of Hatra returns in all its primitive simplicity.[114] Whether the data afforded by extant monuments in Mesopotamia and Persia are conclusive would be hard to determine. The setting of arch, vault, and dome on free standing supports would seem to have been a conception deeply rooted in Hellenistic art, but for actual examples we can adduce only the evidence of{72} relief architecture or the disposition of rock-cut tombs and temples. The blind order under the vault of the men’s caldarium near the forum at Pompeii,[115] the rock-cut dome on engaged columns of the Hellenistic tomb of Akeldama at Jerusalem[116] exhibit a motive to which the architecture of a later age was to give fully developed plastic execution. Yet more explicit are the indications afforded by the rock-cut monuments of Egypt and of India. At Memphis one of the graves of the Persian period shows a vaulted nave resting on piers,[117] and the rock-cut temples of Hellenistic India, with their long vaulted naves resting on columns,[118] point to similar achievements in the Seleucid architecture of Mesopotamia from which they are derived. The existence of an underlying desire to solve statical problems which were of the highest importance to the spatial interior is attested by the sporadic survival of such buildings as the Praetorium at Musmiyyeh and a room in the Golden House of Nero,[119] where the four-sided and the round dome were placed respectively on piers and on columns; but the final mastery was reserved for early Christian builders of the Hellenistic coast-lands, or developed in the same age in Rome out of methods which were specifically Roman, such as the intersecting barrel vault and construction in concrete. In Rome also the original impulse may have come from the East.[120]

5. In three of the upper rooms in the palace (Nos. 13, 15, and 16, Hatra, ii, Figs. 227 and 228, and Plate 10) the roof is formed by means of transverse arches (respectively five, three, and one in number) carrying stone slabs which cover the space between them. This type of roof was universally employed in Syria from Nabataean times until the Mohammadan invasion.[121] It was a simple and a satisfactory method of roofing in stone in a country where centering beams, sufficiently massive to sustain a stone vault, were difficult to obtain. I know no other Mesopotamian example of it in stone, but it was copied in Sasanian brickwork, where the stone slab was replaced by a brick vault running at right angles to the main axis.[122] In this form it finds a place at Ukhaiḍir in room 32, and it continued to be used by Mohammadan builders in the Middle Ages, the most renowned example being that of Khân Orthma, at Baghdâd.[123]

The absence of the dome at Hatra is significant. The small square chambers of the palace were well suited to dome construction, yet nothing but the barrel vault is present. Moreover, it is the barrel vault in its simplest expression;{73} not even an intersection is attempted. In the vaulted passage surrounding the central chamber of the western annex, the ‘temple’, one end of the vault terminates on each of the four sides against a transverse arch, whereby the insuperable difficulty of intersection was avoided[124] (Plate 75, Fig. 2). Hellenistic builders had attacked the problem as early as the second century B.C. in Asia Minor,[125] and yet more boldly in Rome.[126] I know no single example of the intersection of barrel vaults in Sasanian buildings; even at Ukhaiḍir the system is sparingly used, and never without careful abutment. Where two barrel vaults meet at right angles, they are either joined together diagonally, without intersection, as in the chemin de ronde, or they terminate against transverse arches, and not infrequently in the rectangular space thus formed, a semi-dome takes the place of the intersecting vault, as in the mosque and in the upper gallery No. 134. The rock-cut temples of India exhibit a similar termination of the barrel vault in a semi-dome.[127] The dome, though it is at Ukhaiḍir of frequent occurrence, the chambers of the chemin de ronde in all the round towers being domed as well as the two chambers north and south of the great hall, Nos. 4 and 27, is never placed over a span wider than 3·10 metres. The square rooms, Nos. 30 and 141, behind the two lîwâns 29 and 140, where, on the analogy of the Sasanian palaces (see below, pp. 74, 76 and 78) a dome might be expected, are covered in one case by a barrel vault, and in the other case by a groined vault. There was no question here of a dome on free standing columns; where the opportunity occurred, in rooms 33 and 40, it was set aside in favour of parallel barrel vaults. The domed chambers in the towers have a circular ground-plan, and when the problem presented by the rectangular substructure arose, it was met in a fashion which is applicable only to very small edifices. The dome in No. 4, and all the calottes over rectangular niches, are set over the angles upon horizontal brackets of masonry. On the octagon, or half-octagon, thus formed, a circle or segment of a circle of small diameter could be placed without any difficulty. It was an expedient which had been adopted by early dome builders both in Syria and Asia Minor,[128] but it was inadequate when the space to be covered assumed larger dimensions and, before the date of Ukhaiḍir, Byzantine and Sasanian architects had elaborated solutions of the problem. In the West the great dome of Santa Sofia had already been placed securely upon stone pendentives; in Persia the use of the arched angle niche, or squinch, had enabled Sasanian builders to throw their domes over a span of 16 metres. The three domes of Firûzâbâd, the earliest of the Sasanian palaces, have a diameter of 13·30 metres; the larger of the two domes{74} at Sarvistân is about 12 metres across, the dome in the smaller palace at Qaṣr-i-Shîrîn covered a chamber 16·15 metres square.[129] If the audience chamber in the larger palace at Qaṣr-i-Shîrîn was domed, as I suspect, it covered an area about 16 metres square. Under this dome, at each angle, at a distance of 2·90 metres from the walls stands a corner pier 1·40 metres square, terminating on the two inner sides in an engaged column 1 metre in length. The distance between the piers is thus about 16 metres, that is to say that the dome would have been no larger in diameter than that which covered the principal chamber in the neighbouring palace. The walls there are 3·90 metres thick, whereas the side walls of the chamber in the palace of Khusrau are never more than 2 metres thick, but in the one case the wall was the only support, whereas in the other the thrust would have been taken first by the angle supports and by them transferred to the outer wall. Moreover, the walls themselves were buttressed by vaulted rooms. The piers are buried about 1 metre in the ruins with which the hall is filled (the ruin heaps lie deepest along the walls and reach almost to the height of a doorway arch which remains in place on the south side); the best preserved of the four piers projects less than 1 metre out of the present surface; that is to say that its whole height is at present under 2 metres. It is conceivable that the piers may at no time have been carried very much higher. Like the columns under the small dome at Sarvistân, they may have been bound into the wall at that level by arches carrying a barrel vault, which would in this instance have had a span of 5·20 metres, and the dome placed upon the square substructure thus formed would reproduce the Sarvistân dome in magnified proportions.[130] It is clear that Ukhaiḍir shows a retrogression in the art of dome building, both in point of span and in point of distribution of thrusts, nor is the fact surprising. The desert ḥîrah of an early Mohammadan prince need not be expected to rival in architectural achievement the summer palace of the Sasanian king of kings, situated upon one of the high roads of his empire.

Firûzâbâd affords the earliest extant example of the dome in Persia. In Babylonia and Assyria no dome is standing which can be dated earlier than Ukhaiḍir. Possibly the Lakhmid ḥîrahs would have provided us with other instances, but the tentative nature of dome building at Ukhaiḍir throws doubt upon the proficiency of Lakhmid construction in this respect.[131] In the Babylonian{75} cultural sphere the dome does not seem to have played an important part in monumental building until a late period, and in my opinion too much significance has been attached to the celebrated relief exhibiting domed buildings which Layard found at Quyundjik.[132] We have here a representation of village architecture, and it is natural to suppose that the domes were of small dimensions. They are to be found to this day in the village architecture of northern Syria and northern Mesopotamia, indeed no other form of roof exists; and they take the shapes depicted upon the relief. They are built of sun-dried brick held together by a mortar of clay. The high ovoid domes which appear upon the relief and in modern villages are built of oversailing rings, like the solitary dome at Hatra. I imagine that the summit of the round domes is constructed over a light centering, but I have not actually seen them in process of being built. The difficulties presented by these methods are practically nil, owing to the light and malleable material and the smallness of the span. The translation of this primitive dome into larger diameters was a very different matter, and there is no evidence for the belief that this step was taken in Mesopotamia in an early age.

The Sasanian conquerors came out of lands on which Hellenism had made an impression less deep than on Mesopotamia, lands where Rome had never penetrated; and they came of a stock more tenacious of its own traditions and less eclectic than the Parthians. To a large extent they re-orientalized the territories which they occupied. No doubt there was less for them to copy, for in the interval of some 300 years during which the Parthians were predominant, Seleucid monuments must have disappeared, and the blurred Arsacid copy of Greek or Roman models had taken their place. The Sasanians created an art of their own, less dependent than that of Parthia on Western forms, and more potent to influence those who came into contact with it, not excluding the Byzantines. In the earliest of their palaces, so strongly marked is the reversion to Achaemenid types that Dieulafoy relegated it unhesitatingly to the earlier Persian period. In its general characteristics the plan of Firûzâbâd differs little from that of an Achaemenid khilâni palace (Plate 73, Fig. 2). The lîwân has deepened, and the employment of the vault has enabled the builder to dispense, as at Hatra, with the columns that sustained its roof. The greater depth of the lîwân, combined with a desire to keep the vaulting span within moderate bounds, have led to the breaking up of the tower room on either side into two narrow chambers. In order to counteract more effectually the thrust of the main vault (13·30 metres wide) the side chambers are placed at right angles to the lîwân, a principle which was not adopted at Hatra, but which rules at Ctesiphon, and at Ukhaiḍir. The towers themselves have{76} disappeared, and though their place remains in the plan, in the elevation it is probable that the façade presented an unbroken line. The audience hall of the khilâni palace is reduced to a domed chamber, and the clumsy construction of the dome makes it evident that the builder would not have ventured to stretch its diameter further. Finally, round the posterior courtyard are grouped, besides the living-rooms, two smaller lîwâns, placed, like those in the Ukhaiḍir courts, so that they may serve respectively for winter and for summer.

The resemblances in detail between the Achaemenid palaces and Firûzâbâd are no less striking. The high fluted gorge and narrow torus of stone which cover the doorways and niches of the one are repeated in the plaster-work of the other. The plain fillets which surround the openings at Persepolis reappear at Firûzâbâd, but in the latter case all the openings are arched, and the moulded archivolt is set within the rectangle formed by the fillets. The ṭâqchah niches, which, so far as my knowledge goes, are found for the first time in the palace of Darius, are present also at Firûzâbâd,[133] and henceforth assume a permanent place in Persian architecture, from which they were borrowed by Mohammadan builders.

The building material at Firûzâbâd is undressed stone, very roughly coursed and set in a bed of mortar. In the domes the stones are cut thinner, more carefully coursed and provided at intervals with a bonding course; in the vaults the thin slabs are laid vertically, parallel with the main axis of the chamber. Exactly the same principles are observed at Ukhaiḍir. Nor do the resemblances end here. Tubes are not absent from the vaulting system,[134] and most of the archways are set back from the jambs to facilitate the placing of centering.[135] The arches are semicircular as at Qaṣr-i-Shîrîn. In the vault of the big lîwân centering would seem to have been used, for it is set back from the face of the walls, doubtless in order to leave a convenient ledge for the centering beams. The vaults and domes here and in all other Sasanian buildings have the ovoid shape common to Ukhaiḍir and to subsequent Mohammadan work in Mesopotamia. It is the old Mesopotamian vault contour. The exterior walls of Firûzâbâd are broken into a continuous series of recessed and arched blind niches divided by engaged columns carrying an entablature of modest proportions.[136] The appearance of this decoration is to my eyes so entirely un-Hellenistic that I have difficulty in connecting it with any classical influence, and in point of fact an arched niche from one of the reliefs from Quyundjik, in the British Museum (Fig. 11), is nearer akin to it than such{77}

Fig. 11. Relief from Quyundjik.


(From L’Art antique de la Perse, by kind permission of M. Dieulafoy.)

façades as those of Ctesiphon or Ukhaiḍir. But it must be admitted that while the recessing of Babylonian and Assyrian wall surfaces is in no sense an imitation of architectural forms, least of all an imitation of the column, which was an element unknown to the designers of these recessed buildings,[137] and that while on the Quyundjik relief the architrave is placed directly upon the piers without the intermission of impost or capital, the engaged columns of Firûzâbâd are true columns carrying an impost, and the whole scheme is no longer a pattern, but a copy in relief of a colonnade in the round. In the{78} courtyard the rectangular niching is retained, but without the engaged columns.[138] On the façade of the palace a series of seven arched niches is set high up in the wall, on either side of the arched opening of the lîwân.[139] It is a motive which recalls the open loggias in the façade of an Assyrian palace.[140]

The palace of Sarvistân bears an obvious relationship to that of Firûzâbâd, but the strict symmetry which regulates the latter is not so closely adhered to, and the construction is handled with greater freedom and skill (Plate 76). The principal lîwân happens, it is true, to have resumed the old latitudinal disposition, but the longitudinal lîwân is present in a subsidiary position. The lateral chambers are provided with wide arched openings which, together with the arch of the lîwân, form a façade not unlike those of the Ukhaiḍir courts.[141] The breaking of the façade by doors leading into the lateral chambers of the lîwân occurs first at Hatra, and characterizes all lîwân buildings later than that of Sarvistân. Instead, however, of the piers and engaged columns of Ukhaiḍir, the three arches of Sarvistân are separated by groups of triple flutes. These flutes are far more clearly connected with ancient oriental tradition than the engaged columns of Firûzâbâd. They are derived from the reed-like flutings of Babylonia and Assyria, which are to be found as late as the Parthian counterfeit at Tellôh.[142] The motive does not disappear after the Mohammadan invasion. It occurs at Kharâneh, a ḥîrah on the western borders of the Syrian desert (see below, Plate 80, Fig. 2), and I found it upon the façade of Sultan Khân, a Seldjuk building in the heart of Asia Minor.[143] Here, as at Sarvistân, it flanks a central doorway. At Sarvistân it gives way at the angles of the palace to a single engaged column. As at Firûzâbâd, the audience hall at Sarvistân is a square domed chamber, but it opens immediately into the posterior courtyard and a single lîwân faces it on the further side. Besides the partial detachment from the wall of the supports of some of the vaults and of the columns bearing the smaller dome, there are other evidences of advance in structural knowledge. In the central lîwân, in the tower chambers, and in the central domed chamber the walls are partially hollowed out by blind niches, which add to the security of the vaults while they increase the interior space of the chambers. These blind niches lend to the supports of the dome something of the appearance of free standing angle piers, and they show a dawning apprehension of the fact that the thrust of the dome is concentrated mainly upon the corners of the substructure. In the isolated dome of Ferâshâbâd[144] the hollowing out of the walls is carried yet further.

The building material used in walls and vaults is undressed stone and mortar,{79} but at Sarvistân the stones are more carefully coursed than at Firûzâbâd. As far as can be judged from photographs, the vaults must have been built over a centering. They oversailed the walls as at Ukhaiḍir, while the semicircular door and window arches were set back from the jambs according to Dieulafoy’s restoration, and oversailed the walls according to the restoration of Flandin.[145] The side walls of the palace are broken by frequent doorways, and in the smaller dome windows were pierced through the drum.[146] The domes are built far more skilfully than those of Firûzâbâd. The zone which contains the squinch oversails the wall, standing flush with the outer edge of a small cornice adorned with a dog-tooth. The squinches are built with a proficiency which is in marked contrast with their rude prototypes at Firûzâbâd. They are divided from the dome by a second dog-tooth cornice, and the dome itself is constructed of light brick tiles.[147] This combination of the two materials is resorted to again at Ukhaiḍir. The niches in the columned chambers are covered with semi-domes which are set clumsily over the angles on very small squinches.[148] The Achaemenidizing plaster-work of Firûzâbâd is not repeated, but the dog-tooth is copied from the cornice under the dome in the older palace. It is significant that the cornices of Sarvistân have but one fillet instead of the two fillets of Firûzâbâd. A tendency to reduce the importance of horizontal decorations is characteristic of Sasanian and of Mohammadan work in Mesopotamia (see below, p. 130).

Both for Firûzâbâd and for Sarvistân a minute re-examination is urgently needed, but the political conditions of the province of Fars are not favourable to archaeological research. Nor was the state of affairs ideal at Qaṣr-i-Shîrîn when I was there in April 1911, and I measured the palace of Khusrau to the tune of the whizzing of stray bullets. That they were not intended to hit me was due principally to the fortunate circumstance of my having been accredited by a powerful Kurdish ally on the Turkish side of the frontier to the leading Kurdish brigand, Kerîm Khân, on the Persian side. This fact rendered the situation more reassuring, but I was not tempted to prolong my stay beyond the five days which I devoted to the palaces, neither did I loiter over my work. It would have been difficult to push on further into the interior, or perhaps I should say that it would have been too expensive; for though Kerîm Khân would have provided me with an escort, he would have expected a small fortune in return for his protection, and perhaps it might fairly be urged that he would have deserved it. According to the information which has reached me from Baghdâd, matters have gone from bad to worse since the date of my visit, and the high road of the Sasanian kings has been definitely closed to traffic.{80}

Like the Achaemenid palaces, Firûzâbâd and Sarvistân were not intended for the lodging of vast hordes of retainers. These may have been accommodated in tents or in mud-built houses of an unpretending nature. But with the close of the sixth century we come to a group of royal dwelling-places wherein provision was made for an indefinite number of women, courtiers, servants, and guards, and the type of building thus created was taken over by the khalifs of Islâm and extended to proportions vaster still. Of this type the palace of Khusrau at Qaṣr-i-Shîrîn is the best example we possess.[149] In general terms Ukhaiḍir is its fortified counterpart.

The palace of Khusrau is built upon an artificial platform like Persepolis and the Assyrian palaces, while additional lodgings for the king’s family and suite are placed on the level of the plain. The double ramps or stairways by which the platform is approached are exactly similar to those employed in the older prototypes. The eastern end of the platform is occupied by an immense open space lying before the entrance to the state apartments. A deep porch, possibly with columns on either side, leads into a latitudinal chamber, the details of which cannot be determined without excavation. From this antechamber a doorway communicates with the square hall of audience, which corresponds precisely with the audience halls of Firûzâbâd and Sarvistân. In the posterior wall there is a deep lîwân in which, perhaps, the throne of the Chosroës may have been placed. Behind the reception-rooms there is an open court round which the living-rooms are grouped, not singly, but in a series of subsidiary courts, some of which are placed on a lower level. The whole scheme is thus exactly parallel to the scheme of the palaces in Fars, though the reduplication and enlargement of the various parts somewhat obscures the resemblance at first sight. At Qaṣr-i-Shîrîn a porch is added to the lîwân palace and the entrance lîwân has become a closed chamber, the porch having superseded the columned entrance of the Achaemenids and the archways of the earlier Sasanians. The rectangular audience hall of the normal Sasanian khilâni palace follows. The small lîwân to the rear, with its flanking rooms, have their parallel at Firûzâbâd, but the small lîwân at Qaṣr-i-Shîrîn forms part of the hall of audience and{81} three of the flanking rooms can be entered from that hall, as well as from the open court behind it.

I must pass from what went before to what came after and draw a comparison between the palace of Khusrau and the desert palace of Ukhaiḍir. A characteristic feature of the latter, the girdle of walls, must be left out of account. At Qaṣr-i-Shîrîn the walls were placed round the large pleasure-grounds with which the Sasanian king surrounded his dwelling. It is the wall-less Ukhaiḍir, the Ukhaiḍir as it was originally conceived by its builders, which must be taken into consideration, though even in that first design the desert ḥîrah was not left entirely defenceless, since it was compressed into the rectangle of its own enclosing walls, strengthened by towers. The space within those walls had to be utilized to the full. At Qaṣr-i-Shîrîn the guards could be lodged in the lower rooms about the stairways, at Ukhaiḍir they were gathered together within the main entrance. The great hall is, in fact, a monumental gateway. It belongs to the system of defences which is absent from the Sasanian palaces. The Mohammadan builders reverted to an older type, to the fortified palace of the ancient East. At Khorsâbâd the principal entrance to the palace lay within the walls of the acropolis, and it was not, therefore, strongly fortified, but such gates as those in the acropolis walls are the true progenitors of the Ukhaiḍir scheme (Plate 78, Fig. 1). In Sargon’s palace the long entrance passage, some 10 metres wide, represents the great hall of Ukhaiḍir; the lateral chambers on either side are divided at Ukhaiḍir into groups of smaller lateral rooms which, both at Khorsâbâd and at Ukhaiḍir, were very insufficiently lighted. In either case some additional light is obtained from a court into which the chambers open. The symmetrical arrangement of the Ukhaiḍir gate with the central court and audience rooms behind it would not have appealed to ancient authorities on fortification. Chaldaean and Assyrian gateways are seldom if ever situated opposite to one another, an asymmetrical disposition being accounted better for purposes of defence.[150] The long passage room of Khorsâbâd and Ukhaiḍir, but without the lateral chambers, exists in some of the excavated gateways at Susa,[151] and at Susa above the gateway stands a hypostyle pavilion offering a high and airy abode to the great folk who inhabited the palaces within, just as at Ukhaiḍir an open court with lîwâns on all sides occupies the high summit of the gate-house. At Ukhaiḍir there is no direct communication between the ground floor of the gate-house block and the rest of the palace, except one door out of the great hall. The gate tower and hall, with the adjoining rooms for dependants, and the mosque, which had of necessity to be accessible to all, formed the public part of the building, and the upper stories, since they too could only be reached by passing through the public rooms, cannot be regarded as containing private apartments. The better rooms may have been intended{82} for guests; the chambers in the gate-tower, and those which were in direct connexion with the chemin de ronde, for guards.

The great open platform of Qaṣr-i-Shîrîn is represented at Ukhaiḍir by the central court. The ceremonial rooms at Ukhaiḍir recall with singular fidelity the disposition at Firûzâbâd, but the flanking chambers of the lîwân (the old tower chambers of the khilâni palace) have doors of their own, as at Hatra and Sarvistân, and the three halls are barrel vaulted instead of domed. Special care has been taken with these vaults. In the audience chamber (No. 30), as in the lîwân (No. 29), they are finely built of brick, while in rooms 33 and 40 they are set upon columns. The unequal intercolumniations in these rooms (the columns stand ·90 metre from the walls and 2·50 metres from each other) is no doubt due to a desire to secure as much space as possible in the centre of the room, but it produces a singular resemblance to Sasanian methods, where the short columns are set close to the walls that they may be the more easily bound in with them by arches. The rooms round the small court F are probably not intended for dwelling-rooms, but stand in some definite relation to the ceremonial chambers; as Dr. Reuther has suggested, the little room 37, with chimney-pipes in the vault, may have been used for the preparation of light refreshments for the prince and his guests. For what special purpose the elaborately decorated rooms 31 and 32 were intended it is of course impossible to say, but as I shall point out (p. 115) they accord with a similar arrangement at Kharâneh. The rooms of ceremony were provided with a serdâb under No. 42. Almost exactly the same grouping of chambers is found in the block which was set at a later date into the eastern part of the palace yard. The north-east angle of the yard forms the court; the façade of the annex is adorned with engaged columns and niches; even the serdâb and the stair to the roof are reproduced. It is clear that we have here a second set of reception-rooms similar to the first, but why a second set was needed it is impossible to tell. The fact that an outer stair was added to the older part of the palace, so as to place the new reception-rooms in direct connexion with the first floor of the gate-house block, the floor which I have tentatively assigned to guests, leads me to suggest that the second ceremonial lîwân, with its dependences, was intended for any visitor who was of such distinction as to need a separate audience room.

The courts B, C, H, and G can have served no other purpose than that of the ḥaram, the dwelling-places for the wives and children. Each court is a habitation complete in itself, a bait as it is called in Arabic, a house. Each is provided with a winter and a summer lîwân, with living-rooms adjoining it, and behind each lîwân lies a long narrow room partly open, with chimney-pipes in the vault—the kitchen.[152] Each bait has access to two of the chambers hollowed out of{83} the towers, which, according to the suggestion of the authors of Ocheïdir, were probably closets. In two of the courts, B and H, the flanking chambers of the lîwân are provided with anterooms which open into the court through an archway resting on engaged columns. They are covered with barrel vaults running at right angles to the vaults of the chambers behind, and separated from the lîwân vault by transverse arches. The vault of the lîwân is carried straight through from the back wall to the wall of the court, but the side walls are not continued through to the court, as in C and G, but open through wide arches into the antechambers. These arches are the transverse arches against which the antechamber vaults abut. In the ground plan this group has the appearance of a short lîwân flanked by two short chambers, with an antechamber common to all three, though structurally this would not be a true description. The antechamber predicts the modern ṭarmah, which is, as a rule, either a short antechamber to the central room only, or a long antechamber common to all the three rooms (Fig. 12). In either case the modern ṭarmah is actually that which the ṭarmah of Ukhaiḍir only appears to be, an independent latitudinal antechamber cutting off part of the lîwân.

Fig. 12. Modern Ṭarmah houses.


(From Das Wohnhaus in Bagdad, by kind permission of Dr. Reuther.)

In court E the arrangement of the rooms is modified owing to the exiguous space which remained at the back of the ceremonial chambers. The elements are, however, the same, a court, a lîwân with side chambers, and a kitchen. To these are added a stair leading to the roof, which is absent from the ḥaram courts. It is reasonable to assume that court E was the private bait of the lord of Ukhaiḍir. These courts or baits are foreshadowed in the posterior courts of the Achaemenid and the early Sasanian palaces (again Firûzâbâd offers the closest parallel); in the palace of Khusrau they reach a development which was to be very little modified at Ukhaiḍir. The scheme can best be studied in the courts on the lower level O, Q, and S. Each of these courts is provided on the west side with a lîwân, flanking chambers, and a ṭarmah, while a fourth chamber to the north may be a kitchen. To the south a vaulted passage leads in each case to a posterior court P, R, and T. On the eastern side of the forecourts there is another lîwân group, much shallower than the first and without a ṭarmah or any subsidiary rooms. The flanking chambers of the eastern lîwâns have small doors into the court and into the vaulted passage behind them. As far as I could judge, the three forecourts communicated with each other, in which case the strict isolation{84} of the baits of Ukhaiḍir is a new feature. In courts K and M the arrangement is a little different. The east end in one court only is occupied by a shallow lîwân group, the west end in both by a deep lîwân group with a ṭarmah, but the subsidiary chambers are to the rear, one small and one larger room, approached by a door through the lîwân and opening on to a posterior court. The four baits on the upper level are very similar. The subsidiary chambers are placed behind the main lîwân; in courts C and G there is a group of rooms to the side, and court G is without the shallow eastern lîwân group in its forecourt, but possesses it on the west side of its posterior court. Neither courts E nor I have the small lîwâns. All the courts communicate with one another (except perhaps courts I and H) and with the passage. These long vaulted passages are a feature of Ukhaiḍir also. The building materials at Qaṣr-i-Shîrîn are those of Ukhaiḍir and Sarvistân, undressed stones, coursed with a certain amount of care, and burnt brick tiles for the finer work.

One further step in the long history of oriental palaces can now be taken, thanks to the excavations of Professor Sarre and Dr. Herzfeld at Sâmarrâ. Part of the plan of the great complex of Balkuwârâ lies before us (Fig. 13). Just as the palace of Khusrau reproduced the khilâni palaces on a gigantic scale, so Balkuwârâ is a gigantic reproduction of Qaṣr-i-Shîrîn. The approach to the palace, through two courts, covers an area some 300 metres long (the measurements are only my approximate estimates made from the scale of Dr. Herzfeld’s outline plan) and passes under three ornamental gateways. A third courtyard, lying before the halls of audience, is over 100 metres long and is set round on two sides by a free standing colonnade (instead of the blind arcade of Ukhaiḍir), a corridor, and a long line of rooms, these last carried round the third side also. An immense lîwân, 30 metres long by 15 metres wide, with two rows of flanking chambers, occupies the centre of the fourth side. Beyond a small latitudinal room there is a group of four great chambers arranged crosswise. Meeting in a central chamber, between the arms of the cross, lies a complex of nine smaller rooms, four groups in all, and beyond this we find another latitudinal room and a great lîwân opening into a garden court.[153] On the further side of this garden pavilions stand upon the banks of the Tigris. The area to the left of the ceremonial halls is occupied by twenty-four courts, each one a bait after the manner of Qaṣr-i-Shîrîn and Ukhaiḍir. Besides the lîwân group at one end (Dr. Herzfeld speaks of the principal room as -shaped, but judging from his outline the form is produced by the combination of the lîwân group and the ṭarmah) and the group of three shallower rooms at the opposite end, there are three rooms down either side of each court, and rooms flanking the group at either end. Some of the courts are still bigger and more complex. In the right{85}

Fig. 13. Balkuwârâ. (From Erster vorläufiger Bericht über die Ausgrabungen von Sâmarrâ, by kind permission of Dr. Herzfeld.)

{86}

wing of the palace, besides a number of baits of a more or less normal character, there are a bazaar and barracks. The huge building here displayed covers only a quarter of the whole area of Balkuwârâ. It is interesting to note that the chief mosque lies to the right hand of the main entrance, just as at Ukhaiḍir it lies to the right of the gate. The smaller palace of al-’Âshiq is again composed of a central block between two wings.[154] The audience chambers appear to consist of a large lîwân with a rectangular room behind it, this room being flanked by two similar rooms (compare Firûzâbâd). The general features of the main gateway, a closed lîwân flanked by two chambers on either side, each with an antechamber, were already known, as well as the details of the wall decoration on either side of the gate.[155] M. Viollet, who did some work in 1910 on the great palace known as the Bait al-Khalîfah, has published a sketch-plan of it,[156] and Dr. Herzfeld is now engaged on further excavations there. Both he and M. Viollet have published exceedingly instructive photographs of stucco decoration from the palaces, and I gave a few in Amurath to Amurath. Dr. Herzfeld’s series is naturally far the most interesting, as his work has been the most thorough.

If the palace of Khusrau is unmistakably the culminating point of a long oriental tradition, and the model for future generations of oriental potentates, it serves also to illuminate the little known period during which it arose; it throws light upon the ḥîrahs of the Lakhmid phylarchs, concerning which we have practically no contemporary information. Mas’ûdi tells us that the khalif Mutawakkil copied in one of his palaces a scheme which had been adopted by a king of Ḥîrah. It consisted of a central block, wherein was situated the audience chamber, and two wings containing storerooms and lodgings for courtiers. In front lay an open court common to all three parts of the palace; the way to the audience chamber passed through three gates. Dr. Herzfeld, when he had laid bare the plan of Balkuwârâ, realized that it corresponded with Mas’ûdi’s description.[157] That Mas’ûdi believed the type of the Ḥîri with two sleeves to have been created by a Nu’mânid prince in imitation of the battle array of his army, we, who are acquainted with older monuments, know to be incorrect;[158] it is the latest descendant of a long ancestral line of oriental palaces which runs back through the Achaemenid and the Assyrian to the Hittite. The palace of Khusrau is as perfect an instance of the scheme as is the palace of Balkuwârâ; the differences between them are differences of dimension, not of kind. At Qaṣr-i-Shîrîn old oriental traits, such as the artificial platform and the double stairways, are peculiarly well marked. The three gates of Balkuwârâ are not present at Qaṣr-i-Shîrîn, or rather they are not laid out in the same{87} relation to one another, but it is very possible that Mas’ûdi’s account of the Nu’mânid palace was coloured by a lively recollection of the glories of Balkuwârâ, which in his day was beginning to fall into ruin. Sâmarrâ was finally abandoned by the khalifs in 892, and Mas’ûdi wrote in 943. But if Qaṣr-i-Shîrîn fulfils the requirements of the tenth-century writer, so does Ukhaiḍir, and Ukhaiḍir, standing within two days’ journey of Ḥîrah, may well be taken to be the closest representation of the Lakhmid ḥîrahs until Khawarnaq itself is excavated.

Fig. 14. Scheme of Pompeiian house.


(From Mau’s Pompeii, by kind permission of Messrs. Macmillan.)

The genesis of the lîwân house as it appears in the palace of Khusrau, at Ukhaiḍir and at Balkuwârâ has emerged from the analysis of a long series of more ancient buildings. The baits adhere severely, I might almost say implacably, to a type which was derived ultimately from the khilâni. It is, however, possible that in their later form another influence may have been at work. We know that, to a certain extent at any rate, the Parthians adopted the Hellenistic house. The Greek peristyle is found in Parthian houses at Babylon and at Niffer (Fig. 9); but, on the other hand, in the Parthian palace at Tellôh, ‘in spite of the penetration into the heart of Asia of the elements of Greek civilization, the constructors, contemporaries of the Seleucids, have remained in all points faithful to the traditions of ancient Asiatic civilization,’[159] and at Hatra no Hellenistic house has yet been recorded. The plan of the Hellenistic house is well known from excavation, principally at Delos and at Priene. As early as the second century B.C. it is found in combination with the Roman atrium house at Pompeii (Fig. 14). In the ordinary private house, which was too small to admit of a complete peristyle, the oecus gives into the courtyard through a prostas with an open colonnaded façade, while other less important rooms are set round the remaining sides of the court (Fig. 15). This has already something of the appearance of a lîwân group with a ṭarmah, and the resemblance is increased if oecus and prostas are reduplicated and two rooms placed in the centre (Fig. 16). The genesis of this house is totally different from that of the lîwân-ṭarmah house; the house of Priene is an abridgement of the peristyle house, the lîwân-ṭarmah house is a development of the khilâni, but it is nevertheless possible that the{88} Hellenistic peristyle house, in its abridged form, may have given the initial impulse which led to the adding of the ṭarmah to the lîwân. We may be sure that no columned façade could have come into existence in Mesopotamia before the close of the second Babylonian empire, and indeed at Ukhaiḍir the columned façade is not applied to the ṭarmah house, though it is found in arcaded galleries—for instance in No. 20. Moreover, the rooms in courts B and H are structurally more closely related to the simple lîwân of Hatra than to the oecus-prostas house, while the modern ṭarmah house is structurally, as well as in plan, one with the latter.

Fig. 15. Priene, house 33. (From Priene, by kind permission of the General Director of the K. Museen in Berlin.)

Fig. 16. Priene, house 24. (From Priene.)

What is the principle which determined the arrangement of the rooms or groups of rooms within the bait, and of the baits within the palace? Professor Koldewey, in one of those generalizations, as profound as they are brilliant, which we owe to his learning and acumen, has laid down a law touching architectural grouping which will be of service in considering this question. Speaking of the intentional separation of the main chamber of a Babylonian temple from the encompassing wall, he says: ‘This intentional separation is perhaps connected historically with the origin of the Babylonian house, which must be dealt with in another place. In my view, a view which rests upon the study of Babylonian ground-plans in historic and in prehistoric times, the grouping of chambers in ground-plans throughout the Babylonian cultural sphere proceeds from the interior. The embracing wall, Duru, is the primary, the indispensable essential.{89} Within the compass of the wall, the single chambers are set in such fashion, and in such fashion are they linked together, that ultimately a court remains over. In the Greek house, on the other hand, the single chambers, Megara, are so placed, and joined together in such manner, that ultimately a court results. The Italic house creates for itself a kind of court by sundering a roof which was originally continuous. It is therefore possible to distinguish between the different types of houses with courtyards by defining the Babylonian ground-plan as injunctive, the Greek as conjunctive, and the Italic as disjunctive.’[160]

Fig. 17. Palace at Pergamon.

(From Durm’s Baukunst der Griechen, by kind permission of Messrs. Gebhardt.)

With the disjunctive plan Mesopotamian archaeology is not concerned; nor do I believe that the conjunctive plan was either widely or permanently of importance, at any rate up to the period to which Ukhaiḍir belongs. The Greek scheme cannot be brought into sharper contrast with the Mesopotamian than by laying a plan such as that of the Pergamene palace (Fig. 17) beside a plan such as that of the smaller palace at Niffer (Fig. 9). I select with intention a building wherein Hellenism has influenced the details, but left the fundamental principle unchanged. At Pergamon the court results from the manner in which the isolated chambers are placed and linked together; at Niffer a court remains over from the manner in which the chambers or groups of chambers are placed within, and linked to, the encompassing wall. In the baits of Ukhaiḍir it is no less the encompassing wall which is the indispensable essential, and it may even be surmised that the latitudinal chamber which lies behind the lîwân is a survival of the intentional separation of the principal room from the wall. But it is not only the bait, the unit, which must be considered, it is the grouping of units. Now these units are so placed round the encompassing{90} wall, and joined together in such fashion, as to leave a court over. In detailed and in general disposition Ukhaiḍir exhibits the injunctive plan.

Before considering the Umayyad ḥîrahs of the western desert three other Sasanian buildings must be passed briefly under review. I will deal first, though it is not first in date, with the second palace at Qaṣr-i-Shîrîn, Chehâr Qapû.

Is it a palace? A glance at the plan is enough to prove that it does not fall precisely within the four corners of the scheme to which Khusrau’s palace belongs. This divergence of plan, and the peculiar character imparted to the ruins by the isolated quadrangular chamber which dominates the whole complex, have led to the suggestion that Chehâr Qapû may have been a fire temple. In support of this view two buildings have been cited, the rectangular western annex at Hatra, and a ruin excavated by Dieulafoy at Susa. The last-named instance carries little weight.[161] Its resemblance to Hatra depends upon the reconstruction proposed by Dieulafoy upon data too slight to be convincing. Until a further examination has been made, the ruin at Susa offers too frail a substructure for the lightest of theories. As regards Hatra (Fig. 10), the western annex blocks a window in one of the smaller rooms of the south lîwân and is therefore certainly a later addition. But the learned author of the Deutsche Orient-Gesellschaft publication has given us two plans of smaller palaces, found among the ruins in the city, of which one certainly, and the other probably, is composed of a lîwân with its flanking chambers, and a posterior rectangular room with, however, the interposition of a narrow latitudinal room between them (Fig. 18). Dr. Andrae has pointed out that while a lîwân group combined with a rectangular chamber, but without a latitudinal chamber, exists in the main palace (south lîwân), two lîwâns with a latitudinal chamber but without the rectangular chamber are found in the northern annex, which, like the western annex, is a later addition to the palace. The fact that the dispositions observed in the main palace are not entirely isolated examples is of the highest significance, but it does not solve the problem connected with the so-called ‘temple’. In all these palaces the posterior quadrangular chamber may have been a sanctuary, or it may equally well have been a living-room. The theory that in the main palace it is indeed a sanctuary rests mainly upon the symbolic representations carved upon the lintel of one of its doorways.[162] The motives there used are familiar elements of Parthian decoration. The dragon occurs upon the façade of Hatra itself and was found by Loftus among the Parthian fragments at Warka,[163] as well as upon a lintel excavated by George Smith at Quyundjik,[164] but there is no saying whether the lintel belonged to a sanctuary or to a private dwelling. Nor is there much to be learnt, with regard to fire temples, from literary sources. Herodotus declares that it was not the practice of the Persians{91}

Fig. 18. Small palace at Hatra. (From Hatra, by kind permission of the D. Orient-Gesellschaft.)

to erect statues, temples, or altars;[165] Strabo that they erect neither statues nor altars, but, considering the heaven as Jupiter, sacrifice on a high place. Strabo goes on, however, to state that they have large shrines called Pyraetheia, in the middle of which the Magi, entering daily into the shrine, maintain an inextinguished fire.[166] Trustworthy architectural data for such buildings we do not possess, and as Dr. Andrae has observed, the rectangular chamber at Hatra is unlike any other temple known to us, either in the East or in the West.[167] In the outer court of the palace he found a ruin which he calls tentatively an âteshgâh (fire altar).[168] It is a block of masonry almost square which stood 10 to 12 metres high and has traces of a stair that may either have wound round three sides of the tower, or have zigzagged up the face on one side only. He compares it with the tower some 28 metres high at Djûr, near Firûzâbâd, which was published by M. Dieulafoy[169]. The Djûr tower may date from the time of Ardeshîr Bâbagân,{92} A.D. 227-240. Here, too, there was a stair, which must have wound three times round the tower in order to attain the platform at the summit. M. Dieulafoy was struck by the resemblances that existed between the tower at Djûr, the ziggurat at Khorsâbâd, and the minarets at Sâmarrâ and at Cairo.[170] A ramp winding round the ziggurat to the summit of the pyramid is described by Herodotus, but has not yet been assured by excavation, and even the existence of pyramids with platforms at various heights among the ruins hitherto examined is doubtful.[171] The whole question of fire altar and fire temple is therefore very obscure. The towers at Djûr and at Hatra may have been sacrificial altars, and Strabo bears witness to the fact that the Persians sacrificed in a high place; but I find it difficult to believe that they can have been intended for an inextinguished fire. To keep a fire alight in so exposed a spot would have taxed the ingenuity of the Magi beyond endurance. The shrines in which the perpetual fire burnt must have afforded better shelter, but what shape they assumed we do not know. No help can be expected from this quarter, and the problem presented by Chehâr Qapû must be considered on its merits. It is slightly cleared by a recognition of the fact.

The quadrangular chamber of Chehâr Qapû, viewed impartially, does not offer any serious difficulty. If the audience hall in the palace of Khusrau were standing, its aspect would be much the same, for it too was a large square chamber with a dome rising above and dominating the rest of the palace. At Sarvistân a parallel structure exists to this day. But it is the surrounding buildings which are different, and the question is further complicated by the circumstance that the rooms in the immediate vicinity of the domed hall are so much ruined that their exact arrangement cannot be decided without some excavation—it is provoking to think how little excavation would be needed. So far as can be observed at present Chehâr Qapû is a rectangular complex with the main entrance to the east; the gateway is flanked to the south by two courts, to the north by one, each court being furnished with small rectangular rooms. I conjecture that these were guard-rooms, and they may be compared with the rooms under the ramps in the palace of Khusrau. The main entrance opened into a long quadrangular court with a monumental gate at the further end. To the north of this court, and communicating with it by a door at the eastern end, there is an almost quadrangular area, formed by rooms set round the courtyard numbered E on the plan. The rooms are latitudinal, and they bear no resemblance to the lîwâns of the palace of Khusrau. To the west lies another court, F, with latitudinal rooms on two sides and an independent communication with the entrance court; still further west are two smaller courts, G and H,{93} with rooms on two sides; and finally, to the north of the domed hall, there seems to have been a fifth court or open space with rooms on two sides. The south wing is not symmetrical with the north wing and it is considerably wider. There are three large courts here. Court I has chambers on three sides; those on the south side resembling a lîwân group with a ṭarmah. Court J has on the south side a latitudinal chamber, with a ṭarmah on the north side, and a passage communicating with the entrance court, A. Court K has a lîwân group with a ṭarmah on the south side; the north and west sides are ruined. Beyond this lies a totally ruined area, to the west of which stand two rooms, apparently with a ṭarmah, and at the south-west end of the palace there is a series of four rooms. With the exception of the small courts on either side of the main gate, all the courts seem to have had some direct intercommunication; this was probably the case in the palace of Khusrau also. The grouping of the rooms in the court is, however, almost entirely unlike that which has been described in the larger palace at Qaṣr-i-Shîrîn, at Ukhaiḍir, or at Sâmarrâ. Courts I and K alone, with their lîwâns and ṭarmahs, offer shadowy resemblances to the others. The arrangement of the rooms, the irregularity of the areas covered by the courts, and the tendency towards an asymmetrical disposition, point to a reversion to the methods of the ancient East. Symmetry plays no part in the palace-planning of Babylonia and Assyria. From the earliest to the latest, from the Chaldaean palaces[172] to the palace of Nebuchadnezzar at Babylon,[173] through all the intervening palaces in Assyria, at Nimrûd, at Quyundjik, at Khorsâbâd and at Assur, no principle of symmetry is to be observed. Nor yet is it to be found, except quite fortuitously, in the Hittite khilâni palaces (the late khilâni, north-west of G in Fig. 5, is one of the few instances), although they originated in the symmetrical gateway; and it is markedly absent in the northern Hittite palaces and temples at Boghâz Keui, though in other respects they have little in common with the southern Hittite monuments.[174] Assyrian temples more nearly approach to a symmetrical disposition, but only under influences foreign to Assyria, influences which can be traced back to the end of the twelfth century before Christ in the Anu-Adad temple at Assur. The old Assyrian scheme, of which we have one example in the temple of Assur, at Assur, built by Shamshi-Adad, was derived from the Babylonian temple plan and, like the Babylonian, it was asymmetrical. The imported plan is characterized by the substitution of longitudinal for latitudinal chambers.[175] But these foreign, probably Western{94} influences (for they were responsible also for the creation of Solomon’s temple, apparently a symmetrical building),[176] could not reduce Assyrian architecture to an ordered plan, and the temples in Sargon’s palace at Khorsâbâd fall far short of symmetry,[177] while in Babylonia the longitudinal chamber, i.e. the imported plan, was never adopted, and until the latest period, the temples, like the palaces, remained entirely unsymmetrical.[178] The plan of Quyundjik, which is the most complete record of any Assyrian palace which has yet been published, throws considerable light upon Chehâr Qapû (Plate 77). Courts XXVII and XXX in the temple area, courts XVIII, XIX, XX, and XXII in the domestic quarters, exhibit an unsymmetrical grouping of latitudinal and longitudinal chambers very much akin to that of the courts of Chehâr Qapû. In court XVI we have a foreshadowing of the ṭarmah scheme. (Place believes the rooms in court XVI to have been storehouses for wine, from the quantity of jars found in them.)[179] It would be ridiculous to push a minute comparison too far, seeing that a period of over 1,000 years separates the two buildings, but a certain resemblance in details and, still more, a general correspondence on the fundamental principle of asymmetry leads me to suspect that a primaeval tradition survived through all the innovations of Greece or Rome, Parthia or Persia, and that, at the end of the sixth century, it had sufficient vitality to guide the craftsmen to Khusrau Parwêz in the composition of a monumental building. Survivals of this nature are not infrequently connected with hieratic tradition, and if my conjecture is correct it might serve in some measure to support the claim to a non-secular character which had been put forward for Chehâr Qapû, although the domed hall, which we must assume to have been the sanctuary, bears no resemblance to the cella and anteroom of the Babylonian or of the Assyrian temple. It would be necessary to postulate that while the Sasanian builder retained in the courts and chambers of his temenos something of an ancient tradition which had come to be regarded as sacred, he gave to the shrine wherein the holy element burned with a perpetual flame the form which had been assumed by the ceremonial dwelling of the divine Chosroës.

The two remaining Sasanian buildings which it will be necessary to mention are Ctesiphon and Karkh. Ctesiphon is the most famous of all the later Persian palaces (Fig. 19). It was erected by Shapûr I (A.D. 242-272)[180] and is therefore about 100 years later than Hatra, and earlier than Qaṣr-i-Shîrîn by some 250 years. Not only chronologically, but also in plan, it is closely related to the Parthian palace. It reproduces in yet more striking dimensions the simple lîwân scheme, of which Hatra offers the earliest monumental example.{95} The lîwân at Ctesiphon is covered by a vault spanning 25·80 metres, a dimension which was not exceeded in Rome itself. On either side of the lîwân five vaulted chambers were set at right angles; rising in stories their vaults abutted the main vault, as at Firûzâbâd and Ukhaiḍir. The side chambers had an independent entrance in the façade, a system which was first employed at Hatra. The masonry is of brick, chained with wooden beams as at Ukhaiḍir; but at Ctesiphon the beams are placed parallel with the coursing of the masonry, whereas at Ukhaiḍir they are inserted at right angles into the walls.

Fig. 19. Ctesiphon. (From L’Acropole de Suse, by kind permission of M. Dieulafoy.)

Fig. 20. Karkh. (From L’Art antique de la Perse, by kind permission of M. Dieulafoy.)

The second building is at Karkh, the town known in Syriac as Karkhâ de{96} Lâdan. It was founded by Shapûr II (309—379)[181] when he rebuilt Susa, from which it is not far removed. Of this palace we have nothing but a fragment, possibly a monumental entrance (Fig. 20). The central chamber is covered by a dome which was set over squinches upon four wide archways.[182] The cutting away of the walls under a dome is thus very highly developed at Karkh. Four transverse arches span each of the wings, and the space between the arches is covered by a vault. In connexion with Ukhaiḍir this scheme of the wings at Karkh is of special interest because it is repeated in room 32, where even the windows under the vaults are reproduced by blind niches. The material used at Karkh is brick, and it may here be noticed that at Susa and in Babylonia, where brick was the only available local material, it is invariably used by Sasanian architects; in Fars and in the Qaṣr-i-Shîrîn district, where stone was more easy to obtain than brick, they constructed in unsquared stones, roughly coursed, using brick only for the larger vaults and domes and for those portions of the walls which were finely finished. The latter system was employed at Ukhaiḍir. Vault construction in stone was facilitated there by the fact that the stone broke naturally into thin slabs and could be made to assume more or less the proportions of brick tiles. For this reason stone vaults could be built without the use of centering. At Qaṣr-i-Shîrîn this was not the case. The stones are smooth rounded blocks like large pebbles; it would have been impossible to use them for vaults unless the cement in which they were laid had been peculiarly strong, and the vaults thus formed are of the rudest kind. Coursed and undressed stone held together by a clay mortar was used for vaulting purposes as early as Lydian times; a vault of that character covers the tomb chamber of the tumulus of Alyattes near Sardis. The same masonry is found in the terrace of the Takht-i-Mâder-i-Suleimân at Pasargadae (fifth century B.C.), and is still in common use in Asia Minor.[183] Masonry of dressed and undressed stones set in a mortar of clay or pitch has been found in Assyrian buildings,[184] but gypsum mortar was not known in Mesopotamia till the seventh century. Its earliest appearance was in the palace of Nebuchadnezzar at Babylon. In Egypt it is of much earlier occurrence, and the use of mortar in the Aegean region during the second millennium B.C. (Mycenae, Argos) was probably due to Egyptian influence.[185] Hatra is the earliest Mesopotamian monumental building in dressed stone and mortar; it was an example which was not followed by Sasanian architects. The method was foreign to local tradition; native workmen returned to their own systems and continued to construct wall, vault, and dome of brick or of undressed stone.

A survey of Sasanian buildings leads to the conclusion that a singular want{97} of technical skill was displayed in their vaulting system. The vault and the dome may have been born in Mesopotamia, but they lingered there in a state of immaturity. The barrel vault, the vault on transverse arches, the dome on Persian squinches, or in smaller dimensions on the horizontal bracket, these were the only forms which were employed. If an inclined plane was to be covered, the barrel vault was split up into sections and raised in steps; if the barrel vaults met at right angles, they were carefully separated from one another. At Ukhaiḍir the groined vault is added to this slender stock of forms, but it is not used in many places where it might be expected to appear, and when it is employed, it is only with the utmost precaution. As far as the invention shown in the Mesopotamian regions is concerned, we might to-day be obliged to content ourselves with the barrel vault and the dome poised carefully upon four walls (or little better); but the Greek builders of the Mediterranean coast-lands stepped into the breach, and it is primarily to them that we owe the development of the elementary principles of oriental vaulting.

I have already alluded to a series of early Mohammadan buildings which are of the utmost importance to the study of Ukhaiḍir, the Umayyad ḥîrahs which stand upon the frontiers of Syria. On the western side of the desert the authority of the khalifs had been preceded by the authority of Imperial Rome. Lands which were occupied by Roman armies were endowed with a solid heritage, more enduring than any political domination has proved to be. To this day the traveller to Petra has the paved Roman road under his feet for many a mile; he can reckon his journey by Roman milestones, and daily he will pass by shattered wall and piles of ruin which mark the site of Roman watch-tower and Roman fortified camp. After the lapse of eighteen hundred years these massive structures still offer a meagre shelter to the Beduin shepherds and their flocks, and in the seventh century, when the Umayyad khalifs fled from their cities to the beautiful solitudes of the Syrian desert, most of the castles of the Roman limes, which had been re-occupied by the Ghassânid allies of Byzantium, were standing in all their towered strength. Here indeed was an inheritance for those who loved the wilderness; where the Roman legionaries had languished in interminable exile, the children of the desert held their court.

The Arabian limes did not differ in its system of military defence from the limites of Europe, but whereas the European camps were originally laid down as stockaded earthworks and were not systematically clothed in stone till the time of Hadrian,[186] on the Syrian frontier the camps and forts were from the first built of solid stone masonry. The comparatively late date of the oriental defences was no doubt partially responsible for this peculiarity, but it must also be borne in mind that fortification by means of earthworks was foreign to the regions through which the Arabian limes ran. As early as the time of Vespasian, the camps of Flavius Silva at Masada, near the Dead Sea, were{98} surrounded by walls of rudely piled stones,[187] while in the Flavian period the European camps were still fortified by earthworks and stockades. The Roman province of Arabia Petraea was created in A.D. 105, and the fortification of the first limes dates therefore from the time of Trajan. On this inner limes one great camp stands in ruins, the camp of Odhruḥ.

Archaeological research on the Roman frontiers in Germany, Austria, and Britain, as well as in North Africa, has made us familiar with the general disposition of the legionary camps; moreover, we have two literary sources of information. Polybius, writing in 150 B.C., has left a description of the camp in his day, and Hyginus, writing not earlier than a period shortly before the time of Hadrian, has given an accurate account of the camp as he knew it.[188] Architecturally there is no fundamental difference between the two. The camp of Hyginus was a rectangular enclosure, with a length one-third greater than its width. It had four gateways, the Porta Praetoria and the Porta Decumana in the centre of each of the short sides, the Porta Principalis Sinistra in one of the long sides, but not in the centre, and the Porta Principalis Dextra opposite to it in the other. Round the interior of the walls lay an open space, the Intervallum. The interior area was divided by thoroughfares placed in a regular order. Between the Porta Principalis Dextra and the Porta Principalis Sinistra ran a cross street, the Via Principalis. At right angles to it, the Via Praetoria ran up to the Porta Praetoria. These two were the most important of the roads; they were wider than the others, and in the later stone-built camps they were sometimes flanked by colonnades, while at their point of junction was set a tetrapylon. The colonnades and the tetrapylon are common in cities which were laid out on the Roman camp plan.[189] Opposite the point of junction of the two streets, the centre of the camp was occupied by official and public buildings. Here lay the Forum and the Praetorium, with the Sacellum wherein the eagles of legion and cohort were deposited. Behind the Praetorium, the Via Quintana crossed the camp from side to side, while numerous small roads at right angles to it gave access to the lodgings of the troops; the Via Sagularis, within and parallel to the Intervallum, was carried round the whole rectangle. To this general scheme the camps which have been excavated conform, with little divergence.[190] I give as an example the fort at{99} Housesteads, on the Roman Wall (Fig. 21). The sanctuary, X, which is here rectangular, is not infrequently apsed.[191] As a rule not much remains of the interior buildings except the Praetorium and a few large public edifices, such as granaries and armouries. The Praetorium varies considerably in detail, but in general disposition it resembles the Greek peristyle house. A typical, well-preserved example is to be found at Wiesbaden.[192]

Fig. 21. Roman fort at Housesteads. (By kind permission of Professor Haverfield.)

One of the most imposing of Praetoria is that of Lambaesis[193] in northern Africa, where a stone-built camp was constructed about the same date as Odhruḥ to replace the older earthwork. The development of the Praetorium varies with the size and importance of the station. As regards the outer fortifications the four gateways were flanked by towers which projected inwards, from the inner face of the wall, and not uncommonly had a slight salience upon the exterior also.[194] There are one or two examples in which the gate towers are rounded upon the outside and have a more considerable projection.[195] Towers are usually placed at the rounded{100} corners of the wall, and sometimes at intervals along the wall; they have no salience upon the exterior.[196] The barracks, which were as a rule roughly built huts, were more solidly constructed in some of the great permanent camps, and the whole interior plan has been traced at Carnuntum and at Novaesium. The barracks in these camps consisted of long double rows of small chambers, more or less regularly disposed and standing back to back. A street or court, open at either end, unless it happened to terminate against one of the larger official buildings, separated each row from the row opposite. The Intervallum was left open, that free access might be given to the walls; at Carnuntum only, part of the west side was occupied by buildings.

Fig. 22. Odhruḥ. (From Provincia Arabia, by kind permission of Professor Brünnow.)

In the Trajanic camp at Odhruḥ (Fig. 22) no trace of the interior buildings{101} remains except a small apsed Sacellum, placed precisely in the position in which it would be found in a camp on the European frontiers. Since the four gateways compare equally well with those of the European camps, we may conclude that the interior arrangement of Odhruḥ was normal. But the fortifications are not normal. Rounded towers project some ten metres from the outer face of the wall and the angles are strengthened by circular towers of still greater salience. Thus in the earliest camp of the Arabian limes we encounter a developed system of flanking towers which is completely absent in Europe.

Fig. 23. Ledjdjûn. (From Provincia Arabia, by kind permission of Professor Brünnow.)

The second or outer limes cannot be much later in date, and in all probability it belonged to the time which saw the fortification of the road from Palmyra to Damascus. Ḍumair (Plate 78, Fig. 2), the second of the chain of forts that extended from Damascus to the desert capital,[197] is dated by an inscription in the year A.D. 162; it bears a close resemblance both to Trajan’s camp at{102}

Fig. 24. Da’djaniyyeh. (From Provincia Arabia, by kind permission of Professor Brünnow.)

Odhruḥ and to Ledjdjûn, a camp on the outer Arabian limes. The salient, rounded, intermediate towers and circular angle towers of Odhruḥ are repeated at Ḍumair with unimportant variations in detail. No part of the Praetorium is standing, but there are traces of some of the rows of huts in the Praetentura, and according to Domaszewski’s plan they extended, on one side at least, over the Intervallum to the wall.[198] In the Retentura one ruined building remains, which the learned archaeologist believes to have been the Armamentarium. In the camp of Ledjdjûn the walls and towers are an exact copy of those of Odhruḥ (Fig. 23). The interior buildings belong to two periods. The greater part of the Praetorium, and a small apsed structure to the north of it, belong to the first period; and to the same date, Domaszewski assigns certain buildings placed along the walls between the towers, the largest of which he takes to have been a Horreum. The rows of barracks which fill the eastern half{103} and a part of the western half of the camp are of later date and belong probably to the time of Diocletian.

No other legionary camps of the size of these three exist along the Arabian limes; the other fortresses which have been examined and planned are smaller, different in character, and later in date. Of these there are three which I propose to consider, Da’djaniyyeh, Bshair, and Qasṭal. Da’djaniyyeh is undated, but from its plan I should judge it to be earlier than the other two. Bshair is dated by an inscription in the time of Diocletian; for Qasṭal there is no epigraphic evidence, but the capital found among the ruins of the Sacellum can scarcely be earlier than the fifth century.[199] That the towers in the fortress of Da’djaniyyeh should be rectangular and set à cheval upon the walls, is not of any significance (Fig. 24). Round and square towers are commonly found at one and the same time, though the round tower, which is strategically an improvement upon the rectangular tower, is in fact later in origin (see below, p. 108). It is worth noting that the details of construction in the walls and towers of Da’djaniyyeh are exactly reproduced at Qasṭal, a fort which diverges much more than Da’djaniyyeh from the Roman camp scheme, but even at Qasṭal the stairs and approaches to the towers are copied from the Odhruḥ prototype. The remarkable feature at Da’djaniyyeh is that the Roman camp plan is obscured and almost lost. The greater part of the Intervallum is filled in with buildings; stables, horrea, and armamentaria are linked to the encompassing wall in a manner which recalls the ancient oriental system, a system which is perhaps foreshadowed at Ḍumair and Ledjdjûn.[200] In a wall set round with chambers there is no room for gates; the suppression of gateways is therefore a necessary corollary of the change of scheme, and at Da’djaniyyeh the Portae Praetoria and Decumana have disappeared. The postern in the south-east wall is not a survival of the Porta Praetoria; its existence is due to the fact that the main water-supply of the fort was a cistern lying outside the walls at this point. Apart from these striking innovations the interior preserves the Roman plan. The Praetorium and Sacellum stand in their accustomed place, but the Via Praetoria, besides having no independent gate, is no longer laid quite symmetrically with regard to the Praetorium. Something like the same combination of camp and oriental fortress can be seen in the Byzantine citadel at ‘Abdeh, but the features of the Roman camp are more completely obliterated and the Praetorium is probably represented by a large ruined building, placed unsymmetrically against one of the walls.[201] At Bshair the orientalizing process is carried a long step further (Fig. 25). The chambers are placed symmetrically round the enclosing wall; there is but{104}

Fig. 25. Bshair. (From Provincia Arabia, by kind permission of Professor Brünnow.)

one gate, and the Sacellum itself (k) is set against the wall, leaving the central court clear. Bshair is no longer a Roman limes fortress, it is a military caravanserai. The same definition applies to the undated fort at Qasṭal (Fig. 26). Again, the interior buildings are set round the encompassing wall, but they are not single chambers; they are the baits of the Mesopotamian palaces, minus the lîwân. Each unit is composed of a small open court with rooms on either side (this is the normal arrangement, though three of the baits at Qasṭal have rooms upon one side only), and in the interior of the complex a court is left over. There is no room in this scheme for a Praetorium and accordingly it is given a place outside the walls,[202] but fragments of carved ornament found in the principal court make it probable that a small Sacellum occupied the centre. This principle is retained in the caravanserai fortresses of other parts of Syria. At Dair al-Kafh (A.D. 306) a small temple, which was subsequently converted{105}

Fig. 26. Qasṭal. (From Provincia Arabia, by kind permission of Professor Brünnow.)

into a chapel, stood in the centre of the court;[203] in the barracks at Anderîn (A.D. 558) a chapel is similarly placed,[204] and at Qaṣr ibn Wardân (A.D. 561) a building, the uses of which have not been determined, stands in the barrack yard.[205] Beyond this small resemblance, the divergence of Qasṭal from the Roman camp type is complete. All the more noticeable is its likeness to the only Sasanian castrum of which we have any sufficient record. Qasṭal belongs to the same family as the fort at Qaṣr-i-Shîrîn (Plate 73, Fig. 1). The towered walls, the single gate, the chambers or baits placed round the interior of the walls so as to leave a central court over, all these are characteristic of the older building; but at Qaṣr-i-Shîrîn the lodging of the commandant is placed inside the court, whereas at Qasṭal it is outside.[206] In the Zohâb district there is another{106} building of a somewhat similar type, but it looks more like the ordinary caravanserai than like a fortress.[207]

The caravanserai type, when once it had established itself on the Arabian limes, was not to be ousted, but its later application is not only to fortress and barrack, but to genuine lodgings for caravans. In the Roman or Byzantine caravanserai of Khân al-Zebîb enough remains to show that the interior buildings were placed round the encompassing wall.[208] At Umm al-Walîd this interior arrangement is clearly preserved;[209] at Umm al-Rasâs baits, not unlike those of Qasṭal, are linked to the wall,[210] and the plan of a later building at Khân al-Zebîb (it is probably Moslem) differs not at all from that of a small modern caravanserai.[211] Khirbet al-Baiḍâ (see above, p. 56) belongs to the same group, but from its geographical position it must be regarded as a military station rather than as a true caravanserai, though it may have served both purposes. To what cause is the singularly rapid change from Roman camp to Asiatic caravanserai to be attributed? The answer is obvious. On the Arabian limes the builders were brought into contact with a strong Asiatic tradition; they were probably themselves local workmen, and they orientalized the Roman scheme. They applied from the first their own system of flanking towers to the defences; they grafted an injunctive plan on to the Roman camp plan, and they ended by discarding the latter in favour of the former.

The covering of dead ground by means of flanking towers and crémaillères goes back in western Asia to the earliest times. The plan of the acropolis of Gudea, drawn upon a tablet which is placed in the lap of a statue of the patesi of Lagash, exhibits, in the middle of the third millennium B.C., a system of fortification so fully developed that scarcely a dead angle exists in the whole circuit of the walls (Fig. 27). In the science of military engineering even Egypt would seem to have lagged behind Chaldaea, for the advantage of flanking towers was not understood there until the Asiatic expeditions of the Eighteenth Dynasty had taught the Pharaohs how to correct the defects in the unbroken lines of their massive defences.[212] In the Assyrian reliefs, double and triple rings of walls set thick with towers surround the towns; towered walls are represented in the ground-plans,[213] and excavation has proved the existence of rectangular towers in the walls of Khorsâbâd and of Assur.[214] A chemin de ronde,{107} loopholes, and machicolations have been found in situ in the walls of Assur, together with traces of crenellation,[215] and all these features, as well as hourds projecting from the battlements, and the ladders and battering-rams which they were intended to counteract, are familiar upon Assyrian reliefs. Rounded towers have not been revealed by Babylonian or Assyrian excavations. They belonged to a later age or perhaps to a different sphere of culture, the Hittite or Syrian. But Dieulafoy observed them on the Achaemenid fortifications of Susa;[216] and at Hatra, while the inner walls of the town were flanked by rectangular towers, solid or casemated, and casemated bastions, on the outer wall a rounded tower has been recorded, and Dr. Andrae conjectures that it was one of many.[217] In this particular, as in the approximately circular outline assumed by its walls, Hatra may exhibit traits borrowed from the civilization of the southern Hittites. There are rounded and rectangular towers in the larger Parthian palace at Niffer.[218] In Sasanian fortifications the rounded tower seems practically to have displaced the rectangular.[219]

Fig. 27. Lagash. (From L’Acropole de Suse, by kind permission of M. Dieulafoy.)

Flanking towers strengthened the walls of Hittite cities. At Zindjirli the gradual development of more scientific methods can be traced in the successive walls which encompassed the town and the acropolis. The inner city wall,{108} which was the first in date (it was probably built in the thirteenth century), is provided with rectangular towers which have a salience of 2 metres. The outer acropolis wall (Fig. 5), built about 900 B.C., has semicircular towers with a salience of 3½ metres; the strategic disadvantages of rectangular towers had been realized and corrected. A further improvement was effected in the inner cross wall, behind the main gate of the acropolis. The wall is built in retreating angles, and set with towers alternately rounded and rectangular; the rectangular towers project 1·80 metres from the face of the wall, while the rounded towers cover them with a projection of 4·50 metres. The outer city wall was built after the destruction of the city by Asarhaddon in 681 B.C. and is no more than a copy of the earliest wall, but at the same period casemates were added to the walls of the acropolis.[220] The Hittite capital of Qadesh on the Orontes, as depicted in the frescoes at Abû Simbel, a temple built by Rameses II (1388-1322), was protected by a wall with towers, the height of which must be due partly to the imagination of the Egyptian craftsman.[221] These towers have the appearance of being round, but the absence of architectural records of round towers at so early a date throws doubt upon the matter. In Asia Minor rectangular towers have been found upon the outer and the inner walls of Boghâz Keui;[222] they do not as a rule exceed a projection of 2½ metres. At Troy the earliest walls had towers 3 metres wide, and 2 metres salient; the curtain wall was in some places not longer than 10 metres, and the city gates were flanked by deep bastions. In the walls of the third period at Troy three towers were uncovered on the south-east side; they are 3·20 metres wide, 2·35 salient, and are separated from one another by a distance of only 6·40 metres.[223] But on the Greek mainland, at Tiryns, and at Mycenae, the fortifications are characterized by crémaillères and by deep bastions rather than by towers.[224] Much more lavish is the use of towers in the pre-Hellenic cities of Asia Minor, other than Troy. The very ancient acropolis on the Yamanlar Dâgh above Smyrna possessed rectangular towers.[225] In Caria the fortification known as the Wall of the Leleges opposite Iassos had rounded towers and crémaillères,[226] and the walls of Alinda rectangular towers à cheval.[227] The Lycian towns depicted upon the bas-reliefs in the tombs at Pinara, discovered by Benndorf and Niemann, exhibit salient rectangular towers,[228] while fortified towers of the same character are depicted on the monument of the Nereids at Xanthos,[229] and we have a plan of the ancient walled town of Pydnai in which the features portrayed on the reliefs are clearly to be recognized.[230] Nor must the towns of the Phoenicians be forgotten, the towered walls of Mount Eryx in Sicily, of{109} the acropolis of Lixos in Mauritania Tingitana, of Thapsus, of Carthage, and of Tyre.[231]

With such a wide development of fortifications by means of flanking towers, extending from the cultural spheres of the Babylonians and the Hittites over all the western parts of Asia, and carried by the Phoenicians into the furthest limits of the Mediterranean, it is not surprising that the fortifications of Greek towns in the fifth century should exhibit the same features. Assos, the finest example of this period, carries on the tradition in the crémaillères and rectangular towers of its walls;[232] and Messene, with its rounded and rectangular towers, shows in the succeeding century a yet more complete understanding of military architecture.[233] The acropolis of Selinus, with semicircular towers, bears witness at a like age to the carrying over of the Greek system of defences into Sicily.[234] The walls of Ephesus, built by Lysimachus towards the close of the third century, ‘one of the greatest monuments of fortification which have been left to us by antiquity,’[235] show the towered wall of the Hellenistic age, while Mantineia, with its circular outer wall, is like an isolated reversion to the round cities of Hittite lands.[236] Philon of Byzantium formulated the laws which governed Greek fortification in the Alexandrian age. Towers, crémaillères, and casemated walls combined to make a system of defence all the elements of which had been familiar to the Hittites and to the Assyrians, and the methods of attack which he sought to counter were the same as those which can be seen on the Assyrian reliefs.[237] Vitruvius advocates the flanking of walls by round or polygonal rather than by rectangular towers, but his words should be taken as a counsel of perfection, not as representing the practice of his day, for the systematic use of rounded towers by Roman engineers is later than Augustan times and polygonal towers are unusual before the age of Diocletian. At Aosta, which was fortified soon after 25 B.C., the towers are rectangular,[238] but at Fréjus and at Autun, both of which were fortified in the Augustan age, we have two of the rare instances of circular or semicircular towers.[239] As Schultze has pointed out, the planning of towers varies with time and place, but not infrequently rounded and rectangular towers can be seen on buildings of the same date.[240] As at Zindjirli the rounded tower denotes a technical advance, though the rectangular tower is not necessarily displaced by it. The{110} typically Roman conception of frontier defences, the fortified limes, was definitely abandoned in Europe about the year A.D. 360, but a century earlier the invasion of Gaul and Spain by the Franks had proved that the long line of strongholds was powerless to check the inrush of barbarian hordes, and in the last half of the third century the fortified town was virtually substituted for the fortified frontier. Towered walls sprang up about the cities of Roman Gaul, and the work of fortification begun by Probus was carried on by Diocletian.[241] The same process can be observed throughout the empire during the course of the third century, and almost without exception these later fortifications were strengthened by circular or semicircular towers.

But if the walls of Roman cities can claim to have inherited, through Greece and the civilizations of the Aegean, the formulae of the ancient East, the fortified camp was essentially the creation of Rome herself. The stockaded earthwork, with rounded corners and lines devoid of flanking defences, determined the plan of the stone wall which replaced it in Europe and in Africa,[242] and it was not until the Romans applied their system to lands which had seen the birth and development of a science of warfare different from their own that they modified their design. The difference was fundamental. The Roman camp was intended primarily for purposes of attack. It was the camp of an army on the march, indispensable, in the eyes of commanders as wary as they were daring, to a halt that lasted no longer than a single night, but in its essence impermanent. The oriental fortress displays a contrary intention. It was defensive and abiding, a stronghold provided with few exits (since the gateway is the weakest point of a fortified position), but with high walls, heavily flanked by towers which would give the garrison every advantage against the besiegers.

By the time of Diocletian the transition upon the Arabian limes from camp to fortress had been completed. The Umayyad khalifs, when they in turn strewed the fringes of the Syrian desert with the creations of their architects, copied, not the Roman plan which had been imported under Trajan and had survived, in broad outline at any rate, at least, as late as the year A.D. 162 (the date of Ḍumair), they copied its oriental counterpart, adapting it to the use of princes by methods borrowed from Byzantium and from Persia. We know that the Umayyads, like the Ghassânids before them, repaired and re-occupied the Roman fortresses. Hamza al-Iṣfahâni believed that Qasṭal and Odhruh had been built by Djabala ibn al-Ḥârith;[243] Yâqût mentions that Yazîd ibn ‘Abd al-malik (Yazîd II) lived at Muwaqqar, and judging from the existing remains it is probable that he either built or rebuilt it.[244] His son Walîd occupied{111} Qastṭal and Azraq.[245] But princes whose passion for magnificent construction was so great that the subjects of Yazîd III could see cause for exacting from him, when he came to the throne, a promise that he would not lay stone to stone or brick to brick,[246] were not likely to content themselves with the forts of the Roman limes. The poets, who were welcome guests at their palaces in the wilderness, have left descriptions of the luxury of their surroundings,[247] and the picture has been completed by the discovery of some of the buildings themselves. None of the ruins which have been examined are mentioned by contemporary writers under the name by which they are known to the Beduin, but a palace or palaces are recorded in the Wâdi Ghadaf, and it is in that district that Ṭûbah, Kharâneh, and Qṣair ‘Amrah stand.[248] Mshattâ, which was the first to be visited by archaeologists, bears a name which is probably modern.

Qṣair ‘Amrah lies somewhat outside the architectural type to which the other three buildings belong. It is a small unfortified pleasure-palace with a reception hall and throne-room on a basilical plan, and a bath. Very closely related to it is the early Mohammadan ruin of Ḥammâm al-Ṣarakh, discovered by the Princeton Expedition.[249] The bath at Djebel Sais is not dissimilar, but in the light of our present knowledge it requires re-examination.[250] Both at Qṣair ‘Amrah and at Ḥammâm al-Ṣarakh there is a small dome over a square chamber. At Ḥammâm al-Ṣarakh this chamber is 2·15 metres square; the dome is set on pendentives and lighted by windows. It is laid up in gores with projecting ribs constructed of long, thin, wedge-shaped bits of shale, entirely undressed and completely covered by plaster. When intact it must have presented an appearance not unlike that of the ribbed dome at Ukhaiḍir, except that the ribs were set wider apart and the pendentive substituted for the primitive bracket. Concerning the structural features of the dome at Qṣair ‘Amrah, the publication of the Viennese Academy, which leaves much to be desired, is not explicit. Dr. Musil, who is always the best guide in matters architectural and archaeological, describes it as being set on pendentives and lighted by windows in the dome.[251] Here and at Ḥammâm al-Ṣarakh two semi-domed niches are placed opposite to one another, one at either end of the domed chamber, and a room (3·30 metres square at Ḥammâm al-Ṣarakh) next to the domed chamber is roofed with a groined vault. We have a similar use of the{112} groined vault in the east annex at Ukhaiḍir. At Ḥammâm al-Ṣarakh some of the doors are covered by straight lintels, others (together with all the windows) by semicircular arches. Some of the wider arches are slightly pointed, but the vaults and transverse arches in the reception-room are semicircular. At Qṣair ‘Amrah straight lintels are the rule for doors and windows, but over the architrave of the wide door leading into the audience chamber there is a shallow relieving arch. The three parallel barrel vaults of the audience chamber are visible upon the exterior, and the absence of the flat roof obviates the need of tubes between the vaults. In both of these bâdiyahs the walls were decorated with frescoes. Qṣair ‘Amrah was built between the years 711 and 750, when the house of Umayyah came to an end, the earlier date being determined by the presence among the frescoes of a representation of Roderick, the last king of the West Goths, who came first into contact with the Arabs at the battle of Xeres in 711.[252]

To the same group belong a small ruined bath at ‘Abdeh[253] and the bath at Rḥaibeh,[254] the first being possibly Byzantine. At ‘Abdeh the dome placed between two semi-domed niches is set on horizontal brackets. In the palace of Qaṣr ibn Wardân the dome between two semi-domed niches is the basis of the plan, but it is further elaborated by the placing of a semi-domed chamber on the alternate sides. These two chambers are not, however, an integral part of the domed chamber, for they are separated from it by solid walls broken only by doorways. Fortunately we are not reduced here to conjecture concerning the date. On the lintel of the south gate an inscription gives the year A.D. 564.[255] It is clear, therefore, that the dome between semi-domed niches is an architectural scheme which was taken over by the builders of the Mohammadan age from their Byzantine predecessors, and all the evidence points to the conclusion that in both periods the artificers were Syrians.

Al-Ṭûbah is the southernmost of the Wâdi Ghadaf palaces[256] (Fig. 28). Its plan is that of Qasṭal repeated three times, with the addition of projecting rectangular chambers on either side of the gates. When the three main courts adjoin one another the side chambers against the dividing walls are omitted. The individual baits are very similar to those of Qasṭal, but only one row of chambers is interposed between each of the small courts. Thus at first sight it looks as if the Ṭûbah bait consisted of a court with rooms on one side only, except in the north-east and north-west angles, where the courts have chambers on both sides, that the corner spaces may be filled in. Actually, however, the{113}

Fig. 28. Ṭûbah. (From Qṣeir ‘Amra, by kind permission of the Akad. der Wiss. in Vienna.)

bait centres round each alternate court, which communicates with the two chambers on either side, and the intermediate court is merely a yard common to two baits. The bait of Ṭûbah is therefore the same as the typical bait of Qasṭal. The enclosing walls and the foundation of all other walls are of stone, the rest of the building is constructed of brick tiles. The western end of the palace, and most of the northern side were completed; the eastern and south-eastern parts were never carried above the foundations. The doorways are covered by brick and stone arches, but a stone or wood lintel was placed under the arch. Where the lintel is of stone its outer side is adorned with an interesting early Mohammadan pattern, which has affinities with the carving on the eastern end of the façade at Mshattâ. The stone lintels are not carried through to the inner side of the arch. The arches, which are round, are built of stone, as is the wall below them. The wooden lintels have rotted away or have been removed by the Arabs. They were laid in brick walls and covered by brick relieving arches composed of two rings of brick tiles. In the inner ring the bricks are set vertically, parallel to the main axis of the arch, with the broad side outwards;{114} in the outer ring they are laid horizontally, at right angles to the main axis, with the narrow end outwards. It is the principle on which many of the smaller arches at Ukhaiḍir are constructed. The brick arches at Ṭûbah are a stilted, slightly pointed oval; that is to say that the transition from the ovoid to the pointed arch is illustrated here in much the same manner as at Ukhaiḍir.

Fig. 29. Kharâneh, upper floor. (From Qṣeir ‘Amra, by kind permission of the Akad. der Wiss. in Vienna.)

Kharâneh lies a few hours to the west of Qṣair ‘Amrah[257] (Fig. 29). It is two stories high and about 35 metres square, and it consists of baits grouped round a central court (Plate 79, Fig. 1). A rounded tower is set at each of the four corners, a semicircular tower in the middle of each of three sides, and in the fourth side stands a gate between semicircular towers, which are cut away on the interior face, like the towers on the south, east, and west gateways of Ukhaiḍir (Plate 79, Fig. 2). The rooms on the ground floor are ill lighted, and were probably intended for stables, storehouses, and guard-rooms. The court was surrounded by a cloister, the roof of which rested on arches springing from angle piers. On the upper floor this roof, which was constructed of stone slabs, provided a passage or gallery into which the baits of the first floor opened (Plate 80, Fig. 1). The rooms on the upper floor correspond with those below,{115} but in some of the larger chambers (three, according to Musil’s plan) the vault is divided into sections by means of transverse arches borne on slender engaged columns in groups of three (Plate 80, Fig. 2). The column groups recall with singular fidelity the triple reed-columns on the façade of Sarvistân. Beyond the evidence afforded by Dr. Moritz’s photograph, we have no information regarding structural details, though they must be well worth a careful study. The vaults and transverse arches seem to belong to the same family as those of room 32 at Ukhaiḍir. The end of the chamber at Kharâneh is closed by a semi-dome reaching from the back wall to the first transverse arch—the same arrangement as has been described in the mosque and in gallery No. 134 at Ukhaiḍir. It is also extremely significant that the semi-dome at Kharâneh should be carried over the angles of the walls on squinch arches. The arches spring over the angle instead of being filled in with a small semi-dome. The fillets round the arches and round the rectangular windows must be compared with the fillets round the arched niches in room 32 and round the archivolts of squinch and niche at Chehâr Qapû. Another very important point is mentioned by Dr. Moritz. To the right of the audience chamber, which he photographed, and connected with it by a door, is a small rectangular room, beyond which lies another rectangular room of about the same size. Round this last room runs a moulding, above which stand circular plaques of stucco decorated with formal plant-motives in Sasanian style, and with late Syrian leaf-motives. One of the plaques Dr. Moritz detached from the wall, and it can be seen standing upon the floor in his photograph (Plate 80, Fig. 2), and is now in the Kaiser Friedrich Museum in Berlin. It is more than a coincidence that to the right of an audience hall there should be found both at Ukhaiḍir and at Kharâneh a chamber, the elaborate ornamentation of which points to its having some special ceremonial significance. At Ukhaiḍir this side chamber is carried through to the audience hall, at Kharâneh it is divided from it by an interposed room, but the principle is the same in both cases, and in both cases it must be connected with laws of etiquette of the Umayyad courts with which we are unacquainted. Over the above-named doorway, leading from the audience hall into the first right-hand chamber, Dr. Moritz found a graffito inscription in which a date corresponding with November, A.D. 710, is mentioned. Kharâneh, therefore, must have been standing at that time. The archway he describes as an ordinary round arch; in the photograph the door appears to be set within a niche, whereof the arch oversails the wall, like the larger archways at Ukhaiḍir. The door itself is covered by a lintel, and a lintel of solid stone covers the door of the main entrance (Plate 79, Fig. 2). In his section Dr. Musil represents some of the doors as round-arched and some with a lintel and a relieving arch above it; the latter follow a scheme which is common to most of the buildings in the west side of the Syrian desert and exists at Ctesiphon, but is unknown at Ukhaiḍir and unusual in the later Mohammadan buildings of Mesopotamia. Of the loophole windows in the{116} outer wall at Kharâneh, those on the ground floor are finished in precisely the same manner as the loopholes in the towers at Ukhaiḍir, the opening is filled in with an upright stone against which two bricks are placed diagonally. On the upper floor the loopholes show the same method somewhat simplified. There is but one main door, as in the original scheme of Ukhaiḍir. The masonry is of undressed stones set in mortar, with an occasional bonding course as at Ukhaiḍir. All round the castle, between the two upper rows of loopholes, runs a decoration consisting of two horizontal courses of brick with a brick zigzag between. On the towers this band of ornamental brickwork is repeated lower down. The presence of brick used decoratively leads one to suspect that it may be used also in the finer vaults, but like all the technical questions at Kharâneh, this cannot be answered without further observation. Over this main gate there appears to have been some kind of hourd, corresponding in level with the upper story; above it the wall between the towers is decorated with five perpendicular bands of late Syrian leaf-motives. Dr. Musil’s reconstruction of the gate[258] cannot be correct; it does not take into account the horizontal floor-line below the opening which gave access to the hourd, and it covers the bands of ornament. The Kharâneh gateway must be reconstructed in much the same fashion as the three gates in the outer wall at Ukhaiḍir. A vaulted chemin de ronde seems to have crowned the walls.

The rooms of the upper story are grouped into five baits. Over the entrance an additional chamber is interposed between two baits (compare the courts at Ṭûbah which are common to two baits) and on the opposite side there are two extra rooms to fill up the angles. These two additional rooms communicate with the baits on either side, and the gate-house chamber communicates with either bait; otherwise the baits are kept distinct from one another. The scheme is in fact that of Ṭûbah or Da’djaniyyeh, but with the small courts vaulted over and turned into audience halls or big living-rooms, and here we may seek the explanation of the difference between the baits of the palaces on the eastern side and of those on the western side of the Syrian desert. The normal bait on the Mesopotamian side consists of two lîwân groups with a court between, and the lîwân is derived, as has been shown, from the khilâni. The domestic arrangements of the East, where the women are lodged apart from the men, and if possible the several wives apart from each other, make the bait system in some form indispensable to every dwelling-house, but in Syria the khilâni plan was adopted only for monumental façades, such as that of Solomon’s temple, and from it, through temples of the pagan era, to Christian churches. The normal bait on the Syrian side has therefore no connexion with the khilâni; the lîwân is absent. The group of chambers consists of two pairs of rooms with an intervening court, or in complexes more closely knit together, an intervening{117} hall. The group thus formed is the half of a new unit, and may either share a central court with other half-baits, as at Kharâneh, or be provided with a small court of its own and another half-bait, as at Mshattâ. This distinction apart—it is a distinction which is due to local custom and local architectural tradition—the close relationship which exists between Kharâneh and Ukhaiḍir cannot be insisted upon too strongly, for it helps to determine the date of Ukhaiḍir.

Mshattâ lies a few hours to the west of Kharâneh (Plate 81).[259] It is the best known of the Syrian ḥîrahs, and its magnificent carved façade is now in the Kaiser Friedrich Museum. All that concerns me here, however, is its place in the architectural group of which Ukhaiḍir is the eastern representative. It was perhaps built by Yazîd II,[260] and it was left unfinished at his death. It may therefore be a little later than Kharâneh, for Yazîd died in A.D. 724. As at Ṭûbah and Ukhaiḍir, the materials used in it are brick and stone. It is surrounded by a wall set with towers, of which, as at Ukhaiḍir, more than the half-circle projects. The towers on either side of the main gateway are octagonal. Of the buildings immediately within the gate we have nothing but the ground-plan. Roughly speaking they correspond to the three-storied block at Ukhaiḍir, and as Dr. Herzfeld has pointed out,[261] a further correspondence lies in the fact that the oblong court to the right of the gate-house group, with a niche in the qiblah wall, was probably a mosque. The mosque at Ukhaiḍir occupies much the same position with regard to the gate, but since the orientation of the two buildings is different, the qiblah niche at Mshattâ is hollowed out of the main outer wall, while the niche at Ukhaiḍir is hollowed out of an opposite wall. (It must be noted that the big mosque in the palace of Balkuwârâ occupies the same position relatively to the gate.) The conclusion which Dr. Herzfeld reaches, namely that neither palace was a copy of the other, but that both were reproductions by different hands of the same general scheme, is borne out in all other particulars. Beyond the gate-house block lies the central court; beyond the court the hall of audience. At Mshattâ, where the lîwân was unknown, its place was taken by an aisled hall on a basilical plan. Instead of the simple apse there is a trifoliate chamber covered by a dome. The most renowned example of the trifoliate apse is in the church at Bethlehem. The learned disagree as to whether that apse was built by Constantine or by Justinian, but in either case it was earlier than Mshattâ. For the rest, the trifoliate or quadrifoliate chamber covered by a dome is a familiar Hellenistic motive which occurs frequently in palaces and in the baptisteries of early Christian churches. At Ukhaiḍir we have, in the same position as the trifoliate chamber, the quadrangular room No. 30. The throne-room, if I may so term it, at Mshattâ bears{118} comparison with the throne-room at Qṣair ‘Amrah, where two small apsed rooms correspond to the apsed side niches. On either side of the ceremonial chambers of Mshattâ lies a bait, the unit, now complete, which was foreshadowed at Kharâneh and at Qasṭal. Such is the arrangement of the central part of the palace. The two wings (to return to Mas’ûdi’s definition) were never built. Schultz’s ingenious reconstruction gives in each wing a row of baits, all adhering more or less closely to the norm, with subsidiary courts, and chambers at either end to fill up the space. When we come to structural details, the materials are sadly lacking. Either the buildings are too much ruined to afford the necessary information, or the photographs which have been taken are insufficient.[262] Those given by Brünnow and Domaszewski are the best. From them, and from the reconstruction of Schultz, it is possible to see that the vaults oversail the walls[263] and that they are built of a double slice of tiles laid vertically, parallel to the main axis, so as to dispense with centering. The only photograph of a doorway which has been published[264] shows a relieving arch constructed of the same double slice of tiles, with place for a lintel below it. Schultz was able to determine that the lintel was composed of a wooden beam carrying a straight arch of stones. The straight arch occurs at Ukhaiḍir, but without the support of a lintel. The relieving arch has the form of the brick arches at Ṭûbah, a stilted and slightly pointed oval, and from the photograph it would seem that it was set back from the face of the jambs below the lintel, but Schultz in his reconstructions gives it the same width as the door opening.[265] Brünnow and Domaszewski reconstruct the doorways in the domed chamber without lintels, and the doorways in the small chambers of one of the baits without arches—that is to say, they are arch-shaped, but the arch is merely cut out of the solid wall. Schultz places lintels and relieving arches over all the doors. Kim belir? The windows are small and round-arched. The closets were in the towers as at Ukhaiḍir, and Schultz in one of his drawings[266] places over the niche a fluted semi-dome. We know no more.{119}

It now remains to sum up the conclusions reached with regard to the origin of ḥîrah and bâdiyah on either side of the desert. And first it is clear that Ukhaiḍir stands in the closest relations to the Syrian group, not only in general conception, but in details of construction. But Ukhaiḍir reflects the older Lakhmid ḥîrahs, those palaces that were supposed to represent an army in battle with two wings, and through them it re-echoes the Sasanian palaces which were contemporary with them. These too, as we know from the palace of Khusrau at Qaṣr-i-Shîrîn, were composed of a centre and two wings. Again, allowance must be made for Byzantine influence in the Sasanian palaces and the Lakhmid ḥîrahs. Justinian lent artificers to Khusrau I; Khawarnaq was built by a Greek. The intercourse, friendly and unfriendly, between the Sasanian and the Byzantine empires was unbroken. When it was friendly it took the form of commerce, and architects were among the exchangeable commodities; when it was unfriendly it took the form of prisoners of war. Khusrau I must have captured a large and varied selection of artificers when he removed the whole population of Antioch to Seleucia. It is improbable that they should have sat idle in their new abode. They exercised their crafts, and they exercised them in their own manner. It may well have become the fashion among the citizens of Ctesiphon to shop in the Greek Bazaar, just as the citizens of Damascus shop in the Greek Bazaar of their own town. Greek influence, as we know, did not begin with Justinian. It began with a mightier figure than that of the imperial lawgiver—with the mightiest of all, with Alexander. I have already shown that the Mohammadan lîwân took to itself a part of the Greek peristyle and uses it still under the name of ṭarmah. Who can tell when this process began? The Greek peristyle exists in a Parthian palace at Niffer and in Parthian houses at Babylon. Hatra fronts the desert with a Hellenistic façade; so does Ctesiphon; it adorns the central court of Ukhaiḍir. But that Byzantine or earlier Western influence affected in any fundamental manner the plan of palace or ḥîrah is not borne out by this evidence. No fundamental change can be observed at any time, but on the contrary a steady, continuous growth of oriental methods, on oriental lines, and a steady development based on developing needs, ceremonial and social. From the days of the Hittites the palace was composed of a centre and two wings. The khilâni palaces of Zindjirli were laid out on a small scale; the khilâni palaces of Pasargadae and Persepolis covered a wide area, but provided little better accommodation; for the courtiers and guards were lodged elsewhere, in buildings of a less permanent character. Persepolis was the capital of an empire; all the needs of the time were fulfilled there. But this is not the case at Firûzâbâd and Sarvistân. Of the capital seats of the Sasanian kings we know but two, in any real sense, Ctesiphon and Qaṣr-i-Shîrîn, and at Ctesiphon we know only the great hall of audience—together with a fairly accurate guess at its flanking chambers. Before we can say that the extensive wings, which at Qaṣr-i-Shîrîn were added to the khilâni{120} palace, were not a natural development (and they are planned on principles which are entirely oriental) we must have a clear conception of that which lay about the great hall at Ctesiphon, of the palace at Dastadjird which Heraclius committed to the flames, and of the palaces in the Zohâb district. The oriental palace, in the form which it had received from Chosroës and Nu’mânid, laid a strong hold upon the imagination of the East. In the Days of Ignorance the Arab of the desert entered its courts with praise; in the days of conquest he divided its spoils with his fellow soldiers, and sent a part to Mekkah, glorying in the God-given strength which had dispossessed the kings of the earth. Not by literary evidence alone can the deep impression which it created be measured. It gave birth to the Syrian ḥîrahs and to the stupendous residences of the Abbâsids.

On the Syrian side of the desert there is another element to be considered, the Roman legionary camp, and this too had a centre and two wings. The truth is that any complex of buildings laid out on an ordered plan falls almost inevitably into this disposition. The palace of the Flavians on the Palatine had a centre and two wings, yet it was not for that reason derived from the khilâni or related to the oriental palaces. Its ancestor was the Greek peristyle house which goes back in turn to the megaron palaces of Mycenae and Tiryns and Troy. Neither were Qaṣr-i-Shîrîn and its offspring in the Syrian desert derived from the limes camp. Gradually but surely, while Rome still held the Syrian frontier, or rather while Rûm—the Hellenistic, the Byzantine Rome, itself half-orientalized—held it, the ancient Asiatic scheme invaded the limes fortress, pushed out the Praetorium, or pushed it back against the encompassing wall, which had become an indispensable requisite, and having grouped its baits after its own fashion, left a court over. The union of both sides of the desert under the hand of a single ruler quickened the process. Neither the Roman Qasṭal nor the Umayyad Ṭûbah are palaces on the Persian ḥîrah plan; then suddenly Kharâneh and Mshattâ spring into being, uniting the oriental traditions of the Mesopotamian side of the desert with oriental traditions which had developed independently from the same root on the Syrian side. The Syrian architects were masters of a more scientific technique, for they had been trained in a Graeco-Roman school. They taught their Mesopotamian brothers, and even the builders of remote Ukhaiḍir had learnt how to lay a cross vault.

But if the legionary camp is powerless to affect the ancient palace plan, it did not wither away, unnoticed, like a plant upon uncongenial soil. It bloomed again in the cities of the eastern Roman empire, in Boṣrâ, in Damascus, in Apamea. Towns such as Diyârbekr, where not one Roman stone remains upon another, still betray a Roman origin in their crossed thoroughfares and quadruple gateways.[267] And therewith it returned, remodelled, to the West. The{121} palace at Antioch was built on the plan of the Roman limes camp. Diocletian copied it at Spalato, and Constantine’s palace in his new capital was in some respects an echo of that of Diocletian, though the true oriental palace was not without effect upon Constantinople.[268] The imperial residence, stereotyped by him, went on into other phases, too complex, and often too obscure, to be followed here, but it is curious to note that five hundred years later, Theophilus, himself an Asiatic, since his father, Michael II, was a Phrygian by birth, built for himself a palace on the Bithynian coast which was modelled avowedly on the palace of the khalifs at Baghdâd.[269] A few years later Mutawakkil laid out Balkuwârâ—what sister ḥîri with two sleeves stood at Bryas, on the shores of Marmora?

One other point remains. The palace of Ukhaiḍir is contained within a towered wall which is wholly distinct from it. This is not the encompassing wall of the ancient East, the primary condition of the structure. It has the four gateways of the Roman camp, though the unneeded cross-roads have dropped away. Here at last Imperial Rome has come to her own. For all its oriental system of fortification, its towers and its hourds, its machicolations and its loopholes, its casemates and its crenellations, this wall is perhaps no other than the wall which surrounded the legionary camp. But I doubt whether the camp itself, which made so fleeting an apparition on the Asiatic frontiers, was the deciding factor. The camp lived on in the city and made a far deeper impression through the city than through the limes fortresses. The scheme is repeated at Sâmarrâ. Balkuwârâ forms part of a great enclosure similarly disposed, with three gates, like the gates of Ukhaiḍir, the palace taking the place of the fourth.[270] The area covered by the enclosure is so extensive that it resembles a town rather than a royal dwelling, and through this town run the crossed thoroughfares which were once the Via Principalis and the Via Praetoria.{122}

CHAPTER V

THE FAÇADE

The breaking up of the wall-face into horizontal zones was a device familiar to the ancient East. In the main gateway of Sargon’s palace at Khorsâbâd the wall is divided into a high orthostatic podium, decorated with reliefs, and a brick superstructure diversified by vertical flutes and rectangular recesses.[271] In the interior of the palace, the court of the ḥaram shows a similar disposition, except that the podium is of enamelled brick, not of stone.[272] The upper part of the walls is in no case preserved. On Assyrian reliefs it is not uncommon to find a horizontal band along the top of the walls below the crenellations;[273] but the nature of the upper zone or zones in decorated façades such as those of Khorsâbâd is a matter of conjecture. Concerning Chaldaean wall decoration we have little evidence. The building on the Wuswas mound at Warka, of which Loftus published a sketch,[274] has recently been re-examined by Dr. Jordan, who believes it to be post-Babylonian.[275] The walls of the temple of Bel at Niffer were decorated with shallow buttresses, while the gates bore resemblance, both in plan and decoration, to the gates of Khorsâbâd.[276] The gateway of Gudea at Tellôh has the same doubly recessed rectangular niches that have been noted at Khorsâbâd, but they do not seem to have been grouped in panels, and the plinth is reduced to insignificant proportions.[277] It is significant that in the post-Babylonian construction at Tellôh both the rectangular niche and the flute are present, and it may be surmised that the walls of Wuswas, with their recessed and fluted panels placed one above the other, represent an ancient scheme. It is a scheme which may be compared with that of the façade of Ctesiphon (see below, p. 134). At intervals groups of recessed niches are carried up continuously to the height of two registers of panels, just as in the two lower zones at Ctesiphon the engaged columns embrace two registers of arched niches. But at Ctesiphon we have architectural forms borrowed from Hellenism instead of the surface decoration (recess and flute) of Chaldaea and Assyria.

The orthostatic construction was used in Hittite architecture at Zindjirli, Boghâz Keui, and Sakcheh Geuzu. Mr. Hogarth has found it at Carchemish{123} and Baron Oppenheim at Râs al-’Ain.[278] But in all these buildings, Babylonian, Hittite, and Assyrian, there was no attempt to ornament the façade with the similitude of plastic architectural forms. The elements of such ornament were not indeed lacking, but they appear in isolated examples and were not applied to the wall-face in a continuous decorative system. Side by side with stelae and altars adorned with fluted motives akin to those of the façades[279] there are instances of mock architecture in relief. An Assyrian stela upon a slab found at Quyundjik and now in the British Museum will serve as an illustration (Fig. 11). Two pilasters carry an architrave consisting of a double fillet and a band of crenellations; between and behind the pilasters an arched niche, placed in counterfeited perspective, frames a hunting scene. It is an early example of the application of the third dimension to architectural ornament, and it conveys the impression of plastic architecture in two planes. As Professor Delbrück observes, by the addition of free-standing columns placed before the pilasters, we should have here a motive familiar to Graeco-Roman façades.[280] The archivolt, of which the enrichment is expressed at Quyundjik in the terms of a shallow fillet, appears at Khorsâbâd, with enamelled brick enrichment, over a doorway,[281] and also upon reliefs.[282] All the methods of decorating the face of the arch which were known to antiquity are found on the Assyrian monuments. The podium façade is oriental, for it was used in Assyria and in Persia. Pre-Greek is the employment of blind openings; in the Persepolitan palaces a blind niche is placed in every intercolumniation, and in plastic architecture an open gallery or loggia was common to Egypt and to Assyria.[283] In pre-Hellenic Egypt and western Asia there is, however, no example of a continuous series of arches in relief, though the continuous treatment of decoration on the wall-face is typical of Babylonian architecture from the earliest time, and it remained only to apply it to true architectural motives instead of to the purely decorative motives of Chaldaea and Assyria. That these last were mainly based upon the outward aspect of primitive wooden structures, I do not doubt, but at the remote date at which we first know them they had already lost all structural significance. The step from pattern to imitative architecture must have been taken at an early stage in the Hellenistic East. Seleucid buildings which have vanished are reflected in the stupas of Hellenistic India, where the surfaces are adorned with blind openings between engaged piers, and in the rock-cut temples, where the decorative scheme of the façade is a podium carrying a colonnade in relief.[284]

{124} In Egypt rows of niches are present in the interior of tombs,[285] and an early example of the same motive can be seen in the gateway at Perge, a city which lay under the direct influence of Antioch.[286] The lightening of the massive wall by means of niches and blind openings can be traced through pre-Greek architecture in Mesopotamia (Assyrian palaces and temples) and in Egypt (from the Eighteenth Dynasty and even earlier) down to the Achaemenid period. The systematic application of this principle to the wall-face, and its union with imitative architecture in relief as a decorative scheme took place, as far as can be determined at present, in the Hellenistic age.

In the third and in the second century B.C. the division of the wall into two zones by means of a moulding appears at Delos, Priene, Magnesia, and other parts of western Asia,[287] and a little later it is found in what is known as the incrusted style at Oscan Pompeii. The lower zone consists of unpainted stucco decoration representing a stone wall, composed of one or of two rows of orthostatae, and above them several courses of dressed stones. The upper zone, which was at first undecorated (it represented space, the upper air), takes on later the semblance of a colonnaded gallery[288] in imitation of the open galleries characteristic of Eastern Hellenistic architecture.[289] The podium façade carrying an open arcade is, as Professor Delbrück is careful to point out, in origin different from the galleried wall, but in façade schemes the two run together so as to be almost indistinguishable. The theme is represented in relief upon the façade of the Bouleuterion at Miletus[290] and frequently in Pompeii, where, however, the engaged columns do not stand upon a podium.[291] Behind the columns, both at Delos and in the Pompeiian examples, the wall is still divided into two zones by a moulding. In all cases it is a theme which stands as a representation in relief of plastic architecture, of deep colonnades such as those which were to be seen on the Mausoleum at Halicarnassus.[292] The blind order of the Ephebeum at Priene may be cited as another striking example of imitative architecture.[293] Similarly the superimposition of one blind order upon another, a decorative motive so familiar in Roman theatres and amphitheatres, finds its prototype in the colonnades of Hellenistic stoae, such as those erected by Attalus in Athens and in Pergamon.[294]

{125}

Professor Delbrück is of opinion that the impulse towards decorating the wall-face with the similitude of plastic architecture was quickened by Greek painting, which, from the fourth century B.C. onward, gained an increasing mastery in the representation of spatial dimensions. Plastic examples of the phase of development represented by the Boscoreale frescoes might be expected in the second century B.C., and in fact there were at that period mock colonnades in relief, such as the Ephebeum at Priene. The cutting away of the wall-face by means of niches was foreshadowed in Hellenistic art; the lightening of the wall-mass by niches has been noticed in the gate at Perge and the tombs of Alexandria, while windows in the intercolumniations were of frequent occurrence.[295] It is possible, as Professor Delbrück suggests, that in Hellenistic Mesopotamia decoration by means of blind openings, whether doors, windows, or niches, won a great popularity because it was based on pre-Hellenic tradition, and it is interesting to observe that the only early examples of the arched niche, which is the leading motive at Ukhaiḍir, are to be found in western Asia.[296] But the systematic application of these principles to the façade was accomplished only in the latest phases of Hellenistic art, and we may perhaps owe it to Roman builders. In the intercolumniations of the decorated zone niches, arcades and windows take the place of the traditional moulding,[297] and the upper wall is broken by a row of arches or of windows.[298] On inner walls a double row of niches is sometimes accompanied by stucco incrustation,[299] while the podium is decorated with engaged columns.[300]

It remained for the Imperial period to complete the development. Orders of columns were placed in zones one above the other; niches of richer type occupied the surface of the wall, and not infrequently they were placed one within the other; rounded and rectangular niches followed one another in a rhythmic sequence; columns and piers stood out in higher relief and the podium and architrave were broken above and below them. Gradually the orders and niches lost their original significance; they were looked upon merely as decorative motives, and as such followed a development of their own. They lent to the wall-surface an ever-increasing movement and rhythm as their forms grew richer and freer. This evolution can be seen upon the walls of Roman buildings which are yet standing; if in the cities of the eastern Mediterranean most of the monuments have fallen, the elements of their composition have been found and put together, as in the Nymphaeum at Miletus,[301] or the theatre at Ephesus,[302] and{126} similar decoration can still be studied upon the walls of Ba’albek.[303] But in western Asia, and notably in Syria, the old classical love of unbroken wall-surfaces died hard—perhaps it may be said to have survived long into the Middle Ages in the smooth faces of dressed stone which give so much dignity to the Mohammadan buildings of Damascus and Aleppo. Older and simpler decorative forms continued to rule when in Rome the evolution had gone on to other stages. The façade of the Nabataean temple at Sî’, for example, echoes in free-standing architecture the features of the relief decoration of the Ephebeum at Priene.[304] In the temenos of the basilica at Apamea (second century A.D.) the solid outer wall has disappeared, and its place is taken by a series of piers with rectangular openings between, but in the basilica itself the treatment of the wall is still of an extremely simple character.[305] The temenos wall of the temple at Palmyra is treated with the old formal severity. At Bâqirḥâ and at Isriyyeh the walls are unbroken save by shallow pilasters,[306] a simplicity which rivals that of the pre-Roman tomb of Ḥamrath at Swaidâ.[307] At Mushennef and at Qanawât pilasters are set at the angles, and the rest of the wall is undecorated.[308] In the pre-Roman temple at Swaidâ, niches, in imitation of small doors, are placed on either side of the single entrance;[309] at ‘Atîl a double order of niches, the lower rectangular, the upper rounded and arched, occupy the same position, but the walls of the cella are without even the customary pilasters;[310] in the Qaisariyyeh at Shaqqâ a genuine opening flanks the doorway on either side, but the façade is otherwise unadorned.[311] In the Philippeion at Shahbâ the side niches are omitted and there are no pilasters except at the angles; rounded and rectangular niches are employed on the interior walls of the palace, and on either side of the interior doorways of the bath, but in all other respects the latter building is noticeable for the entire absence of decoration upon its walls;[312] and as late as the sixth century angle pilasters set upon a podium were considered a sufficient decoration for the walls of the exquisite tomb at the southern Dânâ,[313] while the porticoes of house and stoa are models of severity.[314]

The fantastic variety which characterized the late Hellenistic and the Roman Imperial age must be sought for in south-west Asia in another group of monuments. The influence of Alexandria dominates over the tomb façades of Petra, and was felt even in the earlier tombs at Madâin Ṣâliḥ.[315] With the latter{127} I am not immediately concerned, except in so far as they help to determine the date of the Petra tombs. It is enough to notice that the local oriental forms, the pylon tombs with a band or bands of crenellated ornament, or with a staircase motive at the angles, dropped out of fashion during the first half of the first century after our era, and that in the first century A.D. Hellenistic forms had invaded the Ḥedjr tombs.[316] The gable tomb and the columned façade, which Domaszewski has christened the Roman temple tomb, do not indeed appear at Madâin Ṣâliḥ, but the fully developed aedicula, with quarter-columns in the antae, is found there as early as the year A.D. 31 in the tabernacle which frames the doorway,[317] and the tabernacle, both with a gable and with an archivolt, was employed in Arabia at an early date for votive niches.[318] It is therefore unnecessary, as Puchstein has pointed out, to assign such gable tombs at Petra as date from a period before the Roman occupation (i.e. before A.D. 106) to some fortuitous Greek influence,[319] since the type was familiar to the stone-cutters of an earlier period. Not later than the middle of the first century A.D. a second order of dwarf columns was placed in the attic (the earliest dated example is tomb F 4 at Madâin Ṣâliḥ, A.D. 63-64), but it is instructive to note that the appearance of a new form does not imply the elimination of older types. At Madâin Ṣâliḥ all the different variations continue to exist side by side, and there is an example of the primitive pylon tomb with a single band of crenellations, the unmitigated copy of an Arabian house for the living turned into a house for the dead, which is dated as late as the year A.D. 74,[320] just as the Egyptian gorge is found side by side with, and indeed upon the same tombs as, a fully developed Ionic entablature. The Roman temple tomb of Petra is predicted in the dwarf piers of the attic (which are of frequent occurrence at Madâin Ṣâliḥ) inasmuch as they imply a corresponding series of engaged piers in the wall below. A single example of this so-called temple tomb exists at Madâin Ṣâliḥ, but without the piers in the attic; it is probably to be dated in the middle of the first century A.D.[321] The engaged column, in contradistinction to the engaged pier, is employed at Madâin Ṣâliḥ only in the antae of the tabernacles; at Petra it takes its place among the main supports of the façade. At Petra, too, the plastic freedom of late Hellenistic architectural forms makes itself felt. Broken podiums are found upon wall paintings of the second style at Boscoreale, though their architectural counterpart cannot be pointed out at so early a date; broken entablatures are present in late Hellenistic work at Alexandria, but not elsewhere in the Greek cultural sphere at the same period.[322] Both these features, together with the{128} preference for engaged columns instead of piers, are common at Petra, and they are like sign-posts pointing to the source whence the stone-cutters of Petra drew their inspiration. There are, it is true, early examples of the broken architrave in Italy in the triumphal arches of Rimini (27 B.C.) and Aosta (25 B.C.), but the systematic use of broken podium and entablature is one of the distinctive features of the later Imperial period. In the Lion Tomb at Petra, which recalls the tabernacle of the tomb F 4 at Madâin Ṣâliḥ, architrave, frieze, and cornice are broken over the angle columns and piers. In the tombs of the second century the principle is carried further; architrave, frieze, and cornice are all broken, and the system is extended to the plinth-like member which is interposed between the entablature and the dwarf order of the attic, and, when the façade reaches a second story, to the upper entablature also.[323] In the Corinthian tomb, the Dair, and the Khazneh a second order is superimposed upon the first. In each case a tholos occupies the centre of the upper story and the pairs of flanking columns are crowned by a broken pediment. In the Dair an engaged pier and quarter-column fill out the façade on either side (Plate 82, Fig. 2). In the Corinthian tomb the lower zone is complete in itself (Plate 82, Fig. 1). The engaged columns stand upon a high plinth and carry a broken architrave composed of frieze and cornice only; the dwarf piers are placed upon a broken plinth with a moulded cornice, which is interrupted above the central door by a moulded archivolt. The dwarf columns carry a complete entablature, architrave, frieze, and cornice, and a low broken pediment occupies the centre of the façade. Above this structure the second order, with its tholos, stands upon a moulded plinth. In the Storied tomb the lower order carries a complete entablature and a broken attic which contains the gables and archivolts of the doors; upon a plinth with a moulded cornice rises a second order bearing an entablature; a second plinth, itself divided by a horizontal moulding, carries a dwarf order which is crowned by a third entablature (Fig. 30). Yet another order crowned the tomb, but it was built, not rock-cut, and little of it remains. The tholos in these façades is a Hellenistic motive, though it is known to us at an early period only from wall paintings and from literary sources.[324] To the multiplication of horizontal decorations earlier Nabataean tombs had shown a strong inclination. The double band of crenellations in the pylon tombs of Madâin Ṣâliḥ and of Petra, the double attic of the so-called Ḥedjr tombs in both places, point{129} the way to such compositions as the Storied tomb. Everywhere a strong centralization rules the scheme of the façade. It is rare to find more than one door; where doors are placed in the flanking intercolumniations they are insignificant in size, as in the Corinthian tomb. In the Dair (Plate 82, Fig. 2), mock windows occupy the outer intercolumniations. In the Storied tomb, where there are four doors, the two central entrances are higher than the others, and, in the upper story, the central intercolumniation is wider than those on either side. But the long unbroken lines of the horizontal mouldings give an exceptional monotony to this façade. Usually a gable or archivolt, breaking into the attic, emphasizes the centre of the façade and is re-echoed in the pediment, with its central acroterion which crowns the whole, while in the tholos tombs the centralization is even more strongly underlined. The angles are commonly in antis, with a quarter-column set against the corner pier. The archivolt is conspicuous by its absence. It is never used except in exchange for the pediment over aediculae, and, exceptionally, over mock windows, as for example in the lower zone of the Dair.

Fig. 30. Petra, the Storied tomb.


(From Provincia Arabia, by kind permission of Professor Brünnow.)

The same insistence upon horizontality is to be observed in the façades of Ctesiphon and Ukhaiḍir; but the effect is produced in a different manner. No doubt it is difficult to do justice to the horizontal members in these buildings, owing to the fact that, from the perishable nature of the material, they have{130} suffered complete destruction, but it can safely be conjectured that they were never of much importance to the general effect. The space left between the decorated zones is too small to admit of the full entablature, attic, and podium which separate the lower order from the first upper order in the Storied tomb, or even of the entablature and podium which are interposed between the upper order and the order of dwarf columns. The multiplication and the breaking of horizontal members in Western Hellenistic monuments are discarded in Mesopotamia, and with them vanishes much of the significance of the façade. The zone decoration becomes a pattern composed of innumerable groups of architraved and arched divisions, set one within the other, so as to cover the whole surface of the wall. Where exigency demands, real doors and windows may be placed in the niches; the zones may correspond to a certain extent with the structural division of the building into stories; but the main intention of the architect is to cover his wall with continuous motives which are not dependent upon the structure and must fit into it as best they can. It is the traditional surface decoration of the ancient East, disguised in the new dress which it had borrowed from Hellenism.

No better example of the oriental practice can be found than in the façade of Ctesiphon. The north wing and the face of the great central arch have fallen, but they are preserved in M. Dieulafoy’s photograph[325] (Plate 83). The façade is divided into three zones, but organic connexion between them is lacking. Each zone, in either wing, is subdivided into two horizontal registers. The lower register of the lowest zone consists of wide arches separated by pairs of engaged columns which are carried up to the top of the zone. The width of the intercolumniations bears no relation to the width of the wing; a space remains over at the outer end which is awkwardly filled by two small blind arched niches, placed one above the other. The upper register is occupied by groups of three niches; in each group the central niche is wider than the other two, and each niche is flanked by engaged colonnettes. At the outer end there is no room to complete the pattern, and the outer flanking niche is omitted. The lower zone breaks off abruptly here against a plain pylon-like wall, and at the inner end it is not organically connected with the great archway which forms the centre of the façade. Single engaged columns divide the middle zone into five compartments. They are not placed above the pairs of engaged columns of the lower zone, nor yet in the centre of the lower intercolumniations, but purely in accordance with the dictates of the pattern which covered the middle zone. It, too, is subdivided into two horizontal registers. In the lower register there are five pairs of niches, with three engaged colonnettes between. At the inner end the pair must have been incomplete owing to lack of space; at the outer end the{131} engaged column is omitted for the same reason. In what relation the triple colonnettes stood to the niche arches is not clear. They were not regarded as necessary to the arch, for on the outer side of each pair they are absent, and the same applies to the colonnettes and arches in the upper register of this zone. These groups consist of three niches of equal size, with a pair of colonnettes between the central and the flanking niches. In the third zone the upper of the two registers has almost entirely disappeared; it is obvious, however, that the two registers were not welded together by engaged columns. In the lower register the arched niches, separated by engaged colonnettes, are conceived without any thought of the division of the wall below them, and, from the fragment of the upper register which remains, it would seem that the niches which adorned it were equally independent of the niches of the lower register. Into this confusion breaks the huge central arch, cutting short the pattern at the inner end of the wings just as the pylon wall cuts it short at the outer end. Yet the gigantic size of the façade and the even repetition of the arches in each register gives to the eye a sense of orderly grouping, and draws the whole into an apparent symmetry which an analysis of the details proves to be lacking in reality.

Ukhaiḍir, separated from Ctesiphon by an interval of some 500 years, shows a sensible advance. The north façade of the court is not indeed centralized, nor is it symmetrically placed in the wall of the three-storied block, but the two lower zones are organically connected with one another. The seven blind niches of the lower order correspond with those of the second order. In the second order the breaking up of the zone into registers is still adhered to, but since an archivolt has taken the place of the architrave of Ctesiphon, the principle is not so strongly marked. It works only within the arched niches. That it is substantially the same is, however, apparent from the fact that at Ukhaiḍir, as at Ctesiphon, the lower register consists of groups of two small niches, the upper register of groups of three, the central niche being the largest. The seven large niches of the second order are separated by a cluster of four columns; in the spandrels of the arches there are niches containing windows. The pylon-like wall of Ctesiphon is represented by a battered wall at Ukhaiḍir, but instead of sloping back and forming horizontal ledges, its perpendicular face seems to have been divided at intervals by horizontal bars of masonry. There is no space between the zones for important horizontal mouldings. Dr. Reuther in his reconstruction (Ocheïdir, Plate 25) places a plain masonry balcony along the narrow platform formed by the summit of the second zone. It is, however, conjectural, and in my opinion it lays a stress upon the horizontal divisions between the zones which is contrary to the spirit of the decorative scheme. In the upper zone the plain wall is in far better accord with the classical treatment of wall-surfaces than are the restless nichings of Ctesiphon, and it enhances the value of the rich orders below it. But it is not regarded, like the plain wall of early Hellenistic decoration, as{132} representing space, the upper air;[326] it is rather the gallery wall of ancient Assyrian and early Hellenistic architecture. It is confined by an upper row of arched niches, each one, so far as can be determined in their ruined condition, placed within a rectangular frame of engaged columns and architrave, like the niches upon the outer fortification wall of the palace. And here we have the system that dominates Ctesiphon, the column and architrave framing arched niches. In the upper zone of the Ukhaiḍir façade symmetry has vanished. The long crowning row of niches calls attention to the fact that the decorated lower zones of the façade do not stand in the centre of the wall, and the doorways of the third zone bear no more relation to the arches below them than the perpendicular divisions of the Ctesiphon wall bear relation to one another. Another similarity exists between the two buildings. The arches of the second zone at Ukhaiḍir are decorated not with the mouldings of the classical archivolt, but with the cusp of the great arch at Ctesiphon. So far as I am aware the earliest example of this cuspidated ornament in monumental architecture is at Ctesiphon. It appears in northern Syria in the fifth century A.D., when it can be seen both with the cusps pointing inward[327] and with the cusps pointing outward.[328] In the latter form it bears a close resemblance to the broken palmette of late Graeco-Roman ornament,[329] and its origin is probably to be sought in oriental Hellenism, but whether it was developed in the Syrian or in the Mesopotamian regions I cannot determine. It became a common motive in Syrian architecture during the sixth century,[330] where it is used in both forms, but in the Mesopotamian sphere it is almost always inverted, as at Ctesiphon. We have it at Ukhaiḍir, not only in the façade but also on the arches of the mosque doorways and possibly in the lîwân arches in the courts.[331] In exactly the same form it is employed in the early Abbâsid buildings of Sâmarrâ,[332] and there is another notable example of its use over the doorway of the mosque at Ḥarrân, where an outward-pointing cusp is used (Plate 84, Fig. 2). In the mosque at Mayâfârqîn it is found inverted on the elaborate arches which cover the miḥrâb niches, on the relieving arches over the doors of the outer north wall (Plate 84, Fig. 3), and on the blind niches above. This part of the wall belongs to the earlier portion of the building, which is ascribed, in an inscription round the dome, to the Ortokid Alpi (A.D. 1152-1176). It is a common feature of Ortokid decoration at Diyârbekr,[333] and in the first half of the thirteenth century it is seldom absent{133} from the lintels of Christian churches and Mohammadan mosques in Môṣul and the surrounding districts,[334] nor yet, in the late fourteenth and early fifteenth centuries, from the lace-like decoration of the arches in the mosques at Ḥasan Kaif[335] (Plate 84, Fig. 1). Other examples in late Mohammadan architecture are too numerous to be mentioned. I select the few which I have quoted because they are little known.

In attempting a reconstruction of the Ukhaiḍir façade (Plate 85) I have sought some guidance from the representation of a Sasanian fortress which is to be seen upon a silver dish, now in the possession of the Kais. Archäol. Kommission of St. Petersburg[336] (Plate 86, Fig. 2). It has been assigned to the beginning of the Sasanian period. The façade depicted bears some interesting analogies to that of Ukhaiḍir. It is divided into two stories. In the lower story the lower zone consists of eight arched niches, the arches borne on tall engaged columns without capitals. The archivolts are decorated with three fillets and a small oval motive is placed in the spandrels. Above the arches there is a cornice composed of two simple horizontal mouldings with a band of spirals between them. I surmise that these spirals, which seem to be singularly out of place in a monumental façade, were put in to fill up the space and have no warrant in any actual building. The gateway occupies the centre of this zone. A wide archway, set in a rectangular frame, covers two narrow arched doors. Within the semicircle of the embracing arch there is a shallow calotte decorated with broken concentric rings. The archivolt is outlined by a moulding which is carried up continuously round the rectangular frame. Within this frame a horizontal moulding is laid above the arch. This scheme of archivolt and rectangular frame with a continuous moulding is common in Syria and Mesopotamia.[337] The crowning member of the portal breaks the line of the cornice. It consists of a frieze carved in relief with a human (or divine?) head and bust, and a cornice bearing a row of cusps. The upper zone of the lower story is less easy to describe in terms of architecture. There is a frieze (or dwarf order?) decorated with four groups of six flutings or engaged colonnettes and five groups of four circles, each circle containing a quatrefoil. The cornice is composed of two bands, the first decorated with alternate circles and rhomboids, the second with diagonal brickwork. A projecting hourd is placed at either end of the building, and between the hourds the top of the wall is battlemented. These crenellations form a parapet to the gangway which runs along the base of the second tower-like story. Upon the gangway stand eight figures, seven of whom are blowing trumpets. Behind{134} them the wall is plain, but the upper part is decorated first with a band of half-florettes, then with a row of arched niches, each niche being set within a rectangular frame, and finally with a band of diagonal brickwork. The summit of the wall is battlemented and a wooden hourd projects from either side. The lower zone of the lower story corresponds very fairly with the lowest zone at Ukhaiḍir. The schematized horizontal bands of the second zone bear little or no relation to real architecture, but the upper story is set back, as at Ukhaiḍir, and the battlemented parapet of the gangway is a very probable solution for the parapet of the Ukhaiḍir gangway. The upper story, with its plain wall and its row of niches is the same in both façades, and the upper battlements may safely be restored at Ukhaiḍir.

At Ctesiphon the capitals and bases (if bases there were) of the columns and colonnettes were moulded in stucco and have disappeared. Bases seem to have been absent from the slender engaged columns on the outer walls of Firûzâbâd and Sarvistân, but at both places the state of the ruins renders an exact determination of such details difficult. The engaged columns seem to rest upon a low plinth. The decoration in those palaces is, however, far more nearly connected with oriental than with occidental tradition. We have not much information as to Sasanian capitals. The columns and double columns of the inner rooms at Sarvistân are covered by rectangular imposts,[338] and de Morgan gives a drawing of a stucco capital from Shirwân.[339] It is scarcely necessary to allude to the famous impost-capitals of Bîsutûn and Iṣfahân, which belong, in all probability, to the end of the sixth or the beginning of the seventh century. They show far greater skill in the handling of the rectangular impost than the capitals at Sarvistân, but whether they are a natural development out of the latter, or borrowed directly from Byzantine art, existing material does not enable us to decide.[340] The latter theory seems to be the more probable, and it is supported by the fact that the evolution of the Mesopotamian capital did not proceed upon the Bîsutûn-Iṣfahân lines. At Ukhaiḍir there is a reversion to the simple impost of Sarvistân, nor did the development there go beyond the elementary impost-capital of rooms 30 and 40. The capitals of the swelling columns on the north façade of the central court may have been more like those of Bîsutûn and Iṣfahân, but unfortunately they are completely ruined. At a later date, in the church of Mâr Ṭahmâsgerd at Kerkûk (eighth or ninth century), the scheme of the Sarvistân halls is repeated, but the pairs of columns are without capitals or bases, and the colonnettes of the niches in the spandrels are similarly treated (Plate 75, Fig. 1). I should be inclined to reconstruct all the columns and engaged columns at Ukhaiḍir and Sarvistân, and possibly at Ctesiphon also, without bases.

On the western side of the Syrian desert the evolution of the capital is{135} different. The engaged capitals at Madâin Ṣâliḥ and Petra show a marked tendency towards the Corinthian. Like the capitals of the Kôm al-Shukâfa oasis[341] and capitals on Pompeiian frescoes of the second style, they have the Corinthian form and the Corinthian rosette upon the abacus, not indeed worked out into a true rosette, but left in the shape of a simple boss. In the second-century façades at Petra, such as the Corinthian tomb and the Khazneh, this tendency reaches full expression. The replacing of the architrave by the archivolt created a structural need which was satisfied by the introduction of the impost-capital, and we find the latter both at Mshattâ[342] and at Muwaqqar,[343] the capitals at Muwaqqar being closely related to the Bîsutûn-Iṣfahân type. With these stone-carved capitals, the brick and plaster capitals of Ukhaiḍir, so far as they are preserved, are little concerned. The further history of the Muwaqqar capitals must be sought, in the realm of Mohammadan art, at Sâmarrâ and in the mosque of Ibn Ṭulûn.[344]

New to Mesopotamian architecture are the clustered columns in the middle zone of the Ukhaiḍir façade. No doubt they are not essentially different from the triple supports between the arches of the second zone at Ctesiphon; but at Ukhaiḍir they are given a true architectural meaning, the central pair carries the wall, the flanking columns carry the cusped arches; moreover they are set in different planes, the central pair standing in front of the flanking columns. The effect produced is almost Gothic, a foreshadowing of the clustered piers of Armenian churches.[345] It was a scheme which was not to remain sterile in early Mohammadan art. Clustered piers carried the roof of the great mosque at Sâmarrâ[346] and the arcades of the mosque at Ibn Ṭulûn.

The first great distinction, then, between the second-century façades of Petra and the third-century façade of Ctesiphon is that the mock architecture at Petra is organically coherent, whereas at Ctesiphon it is incoherent, i.e. it is a pattern covering the wall-face rather than a simulation of plastic construction. The second great distinction is the systematic use of the archivolt at Ctesiphon for all the secondary intercolumniations in the wings. It is perhaps not without importance to observe that the same change from architrave to archivolt took place, though at a rather later date, in the stone-building regions of western Asia. In Syria, for example, the arched window almost entirely replaced the rectangular window in the course of the fifth century.[347] In the lower and central zones of Ctesiphon the arches are framed by groups in a rectangle composed of engaged piers and architraves; in the upper zone this system is abandoned. The principle of the arched niche within a rectangular frame appears, as has been seen, as early as Assyrian stelae, but for{136} the use of the motive in a continuous series upon the façade there is, so far as I am aware, no example earlier than the Tabularium.[348] In the Augustan age it is found upon the Porta Praetoria at Aosta,[349] and thenceforward it governs the decorative scheme of Roman city gateways. Whether it was derived from Hellenistic Alexandria, together with the whole city gateway type, as Schultze surmises;[350] or whether it was evolved out of such wooden superstructures as gave birth to the decoration upon the Etruscan gates at Perugia;[351] or whether it was a specifically Roman (Stadtrömisch) conception, it is impossible to say. Nor does it signify. We know it as Roman, not only in the gateways, but also in the theatres and amphitheatres of the Roman empire, and I cannot doubt that the perfected Roman scheme is at least as directly responsible for Mesopotamian wall-surface decoration as is the western Asiatic development of Hellenistic façades. The gateway at Aosta, the Storied tomb at Petra, may well be taken as representing the immediate progenitors of Ctesiphon.

Five hundred years later, in round figures, comes Ukhaiḍir—five hundred years of architectural growth and of fairly continuous intercourse with the West. The architrave has vanished from the principal orders; it is retained only to form the old rectangular framework for the small niches at the top of the wall. Symmetry and organic cohesion rule over the two lower zones. But in the details of its composition there is nothing at Ukhaiḍir which might not have been foretold from the façade of Ctesiphon.

The lower zone of the north façade forms part of the decorative scheme of the central court as a whole. The central court resembles, as has been observed by Dr. Reuther, a Greek peristyle with engaged columns in place of free standing columns; the southern side is, however, treated as a separate façade, the façade of the lîwân. The principal feature was necessarily the wide arched opening of the lîwân itself. There is nothing new here; we have it at Ctesiphon, combined with Hellenistic wings; we have it at Firûzâbâd, without side doors, and at Sarvistân and at Hatra.

Hatra, though in plan it is no less purely oriental than Ctesiphon, shows direct Western influence far more strongly than the southern Mesopotamian or the Persian palaces. Dr. Herzfeld has compared its triple-arched façade, wherein the central arch surpasses the flanking arches in height and width, with that of the triumphal arch,[352] and the comparison is apt. So far as my knowledge goes, the triple-arched scheme appears for the first time in the Assyro-Persian cultural sphere at Hatra, and it is accompanied there by strongly Hellenized details of decoration, which distinguish it from the older oriental palaces to which it is related in plan. This Hellenized decoration is present in all other Parthian ruins, and it is not surprising that it should be so. The{137} Parthians wrested their empire from a Greek dynasty. The Mesopotamia which they conquered was a part of Asiatic Greece; it was more closely linked to Greek culture than it had ever been linked before, or was ever to be linked again. The Hellenistic triple-arched scheme fitted the lîwân plan admirably, inasmuch as it provided the great opening which was essential to the lîwân hall. But it implied the placing of doors in the two flanking chambers, and this was done for the first time at Hatra. The side doors were an innovation which was not accepted without hesitation. It was not adopted in the façade of Firûzâbâd, where Hellenistic influence is almost entirely lacking. To a great extent the Sasanians stand for a reaction against Hellenism. A fresh wave of orientalism flows back into Mesopotamia with their conquest, and they went far to complete the severance with the West which the Parthians had begun when they overthrew the Seleucids. But the Greek domination, together with the fitful occupation of parts of northern Mesopotamia by Roman armies, left an indelible mark. Moreover, the Sasanian frontiers marched with those of Rome, and the interpenetration of the two civilizations was inevitable. It is felt in the façade of Ctesiphon. Though the triple-arched scheme is not present there, the provision of independent doors to the side chambers was a convenience; it was used at Firûzâbâd in the lîwân group at the back of the posterior façade; it was used at Ctesiphon, and thereafter it was not to disappear. With it the triple-arched façade came into favour. It formed part of the truly oriental façade of Sarvistân; no doubt it existed at Qaṣr-i-Shîrîn; it exists at Ukhaiḍir, but it is there completely re-orientalized. The ṭarmah-lîwâns bear a faint resemblance to the Hellenistic motive; in the lîwâns of courts C and G the likeness fades; in the south façade of the central court it is gone altogether and the side doors are no more necessary to the scheme than they were at Ctesiphon. In place of the triumphal arch façade we have the lîwân façade which dominates the architecture of Persia and of India. The central hall is raised above the flanking vaults and this raised vault implies a lifting of the central part of the façade. Dr. Reuther conjectures that a rectangular frame was given to the central arch, and since that is the stereotyped form of the lîwân façade of a later date, I have adopted his view. Moreover, some such device must have been used at Hatra. There, too, the vault of the lîwân rises above the flanking vaults, and Dr. Andrae, in his reconstruction of the façade, has given it a rectangular frame (Fig. 31). But at Hatra the arched opening of the lîwân was considerably lower than its vault and need not necessarily have broken the horizontal lines of the façade. It must, however, be borne in mind that something very like the later lîwân façade must have existed at Hatra, as it existed at Ukhaiḍir. Flandin and Coste, in their restorations of Sarvistân (Voyage en Perse, Plate 29), give a true lîwân façade to the principal entrance and to the side lîwân, and indeed their section indicates the vault of the side lîwân as springing so high that the façade must have been raised{138} to correspond. The lîwân arch has been given in these restorations the same rectangular frame which has been conjectured to have existed at Hatra and at Ukhaiḍir. At Ukhaiḍir, as at Ctesiphon, the wings are decorated by blind arcades, two of which, for the sake of convenience, are broken by doors. The arcades are shallower than those which are carried round the other three sides of the court; the capitals of the columns, as Dr. Reuther has pointed out, must have been different from the other engaged capitals, since the shafts swell outwards towards the top;[353] and the calottes which cover the niches are adorned with Hazârbâf, the interwoven motive common in oriental woodwork.[354] The great arch of the lîwân is carried by pairs of engaged columns set in antis, and this is the arrangement which was usually adopted in the later lîwân façades. We have seen it in the tombs of Madâin Ṣâliḥ and of Petra. On either side there is a narrow arched niche which has the appearance of buttressing the central arch; beyond these follow three arched niches of wider span, the innermost on either side being slightly narrower than the others. The engaged column of the lîwân arch is joined to the quarter-column of the small flanking niche by a straight wall-face, on the same principle as that which is employed in the central supports of the ṭarmah-lîwâns of courts B and H. The result is in plan a double column, similar to the double columns which carry the arcades of every early Christian church in central Anatolia.[355] I saw one of these double columns in a graveyard at Raqqah, where it is used as a tomb-stone. They are foreshadowed in the Nabataean façade at Si’ in the Ḥaurân.[356]

Fig. 31. Hatra, façade of palace reconstructed.


(From Hatra, by kind permission of the Deutsche Orient-Gesellschaft.)

The triple-arched façade must have been popular in the early Abbâsid period. It is found in the Bait al-Khalîfah at Sâmarrâ, where it is as pronounced as it was at Hatra. It was present in the two main façades of the audience chambers at Balkuwârâ.[357] But the single arched motive was to play{139} an equally important part in Mohammadan architecture, a part of which an early (perhaps the earliest) indication is to be seen at Ukhaiḍir. On the north wall of the great hall the central feature is the great arch with its shallow calotte. Within this frame is set the smaller arched opening of the door. Here, as Fergusson has observed,[358] is the ‘perfectly satisfactory solution of a problem which has exercised the ingenuity of architects of all ages’. It has always been manifest ‘that to give a large building a door at all in proportion to its dimensions was, to say the least of it, very inconvenient. Men are only six feet high and they do not want portals through which elephants might march. It was left, however, for the Saracenic architects completely to get over the difficulty. They placed their portals—one or three, or five, of moderate dimensions—at the back of a semi-dome. This last feature thus became the porch or portico, and its dimensions became those of the portal, wholly irrespective of the size of the opening. No one, for instance, looking at this gateway (south gate of Akbar’s mosque at Fatehpur Sîkrî) can mistake that it is a doorway, and that only, and no one thinks of the size of the openings that are provided at its base. The semi-dome is the modulus of the design, and its scale that by which the imagination measures its magnificence’. The same principle rules over two of the smaller doorways of Ukhaiḍir, the doors at the outer ends of the corridor 5-6.

The arched niche, either blind or pierced with doors or windows, is used at Ukhaiḍir to complete the decoration of the north wall of the great hall. Blind niches with a rectangular frame stand on either side of the central calotte, while above it the three niches are pierced by windows. Here and in all other examples at Ukhaiḍir, the opening, simulated or real, is covered by a shallow calotte. In the central court the single niche at the south-east corner is potentially a doorway; it is covered by a fluted semi-dome (compare the doubtful example at Mshattâ, above, p. 118). In the same manner the niches on the two side walls of room 32 are potentially windows; at Karkh, where they are similarly placed, but in outer walls, they are actually pierced by window openings. The single niche motive is found in room 140, where, however, the niche is unusually shallow. That the form of such niches as those of the great hall and of rooms 31 and 32 is Hellenistic is not open to a moment’s doubt. Out of the countless classical parallels I may cite the aedicula upon the east façade of the basilica at Shaqqah.[359] The archivolt at Shaqqah is carried on colonnettes, the semi-dome is fluted, and the addition of a pediment, in the true Graeco-Roman style of Syria, involves the doubling of the colonnettes. The purely decorative character of the aedicula may well be compared with that of the niches on either side of the central calotte in the great hall. Dr. Reuther draws an apt parallel between the placing of the niches in the great hall and the{140} placing of the niches in the building on the citadel at ‘Ammân,[360] and he calls attention to the fact that at ‘Ammân the colonnettes have neither capital nor bases and that the archivolts of one of the pairs of niches in room 32 are decorated with a zigzag ornament analogous to that of ‘Ammân. All these points help to prove the Mohammadan origin of the building on the citadel. It is not, however, strictly correct to describe the colonnettes either at ‘Ammân or at Ukhaiḍir as being without capitals. They are all provided with a small impost block. In room 32 a strikingly oriental motive is introduced into the niches on the side walls. The spear-shaped ornament in the centre of each niche was familiar to Assyrian decoration. Whether it had, or had not, its origin in the spear-shaped loopholes of fortified walls,[361] it is used for purely ornamental purposes in Assyrian decorative crenellations at Assur and in Parthian crenellations at Warka.[362] It was common in a similar position during the Achaemenid period,[363] and was carried on into later Mohammadan work, with the difference that the whole niche was given a spear-shaped or trifoliate heading[364] (Plate 75, Fig. 1). Nor are the recessed rosettes of the stucco decoration at Ukhaiḍir connected with Hellenistic types; they have affinities with the rosette motives of Assyrian fresco and enamelled brick,[365] but the floret shape of the Assyrian rosette disappears with the perspective treatment. In a cruder form the rosette of Ukhaiḍir is used at Mâr Ṭahmâsgerd. Here it is not recessed but cut deeply into the wall, and its effect is produced solely by the resultant shadow. The crenellated motive of the stucco work in the mosque has its counterpart in the ornamental crenellations of Assyria and Persia, but it is used at Ukhaiḍir with singular freedom. The crenellations are combined so as to form recessed rhomboids; they are even applied to the archivolt in the two doorways of corridors 5 and 6.[366] Save for the rosettes, all the stucco decoration at Ukhaiḍir is of an architectural character—that is to say that it imitates plastic construction such as crenellations, arched and columned openings; or else it is an elaboration of structural details, such as the squinch or the transverse arch. Sometimes it is actually called into being by structural processes, as in the horizontal ridges of the vaults in the mosque and room 31. The motives placed on the summits of the vaults in rooms 31 and 32 are reminiscent of coffering, and I have little doubt that their origin is to be sought in the Hellenistic scheme of ceiling decoration. It is, however, interesting to note that Western forms are more obscured at Ukhaiḍir than in buildings of a later Mohammadan period. The stucco coffers of the vaults at Sâmarrâ stand very close to classical types,[367] whereas the coffers at Ukhaiḍir are employed in a manner foreign to classical conceptions. This must be largely due to the fact that in the great palaces{141} at Sâmarrâ Western artificers were at work, while in the comparatively unimportant desert retreat oriental workmen and oriental ideas had the upper hand, yet I would suggest that the differences between Ukhaiḍir and Sâmarrâ indicate a considerable difference in date. In the ninth century Western influence was stronger in Mesopotamia than it was in the preceding age, when the arts were still held closely in the thrall of Sasanian tradition. Consequently we find at Sâmarrâ capitals inspired by the Corinthian acanthus capital, and among the wall decorations the Hellenistic vine motive plays a conspicuous part.[368] We have yet to learn that the flowing vine, so essential to Coptic decoration and to that of the Hellenistic coast-lands, was a feature of Sasanian architectural ornament. It occurs in monuments of the Umayyad period which were directly under the sway of Hellenistic Syria, such as Mshattâ and the miḥrâb of the Khâṣakî Djâmi’,[369] but except for sporadic examples in Parthian architecture, where the Hellenizing tendencies of the decorations are indisputable,[370] its systematic use on Babylonian soil begins (so far as the evidence goes) at Sâmarrâ in the middle of the ninth century, and there it was the artificers, not the work of their hands, which were imported. I do not deny that in comparison with the Sâmarrâ palaces Ukhaiḍir is a crude product of local workmanship, wherein it is natural to expect a closer adherence to local tradition; but it is important to point out how close that adherence is, and how well it corresponds with recorded examples of Mesopotamian and Persian decoration earlier than the Umayyads, whereas the decoration in the same regions, but at a later period, diverges widely from the older schemes. The divergence is due, in my estimation, to the diffusion of Western influence when the western and the eastern provinces of the khalifate were drawn together under the Abbâsids and all quarters of their empire contributed to their constructions. In the ninth century we find Mesopotamian architecture in Cairo and Coptic decoration in Sâmarrâ. I regard the oriental character of Ukhaiḍir as indicative not only of its isolated position, beyond the direct course of international civilization and arts, but also as typical of the primitive age during which it arose.

Materials for the study of early Mohammadan decoration are still so scanty that the difficulty of assigning exact dates to such as we possess is great. It is enhanced by the fact that the workmen of the first khalifs must have been of non-Arab extraction. The Arab invaders, pouring in out of deserts which were innocent of monumental constructions, had nothing to contribute to architecture or to the arts. So far as we know them in the pre-Mohammadan period{142} they had not created an art of their own. Along the trade-routes, the rock-cut tombs of Madâin Ṣâliḥ and of Petra exhibit, without salient divergence, the artistic principles of Hellenized Egypt and Hellenized Syria, while concerning the older Arab civilizations in the southern parts of the peninsula we have as yet no evidence save that of inscriptions. The Mohammadan conquerors employed the workmen of their predecessors, and according to the nature of their own traditions, these workmen might raise a palace with a basilical hall, like Mshattâ, or a palace entirely composed of lîwân groups like Ukhaiḍir; they might cover their walls with Hellenistic fresco, as at Qṣair ‘Amrah, or with ornament derived mainly from the ancient East, as again at Ukhaiḍir. The variations of this period were due to individual idiosyncrasy, or rather to individual training; there is no reason why they should be taken to denote a chronological distinction. A hundred and fifty years later this heterogeneous material had been welded together and the Islâmic Weltkunst was beginning to take shape. Sâmarrâ, in the eastern part of the Abbâsid dominions, the mosque of Ibn Ṭulûn in the western part, re-echo one another; artistic conceptions are not only interchangeable, they are the same; and though, all through the history of the arts of Islâm, local peculiarities, based on local conditions and traditions, continue to differentiate one region from another, it is not the differences but the similarities which are the most striking. They go hand in hand with the singular solidarity of Islâm, with the uninterrupted intercourse between remote parts of the Mohammadan world, with the ceaseless passage of travellers and scholars from the western limits of Europe on the one hand to the eastern limits of Asia on the other. This intercourse was quickened, as the Prophet had intended that it should be, by the institution of the annual pilgrimage. The mosque of Ibn Ṭulûn is not an isolated example of a direct borrowing by one region from another. The gates of al-Mehdiyyeh in Tunis were copied from the gates of Raqqah.[371] It is impossible to explain the curious niching of the walls of the eleventh-century palace of the Menâr, to take another Tunisian example, except by a comparison with the wall-surface decoration of Babylonia and Assyria.[372] I am fully aware that a long period of time had elapsed between the fall of the Mesopotamian empires and the erection of the Menâr, and that it would be vain to attempt to establish a continuous sequence of buildings between them, but I would point out that the Parthians, when they reconstructed the Babylonian palace at Tellôh, reproduced the Babylonian wall decoration so closely that de Sarzec was persuaded that the ruins of their palace belonged to the Chaldaean age.[373]

Turn again to the fortress of the Bani Hammâd and you will find the cusp{143} motive of Syria and Mesopotamia repeated on its arches;[374] and at the palace of Medînat al-Zahrâ in Spain (end of the tenth century) we have the plaster decorations of the walls of Sâmarrâ carried out in a style which betrays their Coptic and classical parentage,[375] though they are not devoid of characteristic motives, such as the palmette tree and the continuous pattern, which are rooted in oriental tradition.[376] In the same ruins the workers in stone have borrowed alike from Byzantium and from Mesopotamia; some of the continuous geometrical patterns are closely allied to those of Sâmarrâ,[377] while the free use of the crenellated motive may be compared with its use at Ukhaiḍir (Plate 87). The earliest Mesopotamian examples of such patterns as these are Parthian (Plate 86, Fig. 1).

One of the structural features of Ukhaiḍir has a value which is not only structural but also decorative. I allude to the use of masonry tubes between parallel barrel vaults. Obviously it is a scheme which was born of the systematic use of the vault. It is to be found at Hatra, where it appears in some of the tombs.[378] The same system is present at Firûzâbâd, where there was a masonry tube between the barrel vaults of the side chambers of the entrance lîwân and the domed chamber.[379] In later Mohammadan architecture I have found masonry tubes at Khân al-Khernîna above Tekrît.[380] A second device for the lightening of the wall mass between parallel barrel vaults is employed at Ukhaiḍir in the east annex and in the buildings to the north of the palace. It takes the form of a number of narrow tubes. I saw it also in a fourteenth-century khân at the foot of the Djebel Sindjâr (Plate 88, Fig. 1), a khân which is famous for the dragon reliefs on its doorway,[381] and in a mosque of the early fifteenth century at Ḥasan Kaif (Plate 88, Fig. 2). The decorative importance of the first scheme, the large single tube, lies in the effect which its opening produces on the façade. This can be observed in the courts on the ground floor at Ukhaiḍir, as well as in the court on the upper story of the gate-house. The arched openings of the tubes between the arched doors of the lîwân and its side chambers form an essential part of the façade, and they are retained when vault and tube are alike absent. The existence of tube openings in the façades round the central court, the ṣaḥn, of the mosque of Ibn Ṭulûn is sufficient to show that the Egyptian mosque was copied from a vaulted prototype (Plate 89, Fig. 1). I do not doubt that it was modelled on the vaulted buildings {144}of Mesopotamia, though vault and tube are absent from its structure. The great mosque at Sâmarrâ was not vaulted; unfortunately the data are insufficient to determine the scheme of the façades of its ṣaḥn. Nor was the mosque of Abû Dulaf vaulted; it had a flat roof carried on arches, like Ibn Ṭulûn; but the tube openings appear in the form of niches on the façades of the ṣaḥn (Plate 89, Fig. 2). As at Ibn Ṭulûn, they have become purely decorative. I do not know whether there are tubes between the vaults of the Bait al-Khalîfah at Sâmarrâ, but the openings are simulated upon the façade by shallow blind niches. The same system holds good in the ṣaḥn façades of the Azhar at Cairo, a building which has no other connexion with Mesopotamian architecture than this traditional use of a decorative motive, the true significance of which had long been forgotten.{145}

CHAPTER VI

THE MOSQUE

The mosque of Ukhaiḍir has an exceptional interest. It is one of the earliest mosques known to us which retains its original form and decoration, and its plan may be regarded as one of the first examples which we possess of the systematized architectural scheme which, in slightly varying types, ruled the Mohammadan world until the fourteenth century of our era. It was a scheme which was derived from the inaugural sanctuary of the Faith, the Prophet’s house at Medînah.

Recent research has made it abundantly clear that Muḥammad, when he constructed his new dwelling after the flight to Medînah in A.D. 622, had no other object in view than the purely domestic. It was not a mosque which he set himself to build, but a living-house, and he laid it out in the fashion which was customary in his day. It may indeed be doubted whether he contemplated the need of a temple of any kind.[382] In the view of the founder of Islâm there were but two sanctuaries in the world, the mosque of the Ka’bah at Mekkah and the mosque of the Aqṣâ at Jerusalem, the former being at that period an open space, bounded only by the buildings of the city, with the house of Abraham in its midst, the latter an area on the edge (aqṣâ = extremity) of the sacred enclosure at Jerusalem, an area actually occupied by the ruins of Justinian’s Church of the Virgin, which had been destroyed by the Persians in A.D. 614. For the rest God could be worshipped in every place, and the nomads of Arabia could perform their religious exercises as satisfactorily in the open wilderness as in any other spot. But, as has been well pointed out,[383] even in the Days of Ignorance, the madjlis, the place of assembly—that is to say the courtyard of the Arab house—was itself invested with a kind of sanctity; the meetings held in it were conducted with gravity and order, and it may also have been used for cult purposes. To it the terms ‘madjlis’ and ‘masdjid’ were applied impartially, and it was not until after the advent of the Prophet that the word ‘masdjid’ was narrowed down so as to signify only such places of assembly as were connected with religious observances.[384] These places were not, however, used exclusively for cult purposes. In Muḥammad’s masdjid at Medînah, the court of his house was necessarily the centre of his domestic life; in it he lived and entertained his wives and took counsel with his friends, and, since he was the head of his community, it{146} was the meeting-place of the Faithful, whether for religious or for secular needs. The homeless among his adherents found a lodging in it, and the wounded were tended there. Nor did the masdjid al-djamâ’ah, the mosque of assembly, lose its secular character until more than a hundred years had passed after the Hidjrah. For the mosque, as Wellhausen has put it (and the phrase cannot be bettered), was the forum of primitive Islâm. When the conquerors founded their camp-cities, the misrs of Mesopotamia and of Egypt, their first step was to mark out the area of the mosque, to provide, that is to say, a central place of assembly for the people. To it the khalif repaired on his accession and the governor on his appointment, and the discourses which they pronounced on these occasions were political rather than religious.[385] Thither, too, they summoned the people when questions of importance were to be discussed, or weighty tidings to be communicated.[386]

Muḥammad’s house at Medînah, which was to play so influential a part in the architectural history of Islâm, consisted of a courtyard 100 ells square (circa 60 metres) enclosed by a wall, the lower part of which was stone and the upper of sun-dried brick. The qiblah, the direction in which the worshippers turned in prayer, was towards Jerusalem, i.e. it lay to the north; there was, however, no niche to mark it, and the word ‘qiblah’ did not carry with it any architectural connotation, but merely the sense of a moral order. That the congregation might be protected from the burning sun, this side of the court was covered by a roof of woven palm-leaves, supported on columns made of palm-trunks. The roof was so low that a man could touch it with his hand. On the east side, two rooms, for the two wives, Saudâ and ‘A’ishah, were placed outside the wall at its southern extremity. In the opposite corner (the south-west) a primitive lodging was provided for the poorest of those who had followed the Prophet in his flight. It was covered by a roof (ṣuffah) similar to that of the qiblah, and those who inhabited it were known as the Aṣḥâb al-Ṣuffah, the people of the portico. There were three doors into the courtyard. That which lay to the south was the principal entrance; a subsidiary door was placed on the west side, and on the east side was the door used by the Prophet. At a subsequent date, owing to quarrels with the Jews, the qiblah was turned away from Jerusalem and placed in the direction of Mekkah. This necessitated the closing of the south door and the opening of a door in the north wall. Moreover, the Aṣḥâb al-Ṣuffah were moved to the north-east angle of the court and their roof was re-erected there.[387] In addressing those who were present, the Prophet was accustomed to lean against the trunk of a palm-tree, but in the year seven or eight of the Hidjrah he caused a wooden minbar to be erected. It consisted{147} of two steps and a seat. On or before it he conducted the prayers.[388] The khalif ‘Umar enlarged the mosque at Medînah, but the new building scarcely exceeded the old in architectural pretension. The wall was of sun-dried brick, the columns of palm-trunks (or according to one account of sun-dried brick also) supporting a palm-leaf roof. It is not clear whether this roof was carried all round the court or was confined to the south side. The court, which in Muḥammad’s day was without any kind of pavement, was given by ‘Umar a floor of pebbles beaten into the ground.[389] Further improvements were carried out by ‘Uthmân, but it was not until the time of the Umayyad khalif Walîd ibn ‘Abd al-Malik (A.D. 705-715) that the old simplicity of construction was abandoned. In the year A.H. 87 or 88 he pulled down the mosque and rebuilt it. The workmen whom he employed were Greeks and Copts from Damascus and Egypt.[390] The walls and columns of the new edifice were of cut stone; gold, silver, and mosaic were used to adorn it; the miḥrâb and the maqṣûrah were of teak.[391] The maqṣûrah, the enclosure reserved for the khalif, had already, according to Balâdhuri, been introduced into the mosque by Marwân (A.D. 683-685), but his maqṣûrah was of stone. The miḥrâb was a new feature: ‘the first who introduced the novelty of a concave miḥrâb was ‘Umar ibn ‘Abd al-Azîz when he restored the mosque of the Prophet’ (by order of the khalif Walîd).[392] Both maqṣûrah and miḥrâb were borrowed from Christian usage; the maqṣûrah was copied from the Imperial enclosed dais of Byzantine churches, the miḥrâb from the Christian apse—it was ‘min shân al-kanâ’is’, an attribute of churches, and was adopted with some reluctance by Islâm.[393] Concerning the Medînah mosque Professor Becker quotes an exceedingly suggestive anecdote. Walîd, boasting of his construction to a son of the khalif ‘Uthmân, who had been the last before him to restore the mosque, said: ‘How far our building excels yours.’ ‘True,’ replied his interlocutor, ‘we built after the manner of mosques, but you after the manner of Christian churches.’

Elsewhere the development followed similar lines. The Ḥaram of Mekkah stands apart; its arrangement could never be the same as that of ordinary mosques. Yet it is interesting to observe that it was at first innocent of any building except the Ka’bah. The khalif ‘Umar enlarged the area by pulling down adjacent houses, and enclosed it with a wall lower than a man’s stature; ‘Uthmân is said to have been the first to furnish it with riwâqs. Again here,{148} as at Medînah, it was Walîd who first beautified the mosque with marble columns and with mosaic.[394]

The accounts of the foundation of the misrs of Baṣrah, Kûfah, and Fusṭâṭ throw a vivid light upon the requirements, spiritual and architectural, of primitive Islâm. It is recorded that the khalif ‘Umar gave orders to the respective governors of the three places, Abû Mûsâ, Sa’d ibn abi Waqqâs, and ‘Amr ibn al-’Âṣ, that a masdjid al-djamâ’ah should be provided, while each tribe was to have a small mosque for its particular use. At Baṣrah the mosque was marked out (ikhtaṭṭa) but not built, and Balâdhuri is careful to add that the people prayed in it without buildings.[395] It was subsequently enclosed with a fence made of reeds, and this fence Abû Mûsâ replaced by a wall of sun-dried brick and roofed it (presumably the qiblah side) with reeds. Ziyâd ibn Abîhi, Mu’âwiyah’s powerful viceroy, enlarged it considerably. His building was of burnt brick and gypsum mortar, and he roofed it with teak.[396] Five columns (the word used is sawâri = masts, the columns were therefore presumably of wood) supported the roof of the qiblah wall; the side walls were of stone, and columns are not mentioned there. The columns were probably of teak like the roof; some of them had four ’uqûd = ties, which I take to mean the metal collars which were used to fasten together the different sections of wooden or marble columns. Ziyâd was the first to introduce a maqṣûrah, and he is said to have built a minaret of stone. Al-Hadjdjâdj or his son put in columns made of stone from the mountains of Ahwâz.[397] At Kûfah the mosque was marked out on a high spot before any part of the city had been built. On three sides the ṣaḥn was bounded by a ditch; on the fourth, that which faced towards Mekkah (the front side as it is called by the Arab writers), there was a covering roof (ẓullah) which had neither side nor end walls; it was 200 ells long, and was supported by columns of marble which were taken from churches built by Chosroës. The ceiling was like the ceiling of Greek churches.[398] ‘And such’, says Ṭabari, ‘was the mosque (at that time), with the exception of the mosque at Mekkah which they would not imitate.’

The first mosque at Kûfah therefore consisted of a great ṣaḥn surrounded on three sides by a ditch and on the fourth, the qiblah side, by an open colonnade carrying a roof, and the arrangement was exactly the same as that of Muḥammad’s house, except that the qiblah wall and the palm-trunk columns were replaced by marble columns. Balâdhuri gives a tradition that the mosque at Kûfah was built out of part of the materials taken from the palaces of al-Mundhir at Ḥîrah,[399] and Ṭabari says that the castle at Kûfah was of burnt brick taken from Persian buildings at Ḥîrah. Ziyâd rebuilt the mosque. He summoned, according{149} to Ṭabari,[400] Persian builders, and expounded to them the plan of the mosque and its extent, and that which he desired regarding the length of its roof, saying that he wished to erect an edifice which should not have its parallel. To which a man, who had been one of the builders of Chosroës, replied that could only be accomplished by using columns from the Jebel Ahwâz which should be carved and polished and filled with lead and iron clamps (safâfîd = skewers). The ceiling should be 30 ells high (circa 17 metres!), and it should be roofed. The mosque should also have side and end walls. This scheme was adopted by Ziyâd. Balâdhuri mentions that he placed a maqṣûrah in this mosque also, and that both at Baṣrah and at Kûfah he strewed pebbles on the ṣaḥn to prevent the people from getting dusty.[401]

At Baṣrah and at Kûfah the ṣaḥn was the principal feature of the mosque, as indeed it had been at Medînah; this was not the case at Fusṭâṭ. The first Egyptian mosque was built by ‘Amr ibn al-’Âṣ in the year A.D. 642. It stood in the midst of vineyards and consisted merely of a covered place, 50 x 30 cubits in extent (28·92 x 17·34 metres), enclosed in a brick wall.[402] The people assembled in the open space which surrounded it. The roof, which was very low, must have been supported on columns, though these are not mentioned. The brick walls were unplastered, and the floor was strewn with pebbles. ‘Amr set up within it a wooden minbar, but this was resented by ‘Umar, and it was removed. ‘Is it not enough’, wrote the khalif, ‘that thou shouldst stand while the people sit at thy feet?’ This episode is of the highest significance in the history of the minbar. It is clear that it was regarded at that time as a throne rather than as a pulpit, and as such unsuited to any but the khalif. It was not until the close of the Umayyad period that the minbar lost its secular significance and became a part of the ritual furnishing of the mosque. With this change it is probable that its form changed also, and instead of the two steps and a seat of the Prophet’s minbar, the high pulpit of the modern mosque came into use. That this pulpit was copied from the pulpits of Christian churches is not improbable. The minbar which was set up in the time of ‘Abd al-Azîz ibn Marwân (A.D. 685-705) in the mosque of ‘Amr is said to have been taken from a Christian church.[403] Neither was there in ‘Amr’s mosque any miḥrâb to mark the qiblah; it was not until the third enlargement of the mosque in A.D. 710 that the qiblah wall was given a miḥrâb. It is further recorded that the orientation adopted by ‘Amr was imperfect, so that the worshippers were obliged to stand askew that they might face truly towards Mekkah while they prayed. The mosque was provided with six doors, two in each wall, with the exception of the qiblah wall, which was left unbroken. The first enlargement of the building{150} took place in A.D. 673, on which occasion an open space, or court, was added to the north. In the second enlargement (A.D. 698-699) the mosque was entirely rebuilt and the ṣaḥn was included within its walls.

It appears from these accounts that by the middle of the Umayyad period the development from courtyard-house to sanctuary was complete. Its course had been simple and obvious. All the essentials of the stereotyped form were present at Medînah; the differences were differences in size and splendour, not in kind. The domestic court had become the ṣaḥn; the palm-leaf sheltering roofs against the qiblah wall and in one angle of the court had solidified into the riwâqs; the palm-trunk columns had been replaced by columns or piers of brick (possibly by brick columns at Medînah itself as early as the time of ‘Umar), or, where the spoils of Sasanian and Byzantine lay ready to hand, as at Kûfah or Fusṭâṭ, by columns of marble. The qiblah had been given a visible shape in the miḥrâb niche, and by the close of the Umayyad period the minbar had wholly lost its temporal attributes and had taken its place as part of the necessary furniture of the mosque, though it probably still continued to be a movable wooden structure. Such a sanctuary, but reduced to the modest dimensions of a private chapel (if I may be permitted the phrase), is the mosque of Ukhaiḍir. The fact that its orientation is inexact—Mekkah lies to the south-east of Ukhaiḍir, whereas the direction indicated by the miḥrâb is almost due south—would not have been regarded as of much importance. As has been mentioned, ‘Amr’s mosque had the same defect, and in this respect Manṣûr’s mosque at Baghdâd offers a yet more significant parallel. Ṭabari observes that the mosque in the round city was not properly oriented because it was built to fit the qaṣr, whereas at Ruṣâfah the orientation was right, because the mosque was built before the qaṣr.[404] Precisely the same explanation applies to the Ukhaiḍir mosque. The palace builders were accustomed to square their plans to the points of the compass, and a miḥrâb in the south wall was the closest approximation which could be obtained in an edifice which lay north and south. The mosque was so small that there was no difficulty in applying to it the system of vaulting which reigns over the whole palace, but the massive Mesopotamian vault was unsuited to free-standing columns and the roof of the riwâqs has fallen. Outside Ukhaiḍir we have no extant example of a vaulted mosque on this plan. We are specifically told that the roof of the mosque at Baṣrah was first of reeds and then of teak; the nature of the roof of the ẓullah at Kûfah is open to doubt. Its ceiling was like the ceiling of Greek churches, a description which does not exclude the possibility of a vault. That the miḥrâb at Ukhaiḍir received no decoration need cause no surprise. Far from being regarded as having any special sanctity, the miḥrâb is defined as the least holy part of the mosque and the Imâm is earnestly warned not to take up his station within it—doubtless, as Professor Becker observes,{151} in order to emphasize the fact that though the miḥrâb was copied from the Christian apse, it shared none of its attributes.[405] Of the minbar it is improbable that any vestige would be found under the ruin heaps at Ukhaiḍir. It was most likely of wood, and has long been destroyed. Nor is it necessary to suppose that the ṣaḥn contained a water-basin for ablutions. No such feature is mentioned in the account of the early mosques, save that at a later date Maqrîzi records the presence in the mosque of ‘Amr of an ancient well appertaining to the gardens in which the mosque was built.[406]

It will be convenient to carry this survey a little further in order to include the mosques of Sâmarrâ, which are not far removed, either chronologically or geographically, from the mosque of Ukhaiḍir, but in so doing the early Syrian and North African mosques must be taken into account. The plan of the first mosques in Syria was partly determined by the fact that they were erected on the site of Christian churches. They differ, therefore, from the normal construction of the Medînah type. To the khalif ‘Umar is ascribed the first Mohammadan building upon the site which is now occupied by the Aqṣâ, but it seems probable that his edifice was nothing but a makeshift reparation of the ruined church of the Virgin.[407] Probably the Umayyad khalif ‘Abd al-Malik rebuilt the mosque in the year A.D. 691, but in A.D. 746 it was destroyed by an earthquake. Manṣûr rebuilt it, and it was again destroyed by earthquake. It was restored by al-Mahdi about A.D. 780, but the plan was considerably altered. Even the mosque described by Muqaddasi in A.D. 985 is materially different from the building which exists to-day. I think it exceedingly doubtful whether the mosque retained at any time after the temporary construction of ‘Umar the plan of Justinian’s church, since the necessary alteration in the orientation must have introduced a wide diversity; but the design of the many-aisled church and the presence of a large quantity of columns and capitals may well have influenced the mosque builders. In any case the position of the Aqṣâ would have led to an abnormal plan, inasmuch as the great court of the ḥaram enclosure, in which it stood, rendered it unnecessary to give a separate court, or ṣaḥn, to the mosque.

The Umayyad mosque at Damascus is also abnormal, but its plan seems to have been far more directly determined than in the Aqṣâ by the building which preceded it on the same site. The nave and aisles of the church of St. John must have dictated the scheme of its arcades, and its distinguishing feature, the wide central aisle running north and south, can only be explained by a similar disposition, either transept or narthex, in the church.[408] It is conceivable that the temple porticoes may have given the impulse to the full development of the riwâqs{152} about the ṣaḥn, just as the porticoes of such buildings as the Serapeion, the agora, and the gymnasium at Alexandria, or of the stoas and agoras which adorned the Hellenistic cities of the Roman empire, may have had their share in suggesting an extension of the colonnades of the mosque, and indeed in Mesopotamia, where these models were absent, there is no reason for supposing that the riwâqs were carried in the first constructions all round the ṣaḥn. But this extension was in itself a not unnatural growth out of the Medînah plan, and in its further history, the courtyard-mosque with its deep ḥaram and its narrow flanking riwâqs pursued its own line of development, based upon its own needs. In this development no doubt the renowned Umayyad mosque at Damascus played a part. In Syria both the Aqṣâ and the mosque at Ba’albek show the wide central aisle running north and south.[409] It is typical of the Tunisian mosques, but here it is almost always found in conjunction with a wide transept running parallel with the qiblah wall; a dome covers the miḥrâb where the wide aisle and the transept meet, and a second dome stands at the opposite end of the central aisle. This -shaped scheme can be seen at Qairawân, in the Zaitûnah at Tunis, at Tilimsân, and elsewhere. The mosque of Qairawân was founded in A.D. 671, but entirely rebuilt, first in 703 and again in 837.[410] The Zaitûnah was founded in A.D. 732. The great mosque at Cordova, founded at the end of the eighth century, had the same disposition.[411] The Tilimsân mosques are considerably later in date and are built with piers, with the exception of Sidi al-Ḥalwi, where both piers and columns are used.[412]

With the exception of the late Tilimsân group, the wooden roof of all the above-mentioned mosques, both in Syria and in North Africa, was supported by columns and arches, the columns having invariably been taken from pre-Mohammadan buildings. Probably the earliest extant example of a mosque in which the arches rested on piers is at Ḥarrân, but the building is unfortunately so much ruined that its exact disposition cannot be determined without excavation. The plan, so far as it is apparent, has been given by Dr. Preusser.[413] The central arch in the north façade of the ḥaram alone remains standing. Its width would seem to indicate that here, as at Damascus, the central aisle was broader than the rest. On either side of it there was an arch of much narrower span.[414] None of the other piers can be placed with certainty. There are some fragments of columns both in the ḥaram and in the east riwâq. An inscription on the east gate gives the name of Ṣalâḥ al-Dîn,[415] but I think it certain that it alludes not to the{153} foundation, but to the restoration of the mosque. The cusped ornament round the relieving arch over the door corresponds with the cusped motive on the façade of the Mayâfârqîn mosque, and the gateway at Ḥarrân has every appearance of being the work of Ṣalâḥ al-Dîn. But the engaged capitals of the interior responds in the east wall, and the wreathed acanthus capital under the central arch of the ḥaram (one capital only is preserved) must be dated several centuries earlier. I do not doubt that they were executed for the places which they occupy, and I agree with Dr. Herzfeld in assigning them to the Umayyad period.[416] I observed, however, among the ruins in the interior of the mosque many fragments of carved ornament which cannot be earlier than the time of Ṣalâḥ al-Dîn, and I came to the conclusion that until the building has received further study it is impossible to make a more precise statement concerning it than that it seems to be a structure of which parts at least belong to the early eighth century, that it had a wide central aisle and four gable roofs supported on masonry piers, or possibly upon piers and columns.

At Raqqah, according to Balâdhuri,[417] a mosque was built by Sa’îd ibn ‘Âmir ibn Ḥudhaim not long after the conquest of the country by the Mohammadans; and Muqaddasi, as I have already had occasion to mention,[418] speaks of one of the Raqqah mosques as built upon columns. My impression upon visiting the site in 1909 was that the earliest Mohammadan city must have occupied the ground where, among ruin heaps, rises a rectangular minaret. In connexion with this minaret I conjectured that the first mosque had stood (though possibly the minaret was not contemporary with the earliest building), and since the town to which it belonged was the successor of Nicephoricum-Callinicum, and there were no doubt plenty of columns at hand for the mosque, I conclude that it was Sa’îd ibn ‘Âmir’s edifice which was described by Muqaddasi, and that it is to be classed with the normal type of courtyard-mosque built on classical sites, i.e. it had a riwâq or riwâqs composed of columns. The khalif Manṣûr founded in the year A.H. 155 a second town, the ruins of which are still to be seen to the west of the earlier settlement. Upon this site there were no ancient remains,[419] that is to say that Manṣûr had not Roman or Byzantine materials at his disposal. Now within the walls of Manṣûr’s city stand the ruins of a mosque built upon piers (Fig. 32). According to an inscription over the central arch of the ḥaram arcade it was repaired in A.D. 1166 by the Atâbek Nûr al-Dîn.[420] It was surrounded by a wall built of sun-dried brick, which was strengthened by rounded towers. The ḥaram was composed of three rows of oblong brick piers, of which the northernmost alone is standing; the riwâqs on the remaining three sides were of two rows of columns which can be traced only by the holes{154} in the ground whence the burnt bricks whereof they were built have been extracted. The central arch of the ḥaram is no wider than the arches on either side, but the niche in which it is set is carried up higher than the other niches, and M. van Berchem has suggested that it may have been surmounted by a gable, like the mosques at Damascus and Diyârbekr. It is possible that this was so, but both at Damascus and at Diyârbekr the central aisle is distinguished from the side aisles by its greater width. The round minaret in the ṣaḥn at Raqqah I believe to have been the work of Nûr al-Dîn. At Baghdâd, Manṣûr built a mosque of which we have nothing but the description. Its walls were of sun-dried brick and its columns of wood, each column being composed of two pieces, the ends bound together with sinews and glue and rings of iron, with the exception of five or six columns near the minaret, which were constructed of rounded pieces of wood.[421]

Fig. 32. Mosque at Raqqah.

Less than a hundred years later Mutawakkil (A.D. 847-861) built the mosque of Abû Dulaf, which is closely related in plan to Manṣûr’s mosque at Raqqah (Fig. 33).[422] There is the same enclosing wall of sun-dried brick garnished with{155}

Fig. 33. Mosque of Abû Dulaf.

rounded towers. The arcades are of burnt brick, but the central aisle of the ḥaram and the corresponding aisle of the north riwâq are more than a metre wider than the others (7·33 metres as against an average of 6·20 metres), and a transept 10·40 metres wide runs along the qiblah wall. Dr. Herzfeld informs me that he has by excavation ascertained the existence of a miḥrâb in the centre of the qiblah wall where I had placed a door. In one respect Abû Dulaf differs from all other mosques built with piers; the arcades of the south riwâq,{156} instead of lying parallel to the qiblah wall, are placed at right angles to it. I do not think that this variation is of great importance, for the outer and inner arcades (that is to say, the arcade on the ṣaḥn and the arcade next to the qiblah wall) are placed parallel to the qiblah wall, and it is only between these two that the ḥaram arcades run at right angles. The divergence from the normal scheme is not therefore so great as would at first appear. The mosque is surrounded by an outer enclosure, or ziyâdah[423], within which stands the spiral minaret, to the north of the centre of the north wall. The piers and arches of the riwâqs must undoubtedly have carried a flat wooden roof; nevertheless in the façades of the ṣaḥn each pier is adorned with the blind niche which I believe to be derived from the tubular system of Mesopotamian vaulting (Plate 89, Fig. 2). This decoration is a direct link between the unvaulted mosque of Abû Dulaf and the vaulted palace of Ukhaiḍir, and the fact that it appears again in the mosque of Ibn Ṭulûn is to my mind an indubitable proof of the essential exactitude of the tradition which connects Ibn Ṭulûn’s building with Mesopotamian architecture (Plate 89, Fig. 1). Other structural evidence is not wanting. The position of the minaret in the northern ziyâdah (to say nothing of its spiral form) corresponds with the position of the minarets both at Abû Dulaf and at Sâmarrâ, and even if we leave on one side the much-disputed question of the origin of the stucco ornament in the Cairo mosque, there is another feature of its decoration which points directly to Mesopotamia. The walls are crowned with a fantastic parapet, which probably goes back, in design at least, to the ninth century, and below the parapet, just above the level of the roof, runs a decorative band consisting of a recessed square pierced by a circular hole (Plate 91, Fig. 1). The same motive appears upon the walls of the Sâmarrâ mosque, with this difference, that it is placed below the level of the roof and not above it (Plate 91, Fig. 2). Instead of forming part of a light parapet, it forms part of the solid wall; with the result that the circle is not pierced through to the interior, but remains a saucer-shaped motive sunk within the square. I hazard the conjecture that the origin of this ornament is to be sought upon the walls of Assyrian fortifications, and that it represents the row of shields set within rectangular frames which are to be seen on innumerable Assyrian reliefs (Fig. 34).

In the great mosque at Sâmarrâ the wooden roof was borne directly (without the interposition of arches) by composite piers having bases 2·07 metres square.[424] These piers were composed of an octagonal core of brick with four slender marble columns placed one at each corner. The columns were sometimes round, sometimes octagonal, and averaged ·30 metre in diameter. Dr. Herzfeld calculates that each column consisted of three sections, placed one on top of the other and bound together with lead and with metal rings. They rested upon bell-shaped bases and carried bell-shaped capitals. Dr. Herzfeld points{157} out that the teak columns of Manṣûr’s mosque at Baghdad were similarly composed of sections joined together in the same manner. The ḥaram and the north riwâq at Sâmarrâ were given a wide central aisle.

Fig. 34. Assyrian fortress.


From L’Acropole de Suse, by kind permission of M. Dieulafoy.

The two small mosques of which Dr. Herzfeld has uncovered the foundations in the palace of Balkuwârâ present further variations. The larger was an oblong chamber of brick, 35 × 15 metres, the roof supported by two rows of eight columns which were probably either of wood or of marble. In the wall opposite the qiblah there were three doors. The smaller mosque was a chamber 10·35 × 7·76 metres, built of sun-dried brick, without columns. The miḥrâb was a deep rounded niche surmounted by a cyma moulding and flanked by engaged columns, and in the opposite wall were three doors. The miḥrâb of the larger mosque, which is totally destroyed, is probably to be reconstructed in the same style. Neither of these mosques has a ṣaḥn, the great palace enclosure in which they stand serving them as court.[425]

With the exception of the small palace chapels at Balkuwârâ, all the Mesopotamian{158} mosques were laid out on the same plan, but they differed in details of construction. When columns were available they were used in the riwâqs, as at Kûfah and in the first mosque at Raqqah. Elsewhere there were either wooden columns (Baṣrah, Baghdâd), or columns of masonry (Ukhaiḍir); or the riwâqs might be built with brick piers (Manṣûr’s mosque at Raqqah, Abû Dulaf) or, where stone was easy to obtain, with stone piers (Ḥarrân). At Sâmarrâ there is an isolated example of a composite pier. The roofs also differ from one another. At Ḥarrân there must have been wooden gable roofs over the riwâqs; at Ukhaiḍir they were vaulted; at Abû Dulaf the flat wooden roof rested on arches; at Sâmarrâ, and probably at Baghdâd, it was carried directly by the piers or columns. The wide central aisle was present at Ḥarrân, at Sâmarrâ, and at Abû Dulaf; at the latter there is also a side transept, producing the same -shaped plan that has been noticed in the Tunisian mosques. The data are too scanty to admit of any but the most general conclusion. We find divergent detail but no divergence in type, and the type in Mesopotamia, as in other parts of the Mohammadan world, was derived ultimately from the Prophet’s house at Medînah. It is in Mesopotamia that we have the earliest examples of the brick pier. We do not know how far Nûr al-Dîn’s reparations at Raqqah extended, nor what was the aspect of the façades of the ṣaḥn before his time, but at Abû Dulaf the original construction is preserved and the brick piers and arches of the façades bear in their spandrel niches a characteristic Mesopotamian trait. I do not doubt that the first Egyptian mosque built with brick piers, that of Ibn Ṭulûn, was inspired by the Mesopotamian scheme; the marks of relationship are too numerous not to be convincing. The engaged quarter-columns with which his piers are provided were no new thing. Engaged half-columns are universal at Ukhaiḍir, and the oblong piers with quarter-columns in Ibn Ṭulûn’s mosque are nothing but a translation into solid masonry, along the lines indicated at Ukhaiḍir, of the octagonal piers with angle colonnettes of Sâmarrâ. More than a hundred years later this building served as a model to al-Ḥâkim, and it is interesting to note that the Mesopotamian pier was applied at a still later date to a building which seems in other respects to have been a direct imitation of the Umayyad mosque at Damascus. The great mosque at Diyârbekr (I give here a plan which I made in 1911, Plate 90) is a patchwork of older materials re-used at different times. The oldest part of the existing structure is the west wing of the ḥaram, which is dated by an inscription in the year A.D. 1091,[426]

{159} but the west arcade of the ṣaḥn, though it is dated A.D. 1124, must preserve the memory of a plan which is older than that of the present mosque. It strikes the north wall of the ḥaram at an angle of 78°, and by reason of its oblique disposition it cuts off the north-west corner of the ṣaḥn, which is 6·24 metres shorter on the north side than it is on the south side. The east arcade of the ṣaḥn (dated A.D. 1163-1179) lies almost at right angles to the north wall of the ḥaram. Whether the orientation of the west arcade was dictated by a pre-Mohammadan building or, as Dr. Herzfeld has acutely suggested, by the plan of a mosque which stood upon this site before the year A.D. 1091,[427] cannot be determined with certainty. In its present form it is the work of Mohammadan builders of the twelfth century, though it is partly composed of pre-Mohammadan materials. Whence these materials were derived has not been ascertained. There is, however, a further proof that a building older than the existing mosque, oriented in the manner corresponding with that of the west arcade, existed on this site. On the north side of the ṣaḥn, between the two northern madrasahs, there is a lane or passage which communicates with the street beyond the precincts of the mosque. On the east side of the passage there is a fragment of wall, built of large dressed stones, entirely dissimilar from the masonry in any part of the existing mosque, and this fragment lies at the same angle as the west arcade of the ṣaḥn (Plate 93, Fig. 1).

Not far from Diyârbekr there is another building which shows in its plan and decorations the influence of the Ulu Djâmi’ in that city. The so-called mosque of Ṣalâḥ al-Dîn at Mayâfârqîn ranks, even in ruin, among the finest of Mohammadan monuments (Plate 92). The wide central aisle has been converted into a chamber almost square (it is not quite rectangular and averages 13·60 x 13·32 metres), which was covered by a dome set on elaborately decorated squinch arches (Plate 93, Fig. 2). Under the dome runs an inscription assigning the building of the mosque to the Ortokid Alpi (A.D. 1152-1176). The square chamber is surrounded on three sides by a corridor consisting of eleven bays, some of which were probably domed, while the others were vaulted. The columns placed against the piers of the dome were taken from a neighbouring early Christian basilica. The wings to east and west are divided by three arcades into four transepts averaging alternately 5 metres and 2·60 metres in width, a narrow transept lying next to the qiblah wall. The eastern miḥrâb in the south wall of the east wing is dated by an inscription of the Ayyûbid Ghâzi in the year A.H. 624 = A.D. 1227. The west wing contains no date, but the very shallow miḥrâb in the south wall is proved by its decoration to belong to a period not{160} earlier than the sixteenth century, and as the whole wing as it stands at present seems to have been rebuilt, it may well be that it all belongs to a late reconstruction or reparation. Still further west are some ruined edifices which formed part of the precincts of the mosque, and here a lintel, re-used in a doorway of a later period, bears a second inscription of the Ayyûbid Ghâzi and the date A.H. 624 = A.D. 1227. There are no remains of a minaret, and the ṣaḥn is completely ruined and filled with débris, but the north façade, which is almost entirely preserved, is of remarkable interest in the history of Mohammadan decoration. (The photograph of a section of this façade has been given on Plate 84, Fig. 3.) The wings and the north façade show many signs of reparation, and no doubt the mosque shared the fate of all great buildings in these stormy regions, and suffered frequent ruin and subsequent restoration; but it seems probable that the two wings were originally built between A.D. 1226 and 1228, and that they were added to the domed chamber with its corridor which had been erected some fifty years earlier.

In the Ayyûbid mosques at Ḥasan Kaif, all of which are dated in the first half of the fifteenth century, no suggestion of an early plan can be traced. At Môṣul, the great mosque as it exists at present dates from the time of Nûr al-Dîn Maḥmûd (A.D. 1146-1173), but the plan shows traces of an earlier riwâq constructed with piers, and lying immediately to the north of the present ḥaram; while fragmentary inscriptions in decorated Kufic must belong, according to M. van Berchem, to the eleventh century A.D.[428]

That we have no further information concerning the Mesopotamian mosque shows how insufficient are the data which bear upon its architectural history. From the facts which I have briefly summarized one conclusion may, however, be drawn. The mosque builders were guided by a scheme of extreme simplicity, the details of which were executed according to the nature of the building material which was available. When that material could be taken from older buildings the Mesopotamian artificers were not slow to profit by so fortunate a circumstance; elsewhere they reverted to the system of construction which from time immemorial had prevailed in those regions. They built with sun-dried or with burnt bricks, or where stone could be obtained they built with stone. Sometimes they imported stone from Ahwâz for the columns of their riwâqs, and sometimes wood; sometimes they raised columns of stone masonry, or again they combined brick piers with colonnettes of marble. But since imported wood and stone were expensive, and the Sasanian monuments, which had served as quarries, were speedily exhausted, there was a natural tendency to return to the old local forms, and piers of brick or stone masonry were the obvious solution for the supports of the riwâqs. Ukhaiḍir is the only example which remains to us of a mosque in which the riwâqs were covered with a vault; probably the vault was seldom employed. It is certain that all the mosques of the early Abbâsid period, of which the ruins are preserved, must have been roofed with wood.{161}

CHAPTER VII

THE DATE OF UKHAIḌIR

There are no inscriptions by which to fix the date of Ukhaiḍir. If any record of its foundation were made, it must have been written upon the plaster which covered the walls, and in some of the more important rooms the plaster has peeled away. But it is probable that there was no such record. The laudable habit of setting the name and date of the founder upon the building which he had caused to be constructed does not seem to have been followed in the first age of Islâm, and, like Ukhaiḍir, the ḥîrahs upon the Syrian frontier have furnished us with no direct evidence as to their origin. I found in room 44 a graffito upon the plaster on the south side of the doorway which communicates with room 45. It is exceedingly ill written, and in some places the cracking of the plaster makes it almost indecipherable. The authors of Ocheïdir did not notice it and no mention of it appears in M. Massignon’s text, though he certainly saw it, since it is visible in one of his photographs.[429] The original is so indistinct that I doubt whether any photograph would reproduce it satisfactorily. After an unsuccessful attempt to take a squeeze, I made a copy—scarcely more successfully (Fig. 35). When I returned to Ukhaiḍir in 1911 the plaster was still more damaged, and I abandoned the attempt to re-copy the graffito. Meantime Dr. B. Moritz had noticed the characters in M. Massignon’s photograph, and he was inclined to believe that they might be ancient, possibly Nabataean. I therefore sent my copy both to him and to Professor Littmann, and the latter was so kind as to supply me with the following notes. ‘Dr. Moritz and I combined our efforts and something like the following may be suggested:

[Image of Arabic writing not available.]

“This water from the house (?) to ... from this water. And the declaration was pronounced that there is no God but God and Muḥammad is his Prophet. And there was present at this ... Bishr, son of ‘Âdah son of ‘Îsâ son of ‘Umar, in the year of the Hidjrah 77-.”

‘If the date is correctly read we would have to choose between the years A.H. 771 and 779 = A.D. 1369-1378. The purpose of this inscription may be to{162} reserve the rights of watering at or near Ukhaiḍir. The Beduin put their tribe marks on ruins in the desert in order to prove that the region (water and pasture) is theirs. This is their way of annexation. The whole is very doubtful; but we have made out at least something. The words that are absolutely certain are [Image of Arabic writing not available.], and [Image of Arabic writing not available.]

The result, as Professor Littmann observes, is small; but we have at any rate the assurance that the graffito is not very ancient and that it is not concerned with the building or restoration of the palace. The water to which it alludes must be the well in the Wâdi al-Ubaiḍ.

The name ‘Ukhaiḍir’ is not mentioned by historians or geographers. Like so many of the place-names now current in the desert it is in all probability comparatively modern. Mshattâ, Qṣair ‘Amrah, Kharâneh, are not known to history under those titles; even the word ‘Ḥamâd’, which is applied universally to the high and barren steppes of the northern Syrian desert, is not used by any mediaeval writer. But the root from which ‘Ukhaiḍir’ is derived, signifying primarily to be green and therefore easily applicable to any spot where there is water or verdure, is found in other place-names. The palace or ḥîrah of the Umayyads in Damascus was called ‘al-Khaḍrâ’,[430] and Balâdhuri mentions another Khaḍrâ, in or near Kûfah, in his description of that city.[431] It would, however, be vain to attempt to identify the Khaḍrâ of Kûfah with Ukhaiḍir, though some at least of the place-names given in Balâdhuri’s catalogue denote sites well without the limits of Kûfah itself, and even at considerable distances from the town. Khawarnaq, for example, comes into the list, and a building or village called Qaṣr al-Muqâtil, which is stated by Yâqût to be either between ‘Ain al-Tamr and Damascus, or near al-Quṭquṭâneh and Sulâm.[432] Quṭquṭâneh we know to be the modern Ṭuqṭuqâneh, and Sulâm I must connect with the well of the same name, of which I heard as lying under the Ṭâr east of Ukhaiḍir a little to the south of my path to Mudjḍah and ‘Aṭshân.[433] Qaṣr al-Muqâtil is said by Ṭabari, by Balâdhuri, and by Yâqût to have been called after a certain Muqâtil ibn Ḥasân ibn Tha’labah ibn Aus ibn Ibrâhîm ibn Ayyûb ibn Madjrûf ibn ‘Âmir ibn ‘Uṣayyah ibn Imra’al-Qais ibn Zaid Manât ibn Tamîm, who would seem to have lived during the Days of Ignorance, and in fact the Qaṣr of the Banû Muqâtil is mentioned by Ibn al-Athîr in his account of the movements of Persian and Mohammadan leaders which preceded the battle of Qâdisiyyeh.[434] From a further passage in Ibn al-Athîr it would appear to have{163}

Fig. 35. Ukhaiḍir, graffito in room 44.

{164}

lain near Quṭquṭâneh, on the road from Kûfah to Anbâr.[435] Yâqût states that ‘Isâ ibn ‘Ali ibn ‘Abdallâh (who was great-uncle to the khalif Manṣûr) demolished and subsequently rebuilt Qaṣr al-Muqâtil, and that it belonged to him: he goes on to quote a couplet of Ibn Takhmâ al-Asadi: ‘Methinks there is not in the Qaṣr, the Qaṣr of Muqâtil, or in Zûrah, any pleasant shade or a friend;’ from which I infer that the Qaṣr was not a walled palm garden, like the modern quṣûr in the vicinity of the Baḥr Nedjef, and therefore that it may well have been an isolated castle in the desert. I do not wish to suggest that there can be any certainty in identifying Ukhaiḍir with the Qaṣr al-Muqâtil, but I would nevertheless call attention to the following points:

1. It is strange that a building as important as Ukhaiḍir should not have been mentioned by historians or poets, since the district in which it stands was the theatre of much action during the first hundred and fifty years of the Hidjrah.

2. The position of the Qaṣr of Muqâtil, so far as somewhat vague indications allow it to be determined, would not accord ill with the site of Ukhaiḍir.

There is, however, another way of accounting for the silence of early records, namely, by supposing that Ukhaiḍir was not in existence at that period. In this matter we can be guided only by such deductions as can be made from the plan, structure, and decorations of the palace.

The plan of Ukhaiḍir is in many respects more closely related to that of the palace of Khusrau at Qaṣr-i-Shîrîn than to the plan of Balkuwârâ. The latter palace is a further development of the scheme which is represented in a less complete form by the two other buildings. That this further development necessarily implies the lapse of any long period of time, or indeed of any appreciable period of time, between the erection of Ukhaiḍir and the erection of Balkuwârâ, I am not prepared to assert; it might be taken to denote no more than that in the one case the architects were called upon to construct a remote hunting palace in the desert, while in the other they were laying out a princely dwelling in the capital of the empire. A similar explanation might be given to account for the difference between the beautiful and varied stucco work of Balkuwârâ, wherein the influence of Hellenistic Syria and Coptic Egypt is apparent, and the limited range of the decorations of Ukhaiḍir, confined as they are to motives which had been borrowed by the Sasanians partly from Mesopotamian Hellenism, and partly from the Assyro-Babylonian tradition. But I cannot regard such reasoning as wholly convincing. The difference both in decoration and in structure between Ukhaiḍir and the buildings at Sâmarrâ are such as to place the foundation of the one considerably earlier than the foundation of the others.

As regards structure one of the most significant indications of date is the{165} curve of the arches. Ukhaiḍir belongs to the time of transition from the round or ovoid to the pointed arch. This transition must have been accomplished in Mesopotamia during the course of the eighth century. While the Sasanian vault is invariably round or elliptical (I attach no importance to the fortuitous appearance of the pointed vault in the substructure at Qaṣr-i-Shîrîn), the Sasanian arch is, so far as my knowledge goes, invariably round. The arches of Sarvistân are specifically stated to be round,[436] the arches of Firûzâbâd are also round, though where the arch is set back upon the jambs a tendency to give a curve to the angle lends to them the appearance of a horse-shoe.[437] All the arches of the Ctesiphon façade are round, and at Qaṣr-i-Shîrîn the builders knew no other form. It has been contended that the pointed arch is found in the upper gallery on the interior of the east wall at Ctesiphon, but Dr. Herzfeld has shown satisfactorily that the curve assumed by those arches was dictated by their peculiar construction.[438] The pointed arch, like the pointed vault, may have been used sporadically in the pre-Mohammadan era (it is found in the church of Qaṣr ibn Wardân, which must have been built about the year A.D. 564[439]); it was latent in Sasanian architecture; but it was not until the eighth century that it passed into familiar use. In the Umayyad buildings on the western side of the desert, it appears side by side with the round arch, and at Hammân al-Ṣarakh, Ṭûbah and Mshattâ it assumes exactly the same shape in which we have it at Ukhaiḍir, a slightly stilted, pointed ovoid which bears the hall-mark of its descent from the Sasanian elliptical vault. Similarly at Ukhaiḍir it has not yet ousted all other forms; there are examples in the palace of the true ovoid arch and even of the round arch. The builders of Sâmarrâ went a step further. Their arches have shaken off all connexion with the Sasanian ellipse and have taken on the curve which was to become typical from that time forward of the Mohammadan pointed arch.[440] Of the same character are the arches of the Baghdâd gate at Raqqah, which cannot be earlier than the reign of Manṣûr and may with greater probability be assigned to Hârûn al-Rashîd.[441] It would therefore appear to be certain from the evidence which we possess that in the first half of the ninth century, and possibly as early as the close of the eighth century, the pointed arch had come into systematic use in Mesopotamia, to the exclusion of all other forms, and if that be the case, Ukhaiḍir must belong to an earlier period, more closely approximating, as I would suggest, to the period which witnessed the same transition stage on the Syrian side of the desert, a stage which falls there into the first half of the eighth century.{166}

From the details of arch construction little help is to be derived. The double ring of brick voussoirs, the inner horizontal, the outer vertical, is common to Ctesiphon and to Sâmarrâ, as well as to the Syrian ḥîrahs of the intervening age. The system of arch-building over temporary or permanent centerings has been shown by Dr. Reuther to be practised to the present day, but so far as I am aware, arches set back from the jambs, such as those which were built over temporary centerings in the Sasanian palaces and in Ukhaiḍir, are not present in monumental buildings at a later date. There is no recorded example of this construction at Sâmarrâ.

Neither do the horse-shoe arches of the central court afford any conclusive evidence as to date. In all probability the horse-shoe arch was used in Mesopotamia long before Ukhaiḍir was built, and it is used to this day. It appears at Tâq-i-Girrâ, a monument of which the date is not determined, though the classical workmanship of its mouldings indicates a period early in the Christian era;[442] it is found in a Hellenistic vault at Chiusi,[443] and it is common in the churches of Syria. To the north of Mesopotamia there is an early example of its use in the basilica at Mayâfârqîn.[444] As for the methods of vaulting employed at Ukhaiḍir they exhibit no features which are not present in the Umayyad buildings on the Syrian side of the desert, but in some respects, for example in the use of the groin and of the fluted dome, they are in advance of Sasanian construction.

I have already called attention to the points of similarity between Ukhaiḍir and Kharâneh. They have a certain weight in the chronological problem although they do not afford decisive evidence as to identity of date. With identical requirements details of structure are apt to remain the same over long periods of time. The loophole windows at Abû Hurairah and at Raqqah,[445] in buildings which must be placed in the middle of the twelfth century, differ little, if at all, from those of Ukhaiḍir and Kharâneh. Nor is the coincidence in the latter two monuments of a decorated chamber to the right of the audience room in itself a determining factor. The same scheme may have existed in Mohammadan palaces later in date than Kharâneh, but unfortunately the later palaces have not been preserved or are not yet adequately explored. Possibly the excavations at Sâmarrâ may throw further light on the subject.

There is, however, another matter which must be taken into account. The palace of Ukhaiḍir could not have satisfied the needs of any but a very primitive society. It contains no bath, that indispensable requisite of existence in hot climates, nor any sanitary arrangements whatsoever. Moreover the seclusion of the ḥaram courts is very imperfect, a fact which points to a primitive stage of Islâm. It is true that the ḥaram courts are separated from each other and{167} from the central court of honour, but they are overlooked by the windows of the two upper stories of the northern block, which must have belonged to the public part of the palace. Doorways open from the first floor on to a roof which is continuous with the roof of the ḥiram lîwâns, and even if low walls divided the roof spaces, the guests or guards who were lodged in the upper story had an uninterrupted view into all the courts below. When I first visited Ukhaiḍir I found it inhabited by some Arabs from Djôf. The wives and families of the shaikhs had taken possession of the rooms on the first floor, where none of my servants were allowed to penetrate. They dwelt there because, if they had occupied the lower courts, their movements could have been observed from above.

All these observations point to, or can be reconciled with, a date in the eighth century for the building of the palace, but whether it belongs to the late Umayyad or to the early Abbâsid period cannot be decided from internal evidence. The sister buildings on the western side of the desert are Umayyad, but on the other hand Ya’qûbi, writing towards the close of the ninth century, mentions the fact that the castles of the Abbâsid khalifs were situated on or near the road to Mekkah. ‘He who wishes to travel from Kûfah to the Ḥidjâz goes out along the southern road by stations which are built and halting-places which are kept in repair, among which are the castles of the Hâshimid khalifs. The first station is Qâdisiyyeh.’[446] The Arabic word which I have translated ‘castles’ is quṣûr; it is the word which is applied to-day to the mud-walled palm gardens of the Baḥr Nedjef. Whether in this passage it should be taken to denote palm gardens or ḥîrahs situated along the Ḥadjdj road I do not know, but it is significant that, with the exception of Ukhaiḍir, no trace of any such ḥîrahs has remained to our day. Ukhaiḍir is not upon the road that runs from Kûfah to the Ḥidjâz, but neither is it more than two days’ journey removed from it. That the khalif Hârûn al-Rashîd carried his hunting expeditions into the region near Kûfah seems probable from the fact that it was on one of these occasions that he is said to have found the grave of the khalif ‘Ali at the spot which is now occupied by the city of Nedjef.[447] The story of the finding of the grave bears every sign of having been a legend invented by the Shî’ahs, but it lends additional colour to the supposition that the early Abbâsids frequented the eastern deserts in pursuit of game, and therefore that they may have possessed palaces outside Kûfah to which they were accustomed to resort. Manṣûr, the second of the line, founded Baghdâd in A.D. 762, and removed the offices of government thither from Hâshimiyyeh near Kûfah in 763. His predecessor Ṣaffâh had lived at Hâshimiyyeh near Anbâr: it was he who had transferred the capital from Damascus to ‘Irâq. Previous to 750, when the last Umayyad{168} khalif, Marwân II, was deposed and slain, the eastern provinces of the empire were governed by powerful viceroys, and if Ukhaiḍir is to be regarded as pre-Abbâsid it is to one of these that it must be attributed. Men like Ziyâd ibn Abîhi or Ḥadjdjâdj, who controlled the riches of ‘Irâq and Persia, were scarcely second in wealth and power to the khalifs themselves. Ziyâd’s personal austerity is attested by historians who had no desire to depict the character of Mu’âwiyah’s vicegerent in a favourable light, but his architectural activity is shown not only by the number of mosques which he founded or rebuilt, but also by the erection of palaces at Baṣrah.[448] He died in A.D. 673 after holding his high office under ‘Ali and Mu’âwiyah for a period of nearly fifteen years. Ḥadjdjâdj was governor of ‘Irâq from A.D. 695 to 713. In the khalifate of Ḥishâm, Khâlid ibn ‘Abdallâh ruled over ‘Irâq for thirteen years (724-737), and Yûsuf ibn ‘Umar, who succeeded to the post, held it for seven years. Any of these men might have built and occupied palaces in the wilderness, imitating the practice of their Umayyad masters, and also of their Nu’mânid predecessors in the very region in which the Umayyad viceroys wielded in their turn an authority far greater than that to which the Arab princes of Ḥîrah could lay claim. But the existence of a miḥrâb in the mosque fixes a date before which it is unlikely that Ukhaiḍir could have been built. According to Mohammadan writers, the first miḥrâb was that which was constructed in the mosque of Medînah between A.D. 709 and 711, and if that be so Ukhaiḍir cannot be placed earlier than the last years of Ḥadjdjâdj. I take the years 709-711 as the earliest possible date and the khalifate of Hârûn al-Rashîd as the latest possible date, and with due regard to the probable age of the Syrian palaces on the one hand, and to the architectural features of Ukhaiḍir as compared with those of Raqqah and Sâmarrâ on the other, I conclude that Ukhaiḍir must have been built towards the middle of the eighth century.

This leads me back once more to the Qaṣr of Muqâtil, which, though it was in existence during the pre-Mohammadan and Umayyad periods, was destroyed and rebuilt by ‘Îsâ ibn ‘Ali; and without insisting upon the identity of the two, I submit that the suggestion that they may be identical is not groundless. The well in the Wâdi al-Ubaiḍ is the only spot in the region immediately south of the lake of Abû Dibs at which fresh water can be obtained, and for that reason it was probably always frequented. That no advantage should have been taken of it at a time when Ḥîrah and Kûfah were rich and important centres of population is difficult to suppose. But whatever habitation was in existence on the Wâdi al-Ubaiḍ during the Days of Ignorance, it cannot have been the same as the palace of Ukhaiḍir, which is indisputably of Mohammadan origin. The Qaṣr al-Muqâtil was, however, rebuilt in the early part of the Abbâsid era; and that is a date (and as I have attempted to show, it is the latest date) which is consistent with the architecture of Ukhaiḍir.{169}

SUBJECT INDEX

A, B, C, D, E, F, G, H, I, K, L, M, N, O, P, R, S, T, U, V, W, Z

A
abacus, 12, 29;
boss on, 135.
acanthus, 141, n. 3.
acroterion, 129.
aedicula, 127, 129, 139.
aisle of mosque, 151, 152, 153, 154, 157, 158, 159.
aiwân, see lîwân.
Alexandrian influence, 126, 127, 136.
ancient road, Kûfah-Shethâthâ, 2, 43.
antechamber, see ṭarmah.
apadana, 63.
arcade, 16, 17, 19, 23, 28, 30, 32, 35, 49, 50, 71, 125, 153, 154, 155, 156, 159;
blind, 5, 6, 24, 25, 30, 32, 34.
arch, breaking into vault, 10, 20, 34;
construction, 6, 12, 15, 18, 24, 26, 29, 39, 42, 113, 166;
decoration, 122;
horse-shoed, 8, 24, 165, 166;
ogee, 40;
oversailing, 9, 15, 16, 26, 27, 33, 79, 115;
ovoid, 6, 26, 28, 32, 33, 34, 114;
pointed, 5, 6, 9, 16, 29, 32, 34, 112, 114, 118, 165;
relieving, 112, 113, 115, 118;
round, 30, 39, 41, 43, 76, 112, 113, 115, 118, 165;
segmental, 13;
set back from jambs, 14, 16, 20, 25, 26, 28, 33, 76, 79, 118, 166;
stilted, 8, 29, 114, 118;
transition from round or ovoid to pointed, 114, 165;
transverse, 8, 9, 17, 18, 26, 27, 28, 29, 30, 33, 36, 37, 51, 53, 72, 73, 83, 96, 97, 112, 115, 140.
architrave, 123, 131, 135, 136;
broken, 125, 128.
archivolt, 128, 129, 131, 133, 135.
armamentarium, 102, 103.
Assyro-Babylonian influence, 142, 164.
asymmetry, 51, 52, 79, 81, 93, 94;
in façade, 130, 131, 132.
âteshgâh, 91, 92.
attic, 127, 128, 129, 130.

B
bâdiyah, 55, 112, 119.
bait, 82, 83, 84, 86, 87, 88, 89, 104, 105, 106, 112, 113, 114, 116, 117, 118, 120.
balcony, 19, 23, 25, 133.
barracks, in Roman camp, 100, 102, 105.
base, absence of, 27, 42, 134;
bell-shaped, 156.
bastion, 107, 108.
bath, see ḥammâm.
battering-ram, 107.
brackets, horizontal, under domes, semi-domes, and calottes, 9, 10, 12, 15, 18, 24, 25, 27, 42, 73, 97, 111, 112, 113.
brick, 13, 24, 26, 28, 30, 39, 40, 41, 45, 54, 69, 70, 71, 79, 82, 84, 96, 113, 115, 117, 154, 155, 160;
enamelled, 122, 123, 140;
sun-dried, 38, 68, 75, 146, 147, 148, 153, 154, 160.
buttress, 4, 35, 71, 122.
buttressing vaults, 14, 26, 35, 74, 75, 95.
Byzantine influence, 115, 119, 143, 147.

C
calotte, 12, 13, 14, 15, 18, 19, 24, 26, 34, 38, 73, 133, 138;
construction, 13;
laid in rings, 24, 42;
stilted, 13.
capital, 25, 77;
absent, 6, 30, 138, 140;
bell-shaped, 156;
Corinthian, 135, 141;
impost-, of masonry and stucco, 12, 24, 25, 27, 29, 30, 42, 134, 135, 138, 140;
Ionic, 65;
wreathed acanthus, 153.
caravanserai type, 104, 106, 111 n.
casemate, 22, 107, 108, 109, 121.
castrum, Sasanian, 105.
cavetto, 12.
cella, 94, 126.
centering, 9, 12, 13, 15, 18, 26, 28, 30, 33 nn. 1 and 2, 45, 71, 72, 75, 76, 96, 118, 166.
centralization, 129, 131.
chapel replacing sacellum, 105.
chemin de ronde, 5, 6, 7, 8, 9, 21, 73, 106, 116.
chimney, 29, 32, 82.
Christian influence, 147, 148, 149.
cloister, see arcade.
closet, 83, 118.
coffering, 140.
colonnade, 84, 98, 123, 125.
column, absence of, in Babylonia and Assyria, 62, 77;
clustered, 24, 131, 135, 158;
double, 138;
dwarf, 127, 128, 130, 133;
engaged, 8, 12, 13, 16, 17, 19, 22, 23, 24, 25, 30, 32, 34, 36, 42, 46, 78, 122, 124, 125, 127, 128, 130, 131, 133, 136;
free-standing, 16, 17, 28, 29, 32, 35, 45, 47, 63, 80, 82, 123, 136, 148, 149, 150, 151, 152, 153, 158, 159, 160;
of wood, 148, 154, 157, 158, 160;
quarter-, in antis, 127, 128, 129, 138.
concrete, 28.
cornice, 25, 34, 70, 133;
broken, 128.
courts, isolation of, 31, 33, 48, 49, 83.
crémaillère, 106, 108, 109.
crenellated motive on archivolt, 14, 18, 140.
crenellation, 7, 18, 107, 121, 122, 123, 127, 128, 133, 134, 140, 143.
curtain wall, 7, 106 n. 8, 108.
cusp, 19, 24, 132, 133, 135, 142, 153.{170}

D
Days of Ignorance, 56, 120, 168.
decoration, continuous niches, 123, 124, 125, 136;
continuous pattern, 123, 130, 131, 135, 143;
Coptic, 141, 143, 147, 164;
derived from wooden structure, 123;
geometric, 143;
imitative architecture, 65, 77, 123, 124, 125, 127-36;
in horizontal zones, 122, 124-36;
of structural character, 140.
dîwân, 19, 22.
djâmi’, see mosque.
dog-tooth, brick, 40, 79.
dome, 8, 10, 51, 53, 56, 70, 72, 73, 74, 75, 76, 78, 79, 92, 97, 112, 117, 118, 152;
fluted, 9, 13, 166;
on columns, 71, 72, 73, 74, 78;
ribbed, 7, 111;
thrust of, concentrated on angle piers, 78, 96.
dragon motive, 90, 143.
dungeon, 9.
Duru, 88.

E
Egyptian fortification, 106;
influence, 127 n. 1;
tombs, 124.
entablature, 76, 130;
broken, 127, 128;
Ionic, 127.

F
façade, Babylonian and Assyrian, 122, 123;
Graeco-Roman, 123;
Hellenistic, 24, 25, 51, 66, 88, 119, 122, 123, 124, 126-34;
of lîwân, 32, 34, 66, 78, 82, 95, 136, 137, 138;
of mosque court, 143, 144, 156, 158;
Roman, 124, 125;
single-arched, 138, 139;
towered, of khilâni, 62, 63, 75, 77, 78, 116;
triple-arched, 136, 137, 138.
fillet, 8, 10, 25, 27, 51, 52, 76, 79, 115, 123, 133.
fire altar, see âteshgâh.
flutes, triple, 78, 115.
fluting, 40, 41, 78, 122, 123, 133.
forum, 72, 98.
fresco, 112, 140, 142;
Alexandrian, 128 n. 3;
of Boscoreale, 125, 127, 128 n. 3.
frieze, broken, 128, 133.
funnel above arch, 8, 14 n. 1.

G
gangway, see balcony.
gate-house, Ukhaiḍir, 8, 81, 117.
gate, monumental, 4, 7, 9, 41, 49, 51, 52, 53, 81, 84, 86, 92, 96, 116, 122, 142.
gate towers, 7, 9, 10, 41, 114;
of Roman camp, 99.
gorge, Egyptian, 76, 127.
graffito, Kharâneh, 115;
Ukhaiḍir, 31, 161, 162, 163.
Greek influence, 65, 66, 75, 87, 97, 119, 127, 130, 137, 139;
in India, 123, 136, 140, 141, 142, 143, 152, 164.
guard-rooms, 50, 51, 81, 92.

H
ḥair, 56.
ḥammâm, 4, 37, 56, 111, 112.
ḥaram, 17, 18, 21, 26, 27, 82, 83, 122, 147, 151, 153, 154, 155, 156, 157, 158, 159, 160, 167.
ḥarb, 58.
Hazârbâf, 26, 138.
head wall, 19, 27.
ḥertâ, 56.
ḥîrah, 55, 56, 57, 58, 59, 74, 78, 81, 86, 87, 90, 97, 117, 119, 120, 161, 162, 166.
ḥîri, 58, 59, 86, 121.
horizontal decoration, 24, 79, 128, 129, 130, 131, 133.
horreum, 102, 103.
hourd, 107, 116, 121, 133, 134.
house, Arab, 145, 146, 158;
Hellenistic, 65, 87, 89, 99, 120;
lîwân-ṭarmah, 87, 117;
Roman, 87, 89.
hypostyle pavilion over gate, 81.

I
incrusted style, 124.
inscriptions, absence of, in early Mohammadan architecture, 161.
inscription with date, Diyârbekr, 158;
Ḥarrân, 152;
Kharâneh, 115;
Mayâfârqîn, 159;
Môṣul, 160;
Qaṣr ibn Wardân, 112;
Raqqah, 153.
intervallum, 98, 100, 102, 103.

K
khân, 40, 41, 43, 143.
khilâni, 62, 63, 66, 75, 76, 80, 82, 84, 87-93, 116, 119, 120.
khuṭbah, 146 n. 1.
kitchen, 32, 33, 42, 47, 48, 49, 82, 83.

L
label, rectangular, 13, 27, 51.
latitudinal chamber, 45, 47, 49, 62, 65 n. 4, 78, 80, 90, 92, 93, 94.
ledge, see balcony.
limes, Roman oriental, 97, 98, 100-6, 110, 111, 120;
Roman western, 98, 110.
lintel, 112, 113, 115;
of masonry, 16, 25, 118.
lîwân, 22, 23, 26, 30, 31, 32, 33, 34, 42, 46, 47, 48, 49, 53, 60, 62, 63, 65, 66, 70, 73, 75, 76, 78, 80, 82, 83, 84, 86, 87, 88, 89, 90, 92, 93, 94, 95, 104, 112, 116, 117, 119, 132, 137, 138, 142, 143, 167.{171}
loggia, 78, 123.
longitudinal chamber, 78, 93, 94.
loophole, 6, 7, 9, 107, 115, 116, 121, 140, 166.
lozenge, 8, 17.

M
machicolation, 7, 107, 121.
madjlis, 145.
madrasah, 159.
Magi, 91, 92.
maqṣûrah, 147, 148, 149.
masdjid, 145.
masdjid al-djamâ’ah, 146, 148.
megaron, 65 n. 4, 89, 120.
miḥrâb, 16, 17 n., 18, 132, 141, 147, 149, 150, 151, 152, 155, 157, 159, 168.
minaret, at Abu Dulaf, 156;
at Baghdâd, 40;
at Baṣrah, 148;
at Iṣfahân, 41 n. 1;
at Raqqah, 153, 154;
at Sâmarrâ, 156;
at Ṭâûq, 40;
of Ghazni, 41;
of Ibn Ṭulûn, 156.
minbar, 146, 149, 150, 151.
misr, 146, 148.
Mohammadan art, 142.
mortar, bitumen, 69, 96;
clay, 96;
gypsum, 12, 15, 44, 96.
mosaic, 65, 147, 148.
mosque, 16, 17, 20, 21, 26, 40, 86, 117, 132, 133, 141, 142, 144, 145-60, 168.
moulding, 124, 125, 128, 133, 166;
continuous, 133.

N
narthex, see ṭarmah.
niche, arched, 7, 8, 10, 12, 13, 14, 16, 19, 24, 25, 34, 37, 38, 39, 41, 42, 47, 50, 51, 52, 53, 76, 78, 122, 123, 124, 125, 130, 131, 133, 138, 139, 142, 154, 158;
architraved, 40, 126;
flanked by colonnettes, 13, 24, 25, 27, 28, 42, 52, 130, 131, 139, 140;
in rectangular frame, 8, 34, 40, 76, 132, 133, 134, 135, 136, 139.

O
oecus, 87.
orientation of mosques, 150, 151.
orthostatae, 62, 122, 123 n. 1, 124.
ovolo, 29.

P
painting, Greek, 125.
palace, Achaemenid, 62-4, 140;
Assyrian, 93, 94, 124, 140;
Babylonian, 93;
Byzantine, 121;
Greek, 89;
Hittite, see khilâni;
Mohammadan, 84-7, 110-21, 168;
Parthian, 65-72, 89, 90, 140;
Roman, 121;
Sasanian, 44-54, 73-81, 83, 84, 90-7, 118, 119, 120, 121.
palmette, 141 n. 3;
broken, 132;
tree, 143.
panel, 42, 122.
pediment, 129, 139;
broken, 125, 127, 128.
pendentive, 42, 73, 111.
peristyle, 65, 87, 99, 120, 136.
pier, 12, 17, 18, 20, 24, 25, 29, 30, 33, 123, 127, 128, 152, 153, 158;
heart-shaped, 46, 74.
piers, clustered, 135, 156, 158.
pilaster, 5, 6, 8, 34, 123, 126.
plan, basilical, 111, 117, 142;
change of, at Ukhaiḍir, 10, 33 n. 3, 60, 81;
circular city, 107, 109;
conjunctive, 89;
disjunctive, 89;
injunctive, 89, 90, 106, 120.
plaster, see stucco.
plinth, 122, 128, 134.
podium, 122, 123, 124, 125, 130;
broken, 125, 127, 128.
Porta Decumana, 98, 103.
Porta Praetoria, 98, 103.
Porta Principalis Dextra, 98.
Porta Principalis Sinistra, 98.
portcullis, 7, 10.
portico, 58, 59, 126, 152.
potsherds, mediaeval, 38, 56.
Praetentura, 102.
Praetorium, 72, 98, 99, 102, 103, 104, 120.
prostas, 87.
pylon-like wall, 130, 131.
pylon tombs, 127, 128.
Pyraetheia, 91.

R
ramp, 12, 14, 19, 21, 45, 46, 50, 80, 86.
recess, see niche.
recessed calotte, 13;
ornament, 18, 27, 34, 40, 133, 140;
square containing circle, on mosques, 156.
Retentura, 102.
retreating angles, see crémaillère.
rinceaux, 141 n. 3.
riwâq, arûqah, 17, 20, 58, 59, 147, 150, 151, 152, 153, 155, 156, 157, 158, 160.
rock-cut monuments, 72, 123, 126-30, 142.
Roman camp, stockaded earthwork, 97, 99, 110;
stone, 97, 99, 100-4;
type, 98, 99, 103, 105, 106, 120, 121.
Roman influence, 136, 137.
Roman temple tomb, 127.
roof, wooden, 144, 150, 152, 153, 156, 158.
rosette, 17, 18, 27, 140.

S
sacellum, 98, 101, 103, 104.
safâfîd, 149.
ṣaḥn, 17, 20, 21, 23, 143, 144, 148, 149, 150, 151, 152, 154, 156, 157, 159, 160.
Sasanian influence, 59, 75, 115, 137, 141, 164.{172}
scollop, see cusp.
semi-dome, 18, 27, 28, 38, 42, 73, 79, 111, 112, 115, 139;
fluted, 25, 118, 139.
serdâb, 25, 28, 35, 37, 82.
spandrel, 6, 12, 24, 27, 34, 131, 133.
spear-shaped motive, 27, 140.
spiral motive, 133.
squinch arch, 18, 23, 27, 38, 50, 51, 52, 53, 73, 79, 96, 97, 115, 140, 159;
fluted, 18.
stair, 7, 13, 20, 21, 22, 23, 28, 29, 31, 33, 34, 35, 36, 37, 40, 46, 82;
on âtesgâh, 91, 92.
staircase motive, 127.
stela, 123, 135.
stoa, 65, 124, 126.
stone, dressed, 65 n. 1, 70, 96, 124, 126, 159;
undressed masonry, 6, 24, 28, 44, 69, 76, 78, 84, 96, 113, 116, 117, 160.
stucco, 12, 16, 17, 18, 23, 24, 26, 34, 52, 86, 115, 124, 125, 134, 140, 164;
oversailing bars, 18, 26, 28, 38, 51, 65, 66, 140.
stupa, 123.
ṣuffah, 146.
symmetry, 92.

T
tabernacle in votive niches and tombs, 127.
ṭâqchah, 28, 35, 51, 52, 76.
ṭarmah, 30, 32, 48, 53, 83, 84, 87, 88, 93, 94, 119, 137, 138.
temple, Assyrian, 92, 93, 94, 124;
Babylonian, 92, 93, 94;
fire, 90, 92, 94;
in antis, 66;
peripteral, 65.
tetrapylon, 98.
theatre, at Babylon, 65;
at Ephesus, 125.
tholos, 128, 129.
torus, 76.
towers, à cheval, 103, 108;
chamber, 7, 31;
flanking, 4, 6, 7, 33, 36, 37, 41, 60, 99-110, 113, 114, 116, 117, 121, 153, 155;
in Roman camp, 99;
polygonal, 109;
rounded and rectangular, 103, 107, 108, 109;
tomb, 41 n. 1.
transept of mosque, 152, 155, 158, 159.
trifoliate apse, 117.
tubes, decoration, value of, 35, 143;
imply vault, 143;
in vault, 14, 19, 22, 30, 31, 33, 35, 36, 76, 143, 144.

U
Ukhaiḍir, absence of bath, 166;
central court, 23, 24-6, 33, 34, 82, 131;
corridor, 28, pp. 20, 23, 24, 25, 29, 33;
court A, 16, 19;
court B, 23, 30, 31, 32, 33, 82, 83;
court C, 23, 30, 32, 33, 82, 83;
court D, 23, 33;
court E, 23, 24, 30, 33, 83;
court F, 29, 33;
court G, 23, 30, 32, 33, 82, 83;
court H, 23, 30, 32, 33, 82, 83;
east annex, 34, 35, 82;
great hall (7), 12-14, 19, 24, 81;
ḥammâm, 37;
imperfect seclusion of ḥaram courts, 166;
inner walls and towers, 33;
mosque, 16-19, 150;
name of, 162;
north annex, 36, 37, 60;
north gate tower, 9, 10, 19, 21;
outer walls and gates, 4-9, 34, 78, 81;
palace yard, 5, 14, 20, 32, 33, 34;
passages 5 and 6 pp. 10, 14, 16, 34;
room 4, p. 9;
rooms 29-42, pp. 26-9, 34, 35, 82;
three-storied block, 14-23, 24, 25, 32, 33, 81, 117.
underground rooms, see serdâb.
‘uqûd, 148.

V
vault, 8, 9, 10, 13, 14, 15, 16, 19, 20, 21, 22, 23, 26, 27, 28, 29, 30, 31, 32, 33, 34, 35, 36, 37, 39, 41, 42, 48, 49, 50, 51, 72, 73, 75, 82, 83, 95, 112, 115, 143, 144, 150, 155, 160, 165, 166;
at Hatra, 70-3;
construction, 9, 10, 13, 14, 19, 43, 118;
elliptical, see (vault) ovoid;
flattened, 22;
groined, 29, 33, 35, 73, 97, 111, 112, 120, 166;
history of, 68-70;
intersection, avoided, 9, 17, 29, 53, 73;
introduction of changes plan, 66;
on columns, 71-2, 78;
over inclined plane, 7, 16, 46, 97;
oversailing, 9, 43, 45, 52, 70, 79, 118;
—imitation of, 27;
ovoid, 31, 52, 71, 76, 165;
pointed, 45, 50, 165;
pointed and oversailing, 8, 9, 14, 16, 17;
segmental, 28;
stilted, 13, 70;
want of skill in Sasanian, 97.
Via Praetoria, 98, 103, 121;
Principalis, 98, 121;
Quintana, 98;
Sagularis, 98.
Viceroys of ‘Irâq, 168.
vine motive, 141.

W
wall, buttressed, 131;
construction, 6, 38, 45;
outer, angle sliced off, 39, 54;
unbroken face, 126, 131.
ward, 17.
water basin in mosque, 151.
windows in drum of dome, 79, 111.
wooden beams, in wall, 6, 12, 13, 95;
under vault, 9, 17, 18, 21, 32, 34, 36, 37, 39.

Z
ziggurat, 92.
zigzag motive, 17, 27, 38, 40, 116, 140.
ziyâdah, 156.
ẓullah, 148, 150.

{173}

INDEX OF NAMES

A, B, C, D, E, F, G, H, I, J, K, L, M, N, O, P, Q, R, S, T, U, V, W, X, Y, Z

A
Abbâs, Abu, 75 n.
‘Abdeh, 103, 112.
Absalom, tomb of, 128 n.
Abydos, 70 n.
‘Adhrâ, the, church of, 133 n.
‘Adi ibn Zaid, 57, 59.
Africa, 98 n., 110;
North, 98, 99, 152.
Ahwâz, Djebel, 148, 149, 160.
‘A’ishah, 146.
Akbar’s mosque, 139.
Akeldama, tomb of, 72.
Alabanda, 128 n.
Aleppo, ix, x, xi, 58, 126.
Alexander, Emperor, 69, 119;
his invasion, 63.
Alexandria, 125, 127, 129, 152.
‘Ali, 167, 168.
Alinda, walls of, 108.
Alkader, see el-Chader.
Alyattes, tumulus of, 96.
Ammân, 118 n., 140.
‘Amr ibn al-’Âṣ, 146 n., 148, 149;
his mosque, 149, 150, 151.
‘Amrah, Qṣair, 56, 111, 112, 114, 118, 142, 162.
Amrân mound, 65.
‘Ânah, ix.
Anatolia, Central, 138.
al-Anbâr, 43 n., 57 and n., 164, 167.
Anderîn, 105.
Andrae, Dr. Walther, v, 66 n., 69 n., 73 n., 90, 91, 92 n., 93 n., 94 n., 106 n., 107 and n., 137, 141 n., 143 n.
Antioch, 57, 65, 119, 120 n., 121, 124.
Anu-Adad, 93.
Aosta, 109, 128, 136.
Apamea, 98 n., 120 and n., 126.
Aqṣâ, the, mosque of, 145, 151, 152.
Arabia, vii, 127.
Arabia Petraea, 98.
Ardashir I., 74 n.
Ardeshîr Bâbagân, 91.
Argos, 96.
Asarhaddon, 62, 108.
al-’A’shâ, 145 n.
al-’Âshiq, 86, 132 n.
Asia, 65, 69, 87, 142;
South-west, 126;
Western, 63, 68, 123, 124, 126, 135.
Asia Minor, 73, 78, 96, 108.
‘Asîleh, wells, 1.
Aslâm, see ‘Aṭshân.
Assos, 109.
Assur, 65, 66, 68, 93, 94 n., 96 n., 106 and n., 107, 140, 141 n.
Assyria, 62 n., 65, 68, 74, 78, 93, 122, 123, 140, 142.
al-Aswad ibn Ya’fur, 57 n.
Athenaeus, 128 n.
Athens, 66 n., 124.
al-Athîr, Ibn, 3 n., 162 and n., 164 n.
‘Atîl, 126.
‘Atiyyah, 58.
‘Aṭshân, Khân, viii, 2, 3 and n., 40-3, 162 and n.
Attalus, 124.
Austria, 98.
Autun, 109.
Ayyûbid Ghâzi, 159, 160.
al-Azîz ibn Marwân, ‘Abd, 149.
al-Azraq, Qaṣr, 56, 111.

B
Ba’albek, 126, 152 and n.
Bâbisqâ, 132 n.
Babylon, xi, 65 and n., 68, 69, 70, 76, 87, 93, 96, 119.
Babylonia, 64, 65, 74, 78, 94, 96, 142.
Bacon, 109 n.
Baghdâd, ix, 5, 40, 58, 66, 72, 79, 121, 141, 143 n., 150, 154, 157, 158, 167.
Baḥr Nedjef, see Nedjef.
Bahrâm V Gûr, 57, 59, 74 n.
el-Baḥri, see Dair el-Baḥri.
al-Baiḍâ, see Khirbet al-Baiḍâ.
Bait al-Khalîfah, see al-Khalîfah.
Balâdhuri, 74 n., 147 and n., 148 and n., 149, 153, 162.
Balkuwârâ, 84, 85, 86, 87, 117, 121, 138, 157, 164.
Ballu, 98 n.
Bâqirḥâ, 126.
Bashmishli, 132 n.
Baṣrah, ix, x, 58, 146, 149, 150, 158, 168.
Bassora, see Baṣrah.
Baṭûṭah, Ibn, 56, 58, 75 n.
Becker, Prof., 17 n., 112 n., 146 n., 147 and n., 149 n., 150.{174}
Beduin, tribe, 5.
Bel, temple of, 122.
Bell, Miss G. L., xi, 40 n., 56 n., 57 n., 59 n., 70 n., 71 n., 73 n., 78 n., 86 n., 132 n., 133 n., 138 n., 143 n., 153 n., 154 n., 165 n., 166 n.
Benndorf, 108 and n.
Berlin, xii, 115, 118 n.
Bethlehem, 117.
Binbirklisse, 73 n.
Bishr (son of ‘Âdah son of ‘Îsâ son of ‘Umar), 161.
Bîsutûn, 134.
Blanchet, 103 n., 109 n., 110 n.
Boghâz Keui, 93 and n., 108, 122.
Bosco, R. Velazquez, xii, 143 n.
Boscoreale, 125, 127, 128 n.
Boṣrâ, 98 n., 120.
Bostân, 41 n.
Britain, 98 and n.
British Museum, 76, 123, 132 n.
Bruce, 98 n.
Bruckmann, xii.
Brünnow, Prof., xii, 98 n., 100, 101, 102, 103 n., 104, 105, 106 n., 110 n., 117 n., 118 and n., 126 n., 127 n., 128 n., 129, 135 n.
Bruno, 56 n.
Bryas, 121.
Bshair, 103, 104.
Bulard, 124 n.
Burdân, Wâdi, 1.
Burgess, 72 n., 73 n.
Bury, 121 n.
Butler, 72 n., 98 n., 105 n., 111 n., 112 n., 126 n., 132 n., 133 n., 135 n., 138 n., 139 n., 165.
Byzantium, 97, 109, 110.

C
Cagnat, 98 n., 99 n.
Cairo, 92 and n., 141, 144, 156.
Carchemish, 122.
Caria, 108.
Carmichael, Mr., x.
Carnuntum, 100.
Carthage, 109.
Casr Chaider, ix.
el-Chader (Ukhaiḍir) Ras el-’Ain, x, xi, 58.
Chaitya Cave, 123 n.
Chaldaea, 70 n., 106, 122, 123.
Chehâr Qapû, 44, 45, 51-4, 90, 92, 94, 115.
Chipiez, 65 n., 68 n., 70 n., 75 n., 78 n., 93 n., 94 n., 106 n., 108 n., 109 n., 122 n., 123 n., 128 n., 140 n.
Chiusi, 69 n., 166.
Choisy, 68 n., 69 n., 70 n., 109 n.
Chosroës, the, 59, 80, 94, 120, 148, 149.
Chosroës II, 44.
Clarke, 109 n.
Constantine, Emperor, 117, 121.
Constantinople, vii, xi, 121, 151.
Corbett, 146 n., 149 n.
Cordova, 152.
Corinthian tomb, 128, 135.
Coste, 74 n., 76 n., 78 n., 79 n., 106 n., 107 n., 137, 165 n.
Cramer, 110 n.
Ctesiphon, vii, 57, 59, 66, 70, 75, 77, 94, 95, 115, 119, 120, 122, 129-32, 134-8, 165, 166.
Curie, 98 n.

D
Ḍaba, Djebel, 2, 3.
Da’djaniyyeh, 102, 103, 116.
al-Dair, 128 and n., 129.
Dair al-Kafh, 104.
Dair el-Baḥri, 70 n.
Dalman, 126 n.
Damascus, 55, 66, 101, 119, 120 and n., 126, 147, 151, 152, 154, 158, 162, 164 n., 167.
Dânâ, 126.
Darius, King, palace of, 63, 64, 76.
Dastadjird, 60, 107 n., 120.
Daumet, 138 n.
Dead Sea, the, 97.
De Beylié, 142 n., 143 n.
De Goeje, 3 n., 57 n., 147 n., 167 n.
Delbrück, Prof., 68 n., 69 n., 70 n., 72 n., 73 n., 96 n., 123, 124 and n., 125 and n., 127 n., 132 n., 136 n., 166 n.
Della Valle, ix.
Delos, 65 n., 68 n., 87, 124.
De Meynard, Barbier, 59 n., 167 n.
De Morgan, M., xii, 80 n., 134.
Dereh Shah, 80 n.
De Sarzec, 78 n., 87 n., 122 n., 142.
De Vogüé, 56 n., 72 n., 73 n., 84 n., 111 n.
Dibs, Abu, 1, 2, 3, 168.
Dieulafoy, M., xii, 53 n., 65 n., 68 n., 71 n., 72 n., 74 n., 75, 76 n., 77, 78 n., 79 and n., 81 n., 90, 91, 92 and n., 95, 96 n., 106 n., 107 and n., 118 n., 122 n., 130, 134 n., 140 n., 143 n., 157, 165 n.
Diocletian, Emperor, 56, 103, 109, 110, 121.
Diodorus, 69 n.
Diyârbekr, viii, 120, 132, 154, 158, 159.
Djabala ibn al-Ḥârith, 110.
Djâbiyah, 56 n.
Djaulân, the, 56.{175}
Djôf, 5, 167.
Djôfîyîn, the, 5.
Djûr, 91, 92.
Domaszewski, 98 n., 102, 103 n., 106 n., 110 n., 117 n., 118 and n., 126 n., 127 and n., 128 n., 135 n.
Dulaf, Abu, mosque of, 144, 154, 155, 156, 158.
Ḍumair, 101, 102, 103 and n., 110.
Durm, 65 n., 66 n., 70 n., 89, 108 n., 109 n., 124 n.
Dussaud, 56 n.

E
Ebersolt, 121 n.
Ecbatana, 123 n.
Egypt, vii, 68, 70 n., 72, 96, 106, 123, 124, 127 n., 142, 146, 147.
Epaminondas, 109 n.
Ephesus, 109, 125, 132 n.
Euphrates, river, x, xi, 1, 56, 57.
Euphrates road, 43 n.
Europe, 101, 110, 142.
Evans, Sir Arthur, 70 n.

F
Fars, 79, 80, 96, 143 n.
Fatehpur Sîkrî, 139.
Ferâshâbâd, 78.
Fergusson, 41 n., 72 n., 73 n., 123 n., 139.
Firûzâbâd, 53 n., 73, 74 and n., 76-80, 82, 83, 86, 91, 95, 119, 134, 136, 137, 143, 165.
el-Fityân, see Khirbet el-Fityân.
Flandin, 74 n., 76 n., 78 n., 79 and n., 106 n., 107 n., 137, 165 n.
Flavians, the, palace of, 120.
Flavius Silva, 97.
Franks, the, 110.
Fréjus, 109.
Fusṭâṭ, 146 n., 148, 149, 150.

G
Garstang, Prof., 60 n.
Gaul, 104 n., 110.
Gebhardt, Messrs., xii, 89.
Germany, 98.
Ghadaf, Wâdi, 111, 112.
Ghassânids, the, 56.
Ghazni, towers, 41.
Gsell, 98 n.
Gudea, 106, 122.

H
Ḥabbâniyyeh, 1, 2, 3.
al-Ḥadjdjâdj, 43 n., 148, 162 n., 164, 168.
Hadrian, Emperor, 97, 98.
Ḥakh, 133 n.
al-Ḥâkim, 158.
Halicarnassus, 124.
Ḥamâd, Khân, 2.
Hammâd, Bani, the, fortress of, 142.
Ḥamrath, tomb of, 126.
Hamza al-Iṣfahâni, 110.
Ḥanbal, Ibn, 55 n.
Hanging Gardens, the, 69 n.
Harbâ, 143 n.
Ḥarrân, 132, 152, 153, 158.
Ḥarûn al-Rashîd, 165, 167, 168.
Ḥasan, Bani, 3, 57, 58.
Ḥasan Kaif, 133, 143, 160.
Hâshimiyyeh, 167.
Hatra, 66, 67, 69-72, 75, 78, 82, 87, 88, 90-2, 94-6, 107, 119, 136-8, 141 n., 143.
Hatti, 60 n.
Hauqal, Ibn, 142 n.
Ḥaurân, the, 56, 98 n., 138.
Ḥaurân, Wâdi, 1.
Haush Quru, 80 n.
Haverfield, Prof., xii, 99.
Hazâr Dâr, 80 n.
Heberdey, 125 n.
Ḥedjr tombs, 127, 128.
el-Heiadîe, see Ṭuqṭuqâneh.
Heraclius, 120.
Herodotus, 90, 92.
Herzfeld, Dr., xii, 58, 60 n., 62 n., 65 n., 74 n., 80 n., 84, 85, 86 and n., 94 n., 105 n., 107 n., 110 n., 117, 118 n., 121 n., 123 n., 130 n., 132 n., 134 n., 135 n., 136, 138 and n., 140 n., 141 n., 143 n., 151 n., 153 and n., 154, 155, 156 and n., 157, 159, 160 n., 165 and n., 166 n.
Hêt, see Hît.
Heuzey, 78 n., 87 n., 122 n., 138 n.
Ḥidjâz, 167.
Hidjrah, the, 55.
Hilprecht, 65 n., 107 n., 122 n.
Hindiyyeh, the, 2, 39, 41, 56, 57.
al-Ḥîrah, 56-9, 86, 87, 148, 168.
Ḥishâm, 168.
Hît, x, xi, 43 n.
Hittorff, 128 n.
Ḥiyyadhiyyeh, 58.
Hogarth, Mr., 122.
Holman, Messrs., xii, 66.
el-Hossian, 58.{176}
Housesteads, 99.
Humann, 125 n.
Hurairah, Abu, 166.
Hyginus, 98.

I
Iassos, 108.
Ibrahîm ibn Salamah, 74 n.
Inaldi, Inalid, 158 n.
India, 72, 73, 137.
‘Irâq, 162 n., 167, 168.
‘Îsâ ibn ‘Ali ibn ‘Abdallâh, 164, 168.
Iṣfahân, 41 n., 134.
Isriyyeh, 126.
Iṣṭakhr, 107 n.
Italy, 68, 128.
Ives, x.
‘Izziyyeh, 58.

J
Jacobi, 98 n.
Jaussen, 126 n., 127 n.
Jerusalem, 72, 128, 145, 146.
John of Ephesus, 56 n.
Jordan, Dr., 122.
Joshua the Stylite, 56.
Jupiter, 91.
Justinian, Emperor, 57, 117, 119, 145.

K
Ka’bah, the, vii, 145.
al-Kahf, see Dair al-Kahf.
Karkh, 94, 95, 139.
Kayder, see el-Chader.
Kerbelâ, 1, 2.
Kerbelâ-Nedjef road, 2, 3 n.
Kerîm Khân, 79;
his brother, 80 n.
Kerkûk, 40, 71, 134.
Kfair, 132 n.
Khader, see el-Chader.
al-Khaḍrâ, see al-Qabbet al-Khaḍrâ.
Khâlid ibn ‘Abdallâh, 168.
Khâlid ibn al-Walîd, 3.
al-Khalîfah, Bait, 86, 138, 144.
Kharâneh, 39, 78, 82, 111, 114-18, 120, 162, 166.
Khâṣakî Djâmi’, the, 141.
Khawarnaq, 56, 57, 75 n., 87, 119, 162.
Khazneh, the, 128 and n., 135.
al-Khernîna, Khân, 143 and n.
al-Kherr, Wâdi, 58 n.
Khirbet al-Baiḍâ, 56, 106.
Khirbet el-Fityân, 102 n.
Khodja ‘Alam, 41 n.
Khorsâbâd, 68, 81, 92, 93, 94, 106 and n., 122, 123.
Khurâsân, the, 74 n.
Khusrau I, 57, 119.
Khusrau II Parwêz, 59, 74 n., 94.
Khusrau, palace of, 44-51, 74, 79, 80, 81, 83, 84, 86, 87, 90, 92, 93, 119, 164.
Khusrau, Qal’a-i-, 60.
Knossos, 70 n.
Koepp, 97 n.
Koldewey, Prof., 61, 62 n., 65 n., 68 and n., 69 n., 76 n., 77 n., 87 n., 88, 92 n., 93 n., 94 n., 108 n., 109 n.
Kubaisah, xi.
Kûfah, x, 2, 3, 43 and n., 148-50, 158, 162, 164, 167, 168.
Kuhna, Qal’a-i-, 107 n.

L
Lagash, 106, 107.
Lambaesis, 99.
Lammens, 17 n., 55 n., 56 n., 111 n., 117 n., 145 n., 146 n., 147 n., 148 n., 162 n., 168 n.
Lanckoronski, 124 n.
Lane, 59 n.
Layard, 68 and n., 75.
Leachman, Captain, 162 n.
Ledjdjûn, 101, 102, 103 and n.
Leleges, wall of the, 108.
Le Strange, 40 n., 57 n., 58 n., 151 n., 167 n.
Littmann, Prof., xii, 161, 162.
Lixos, 109.
Loftus, 65 and n., 90, 122, 140 n.
Lyall, Sir Charles, xii, 22 n., 56 n., 57 n., 145 n.
Lyell, 98 n.
Lynch, 135 n.
Lysimachus, 109.

M
Macmillan, Messrs., xii.
Madâin Ṣâliḥ, vii, 126-8, 135, 138, 142, 145 n.
Madjḍah, see Mudjḍah.
Magnesia, 124, 125 n.
al-Mahdi, 151.
Maḥmûd of Ghazni, 41.
Makhḍah, see Mudjḍah.
Makrîsi, 147 n.
al-Malik, ‘Abd, 151.
Maṇsûr, 150, 151, 153, 154, 157, 158, 164, 165, 167.
Mantineia, 109.
Maqrîzi, 151.
Marçais, 152 n.
Marmora, sea of, 121.
Marwân, 147, 149, 168.
Masada, 97.{177}
Massignon, M., xi, 31 n., 38 n., 39 n., 40 n., 57 n., 58 n., 161.
Mas’ûdi, 58, 86, 87, 118.
Mau, 72 n.
Mauritania Tingitana, 109.
Maximian, Emperor, 56.
Mayâfârqîn, viii, 132, 153, 159, 166.
Media, 62 n.
Medînah, 145-52, 158, 168.
Medînat al-Zahrâ, palace of, 143.
Medinet Abu, 70 n.
Mediterranean coast-lands, the, 64.
al-Mehdiyyeh, gates of, 142.
Meissner, 56 n.
Mekkah, vii, 120, 145-8, 150, 167.
el-Melfûf, see Ridjm el-Melfûf.
Memphis, 72.
Menâr, the, palace of, 142.
Merchel, 109 n.
Merkes, the, 65 n., 76.
Meshed ‘Ali, see Nedjef.
Mesopotamia, 12, 16 n., 38, 66, 68, 70, 71, 75, 76, 79, 88, 96, 97, 115, 124, 130, 133, 137, 141, 143, 144, 146, 152, 156, 158, 165, 166;
Northern, 71, 75, 141 n.;
Southern, 28.
Mesopotamian plain, 60.
Messene, 109 and n.
Michael II, 121.
Michaelis, 122 n.
Miletus, 124, 125.
Mommsen, 101 n.
Moritz, Dr. B., xii, 111 n., 114 n., 115, 161, 167.
Môṣul, 133, 160.
Mount Eryx, 108.
Mshaiyesh, 111 n.
Mshattâ, 111, 113, 117, 118 and n., 120, 133 n., 135, 138, 139, 141, 142, 162, 165.
Mu’âwiyah, 148, 168.
Mudjḍah (Madjḍah, Makhḍah), viii, 2, 3, 39-41, 43, 162.
Mughair, 70 and n.
Muḥaiwir, 1.
Muḥammad, 145, 146, 147, 161.
Muhtadi, 165 n.
al-Mundhir, 56, 148.
Munich, 133 n.
Muntaṣir, 165 n.
Muqaddasi, 3, 58, 151, 153.
Muqâtil ibn Ḥasân ibn Tha’labah ibn Aus ibn Ibrâhîm ibn Ayyûb ibn Madjrûf ibn ‘Âmir ibn ‘Uṣayyah ibn Imra’al-Qais ibn Zaid Manât ibn Tamîm, 162.
al-Muqâtil, Qaṣr, 162, 164, 168.
Mûsâ, Abu, 148.
Muṣallâ, Khân, 57.
Mushennef, 126.
Musil, Prof., 2 n., 55 n., 58 n., 103 n., 111 and n., 112 n., 113, 114 and n., 115, 116 and n., 117 n., 162 n.
Musmiyyeh, 72.
al-Mustanṣir, 143 n.
Mustanṣiriyyeh, the, 40, 143 n.
Mustaufi, 58.
Mutawakkil, 58, 59, 86, 121, 154.
Mu’tazz, 165 n.
Muwaqqar, 110, 135.
Mycenae, 96, 108, 120.

N
Nabataean tombs, 127 n., 128.
Nâṣiri Khusrau, 159 n.
Naṣr, Banû, 58.
Nassick, 123 n.
Nebuchadnezzar, palace of, 70, 93, 96.
Nedjd, 5.
Nedjef, ix, x, 3 n., 40, 57, 58, 167.
Nedjef, Bahr, 56, 57, 58, 164, 167.
Nereids, the, monument of, 108.
Nero, Emperor, 72.
Nicephoricum-Callinicum, 153.
Niebuhr, x, 58 n.
Niederberg, 100 n.
Niederbieber, 100 n.
Niemann, 108 and n.
Niffer, 65 and n., 66, 87, 89, 107, 119, 122.
Nimrûd, 93.
Nöldeke, 56 n., 57 n., 96 n., 112 n.
Novaesium, 100.
Nu’mân III, King, 59.
Nu’mân ibn Mundhir, 56.
Nu’man ibn Imra’ al-Qais, 57.
Nu’mânid, 120.
Nûr al-Dîn, 153, 154, 158, 160 (Maḥmûd).

O
Odhruḥ, 98-103, 110.
Oppenheim, Baron, 60 n., 123.
Orontes, the, 64, 108.
Orthma, Khân, 72.
Ortokid Alpi, 159.

P
Palatitza, 138 n.
Palmyra, 101, 126.
Parwêz, see Khusrau II Parwêz.
Pasargadae, 62, 63, 96, 119, 123 n.
Pergamon, 66 n., 69 n., 73 n., 89, 124, 125 n.{178}
Perge, 124, 125.
Perrot, 65 n., 68 n., 70 n., 75 n., 78 n., 93 n., 94 n., 106 n., 108 n., 109 n., 122 n., 123 n., 128 n., 140 n.
Persepolis, 63, 64, 76 and n., 80, 119.
Persia, 65, 71, 73, 74, 110, 123, 137, 140, 168.
Persian Gulf, the, 1.
Perugia, 136.
Petra, vii, 97, 126-9, 135, 136, 138, 142.
Philon of Byzantium, 109.
Pinara, 108.
Place, 68 and n., 94 and n.
Polybius, 98.
Pompeii, 72, 87, 124;
Oscan, 124.
Praeneste, 125 n.
Preusser, Dr., 152.
Priene, 87, 88, 124, 125 and n., 126.
Princeton Expedition, the, 111.
Probus, 110.
Promis, 109 n., 136 n.
Ptolemy Philadelphos, 124 n., 128 n.
Puchstein, 62 n., 93 n., 108 n., 123 n., 126 n., 127 and n., 128 n.
Pydnai, 108.

Q
al-Qabbet al-Khaḍrâ, 162 and n.
Qadesh, 108.
Qâdisiyyeh, 58, 162, 167.
Qairawân, 152.
Qalb Lôzeh, 132 n.
Qanawât, 126.
‘al-Qâsin ‘Ali, Abu, 158 n., 159 n.
Qaṭal, 103-6, 110-13, 118, 120.
Qṣair, viii, 1, 38-9.
Qṣair ‘Amrah, see ‘Amrah.
al-Quṭquṭâneh, 162, 164.
Quyundjik, 75, 76, 77, 90, 93, 94, 123.

R
Raḥḥâliyyeh, 1.
Ramâdi, 2.
Rameses II, 108.
Ramsay, 73 n., 78 n., 138 n.
Raqqah, 138, 142, 153, 154, 158, 165, 166, 168.
Râs al-’Ain, 60 n., 123.
al-Rasâs, Umm, 106.
Rashîd, 167.
Reuther, Dr., xi, 6-36 passim, 82 and n., 83, 131, 132 n., 136-40, 166.
Rhages, 41 n.
Rḥaibeh, 112.
Ridjm el-Melfûf, 70 n.
Rimini, 128.
Ritter, xi.
Roderick, King, 112.
Rome, 72, 73, 95, 110, 126.
Rothstein, 57 n., 59 n.
al-Ruḥbân, 57.
Ruḥbeh, 58 and n.
Ruḥeimeh, 58 n.
Rûm, 120.
Ruṣâfah, 150.

S
Saalburg, the, 98 n.
Sachau, 152 n.
Sa’d ibn abi Waqqâs, 148.
al-Sadîr, 57.
Ṣaffâh, 167.
Sa’îd ibn ‘Âmir ibn Ḥudhaim, 153.
St. Petersburg, 133.
Sais, Djebel, 56, 111.
Sakcheh Geuzu, 60 n., 122.
Saladin, M., x n., 152 n.
Ṣalâḥ al-Dîn, 152, 153, 159.
Salamah, 74 n.
Salmanassar III, 106 n.
Salmon, 154 n.
Sâl Nâmeh, 58.
Sâmarrâ, 58, 70 n., 84, 87, 92, 93, 121, 132 and n., 135, 138, 140-4, 151, 156-8, 164-6.
al-Ṣarakh, Ḥammâm, 111, 112, 165.
Sardis, 96.
Sargon, palace of, 68, 81, 94, 122.
Sarre, Prof., xii, 41 n., 60 n., 65 n., 74 n., 80 n., 84, 94 n., 107 n., 130 n., 143 n., 153 n., 154 n., 160 n., 166 n.
Sarvistân, 53 n., 71, 74 and n., 78-80, 82, 84, 92, 115, 118 n., 119, 134, 136, 137, 165.
Saudâ, 146.
Savignac, 126 n., 127 n.
Sbai’i, Bir, 2.
Schefer, 159 n.
Schrader, 124 n.
Schreiber, 135 n.
Schultz, 117 n., 118, 133 n., 138 n.
Schultze, 109, 136.
Seleucia, 65, 69, 70, 119.
Selinus, acropolis of, 109.
Septimius Severus, 69 n.
Sextius Florentinus, 128 n.
Shabîb, revolt of, 164 n.
Shahbâ, 126.
Shâhnâmah, the, 22 n.
Shakhârîz, 2.
Shammar, tribe, 2.
Shamshi-Adad, 93.{179}
Sham’ûn, Qaṣr, 59.
Shapûr I, 94.
Shapûr II, 57, 96.
Shaqqah, 73 n., 126, 139.
Shethâthâ, Shefâthâ, x, xi, 1, 2, 3 and n.
Shîrîn, Qaṣr-i-, viii, 44-54, 60, 70, 74 and n., 76, 79, 80 and n., 81, 82, 84, 86, 87, 90, 93, 94, 96, 105, 119, 120, 137, 164, 165.
Shirwân, 80 n., 134.
Shuhbâ, 98 n.
al-Shukâfa, Kôm, 135.
Sî’, 126, 138.
Sicily, 108, 109.
Sidi al-Ḥalwi, 152.
Sieglin, 135 n.
Sim’ân, Qal’at, 84 n.
Simbel, Abû, 108.
Sindâd, 57 n.
Sindjâr, Djebel, 143.
Sinimmâr, 57 and n.
al-Ṣinnîn, 57.
Sixtus of Bourbon, Prince, 58 n.
Ṣlaibiyyeh tomb, 165 n.
Slâm, Biyâr, 2.
Smith, George, 90.
Smyrna, 108.
Solomon’s temple, 94, 116.
Spain, 110, 143.
Spalato, 121.
Sprenger, 122 n.
Stockstadt, 100 n.
Stolle, 98 n.
Strabo, 69 and n., 91, 92.
Strzygowski, Prof., xii, 117 n., 133 n., 134 n., 135 n., 138 n., 152 n.
Studniczka, 128 n.
Ṣukhail, 5.
Ṣukhûr, the, 55, 118 n.
Sulâm, 162.
Sulṭan Khân, 78.
Sûq al-Ghazl, 40.
Susa, 63, 81 and n., 90, 96, 107.
Swaidâ, 126.
Syria, vii, 57, 66, 70, 72, 73, 97, 104, 116, 126, 133, 135, 139, 142, 143, 151, 152, 166;
Eastern, 98 n.;
Northern, 60, 75, 98 n., 132, 141 n.

T
Ṭabari, 57 n., 148 and n., 149 and n., 150 and n., 162.
Tâg-i-Îwân, 72 n.
Ṭahmâsgerd, Mâr, 71, 134, 140.
Takhmâ al-Asadi, Ibn, 164.
Takht-i-Mâder-i-Suleimân, 96.
al-Tamr, ‘Ain, 2, 3, 40, 43 and n., 59.
Taposiris Magna, 124 n.
Tâq-i-Girrâ, 166.
Ṭâr, the, 162 and n.
Ṭâûq, 40.
Tavernier, ix, x n.
Taylor, Major John, x.
Ṭayy, the, 59.
Teano, 56 n., 145 n., 146 n., 147 n., 148 n., 149 n., 151 n.
Teixeira, Pedro, ix, xi.
Tekrît, 140 n., 143.
Tellôh, 78, 87, 122, 142.
Texier, viii, 109 n.
Tha’labites, the, 56.
Thapsus, 109.
Theophilus, 121.
Thiersch, Prof., 92 n., 124 n., 128 n., 151 n.
Thomas, Félix, 68.
Tigris, the, 64, 69, 84.
Tilimsân, 152.
al-Tiqtaqa, Ibn, 143 n.
Tiryns, 65 n., 108, 120.
Tornberg, 3 n.
Trajan, Emperor, 69 n., 98, 110.
Trajan’s camp, 101.
Troy, 108, 120.
al-Ṭûbah, 111-14, 116-18, 120, 165.
Ṭulûn, Ibn, mosque of, 92 n., 135, 142-4, 156, 158.
Tunis, 142, 152.
Ṭaquṭqâneh (el-Heiadîe), 58 and n., 162.
Tyre, 109.
Tzâriq, 57 n.

U
al-Ubaiḍ, Wâdi, 1, 2, 3, 5, 162, 168.
Ukhaiḍir, passim;
see also el-Chader.
Ulu Djâmi’, 132 n.
‘Umar, 147-51.
‘Umar ibn ‘Abd al-Azîz, 147.
Umtâ’iyyeh, 133 n.
‘Uthmân, 147.
al-’Uzza, ‘Abd, 57 n.

V
Van Berchem, M. Max, 133 n., 143 n., 152 n., 154, 160.
Veramîn, 41 n.
Vespasian, Emperor, 97.
Vienna, xii.
Viollet, M., 16 n., 86, 156 n.
Vitruvius, 109, 128.{180}

W
Walîd (son of Yazîd ibn ‘Abd al-Malik), 110.
al-Walîd, Umm, 106.
Walîd ibn ‘Abd al-Malik, 147, 148.
Wardân, Qaṣr ibn, 105, 112, 165.
Warka, 65, 90, 122, 140, 141 n., 142 n.
Wâsiṭ, 162 n.
Weissenberg, 99 n.
Wellhausen, 146.
Wetzel, Dr., 16 n.
al-Weyned, 111 n.
Wiegand, 124 n.
Wiesbaden, 99.
Willcocks, Sir William, 1 and n.
Wizikh, 2.
Wright, 56 n.
Wüstenfeld, 3 n., 147 n.
Wuswas, 122, 142 n.

X
Xanthos, 108.
Xeque Mahamed Eben Raxet, ix.
Xeres, battle of, 112.
Xerxes, 63.

Y
Yamanlar Dâgh, the, 108.
Ya’qûbi, 167 and n.
Yâqût, 3, 110, 147 n., 162 and n., 164 and n.
Yazdegerd I, King, 57.
Yazîd ibn ‘Abd al-Malik (Yazîd II), 110, 117.
Yazîd III, 111, 162 n.
Yûsuf ibn ‘Umar, 162 n., 168.

Z
al-Zahrâ, see Medînat al-Zahrâ.
al-Zaitûn, Umm, 73 n.
Zaitûnah, the, 152.
Zaqârît, sub-tribe, 2, 5.
al-Zebîb, Khân, 106.
Zindjirli, 60 and n., 61, 62 n., 63, 107, 109, 119, 122.
Ziyâd ibn Abîhî, 17 n., 146 n., 148, 149, 168.
Zohâb, 105, 120.
Zugmantel, 100 n.
Zûrah, 164.

{181}

{182}

{183}

{184}

{185}

Plate 3

Fig. 1. Ukhaiḍir, first floor of palace.

Fig. 2. Ukhaiḍir, second floor of palace.

{186}

{187}

Plate 6 Ukhaiḍir, map of site.

Fig. 1. Ukhaiḍir from north-east.

Fig. 2. Ukhaiḍir, central court, from south.

{188}

{189}

Plate 7

Fig. 1. Ukhaiḍir, south-east angle of palace yard.

Fig. 2. Ukhaiḍir, north-east corner.

{190}

{191}

Plate 8

Fig. 1. Ukhaiḍir, south-west corner.

       

Fig. 2. Ukhaiḍir, detail of tower chamber.

Fig. 3. Ukhaiḍir, decoration on north wall.

{192}

{193}

Plate 9

Fig. 1. Ukhaiḍir, south gate, interior.

Fig. 2. Ukhaiḍir, south gate, exterior.

{194}

{195}

Plate 10

Fig. 1. Ukhaiḍir, chemin de ronde of east wall, looking north.

Fig. 2. Ukhaiḍir, north façade, showing loopholes of chemin de ronde.

{196}

{197}

Plate 11

Fig. 1. Ukhaiḍir, north façade.

Fig. 2. Ukhaiḍir, north gate.

{198}

{199}

Plate 12

Fig. 1. Ukhaiḍir, room 1, looking north.

Fig. 2. Ukhaiḍir, room 88, south-west end of vault.

{200}

{201}

Plate 13

Fig. 1. Ukhaiḍir, room 4, north-east portion of dome.

Fig. 2. Ukhaiḍir, room 4, south-west portion of dome.

{202}

{203}

Plate 14

Fig. 1. Ukhaiḍir, great hall, looking south.

Fig. 2. Ukhaiḍir, vault of great hall, looking south.

{204}

{205}

Plate 15

Fig. 1. Ukhaiḍir, great hall, west side.

Fig. 2. Ukhaiḍir, great hall, door of south-west stair.

{206}

{207}

Plate 16

Fig. 1. Ukhaiḍir, great hall, looking north.

Fig. 2. Ukhaiḍir, vault of south-west stair out of great hall.

{208}

{209}

Plate 17

Fig. 1. Ukhaiḍir, corridor 5, looking west.

Fig. 2. Ukhaiḍir, north end of corridor 20.

{210}

{211}

Plate 18

Fig. 1. Ukhaiḍir, south wall of mosque.

Fig. 2. Ukhaiḍir, miḥrâb.

{212}

{213}

Plate 19

Fig. 1. Ukhaiḍir, east side of mosque.

Fig. 2. Ukhaiḍir, east side of mosque, north end.

{214}

{215}

Plate 20

Fig. 1. Ukhaiḍir, south-east angle of mosque.

Fig. 2. Ukhaiḍir, south-west angle of mosque.

{216}

{217}

Plate 21

Fig. 1. Ukhaiḍir, door of mosque.

Fig. 2. Ukhaiḍir, north end of gallery 108.

{218}

{219}

Plate 22

Fig. 1. Ukhaiḍir, north-east angle of court A.

Fig. 2. Ukhaiḍir, corridors 28 and 102 from corridor 100.

{220}

{221}

Plate 23

Fig. 1. Ukhaiḍir, court H

Fig. 2. Ukhaiḍir, second story, rooms 119, 120, and 121, from east.

{222}

{223}

Plate 24

Fig. 1. Ukhaiḍir, second story, rooms to south and east of court.

Fig. 2. Ukhaiḍir, second story, showing doors of 132, 137, and 117.

{224}

{225}

Plate 25

Fig. 1. Ukhaiḍir, gallery 134.

Fig. 2. Ukhaiḍir, squinch in north-west angle of gallery 134.

{226}

{227}

Plate 26

Fig. 1. Ukhaiḍir, north-west angle of central court.

Fig. 2. Ukhaiḍir, east door and south-east end of central court.

{228}

{229}

Plate 27

Ukhaiḍir, central court, east side of north façade.

{230}

{231}

Plate 28

Fig. 1. Ukhaiḍir, south-east angle of central court.

Fig. 2. Ukhaiḍir, fluted semi-dome, south-east angle of central court.

{232}

{233}

Plate 29

Fig. 1. Ukhaiḍir, room 29 and south side of central court.

Fig. 3. Ukhaiḍir, south side of central court, door into room 42.

Fig. 2. Ukhaiḍir, south side of central court, showing door of room 31.

{234}

{235}

Plate 30

Fig. 1. Ukhaiḍir, vault of room 31.

Fig. 2. Ukhaiḍir, room 31, showing decoration in top of vault.

{236}

{237}

Plate 31

Fig. 1. Ukhaiḍir, south wall, east end of room 32.

Fig. 2. Ukhaiḍir, room 40 from room 30.

 

Fig. 3. Ukhaiḍir, south-west angle of passage 36.

{238}

{239}

Plate 32

Fig. 1. Ukhaiḍir, room 33, north-west column.

Fig. 2. Ukhaiḍir, groin in north-east angle of corridor 28.

{240}

{241}

Plate 33

Fig. 1. Ukhaiḍir, court B, north-west angle.

 

Fig. 2. Ukhaiḍir, court B, eastern half of north façade.

Fig. 3. Ukhaiḍir, court C, north-west angle.

 

Fig. 4. Ukhaiḍir, court C, eastern half of north façade.

{242}

{243}

Plate 34

Fig. 1. Ukhaiḍir, south door of room 44.

 

Fig. 2. Ukhaiḍir, south doors of room 45.

{244}

{245}

Plate 35

Fig. 1. Ukhaiḍir, south side of court B.

Fig. 2. Ukhaiḍir, south-west angle of court H

 

Fig. 3. Ukhaiḍir, west end of room No. 78.

{246}

{247}

Plate 36

Fig. 1. Ukhaiḍir, door between rooms 44 and 45 from room 44.

Fig. 2. Ukhaiḍir, court C, south door of room 55.

{248}

{249}

Plate 37

Fig. 1. Ukhaiḍir, door from court C into palace yard.

 

Fig. 2. Ukhaiḍir, south-west corner of court E.

Fig. 3. Ukhaiḍir, south side of court H.

{250}

{251}

Plate 38

Fig. 1. Ukhaiḍir, from south-east corner of chemin de ronde.

Fig. 2. Ukhaiḍir, from east gate.

{252}

{253}

Plate 39

Fig. 1. Ukhaiḍir, south-west angle of court G.

Fig. 2. Ukhaiḍir, east annex, north-east end.

Fig. 3. Ukhaiḍir, east annex, from north.

{254}

{255}

Plate 40

Fig. 1. Ukhaiḍir, remains of stair.

Fig. 2. Ukhaiḍir, room 140.

{256}

{257}

Plate 41

Fig. 1. Ukhaiḍir, room 141, north-west corner of groin.

Fig. 2. Ukhaiḍir, east annex, from south.

{258}

{259}

Plate 42

Fig. 1. Ukhaiḍir, east annex from south, showing door of room 141.

Fig. 2. Ukhaiḍir, north annex, showing roof.

Fig. 3. Ukhaiḍir, north annex, detail of roof.

{260}

{261}

Plate 43

Fig. 1. Ukhaiḍir, north annex, from north gate.

Fig. 2. Ukhaiḍir, from north.

{262}

{263}

Plate 44

Fig. 1. Ukhaiḍir, north annex, from west.

Fig. 2. Ukhaiḍir, from north-west.

{264}

{265}

Plate 45

Fig. 1. Qṣair, interior, showing apse.

 

Fig. 2. Qṣair, detail of apse.

Fig. 3. Qṣair, exterior from south.

{266}

{267}

Plate 46

Fig. 1. Mudjḍah.

Fig. 2. ‘Aṭshân.

{268}

{269}

Plate 47

Fig. 1. Mudjḍah.

Fig. 2. Mudjḍah.

Fig. 3. Mudjḍah, detail of lower niches.

{270}

{271}

Plate 48

Fig. 1. Ṭâûq, minaret.

Fig. 2. ‘Aṭshân, from north-east.

{272}

{273}

Plate 49

Fig. 1. ‘Aṭshân, north gate, exterior.

     

Fig. 2. ‘Aṭshân, north gate, interior.

{274}

{275}

Plate 50

Fig. 1. ‘Aṭshân, rooms 2, 3, and 5, from north.

Fig. 2. ‘Aṭshân, rooms 5 and 8, from north.

{276}

{277}

Plate 51

Fig. 1. Palace of Khusrau, corridor 103, east side.

 

Fig. 2. ‘Aṭshân, west door of room 6, from west.

{278}

{279}

Plate 52

Fig. 1. ‘Aṭshân, room 8, from west.

Fig. 2. Palace of Khusrau, vault of room 71.

{280}

{281}

Plate 55

Fig. 1. Palace of Khusrau, east end of hall 3.

Fig. 2. Palace of Khusrau, west end of hall 3.

{282}

{283}

Plate 56

Fig. 1. Palace of Khusrau, vaulted ramp in corridor 12.

Fig. 2. Palace of Khusrau, court M, south antechamber, showing door leading into corridor 42.

{284}

{285}

Plate 57

Fig. 1. Palace of Khusrau, south-west corner of court M, showing corridor 42.

Fig. 2. Palace of Khusrau, east side of courts O and Q.

{286}

{287}

Plate 58

Fig. 1. Palace of Khusrau, west side of courts Q and S.

Fig. 2. Palace of Khusrau, south-west corner of court S.

{288}

{289}

Plate 59

Fig. 1. Palace of Khusrau, vault of room 73.

 

Fig. 2. Palace of Khusrau, corridor 43, looking west.

{290}

{291}

Plate 60

Fig. 1. Palace of Khusrau, court V, looking west.

Fig. 2. Palace of Khusrau, gateway between courts U and V, west arch.

{292}

{293}

Plate 61

Palace of Khusrau, gateway between courts U and V, south-east angle of room 82.

{294}

{295}

Plate 62

Palace of Khusrau, court W, with rooms 97 and 98.

{296}

{297}

Plate 63

Fig. 1. Palace of Khusrau, eastern double ramp.

Fig. 2. Palace of Khusrau, north buildings.

{298}

{299}

Plate 64

Qaṣr-i-Shîrin, Chehâr Qapû.

{300}

{301}

Plate 65

Fig. 1. Chehâr Qapû, interior of east gate.

Fig. 2. Chehâr Qapû, niche in room 8.

 

Fig. 3. Chehâr Qapû, squinch in room 6.

{302}

{303}

Plate 66

Fig. 1. Chehâr Qapû, niche in room 6.

 

Fig. 2. Chehâr Qapû, squinch in room 14.

{304}

{305}

Plate 67

Chehâr Qapû, court D and hall 54, from east.

{306}

{307}

Plate 68

Fig. 1. Chehâr Qapû, vault of room 31.

Fig. 2. Chehâr Qapû, squinch in room 39.

{308}

{309}

Plate 69

Fig. 1. Chehâr Qapû, hall 54, south-east corner.

Fig. 2. Chehâr Qapû, hall 54, squinch in south-west corner.

{310}

{311}

Plate 70

Fig. 1. Chehâr Qapû, hall 54, exterior of south door.

Fig. 2. Chehâr Qapû, hall 54, interior of south door.

{312}

{313}

Plate 71

Chehâr Qapû, hall 54, from south.

{314}

{315}

Plate 72

Chehâr Qapû, hall 54, from west.

{316}

{317}

Plate 73

Fig. 1. Qaṣr-i-Shîrîn, Qal’a-i-Khusrau.

(From M. de Morgan’s ‘Mission scientifique en Perse’.)

Fig. 2. Firûzâbâd.

(From ‘Voyage en Perse’: Flandin & Coste.)

{318}

{319}

Plate 74

Fig. 1. Sarvistân, small domed chamber.


(From L’Art antique de la Perse’, by kind permission of M. Dieulafoy.)

Fig. 2. Hatra, oversailing vault in main palace.

{320}

{321}

Plate 75

Fig. 1. Kerkûk, Mâr Ṭahmâsgerd.

 

Fig. 2. Hatra, vaulted passage in so-called temple.

{322}

{323}

Plate 76

Sarvistân

(From ‘Voyage en Perse’: Flandin & Coste.)

{324}

{325}

Plate 77

Sargon’s Palace at Khorsâbâd.


(From ‘Ninive’: Place.)

{326}

{327}

Plate 78

Fig. 1. Gate at Khorsâbâd.


(From ‘Ninive’: Place.)

Fig. 2. Ḍumair.


(From ‘Provincia Arabia’, by kind permission of Professor Brünnow.)

{328}

{329}

Plate 79

Fig. 1. Kharâneh.


(Phot. by Dr. Moritz.)

Fig. 2. Kharâneh, gateway.


(Phot. by Dr. Moritz.)

{330}

{331}

Plate 80

Fig. 1. Kharâneh, interior of court.

(Phot. by Dr. Moritz.)

Fig. 2. Kharâneh, interior of audience hall.

(Phot. by Dr. Moritz.)

{332}

{333}

Plate 81

Mshattâ.

(From ‘Mschattâ’, by kind permission of Professor Strzygowski.)

{334}

{335}

Plate 82

Fig. 1. Petra, Corinthian tomb.

Fig. 2. Petra, al-Dair.

{336}

{337}

Plate 83

Ctesiphon.

(From ‘L’Art antique de la Perse’, by kind permission of M. Dieulafoy.)

{338}

{339}

Plate 84

Fig. 1. Doorway of mosque, Ḥasan Kaif.

Fig. 2. Gateway of mosque, Ḥarrân.

Fig. 3. Mayâfârqin, north façade of mosque.

{340}

{341}

Plate 85

Ukhaiḍir, reconstructed north façade of central court.

{342}

{343}

Plate 86

Fig. 1. Parthian decoration, Assur.

Fig. 2. Sasanian silver dish (Hermitage, St. Petersburg, No. 2969).

(Phot. F. Bruckmann A.-G., Munich.)

{344}

{345}

Plate 87

Details of decoration from Medînat al-Zahrâ.

(By kind permission of M. Velazquez Bosco.)

{346}

{347}

Plate 88

Fig. 1. Djebel Sindjâr, khân.

Fig. 2. Ḥasan Kaif, mosque.

{348}

{349}

Plate 89

Fig. 1. Cairo, mosque of Ibn Ṭulûn.

Fig. 2. Mosque of Abû Dulaf.

{350}

{351}

Plate 90

Diyârbekr, Ulu Djâmi’.

{352}

{353}

Plate 91

Fig. 1. Cairo, mosque of Ibn Ṭulûn.

Fig. 2. Sâmarrâ, mosque.

{354}

{355}

Plate 92

Mosque of Ṣalaḥ al-Dîn, Mayâfârqîn.

{356}

{357}

Plate 93

Fig. 1. Diyârbekr, mosque, fragment of old wall.

 

Fig. 2. Mayâfârqîn, mosque.

FOOTNOTES:

[1] Travels into East India and Arabia Deserta, London, 1665, p. 263.

[2] Travels from India to Italy by Land, London, 1710.

[3] Les Six Voyages, t. i, liv. 2, ch. 3, p. 136, Paris, 1681

[4] M. Saladin quotes Tavernier’s words in L’Architecture Musulmane, p. 327.

[5] Reisebeschreibung, vol. ii, p. 225, note.

[6] Journey from India to Persia, London, 1773.

[7] Travels from England to India, vol. i, p. 243, London, 1779.

[8] Erdkunde, vol. xi, pp. 956, 1039.

[9] The height above sea-level is Sir W. Willcocks’s reduced level, arrived at by his own observations on the Persian Gulf. Sir W. Willcocks, The Irrigation of Mesopotamia, p. 15, Plate 2.

[10] Professor Musil, early in 1912, visited Ukhaiḍir and continued his journey south, parallel with the ṭâr which he names ṭâr al-Ṣeihed. Proceedings of the K. Akad. der Wiss. in Wien, No. 1, 1913, p. 10.

[11] When I was there in March 1911 many of the palm-trees had been killed, and the rest severely damaged by the snow which had fallen in January and February. In the memory of no living man had snow fallen in Shethâthâ, and the inhabitants, when they woke to find the ground covered with white, were at a loss to know what the strange substance could be. Some took it to be flour. Snow fell as far south as Nedjef, and in the desert round ‘Aṭshân, between Ukhaiḍir and the Kerbelâ-Nedjef road, it lay for some days. When I passed I saw each abandoned camping ground of the Bani Ḥasan marked by a ring of dead animals, donkeys, sheep, and goats, which had perished in the unwonted cold.

[12] Ibn al-Athîr, ed. Tornberg, vol. ix, p. 423, ‘Shefâthâ w’al ‘ain.’ Shethâthâ is a colloquial corruption for Shefâthâ, and the official maps still spell it in the latter fashion.

[13] Ed. de Goeje, p. 117.

[14] Ed. Wüstenfeld, vol. iii, p. 759.

[15] Ocheïdir, p. 12.

[16] Dr. Reuther gives the square as 2·85 metres. In my first account of the palace I had described this dome as oval in plan, but, as I felt very doubtful on this point, on my second visit I took particular care to re-examine the whole tract between the north gate and the door of the great hall. My second measurements gave a square of 3·10 metres to the dome. The difference between us is, however, too small to be of much importance.

[17] Ocheïdir, p. 3.

[18] Ocheïdir, p. 21.

[19] Dr. Reuther observes here the funnel leading from the bottom of the niche to the top of the arch which had been described in the outer gates.

[20] The decoration as well as the funnel had escaped my notice, but when Dr. Reuther called my attention to the former I was able to verify the correctness of his observation on one of my own photographs.

[21] Journal of the Hellenic Society, vol. xxx, 1910, p. 77.

[22] In the spring of 1910, I asked M. Viollet, who was then on his way to Mesopotamia, to clear away the ruins from the middle of the south wall and ascertain whether there were any sign of a miḥrâb. Upon his return he informed me that he had discovered the niche at the point which I had indicated and that he felt no hesitation as to its being in fact the miḥrâb. When I was at Ukhaiḍir in 1911, I uncovered the niche still further and photographed it carefully. Two of these photographs I sent to Dr. Wetzel for publication in the German work, and they are there reproduced, Ocheïdir, Figs. 22 and 23. Professor Brünnow has suggested that since prayer niches with flanking colonnettes were known to the Nabataeans, the Mohammadan niche, with its non-Arabic name, was certainly derived from pre-Mohammadan usage. (’Zur neuesten Entwicklung der Meschetta-Frage,’ Zeitschrift für Assyriologie, August 1912, p. 129.) This view is not likely to find acceptance. It is expressly stated that the miḥrâb was a feature of the mosque which was borrowed from the Christian cult and that it was not adopted until the beginning of the second century of Islâm. (See Lammens, Ziâd ibn Abîhi, Rivista degli Studi Orientali, vol. iv, 1911, p. 246 (94), note 1, and Becker, ‘Zur Geschichte des islamischen Kultus,’ Der Islam, vol. iii, 1912, p. 392.) I continue, therefore, to regard the niche at Ukhaiḍir as a clear proof that the building was originally intended for a mosque.

[23] Ocheïdir, p. 24.

[24] There seems to me to be an error in the reconstruction of the north façade given in Ocheïdir, Plate 24. Dr. Reuther makes the wall of the chemin de ronde, immediately to the west of the gate-house, stand flush with the outer edge of the vault between the gate-house and the tower. I do not think that this is correct. The chemin de ronde projected no further here than it projected between the other towers, i.e. it was flush with the face of the pilasters, and in my Plate 11, Fig. 1, its windows can be seen behind the balcony. If the wall had been flush with the edge of the balcony vault, the fall of that vault, partial to the west of the gate-house, total to the east, must have entailed the fall of the wall also. But this is not the case; the chemin de ronde is intact on either side.

[25] Aiwân is the Persian form, very commonly used in the Shâhnâmah. It has become lîwân in Arabic by the incorporation of the article al-Aiwân. (Note by Sir Charles Lyall.)

[26] Ocheïdir, p. 5.

[27] It appears in one of M. Massignon’s photographs; Mission en Mésopotamie, Plate XX

[28] Dr. Reuther observed that in No. 69 the vault at the north end had been constructed without centering, while the vault at the south end had been constructed over a centering; Ocheïdir, p. 43.

[29] Rooms 63 and 65 are vaulted without centering; Ocheïdir, p. 5.

[30] As has been mentioned on p. 10, the original intention was to carry this same wall round the fourth side (the north side) also; but when the great outer wall was added to the scheme, it replaced the smaller, less important wall of the first design.

[31] The authors of Ocheïdir restore a south wall running from No. 150 to No. 152, thus converting the open space to the south of 141 into a court on the analogy of court F. I saw no trace of such a wall.

[32] Dr. Reuther gives a detailed photograph (Ocheïdir, Fig. 50), showing a band of rhomboids round the window frame.

[33] It was visited by Massignon and appears in his map, Mission en Mésopotamie, vol. i, p. 21.

[34] Cf. the crenellated motive round the archivolt of the doors of corridors 5 and 6 at Ukhaiḍir.

[35] M. Massignon heard of it under the name of Makhḍah or Madjḍah, but he did not visit it. Op. cit., p. 30.

[36] Le Strange, Lands of the Eastern Kaliphate, p. 92.

[37] Residence in Koordistan, vol. i, p. 40.

[38] Amurath to Amurath, p. 191. Massignon, Mission en Mésopotamie, vol. ii, p. 41.

[39] Tower tomb at Bostân, dated on the miḥrâb A.D. 1300-1301, Denkmäler persischer Baukunst, p. 116, and Plate 85. Tower tomb at Rhages, twelfth or thirteenth century, ibid., p. 57. Tower tomb at Veramîn, twelfth or thirteenth century, ibid., p. 59. Minaret of Khodja ‘Alam at Iṣfahân, probably end of fourteenth or beginning of fifteenth century, ibid., p. 76 and Plate 62.

[40] Sarre, op. cit., p. 76; Fergusson, History of Indian and Eastern Architecture, p. 494.

[41] M. Massignon heard of a ruined khân called ‘Aṭishân, op. cit., p. 30. He places it too far east in his map.

[42] Cf. the east, west, and south gates of Ukhaiḍir.

[43] Cf. a calotte in the central court at Ukhaiḍir, Plate 26, Fig. 2.

[44] This seems to be the road to which al-Ḥadjdjâdj alludes (Ṭabari, vol. ii, p. 945): ‘And if you have come opposite to Hît, leave the Euphrates road and al-Anbâr and take your way to ‘Ain al-Tamr so that you may reach al-Kûfah.’

[45] Mission scientifique en Perse, vol. iv, Plates 40, 42, and 46.

[46] Cf. with these passages the vaulted passages to one side of the lîwân groups at Ukhaiḍir in courts B, C, G, and H.

[47] In the photograph there seems to be a low archway on the south side of the gate; it is, however, merely a hole in the wall, and I satisfied myself that there was originally no opening here.

[48] In the palace of Firûzâbâd the dome is of stone, but at Sarvistân it is of brick. The construction of the squinches at Chehâr Qapû is not like that of the Firûzâbâd squinches, but it is exactly similar to the Sarvistân work. Dieulafoy, L’Art antique de la Perse, vol. iv, Plates 5 and 14. Sarvistân is much nearer in date to Chehâr Qapû, see below, p. 92.

[49] Ibn Ḥanbal, Musnad III, 163, quoted by Lammens, ‘La Bâdia et la Ḥîra sous les Omaiyades,’ Mélanges de la Faculté orientale de Beyrouth, vol. iv, p. 95.

[50] Lammens, op. cit., p. 92. In this brilliant article, and in a series of studies on the Umayyad khalifs, published in the same journal, Lammens has restored to the Umayyad period, which was neglected or wilfully misrepresented by Mohammadan historians, its capital importance. See too Musil, Qṣeir ‘Amra, p. 150 et seq.

[51] Lammens, op. cit., p. 106. Sir Charles Lyall me the following note: ‘I feel considerable doubt as to Lammens’s theory that the word ‘ḥîrah’ was used in the time of the Umayyads. The word is Syriac, not Arabic. See Nöldeke, Sassaniden, p. 25, note 1.’

[52] Ed. Wright, p. 46. See too John of Ephesus, iii, 42, where al-Mundhir’s sons are described as pitching a great ḥertâ in the desert.

[53] Nöldeke, Die ghassanischen Fürsten aus dem Hause Gafna’s, p. 47.

[54] Possibly at Djâbiyah. Teano; Annali dell’ Islam, vol. iii, p. 928.

[55] De Vogüé, La Syrie centrale, vol. i, p. 69; Bell, The Desert and the Sown, p. 125.

[56] De Vogüé, op. cit., vol. i, p. 71.

[57] Dussaud, Mission dans les régions désertiques de la Syrie moyenne, p. 31.

[58] Bruno, Meissner, ‘Von Babylon nach den Ruinen von Ḥîra und Huarnaq,’ Sendschriften der deutschen Orient-Gesellschaft, No. 2, p. 18.

[59] Le Strange, Lands of the Eastern Khalifate, p. 76, n. 1.

[60] Ṭabari, ed. de Goeje, Prima Series, p. 853, Bell. Amurath to Amurath, p. 141

[61] Nöldeke, Perser und Araber, p. 79.

[62] Rothstein, Die Dynastie der Lakhmiden in al-Ḥîra, p. 15. Ṭabari does not mention this fact, though he quotes a poem by ‘Abd al-’Uzza in which Sinimmâr is alluded to as ‘al-’ildj’, the stranger, non-Arab. Ṭabari, vol. i, p. 852.

[63] Yâqût, vol. ii, p. 375.

[64] Rothstein, op. cit., p. 115. See Massignon, Mission en Mésopotamie, vol. i, pp. 32 et seq., for Lakhmid topography. Sir Charles Lyall calls my attention to a verse of al-Aswad ibn Ya’fur in which he gives a list of the Lakhmid buildings: al-Khawarnaq, al-Sadîr, Tzâriq, and ‘the pinnacled castle of Sindâd’.

[65] Encyclopédie de l’Islam, under Anbâr. The site was ancient.

[66] Reisebeschreibung, vol. ii, p. 236.

[67] Since this was written I learn that Ḥiyyadhiyyeh was visited in 1912 by Prince Sixtus of Bourbon and Professor Musil, see the Vorbericht of the latter in the report of the K. Akad. d. Wiss. in Wien, 1913, No. 1, p. 11. Journeying southwards from Ukhaiḍir they passed through Ḥiyyadhiyyeh, which is described as ‘eine festungsartige kleine Ortschaft am rechten Ufer des wâdi al-Kherr’. On the way from Ḥiyyadhiyyeh to Nedjef they passed by Ṭaquṭqâneh (Niebuhr’s Tukteqâne) and Ruḥeimeh.

[68] Le Strange, Lands of the Eastern Khalifate, p. 76.

[69] Massignon, op. cit., p. 41.

[70] Mentioned by Massignon under Ruḥbeh, op. cit., p. 41.

[71] Erster vorläufiger Bericht über die Ausgrabungen von Sâmarrâ, p. 40.

[72] Mas’ûdi, Marûdj al-Dhahab, ed. Barbier de Meynard, vol. vii, p. 192.

[73] See Lane, Arabic and English Dictionary, under riwâq.

[74] Rothstein, op. cit., p. 130.

[75] Idem, pp. 69, 74, 81.

[76] Bell, Amurath to Amurath, p. 139.

[77] Sarre-Herzfeld, Iranische Felsreliefs, p. 237.

[78] Ausgrabungen in Sendschirli, pt. ii. There is some doubt as to whether Zindjirli was actually occupied by Hatti. No Hittite inscriptions have been discovered there; but further researches have shown that architecturally Zindjirli belongs to a group of settlements the Hittite origin of which it is impossible to doubt. Professor Garstang has found a khilâni palace at Sakcheh Geuzu (Annals of Archaeology and Anthropology, vol. v, Plate 3), Baron Oppenheim a very remarkable palace of the same type at Râs ul-’Ain, of which the plan has not yet been published.

[79] Ausgrabungen, p. 173, and Fig. 82, p. 184.

[80] Ausgrabungen, Fig. 83, p. 184.

[81] Puchstein, ‘Die Säule in der assyrischen Architektur,’ Jahrbuch des k. d. arch. Instituts, 1892, p. 11.

[82] Koldewey gives a chronological series of Assyrian khilânis and shows that the development in Assyria was a faithful copy of the development which he had noted at Zindjirli, op. cit., pp. 188 et seq.

[83] Dr. Herzfeld suggests that it may have been transmitted to the Achaemenids through Media; Iranische Felsreliefs, p. 186.

[84] Dr. Herzfeld calls attention to the significant fact that the Babylonian theatre, while it exhibits a good Greek plan, is built of sun-dried brick, doubtless by local workmen, and is technically indistinguishable from local structures of an earlier age. Iranische Felsreliefs, p. 225. To a reconstruction of a later period belongs the stage, with its burnt brick foundations, wooden superstructure, and ornaments of carved stucco, and here too technique and material are of local origin. The theatre is not yet published. A very short account of the excavations is to be found in Mitt. der D. O.-G., No. 21, p. 9, and No. 22, pp. 4 et seq.; a longer description in Koldewey, Das wieder erstehende Babylon, p. 293.

[85] Loftus, Chaldaca and Susiana, p. 225. See Sarre-Herzfeld, Iranische Felsreliefs, p. 227, for a comprehensive enumeration of Parthian remains.

[86] Dieulafoy, L’Art antique de la Perse, vol. v, p. 29.

[87] Hilprecht, Explorations in Bible Lands, p. 564, compares it to the ancient Greek houses at Delos, for which see Durm, Baukunst der Griechen, p. 516. The juxtaposition of megaron and andron, each group of rooms opening into its own court, recalls irresistibly a yet older type; cf. the plan of Tiryns, Perrot-Chipiez, Histoire de l’Art, vol. vi, Plate 2. It is curious to note that the audience halls at Niffer are the oriental latitudinal chambers; indeed they have the closest connexion with the old Babylonian house type, which, as Professor Koldewey has observed, postulates invariably a court with a large chamber to the south of it. The Niffer palace is little more than a reproduction of such houses as the big house in the Merkes at Babylon, plus the column, which was due to Greek influence. See Koldewey, Das wieder erstehende Babylon, pp. 279 et seq.

[88] Mitt, der D. O.-G., No. 25, p. 39.

[89] Ibid., No. 28, p. 59.

[90] Stoae of Attalos at Athens and at Pergamon, Durm, Baukunst der Griechen, p. 504.

[91] The Assur palace is not yet published, but see Mitt. der D. O.-G., No. 42, pp. 45-50. The plan is given on Plate 4 of Andrae’s Festungswerke von Assur.

[92] Andrae, Hatra, pt. ii, Plate 6.

[93] The literature on this subject is of vast extent. See Choisy, L’Art de bâtir chez les Byzantins, p. 32; Dieulafoy, L’Art antique de la Perse, vol. iv, p. 14; Perrot-Chipiez, vol. ii, pp. 143-7, 163-81, 231-46. Delbrück’s chronological résumé of the history of the vault has brought order into chaos; Hellenistische Bauten in Latium, pt. ii, pp. 63-85.

[94] Place, Ninive, vol. i, pp. 176, 255.

[95] Idem, vol. i, pp. 254 et seq.

[96] Layard, Nineveh, vol. i, p. 127, and vol. ii, p. 260.

[97] I must refer briefly to his new work. Das wieder erstehende Babylon, wherein the question of Babylonian vaults is fully discussed on pp. 90 et seq.

[98] Delbrück, Hell. Bauten in Latium, vol. ii. Table A, p. 64. The widest span is found in the cisterns of the theatre at Delos; it is 6.55 metres.

[99] Early Hellenistic barrel vaults in the Mediterranean coast-lands. Delbrück, op. cit., pt. ii. Table A, p. 64. Cut stone vaults showing characteristics of brick construction, such as vaulting in concentric courses, vaults outlined by mouldings, vaults with uncentered joints, and a single example of the horse-shoe vault at Chiusi, idem, Table B, p. 67. In Egypt and in western Asia solutions were sought to further problems of stone vaulting, the intersection of stone barrel vaults, vaulting in inclined planes, the stone dome with or without voussoirs. At first these were in general confined to the East; the evolution in the West begins in the Roman Imperial period. Delbrück, pt. ii. pp. 77-80. Development of the Egyptian cut stone vault out of sun-dried brick construction, idem, pp. 80-3.

[100] Delbrück, op. cit., pt. ii, Table C, p. 70.

[101] Bridge at Pergamon, Delbrück, pt. ii, Table D, p. 72.

[102] Andrae, Hatra, pt. ii, p. 2, assigns it to the second century, after Trajan and before Septimius Severus; a more accurate dating is not possible without excavation. The largest of the palace vaults spans 14·80 metres.

[103] Choisy, L’Art de bâtir chez les Byzantins, p. 154.

[104] Podium of the altar and of the upper gymnasium at Pergamon, Delbrück, pt. ii, p. 104. The whole subject is admirably handled by him, pt. ii, pp. 108-11, where the accounts left by Diodorus and by Strabo of the substructure of the Hanging Gardens are examined, and the mutual interaction of India and western Asia is considered. See Koldewey, Das wieder erstehende Babylon, p. 90, for a description of the vaulted substructions which he believes to have supported the Hanging Gardens.

[105] Strabo, xvi, 1, 5.

[106] Chaldaea, at Mughair, sun-dried brick; Perrot-Chipiez, vol. ii, p. 232. Egypt, at Dair el-Baḥri, 18th Dynasty; Perrot-Chipiez, vol. i, p. 536; and a brick dome at Abydos; Choisy, Histoire de l’Architecture, vol. i, p. 19. Syria, dolmenic tomb at Ridjm el Melfûf; Annual of the Palestine Exploration Fund, 1911, p. 9. Knossos; Evans, Prehistoric Tombs of Knossos, p. 139. Numerous other examples are cited by Durm in two articles in the Jahreshefte des öst. arch. Instituts, vol. x, 1907.

[107] Mitt. der D. O.-G., No. 27, p. 29.

[108] In one of these only is the springing of the vault preserved. Bell, Amurath to Amurath, Fig. 109.

[109] Sâmarrâ, Amurath, Fig. 154.

[110] Cf. the stone vaults at Medinet Abu, Delbrück, op. cit., pt. ii, p. 81.

[111] Dieulafoy, L’Art antique de la Perse, vol. iv, Fig. 10; Mitt. der D. O.-G., No. 40, Fig. 10, a late Assyrian tomb.

[112] Dieulafoy, L’Art antique, vol. iv, Plate 7.

[113] Bell, Churches and Monasteries of the Ṭûr ‘Abdîn, p. 100 (44).

[114] Idem, pp. 65 (9), 71 (15), &c.

[115] Mau, Pompeii, its Life and Art, p. 199.

[116] Delbrück, op. cit., pt. ii, Fig. 45.

[117] Idem, p. 146.

[118] Fergusson and Burgess, Cave Temples of India, Plates 9 and 11.

[119] De Vogüé, La Syrie centrale, Plate 7, and Delbrück, op. cit., pt. ii, Fig. 77. The records only have survived; the buildings themselves have disappeared.

[120] Delbrück, op. cit., pt. ii, p. 145.

[121] Butler, Ancient Architecture in Syria, Sect. A, pt iii, Fig. 185; de Vogüé, La Syrie centrale, vol. i, p. 47.

[122] Tâg-i-Îwân, Dieulafoy, L’Art antique, vol. v, p. 80.

[123] Dieulafoy, ibid., vol. v, p. 80.

[124] Andrae, Hatra, pt. i, p. 18.

[125] Pergamon, Athenische Mitt., vol. xxix (1904), p. 136, Plate 13; Delbrück, op. cit., pt. ii, Table G, and p. 103.

[126] Delbrück, op. cit., pt. ii, p. 104.

[127] Fergusson and Burgess, Cave Temples, Plates 11, 15, 24, and 28.

[128] Kalybes at Shaqqah and at Umm al-Zaitûn, de Vogüé, La Syrie centrale, p. 44, and Plate 6. Two domes at Binbirklisse, Ramsay and Bell, Thousand and One Churches, pp. 80 and 241.

[129] As to the date of these palaces, I accept the suggestions of Dr. Herzfeld until good reasons for modifying them have been shown. Ardashir I founded the city of Firûzâbâd in A.D. 226; the palace is probably of his time. Sarvistân belongs possibly to the time of Bahrâm V Gûr, 420-438; Qaṣr-i-Shîrîn may have been built by Khusrau II Parwêz towards the end of the sixth century. Sarre-Herzfeld, Iranische Felsreliefs, pp. 128-31.

[130] The Sarvistân dome rests on walls some 1·50 metres thick, and is about 5 metres in diameter, according to Dieulafoy’s plan (vol. iv, Plate 3). Flandin and Coste (Voyage en Perse, Plate 28) extend its diameter to the outer walls, which would give it a span of about 7·50 metres, but the section which they give on Plate 29 shows that Dieulafoy’s plan is in this respect correct, and indeed no other construction is possible.

[131] Balâdhuri (Futûḥ, p. 288) says that Ibrahîm ibn Salamah, one of the chiefs of Khurâsân, built the dome of the old Persian palace of Khawarnaq, in the khalifate of Abu Abbâs, and adds that previously there was no dome there. Possibly the domes seen by Ibn Baṭûṭah were due to this Mohammadan restoration.

[132] Perrot-Chipiez, vol. ii, p. 146, Fig. 43.

[133] Dieulafoy, op. cit., vol. ii, Plate 14 and vol. iv, Plate 15. Possibly there are earlier examples of the ṭâqchah than those at Persepolis. Room 11 in the big house in the Merkes at Babylon would seem from the plan to have possessed a ṭâqchah. Koldewey, Das wieder erstehende Babylon, Fig. 236.

[134] A tube can be seen in Dieulafoy’s Plate 9, vol. iv. It runs between the inner barrel vault on the right side of the big lîwân and the domed chamber to the right of the central hall of audience. See, too, the tubes in Flandin and Coste’s sections, Plates 40 and 41 bis.

[135] Dieulafoy, vol. iv, Figs. 25 and 26, and Plate 14, an arched niche in the inside of the dome. According to Flandin and Coste’s sections, all the door, window, and niche arches were so treated.

[136] Idem, vol. iv, Fig. 29.

[137] Koldewey, in Mitt. der D. O.-G., No. 12, p. 6.

[138] Dieulafoy, vol. iv, Fig. 30.

[139] Idem, vol. iv, Plate 17.

[140] Perrot-Chipiez, vol. ii, p. 140.

[141] Flandin and Coste restore the façade differently and give it the true oriental form of the lîwân façade; see below, p. 137.

[142] De Sarzec-Heuzey, Découvertes en Chaldée, p. 397.

[143] Ramsay and Bell, The Thousand and One Churches, Fig. 355.

[144] Dieulafoy, vol. iv, p. 77.

[145] Idem, vol. iv, Plate 1. In the flanking chamber to the left of the entrance lîwân the vaults of the niches oversail the wall and the same seems to be the case in the vault of the lîwân itself. Flandin and Coste draw all the door, window, and niche arches oversailing the jambs. From Dieulafoy’s picture of the dome, it would seem that the arches of the side niches there certainly oversailed the jambs. Plate 5.

[146] Idem, vol. iv, Plate 2.

[147] Idem, vol. iv, Plate 5.

[148] Idem, vol. iv, Plate 7.

[149] There are probably many more than those which we know. De Morgan has given a plan of Haush Quru, a ruin by which I passed on my return from Qaṣr-i-Shîrîn. That I did not linger there was due partly to the circumstances described above, and partly to the fact that a village has grown up round and among the ruins, which renders their examination exceedingly tiresome. I was obliged to waste a large portion of my stay in a visit of ceremony to Kerîm Khân’s brother, who resides at Haush Quru. In plan the palace is very similar to the central block of Qaṣr-i-Shîrîn. It is noticeable that the same rectangular area occupies the centre of the state apartments; de Morgan represents it as covered with cement—was it opened or domed? Mission sc. en Perse, Plates 50 and 51. He mentions other Sasanian ruins and gives a sketch plan of Shirwân, p. 362, another of Dereh Shah, p. 367, and a fragmentary plan of Hazâr Dâr, together with some remarkably interesting details of decoration. Hazâr Dâr is probably so much ruined that without excavation the distribution of the palace could not be made out; at any rate it cannot be determined from the plan given on Plate 62. For other Sasanian remains see Sarre-Herzfeld, Iranische Felsreliefs, p. 237.

[150] So too at Susa; Dieulafoy, L’Acropole de Suse, p. 239.

[151] Idem, Fig. 126, and p. 240.

[152] I had not realized the purpose for which these oblong rooms were intended until Dr. Reuther told me that he had seen similar kitchens in modern Arab houses. He has made a careful study of Mesopotamian domestic architecture of the present day and published an excellent book on the subject, Das Wohnhaus in Bagdad und anderen Städten des Irak.

[153] I suspect that the cross-shaped disposition of chambers was used in oriental palaces older than the Mohammadan era. It is found in the fifth-century church of Qal’at Sim’ân (de Vogüé, La Syrie centrale, vol. i, p. 141), for which I do not know a Western prototype.

[154] Herzfeld, Erster vorläufiger Bericht über die Ausgrabungen von Sâmarrâ, Plate 9.

[155] Herzfeld, Sâmarrâ, Fig. 23; Bell, Amurath to Amurath. Fig. 148.

[156] ‘Un palais musulman au IXe siècle,’ Mémoires présentés à l’Acad. des Ins. et Belles-Lettres, vol. xii, pt. ii.

[157] Erster vorl. Bericht, p. 40.

[158] Dr. Herzfeld believes the type to be based upon the Roman camp, a point to which I shall refer later, p. 120.

[159] Sarzec-Heuzey, Découvertes en Chaldée, Plan A, and p. 405. It must, however, be remembered that in the plan, as we have it, the dates of the various parts of the building are hopelessly confused; Koldewey, Das wieder erstehende Babylon, p. 286.

[160] Die Tempel von Babylon und Borsippa, p. 14.

[161] L’Acropole de Suse, Fig. 264.

[162] Hatra, pt. i, Fig. 32.

[163] Chaldaea and Susiana, p. 225.

[164] Assyrian Discoveries, pp. 146 and 429. Photograph opposite p. 308.

[165] Bk. i, ch. 131.

[166] Bk. xv, ch. 3, 13-16.

[167] Hatra, pt. ii, p. 143.

[168] Ibid., pt. ii, p. 109.

[169] L’Art antique, vol. iv, p. 79.

[170] In the mosque of Ibn Ṭulûn at Cairo. The origin of the minaret is a vexed question which has been treated at length by Thiersch, Der Pharos, and continues to be the subject of controversy. Personally I subscribe to the view of Dr. Andrae and M. Dieulafoy.

[171] Koldewey, Die Tempel von Babylon und Borsippa, p. 66.

[172] Perrot-Chipiez, vol. ii, pp. 448-9.

[173] Koldewey, Die Tempel von Bab. und Bor., Plate 2; the palace has not yet been published, but the plan is given here. See, too, Das wieder erstehende Babylon.

[174] Puchstein, Boghaskoi, Plates 33, 42, 44, 46, and 47. The differences are so profound that I am led to the belief that the architects of southern Hittite palaces must have been governed by cultural influences other than those which obtained at Boghâz Keui. For example, the latitudinal disposition of the chambers which characterizes the southern khilâni is absent at Boghâz Keui. Can it be that southern Hittite architecture is in truth Syrian architecture under Hittite domination?

[175] Andrae, Der Anu-Adad Tempel, Plate 4, is an example of the symmetrical temple. On p. 83 Andrae discusses the influences under which it arose, a subject of the highest interest and importance, for which the recent excavation of the temple of Assur has given chronological data. Mitt. der D. O.-G., No. 44, p. 40. The plan of the Assur temple is given in Die Festungswerke von Assur, Plate 2.

[176] Koldewey, Sendschirli, p. 18.

[177] Perrot-Chipiez, vol. ii, Fig. 196.

[178] Koldewey, Die Tempel von Bab. und Bor., Plates 3, 5, 7, and 12.

[179] Place, Ninive, vol. i, p. 101.

[180] Sarre-Herzfeld, Iranische Felsreliefs, p. 129.

[181] Nöldeke, Geschichte der Perser und Araber, p. 58, note.

[182] Dieulafoy, L’Art antique de la Perse, vol. v, p. 79.

[183] Delbrück, Hellenistische Bauten, pt. ii, p. 86.

[184] For instance, the walls of Assur, Mitt. der D. O.-G., No. 26, p. 35, and No. 28, Fig. 11.

[185] Delbrück, op. cit., pt. ii, p. 90.

[186] Koepp, Die Römer in Deutschland, p. 76.

[187] Brünnow-Domaszewski, Die Provincia Arabia, vol. iii, p. 221.

[188] Stolle, Das Lager und Heer der Römer, pp. 52 et seq., 105 et seq.

[189] Boṣrâ in eastern Syria, Brünnow-Domaszewski, op. cit., vol. iii, p. 2; Shuhbâ in the Ḥaurân, idem, iii, p. 146, and Butler, Architecture and other Arts, p. 393; Apamea in northern Syria, Butler, idem, p. 54.

[190] The material for their study is ample: Der obergermanisch-rätische Limes des Römerreiches, published by the Reichs-Limeskommission; Der römische Limes in Oesterreich, published by the K. Akad. der Wissenschaften; the great camp at Novaesium published in the Bonner Jahrbuch, 1904; for the Saalburg see Jacobi, Führer durch das Römerkastell Saalburg. For Africa, Ballu, Les Ruines de Timgad; Gsell, Monuments antiques de l’Algérie; Cagnat, Les Deux Camps de Lambèse. For Britain, Bruce, The Roman Wall; Curle, A Roman Frontier Fort. Lyell, A Bibliographical List of Romano-British Architectural Remains, gives reference to others.

[191] Der oberger.-rät. Limes, No. 66, Aalen, No. 65, Unterböbingen.

[192] Der oberger.-rät. Limes, No. 31.

[193] Cagnat, Les Deux Camps de Lambèse, p. 19, Fig. 2.

[194] Der oberger.-rät. Limes, No. 8, Zugmantel.

[195] For example Weissenberg, Der oberger.-rät. Limes, No. 72.

[196] There are scarcely any exceptions, but at Stockstadt, Der oberger.-rät. Limes, No. 33, at Zugmantel, No. 8, at Sulz, No. 61a, and at Niederberg, No. 34, a slight exterior salience is given to some of the rectangular towers. At Niederbieber the gate towers have a considerable salience, and the intermediate towers are also salient, a variation to which Schultze (’Die römischen Stadttore,’ Bonner Jahrbuch, 1909, p. 324) attaches no importance.

[197] Mommsen, The Provinces of the Roman Empire, vol. ii, p. 153.

[198] Cf. Khirbet el Fityân, which belongs probably to the time of Diocletian, Brünnow-Domaszewski, vol. ii, p. 139.

[199] Brünnow-Domaszewski, vol. ii, p. 102, Fig. 685.

[200] It must be remembered that in all these ruins only those parts which remain above ground have been recorded. Excavation is needed to show the exact relation of the interior buildings to the encompassing wall at Ḍumair and Ledjdjûn.

[201] Revue biblique, 1904, p. 414. and Musil, Arabia Petraea, vol. ii, pt. 2, p. 118.

[202] Praetoria are occasionally found outside the walls in the fortified cities of Gaul, but there is no example earlier than the close of the third century. Blanchet, Les Enceintes romaines de la Gaule, p. 276.

[203] Butler, Ancient Architecture in Syria, Sect. A, pt. ii, p. 146.

[204] Idem, Sect. B, pt. ii, Plate 8.

[205] Idem, Sect. B, pt. i, p. 26.

[206] I am aware that this view is in contravention of Dr. Herzfeld’s opinion, but I fail to discern any ground for his statement that the castrum of Qasṭal belongs to the type of the great legionary camps. ‘Die Genesis der islamischen Kunst,’ Der Islam, vol. i, p. 123.

[207] Flandin-Coste, Voyage en Perse, Plate 213 bis.

[208] Brünnow-Domaszewski, vol. ii, p. 82.

[209] Idem, vol. ii, p. 89.

[210] Idem, vol. ii, p. 65.

[211] Idem, vol. ii, p. 78.

[212] Dieulafoy, L’Acropole de Suse, p. 163.

[213] Perrot-Chipiez, vol. ii, p. 341, Gates of Balawât, and other plans, pp. 343-4.

[214] Plan of the acropolis of Khorsâbâd, Perrot-Chipiez, vol. ii, p. 326; the towers have a salience of 4 metres and are placed at intervals of 27 metres. Walls of Assur, Mitt. der D. O.-G., No. 32, p. 35, and plan of the western half of the mound, issued with that number. The towers are 4 metres wide, with a salience of 2 metres; the curtain walls vary in length from 24·55 metres to 29 metres—distances, remarks Dr. Andrae, which lie well within the limits of a bow-shot. See too Andrae, Die Festungswerke von Assur, vol. i, p. 5, where the normal proportions of Salmanassar III’s outer wall are given as follows: towers 8 metres wide, with a salience of 3 to 4 metres; curtain walls 30 metres long. Towers existed in the archaic walls (idem, p. 65), as well as great bastions standing out from 10 to 20 metres from the face of the wall (idem, p. 123).

[215] Mitt. der D. O.-G., No. 31, p. 28, No. 32, p. 36; and Festungswerke, vol. i, p. 115.

[216] L’Acropole de Suse, Plate 2. It is doubtful whether the towers in the plan are based upon actual observation, or due to a restoration on the part of the excavator.

[217] Andrae, Hatra, pt. ii, pp. 36, 39, and 53.

[218] Hilprecht, Explorations in Bible Lands, P. 559.

[219] Dastajird, Sarre-Herzfeld, Iranische Felsreliefs, p. 237; Iṣṭakhr (the walls may, however, have been Achaemenid), Flandin-Coste, Voyage en Perse, Plate 58; Qal’a-i-Kuhna, idem, Plate 213 bis.

[220] Koldewey, Sendschirli, pt. ii, pp. 172-8.

[221] Perrot-Chipiez, vol. iv, p. 505.

[222] Puchstein, Boghaskoi, Plate 2.

[223] Perrot-Chipiez, vol. vi, Plate 1.

[224] Durm, Baukunst der Griechen, pp. 38 and 42.

[225] Perrot-Chipiez, vol. v, p. 45.

[226] Idem, vol. v, p. 321.

[227] Idem, vol. v, p. 324.

[228] Reisen in Lykien und Karien, p. 54.

[229] Perrot-Chipiez, vol. v, p. 385.

[230] Benndorf-Niemann, op. cit., p. 124.

[231] Perrot-Chipiez, vol. iii, pp. 331, 338, 348, 353, and 325.

[232] Texier, Asie Mineure, vol. ii, Plate 108. Investigations at Assos, Clarke, Bacon, Koldewey, pt. i, p. 13.

[233] Merchel, Die Ingenieurtechnik im Alterthum, p. 425. Messene was founded by Epaminondas in 371 B.C.

[234] The town was destroyed by the Carthaginians in 409 B.C., and the walls date from after that period. Durm, Baukunst der Griechen, p. 209.

[235] Forschungen in Ephesos, vol. i, p. 91.

[236] Koldewey, Sendschirli, vol. ii, p. 179. It was built in 320 B.C.

[237] Choisy, Histoire de l’Architecture, vol. i, p. 501.

[238] Promis, Le Antichità di Aosta, Plates 3 and 4.

[239] Blanchet, Les Enceintes romaines de la Gaule, pp. 211 and 14.

[240] ‘Die römischen Stadttore’, Bonner Jahrb., 1909, p. 293.

[241] Blanchet, op. cit., pp. 335-7.

[242] Not only were the walls of camps less strongly fortified than the walls of towns, but the defences of the gateways were not so highly developed. Cramer, Trier, p. 72.

[243] Brünnow-Domaszewski, op. cit., vol. ii, p. 100.

[244] Idem, vol. ii, p. 182; I think it very doubtful whether any part of the existing ruins are Roman. See too Herzfeld, ‘Genesis,’ Der Islam, vol. i, p. 128.

[245] Lammens, ‘La Bâdia et la Hîra,’ Mélanges de la Faculté orientale de Beyrouth, vol. iv, p. 103; and Musil, Qṣeir ‘Amra, pp. 155-6.

[246] Musil, idem, p. 163.

[247] Lammens, op. cit., p. 107.

[248] Moritz, ‘Ausflüge in der Arabia Petraea,’ Mélanges de la F. O. de Beyrouth, vol. iii, p. 432. I do not propose to consider here small buildings like Mshaiyesh (Musil, Arabia Petraea, vol. i, p. 313, and Qṣeir ‘Amra, p. 115), or al-Weyned (Musil, Arabia Petraea, vol. i, p. 289, and Qṣeir ‘Amra, p. 93). They are both on the caravanserai plan and differ little from the edifice which stands near Qṣair ‘Amrah. This last was probably a lodging for guards and courtiers. Musil, Arabia Petraea, vol. i, p. 223; Qṣeir ‘Amra, Plate 2.

[249] Butler, Ancient Architecture in Syria, Sect. A, pt. ii, p. 77, and appendix, p. xix.

[250] De Vogüé, La Syrie centrale, vol. i, p. 71.

[251] Arabia Petraea, vol. i, p. 229, and Qṣeir ‘Amra, p. 64.

[252] Nöldeke, Neue Freie Presse, March 28, 1907, and Becker, Münchener Neueste Nachrichten, May 28, 1907.

[253] Revue biblique, 1904, p. 423; Musil, Arabia Petraea, vol. ii, pt. ii, p. 106, and Qṣeir ‘Amra, p. 72.

[254] Musil, Arabia Petraea, vol. ii, pt. ii, p. 75, and Qṣeir ‘Amra, p. 65.

[255] Butler, Ancient Arch. in Syria, Sect. B, pt. i, Plate 4, and in the same number Greek and Roman Inscriptions, p. 40.

[256] Musil, Arabia Petraea, vol. i, p. 176, and Qṣeir ‘Amra, p. 13.

[257] Musil, Arabia Petraea, vol. i, p. 290, and Qṣeir ‘Amra, p. 97; Moritz, ‘Ausflüge,’ Mélanges de la F. O. de Beyrouth, vol. iii, p. 421. I give four photographs which Dr. Moritz has been so kind as to place at my disposal.

[258] Arabia Petraea, vol. i, Fig. 135.

[259] Schultz and Strzygowski, Mschattâ; Brünnow-Domaszewski, vol. ii, p. 105; Musil, Qṣeir ‘Amra, p. 39.

[260] Lammens, ‘La Bâdia et la Hîra,’ Mélanges de la F. O. de Beyrouth, p. 110.

[261] ‘Genesis,’ Der Islam, vol. i, p. 126.

[262] Mea culpa! I visited Mshattâ in the year 1900 (and to this day, though I spell its name in the accepted grammatical fashion, I cannot bring myself to speak it except as the Beduin speak it—Mshittâ), but I was so much dazzled by the splendour of the façade that I photographed nothing else. Moreover, I was not then sufficiently instructed to be on the watch for matters which would now absorb my attention. In 1905 I passed close by it again, but a regrettable sentiment prevented me from re-visiting it after it had been shorn of its glory. I never find myself in Berlin without rejoicing that the marvellous decoration has been put in safety, and in easy reach of us all, but I never think of the palace in the wilderness without congratulating myself on having seen it in 1900. It remains in my mind as the most princely of ḥirahs, wrapped round by the grass-grown Syrian desert, mild and beneficent in winter; and the flocks of the Ṣukhûr resort to it as kings resorted of old.

[263] Cf. the vaults in the side niches of a building on the citadel at ‘Ammân which I believe to be not older than the Umayyad period. Dieulafoy, L’Art antique, vol. v, p. 98; Mitt. der D. O.-G., No. 23, p. 47.

[264] Brünnow and Domaszewski, op. cit., Fig. 720.

[265] In any case the maxim laid down by Dr. Herzfeld (’Genesis,’ Der Islam, vol. i. p. 110) is misleading. It is too hasty a generalization and it does not cover the facts. At Ukhaiḍir door openings are sometimes wider and sometimes narrower than the arches above them, and it is doubtful whether the same is not the case at Sarvistân. See above, p. 79.

[266] Mschattâ, Plate 6.

[267] So it appears to me, but I am conscious that the roots may go deeper. Damascus, Apamea, and Antioch are Seleucid foundations, and we know nothing of the Seleucid city plan.

[268] Ebersolt, Le Grand Palais de Constantinople, pp. 162-7.

[269] Bury, A History of the Eastern Roman Empire from the fall of Irene to the accession of Basil I, p. 132.

[270] Herzfeld, Erster vorl. Bericht, p. 33.

[271] Sprenger-Michaelis, Handbuch der Kunstgeschichte, 9th ed., vol. i, p. 60.

[272] Perrot-Chipiez, vol. ii, Fig. 101.

[273] Dieulafoy, L’Acropole de Suse, Figs. 93, 100, 132.

[274] Chaldaea and Susiana, p. 174.

[275] Mitt. der D. O.-G., No. 51, p. 71.

[276] Hilprecht, Explorations in Bible Lands, p. 483, and fig. on p. 552.

[277] Sarzec-Heuzey, Découvertes en Chaldée, Plate 53 bis, Fig. 1.

[278] The last two examples are not yet published. For the connexion of the orthostatic construction at Pasargadae with Assyria and the Hittite cultural sphere, see Herzfeld, Iranische Felsreliefs, p. 184. The link between the two is probably to be sought at Ecbatana.

[279] Perrot-Chipiez, vol. ii, Figs. 107 and 110.

[280] Hellenistische Bauten in Latium, pt. ii, p. 147.

[281] Perrot-Chipiez, vol. ii, Fig. 123.

[282] Idem, vol. ii, Fig. 136.

[283] Perrot-Chipiez, vol. i, Fig. 267, and Puchstein, Die ionische Säule, Fig. 45, for Egypt; Perrot-Chipiez, vol. ii, Fig. 39, for Assyria.

[284] Fergusson, History of Indian and Oriental Architecture, p. 115, façade of the Chaitya Cave at Nassick.

[285] In the Sema of Ptolemy Philadelphos; Thiersch, ‘Die Alexandrinische Königsnekropole,’ Jahrbuch des k. d. arch. Instituts, 1910, p. 65. See too Der Pharos, p. 210, for an extant example at Taposiris Magna. Delbrück’s handling of the subject is admirable; op. cit., pt. ii, pp. 99 and 139. That the lightening of the wall-face in Hellenistic architecture may be of oriental origin is borne out by the fact that it appears more frequently in the south-east regions, where Greek culture was under the influence of Egypt and western Asia.

[286] Lanckoronski, Städte Pamphyliens und Pisidiens, vol. i, p. 59.

[287] Bulard, ‘Peintures murales et mosaïques de Délos,’ Mémoires Piot, vol. xiv, pp. 116 et. seq.

[288] Idem, Plate 6 A; Wiegand-Schrader, Priene, p. 312.

[289] Delbrück, op. cit., pt. ii, p. 128.

[290] Wiegand, Milet, pt. ii, Plate 7.

[291] Delbrück, op. cit., pt. ii, p. 129.

[292] Durm, Baukunst der Griechen, p. 542.

[293] Wiegand-Schrader, Priene, p. 268. Delbrück, op. cit., pt. ii, p. 130.

[294] Durm, Baukunst der Griechen, p. 504.

[295] For instance, in the Agora at Magnesia; Humann, Magnesia am Maeander, p. 113.

[296] Delbrück, pt. ii, p. 137. He cites the Ephebeum at Priene and the upper gymnasium at Pergamon.

[297] Praeneste, Delbrück, pt. i, Plates 13 and 17, and pt. ii, Plate 1. Tabularium, Delbrück, pt. i, Plate 7, and pt. ii, Plate 3.

[298] Praeneste, Delbrück, pt. i. Plates 13 and 17, and pt. ii, Plate 1.

[299] Apse at Praeneste, Delbrück, pt. i, Plate 18.

[300] Tivoli, Delbrück, pt. ii, p. 12.

[301] Jahrbuch des k. d. arch. Instituts, vol. xvii, 1902; Archäologischer Anzeiger, p. 152.

[302] Heberdey, Ephesos, vol. ii, Plates 7, 8, and 9.

[303] Jahrbuch des k. d. arch. Instituts, vol. xvi, 1901, p. 143, and vol. xvii, 1902, Plate 9.

[304] Butler, Florilegium Melchior de Vogüé, The Temple of Dhûsharâ, Plate 1.

[305] Butler, Ancient Architecture in Syria, p. 55.

[306] Idem, pp. 67 and 77.

[307] Idem, p. 325.

[308] Idem, pp. 347 and 351.

[309] Idem, p. 327.

[310] Idem, p. 343.

[311] Idem, p. 371.

[312] Idem, pp. 380 et seq.

[313] Idem, p. 245.

[314] Idem, pp. 252 and 265.

[315] For the latter see Jaussen-Savignac, Mission archéologique en Arabie. A number of the tombs are dated, and the learned fathers of St. Étienne, in publishing the inscriptions, have given us a solid basis for the evolution of the Ḥedjr tomb. For the Petra tombs, Brünnow-Domaszewski, Provincia Arabia, vol. i; and Dalman, Petra und seine Felsheiligtümer, and Neue Petra-Forschungen. The material was brilliantly reviewed by Puchstein, Jahrbuch des k. d. arch. Instituts, 1910, vol. xxv; Arch. Anzeiger, p 3.

[316] Egypt, as Puchstein has observed, was always the dominant influence. The form and origin of Nabataean tombs goes back to the time of the Pharaohs, Arch. Anz., 1910, p. 40.

[317] Jaussen-Savignac, tomb A 5, p. 357.

[318] Idem, pp. 414 et seq.

[319] Domaszewski suggested that they were the graves of Greek merchants, Prov. Arabia, vol. i, p. 15.

[320] Puchstein, op. cit., table, p. 35.

[321] Jaussen-Savignac, op. cit., p. 382; the tomb called Al-Ferîd.

[322] Delbrück, op. cit., pt. ii, pp. 170, 173.

[323] Tomb of the legate Sextius Florentinus, Brünnow-Domaszewski, vol. i, p. 170; Corinthian grave, idem, p. 168; No. 34, idem, p. 172. Al-Dair, idem, p. 187; the Storied tomb, idem, p. 169; the Khazneh, idem, Plate 2, and Palestine Exploration Fund Annual, 1911, p. 95.

See Hittorff, ‘Pompeii et Petra,’ Revue arch. N.S., vol. vi, p. 7.

[324] Wall paintings in Alexandrian tombs and at Boscoreale. Athenaeus gives a description of a tholos on the state barge of Ptolemy Philadelphos, and Vitruvius a description of a wall painting at Alabanda, which Studniczka compares with the Khazneh. Tropaeum Trajani, p. 66; Thiersch, ‘Die Alexandrinische Königsnekropole,’ Jahrbuch des k. d. arch. Instituts, vol. xxv, 1910, p. 67. A free-standing tholos, placed upon a pluteum or attic, appears upon the tomb of Absalom at Jerusalem, which Puchstein dates in the first half of the first century A.D. See Perrot-Chipiez, vol. iv, p. 279.

[325] This should be compared with Dr. Herzfeld’s drawing of the façade with conjectural restorations in the north wing. Sarre-Herzfeld, Euphrat- und Tigris-Gebiet, vol. iii, Plate 41. I doubt whether any of the columns were furnished with bases.

[326] Delbrück, Hellenistische Bauten, pt. ii, p. 129.

[327] Butler, Ancient Architecture in Syria, p. 132; east church at Bâbisqâ.

[328] Idem, p. 150; chapel at Kfair.

[329] Bronze tablet found at Ephesus and ivory diptych in the British Museum, Mschattâ, pp. 266 and 277.

[330] Pointing inwards on the apse at Qalb Lôzeh, and pointing outwards on a doorway at Bashmishli; Butler, Anc. Arch., pp. 223 and 239.

[331] Ocheïdir, p. 41.

[332] At Al-’Âshiq; Amurath, p. 238, and Herzfeld, Sâmarrâ, p. 40. Also round the windows of the great mosque at Sâmarrâ; Amurath, Fig. 142; Herzfeld, Erster vorl. Bericht, Fig. 1.

[333] For instance in a madrasah of the Ulu Djâmi’. The inscription round this madrasah is published (Amida, p. 87, inscr. No. 28), and I have the photographs, but these are not yet published.

[334] Amurath, Fig. 170.

[335] Unpublished. I have all the photographs and M. Max van Berchem has studied the inscriptions from them.

[336] It was shown at the exhibition of Mohammadan art held in Munich in 1910, and was numbered in the catalogue 2696 (Meisterwerke muhammedanischer Kunst, vol. ii, Plate 122).

[337] An early Syrian example, possibly Nabataean, is to be found at Umtâ’iyyeh; Butler, Ancient Architecture in Syria, Sect. A, pt. ii, p. 89. Cf. too the façade of the basilical hall at Mshattâ. (Schultz-Strzygowski, Mschattâ, Plate 4), and an interesting example on the tambour of the church of the ‘Adhrâ at Ḥakh; Bell, Churches and Monasteries of the Ṭur ‘Abdin, p. 84 (28).

[338] Dieulafoy, L’Art antique, vol. iv, Plates 6 and 7.

[339] Miss. scient. en Perse, p. 364.

[340] Strzygowski, Mschattâ, p. 354; Herzfeld, ‘Genesis,’ Der Islam, vol. i, p. 118.

[341] Sieglin-Schreiber, Die Nekropole von Kôm esch Schukâfa, Figs. 214, 215.

[342] Strzygowski, Mschattâ, Fig. 36.

[343] Brünnow-Domaszewski, vol. ii, p. 185, Figs. 760-5, and Plate 49.

[344] Herzfeld, Erster vorl. Bericht, Fig. 5.

[345] Lynch, Armenia, vol. i, Fig. 74.

[346] Herzfeld, Erster vorl. Bericht, p. 9.

[347] Butler, Ancient Architecture, p. 130.

[348] Circa 78 B.C., Delbrück, Hell. Bauten, pt. ii, Plate 3.

[349] Promis, Antichità di Aosta, Plate 7.

[350] Die römischen Stadttore, p. 296.

[351] Ibid., pp. 285-6. They too are Augustan.

[352] Erster vorl. Bericht, p. 34.

[353] Ocheïdir, p. 33.

[354] Reuther, Das Wohnhaus in Bagdad, p. 74.

[355] Ramsay and Bell, The Thousand and One Churches, Fig. 6, and passim.

[356] Butler, Ancient Architecture, Fig. 127, p. 364. See too double columns at Palatitza; Heuzey and Daumet, Mission archéologique de Macédoine, p. 198, where other examples are cited.

[357] Herzfeld, Erster vorl. Bericht, p. 34. As Dr. Herzfeld points out, Mshattâ offers another notable example of the three-arched façade. See Schultz-Strzygowski, Plate 4.

[358] History of Indian and Eastern Architecture, p. 580.

[359] Butler, Ancient Architecture, p. 367.

[360] Dieulafoy, vol. v, p. 99.

[361] Mitt. der D. O.-G., No. 31, p. 28.

[362] Loftus, Chaldaea and Susiana, p. 225.

[363] Perrot-Chipiez, vol. v, Figs. 340 and 342.

[364] Another good instance is at Tekrît; Amurath, Fig. 130.

[365] Perrot-Chipiez, vol. ii, Figs. 106, 116, 124, 136.

[366] Ocheïdir, Fig. 19.

[367] Herzfeld, Erster vorl. Bericht, p. 35.

[368] Idem, p. 23, and p. 18.

[369] The latter, though it is now at Baghdâd, was in all probability an import from northern Mesopotamia or northern Syria. Herzfeld, ‘Genesis’, Der Islam, 1910, Plates 1 and 2.

[370] The workmen at such a site as Warka may have been half bred with Greeks. The rinceaux on the door-jambs at Hatra, on the other hand, are better defined as combinations of the palmette and the acanthus than as modifications of the vine, and the typical Parthian decoration at Assur consists of various forms of the continuous pattern, the old oriental decorative scheme. Andrae, Hatra, pt. ii, Sheet 47, and Plate 12; Mitt. der D. O.-G., No. 42, Figs. 7 and 8.

[371] De Beylié, La Kalaa des Beni-Hammad, p. 41, quoting Ibn Hauqal.

[372] De Beylié, La Kalaa des Beni-Hammad, p. 41.

[373] The Wuswas ruin at Warka has furnished another example of the imitation of Babylonian decoration by Parthian builders. Mitt. der D O.-G., No. 51.

[374] De Beylié, op. cit., p. 63.

[375] R. Velazquez Bosco, Medina Azzahra y Alamiriva, Plate 17.

[376] Idem, Plate 18.

[377] Amurath, Fig. 161.

[378] Andrae, Hatra, pt. ii, Fig. 37, Sect. e-f, and Fig. 152

[379] Dieulafoy, L’Art antique, vol. iv, Plate 9. Possibly there are others; the palaces of Fars must be re-examined.

[380] Amurath, Fig. 133. As regards the date, M. van Berchem calls my attention to a passage in the Fakhri of Ibn al-Tiqtaqa (ed. Derembourg, p. 445), in which it is stated that the khalif al-Mustanṣir built among other monuments such as the Mustanṣiriyyeh at Baghdâd and the bridge at Harbâ, khân al-Khernîna. I was therefore right in assigning it to the thirteenth century A.D.

[381] A drawing of the gate is published by Sarre-Herzfeld, Euphrat-und Tigris-Gebiet, vol. i, p. 13.

[382] Teano, Annali dell’ Islam, vol. i, p. 443.

[383] Lammens, ‘Ziâd ibn Abîhi,’ Rivista degli Studi Orientali, vol. iv, p. 242.

[384] Sir Charles Lyall sends me the following note: “There is a masdjedâ at Medâin Ṣâliḥ. Masdjid is the “place of prostration” (sadjada) and this use of ‘sadjada’ is anterior to Islâm. See al-’A’shâ’s line: “Whoever sees Haudhah prostrates himself (yasdjud) without delay, when he puts on the crown above his turban or lays it down.”‘

[385] As, for instance, the khuṭbah of ‘Amr ibn al-’Aṣ in his mosque at Fusṭâṭ (Corbett, ‘The Mosque of ‘Amr,’ Journal of the R. Asiatic Soc., 1890, p. 768), and the khuṭbah of Ziyâd ibn Abîhi at Baṣrah (Lammens, op. cit., p. 36).

[386] Lammens, ibid., p. 31; and Becker, ‘Zur Geschichte des islamischen Kultus,’ Der Islam, vol. iii, p. 394.

[387] Teano, op. cit., vol. i, p. 438.

[388] Idem, vol. ii, pt. i, p. 68; and Becker, Die Kanzel im Kultus des alten Islam, p. 3 (Orientalische Studien Theodor Nöldeke gewidmet).

[389] Teano, op. cit., vol. iii, p. 965.

[390] The Copts built the façade, the Greeks the side and back walls; see Becker’s very interesting note, Der Islam, vol. iii, p. 403.

[391] Balâdhuri, Futûḥ, ed. de Goeje, p. 6. Yâqût, Mu’djám, ed. Wüstenfeld, vol. iv, p. 466.

[392] Teano, op. cit., vol. iv, p. 569, quoting Makrîzi, Khiṭâṭ, vol. ii, p. 247.

[393] Lammens, Ziâd ibn Abîhi, op. cit., p. 246; Becker, ‘Zur Geschichte d. islam. Kultus.’ op. cit., pp. 392-3. Professor Becker points out that though the architectural form was borrowed from the Christian apse, the word ‘miḥrab’ which was applied to it had had an earlier usage. It signified the princely seat of honour, which in all probability was generally niche-shaped.

[394] Balâdhuri, Futûḥ, p. 46.

[395] Idem, p. 350.

[396] Idem, pp. 347-8.

[397] Idem, p. 277.

[398] Ṭabari, Prima Series, p. 2489; Teano, op. cit., vol. iii, p. 857; Lammens, Ziâd, op. cit., p. 247.

[399] Futûḥ, p. 286.

[400] Ṭabari, Prima Series, p. 2492.

[401] Futûḥ, p. 277.

[402] Teano, op. cit., vol. iv, pp. 563 et seq.; Corbett, ‘The Mosque of ‘Amr,’ Journal of the R. Asiatic Soc., 1890, pp. 759 et seq.

[403] Becker, Die Kanzel, passim, and ‘Zur Geschichte des islamischen Kultus,’ op. cit., p. 393; Corbett, loc. cit., p. 773, n. 1.

[404] Ṭabari, Tertia Series, p. 322.

[405] ‘Zur Geschichte des islamischen Kultus,’ op. cit., p. 393.

[406] Teano, op. cit., vol. iv, p. 567.

[407] Le Strange, Palestine under the Moslems, p. 90.

[408] I follow Dr. Herzfeld’s view, Euphrat-und Tigris-Gebiet, vol. i, p. 98. Professor Thiersch believes it to have been copied from the Chalce of the Augusteion at Constantinople, but his theory is based solely upon hypothesis and it appears to me to be far-fetched. Thiersch, Pharos, p. 214.

[409] At Ba’albek its width is strongly marked in the façade of the ṣaḥn and in the arcade next to the qiblah wall, not in the intermediate arcades. For plan see Berchem-Strzygowski, Amida, Fig. 271.

[410] Saladin, La mosquée de Sidi Okba à Kairouan, pp. 18 et seq.

[411] Saladin, Manuel d’art musulman, Architecture, Fig. 139.

[412] Marçais, Monuments de Tlemcen, Figs. 14, 49, 69.

[413] Nordmesopotamische Baudenkmäler, Plate 73.

[414] Cf. the narrow blind arches on either side of the lîwân in the central court at Ukhaiḍir.

[415] Sachau, Reise in Syrien und Mesopotamien, p. 221.

[416] Orientalische Literaturzeitung, September 1911, p. 422.

[417] Futûḥ, p. 178.

[418] Amurath to Amurath, p. 56.

[419] Balâdhuri, Futûḥ, p. 179.

[420] Amurath to Amurath, p. 57; Sarre-Herzfeld, Euphrat-und Tigris-Gebiet, vol. i, p. 4, and vol. iii, Plate 66.

[421] Salmon, Introduction topographique à l’histoire de Baghdad d’al-Khaḷîb, Arabic text, p. 60; Sarre-Herzfeld, Euphrat-und Tigris-Gebiet, p. 91.

[422] Amurath to Amurath, p. 243; Sarre-Herzfeld, Euphrat-und Tigris-Gebiet, p. 69.

[423] It appears in M. Viollet’s plan, ‘Description du palais d’al-Moutasim,’ Mémoires présentés à l’Acad. des Inscr. et Belles-Lettres, vol. xii, pt. ii. Plate 8.

[424] Herzfeld, Erster vorl. Bericht, p. 7.

[425] Idem, p. 37.

[426] A.H. 484; it is the inscription on the north wall. On the south wall of the same wing there is an inscription, which probably alludes to some reparation and gives the date A.H. 874 = A.D. 1469. The inscription on the minaret is in the name of the Inalid Inaldi (A.H. 503-536 = A.D. 1109-1141). Two decrees are built into the north wall of the wide central aisle; they are dated respectively A.H. 639 = A.D. 1241, and A.H. 731 = A.D. 1330. The east wing of the ḥaram bears an inscription on the north wall dated A.H. 550 = A.D. 1155, and another on the same wall dated A.H. 1094 = A.D. 1683, while upon the east gable there is an inscription dated A.H. 735 = A.D. 1334. An inscription on the west arcade of the ṣaḥn is dated A.H. 518 = A.D. 1124, and the eastern arcade is dated A.H. 559 = A.D. 1163, while a second inscription contains the name of Abû ‘al-Qâsin ‘Ali, who died about A.H. 575 = A.D. 1179. On the east gate there is an inscription dated A.H. 575 = A.D. 1179. The madrasah at the north-west corner of the ṣaḥn is dated A.H. 935 = A.D. 1528; the wall to the east of the north door (behind the arcade) A.H. 625 = A.D. 1228; the small madrasah court to the north of this wall A.H. 595 = A.D. 1198, and the north doorway of this madrasah A.H. 576 = A.D. 1180.

[427] Orientalische Literaturzeitung, September 1911, p. 399. In A.D. 1046 Nâṣiri Khusrau saw a mosque here which had marked resemblances with the existing building. Ed. Schefer, p. 28.

[428] Sarre-Herzfeld, Euphrat-und Tigris-Gebiet, vol. i, p. 17; and vol. iii, Plate 88.

[429] Mission en Mésopotamie, vol. i, Plate 20.

[430] Ibn al-Athîr, vol. v, p. 224. The governor of ‘Irâq, Yûsuf ibn Umar, was imprisoned in the Khaḍrâ by Yazîd III, A.D. 744. See too Lammens, ‘La Bâdia et la Ḥîra,’ Mélanges de la Fac. Or., vol. iv, p. 100.

[431] Futûḥ, p. 284. The palace of Ḥadjdjâdj in Wâsiṭ was called al-Qabbet al-khaḍrâ on account of its green dome; ibid., p. 290.

[432] Yâqût, vol. iv, p. 121.

[433] Professor Musil also heard the name; he writes it Aslâm and applies it to the southern end of the Ṭâr. Proceedings of the K. Akad. der Wiss. in Wien, No. 1, 1913, p. 10. Bir Aslâm appears in Captain Leachman’s map. Journal of the R. Geog. Soc., 1911.

[434] Ibn al-Athîr, vol. ii, p. 349.

[435] Ibn al-Athîr, vol. iv, p. 328. Yâqût’s alternate site, between ‘Ain al-Tamr and Damascus, must therefore be rejected. Ibn al-Athîr refers to it in this passage in connexion with the revolt of Shabîb, during the vicegerency of Ḥadjdjâdj.

[436] Flandin-Coste, Voyage en Perse, p. 27.

[437] Dieulafoy, L’Art antique de la Perse, vol. iv, Fig. 26.

[438] ‘Genesis der islamischen Kunst,’ Der Islam, vol. i, p. 112.

[439] Butler, Ancient Architecture in Syria, Sect. B, pt. i, p. 32.

[440] The arches of the tomb known as Ṣlaibiyyeh are the best preserved. Amurath to Amurath, Figs. 150 and 151, and Herzfeld, Erster vorl. Bericht, Fig. 6. Dr. Herzfeld found in it three graves, and he believes it to have been the mausoleum of the khalifs Muntaṣir, Mu’tazz, and Muhtadi.

[441] Amurath, Figs. 43 and 44.

[442] Sarre-Herzfeld, Iranische Felsreliefs, pp. 232 et seq.

[443] Third and second century B. C., Delbrück, Hellenistische Bauten in Latium, pt. ii, p. 68.

[444] Bell, Churches and Monasteries of the Ṭûr ‘Abdîn, p. 87 (31).

[445] Sarre-Herzfeld, Euphrat-und Tigris-Gebiet, vol. i, Fig. 57; and vol. iii, Plate 68.

[446] Ya’qubi, ed. de Goeje, p. 311. Dr. Moritz calls my attention to a passage in Murudj al-Dhahab of Mas’ûdi (ed. Barbier de Meynard), vol. viii, p. 294, in which it is related that the khalif Rashid built wells, cisterns, and castles along the Mekkah road. These castles can, however, have been nothing but guard-houses.

[447] Le Strange, Lands of the Eastern Khalifate, p. 77.

[448] Lammens, ‘Ziâd ibn Abîhi,’ Rivista degli Studi Orientali, vol. iv, p. 232 and p. 656, note 2.